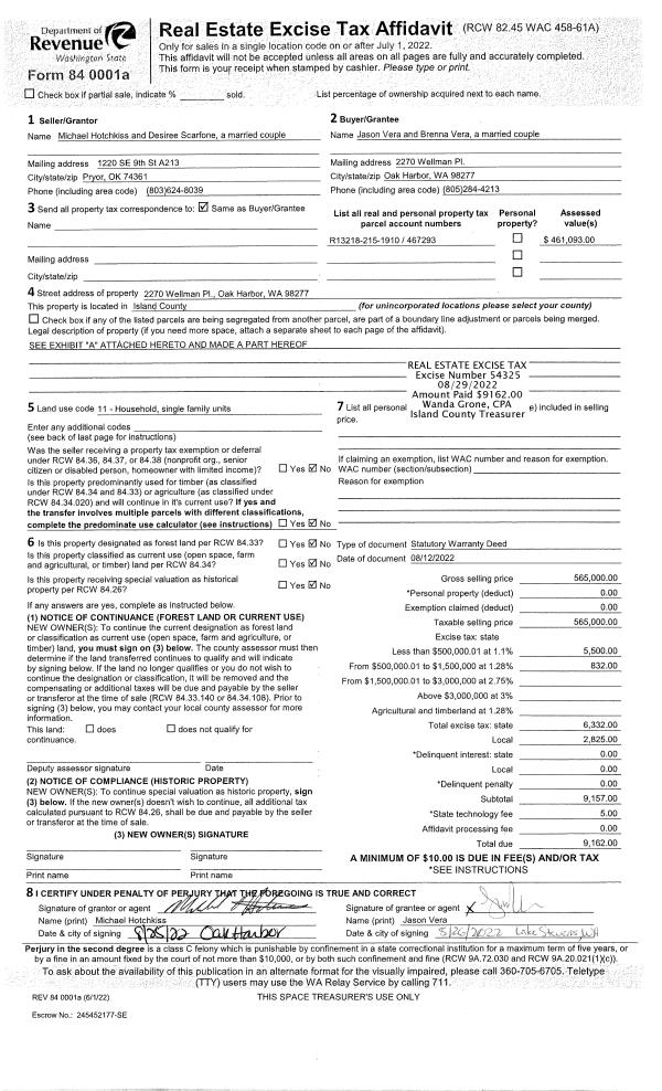
Property
Account |
| Property ID: | 246727 | Abbreviated Legal Description: | DRIFTWOOD HTS 4 LOT 17 FMLY 182 7-31-3E |
| Geographic ID: | S6505-04-00017-0 | Agent Code: | |
| Type: | Real | | |
| Tax Area: | 510 - APPRAISER-Stan/Cam Schl Dist, improved & 1 acre or less | Land Use Code | 11 |
| Open Space: | N | DFL | N |
| Historic Property: | N | Remodel Property: | N |
| Multi-Family Redevelopment: | N | | |
| Township: | | Section: | |
| Range: | |
Location |
| Address: | 675 VESPER WAY CAMANO ISLAND, WA 98282 | Mapsco: | |
| Neighborhood: | Cycle 5 | Map ID: | 922 |
| Neighborhood CD: | 5 |
Owner |
| Name: | CHAN, HENRY | Owner ID: | 186874 |
| Mailing Address: | FEI CHANG 4 TEE PL BELLINGHAM, WA 98229 | % Ownership: | 100.0000000000% |
| | | Exemptions: | |
Taxes and Assessment Details
Values
| (+) Improvement Homesite Value: | + | $0 | |
| (+) Improvement Non-Homesite Value: | + | $56,230 | |
| (+) Land Homesite Value: | + | $0 | |
| (+) Land Non-Homesite Value: | + | $280,000 | |
| (+) Curr Use (HS): | + | $0 | $0 |
| (+) Curr Use (NHS): | + | $0 | $0 |
| | | -------------------------- | |
| (=) Market Value: | = | $336,230 | |
| (–) Productivity Loss: | – | $0 | |
| | | -------------------------- | |
| (=) Subtotal: | = | $336,230 | |
| (+) Senior Appraised Value: | + | $0 | |
| (+) Non-Senior Appraised Value: | + | $336,230 | |
| | | -------------------------- | |
| (=) Total Appraised Value: | = | $336,230 | |
| (–) Senior Exemption Loss: | – | $0 | |
| (–) Exemption Loss: | – | $0 | |
| | | -------------------------- | |
| (=) Taxable Value: | = | $336,230 | |
Taxing Jurisdiction
| Owner: | CHAN, HENRY | | |
| % Ownership: | 100.0000000000% | | |
| Total Value: | $336,230 | | |
| Tax Area: | 510 - APPRAISER-Stan/Cam Schl Dist, improved & 1 acre or less |
| CF | Conservation Futures | 0.0316035091 | $336,230 | $336,230 | $10.63 | | |
| EMS1 | Fire & Rescue Dist #1 Camano GEN (EMS) | 0.3677864386 | $336,230 | $336,230 | $123.66 | | |
| FIRE1 | Fire & Rescue Dist #1 Camano GEN | 1.2502910536 | $336,230 | $336,230 | $420.39 | | |
| FIRE1BOND | Fire & Rescue Dist #1 Camano BOND | 0.1570001679 | $336,230 | $336,230 | $52.79 | | |
| CE | County Current Expense | 0.3708482477 | $336,230 | $336,230 | $124.69 | | |
| CR | County Roads | 0.4584763726 | $336,230 | $336,230 | $154.15 | | |
| LCIB | Library Sno-Isle BOND (Camano Island) | 0.0396325772 | $336,230 | $336,230 | $13.33 | | |
| LIB | Library Sno-Isle GEN | 0.3153421757 | $336,230 | $336,230 | $106.03 | | |
| SCH205_401 | School 205-401 Enrichment | 1.2698420524 | $336,230 | $336,230 | $426.96 | | |
| SCH205BOND | School 205-401 BOND | 0.9396497583 | $336,230 | $336,230 | $315.94 | | |
| ST | State School | 1.3035497053 | $336,230 | $336,230 | $438.29 | | |
| ST2 | State School Part 2 | 0.8169543533 | $336,230 | $336,230 | $274.68 | | |
| | Total Tax Rate: | 7.3209764117 | | | | | |
| | | | | Taxes w/Current Exemptions: | $2,461.54 | | |
| | | | | Taxes w/o Exemptions: | $2,461.54 | | |
Improvement / Building
| Improvement #1: | MANUFACTURED HOME | State Code: | Y | 1056.0 sqft | Value: | $56,230 |
| Bathrooms: | 1.5 | Bedrooms: | 2 | | Ceiling: | PLASTER PAINTED | Cooling: | EVAP NO DUCT | | Exterior Wall/Cover: | VINYL | Floor Covering: | CARPET 100% | | Floor Structure: | SLAB ON GRADE | Foundation: | SLAB | | Heating: | FHA ELECTRIC | Interior Finish: | PLASTER | | Plumbing Fixture Cnt: | 1 | Roof Slope: | FLAT | | Roof Structure/Cover: | CJ ALUMINIUM HEAVY |   |   |
|
| | Type | Description | Class CD | Sub Class CD | Year Built | Area |
| | BAS | BASE/MAIN FLOOR | 3 | 0 | 1975 | 1056.0 |
| | DGR | DETACHED GARAGE | 3 | 0 | 1975 | 384.0 |
| | OWR | OPEN WOOD PORCH W/STEPS/ROOF | 3 | 0 | 1975 | 150.5 |
| | OWR | OPEN WOOD PORCH W/STEPS/ROOF | 3 | 0 | 1975 | 144.0 |
| | OWP | OPEN WOOD PORCH W/STEPS | 3 | 0 | 1975 | 48.0 |
| | OWP | OPEN WOOD PORCH W/STEPS | 3 | 0 | 1975 | 140.0 |
Sketch
Property Image
Land
| 1 | 15 | SQ (12001-21780) | 0.0000 | 0.00 | 0.00 | 0.00 | 1.00 | $280,000 | $0 |
Roll Value History
| 2026 | N/A | N/A | N/A | N/A | N/A |
| 2025 | $56,230 | $280,000 | $0 | $336,230 | $336,230 |
| 2024 | $58,908 | $250,000 | $0 | $308,908 | $308,908 |
| 2023 | $61,585 | $250,000 | $0 | $311,585 | $311,585 |
| 2022 | $58,192 | $220,000 | $0 | $278,192 | $278,192 |
| 2021 | $48,495 | $145,000 | $0 | $193,495 | $193,495 |
| 2020 | $49,121 | $125,000 | $0 | $174,121 | $174,121 |
| 2019 | $41,114 | $160,000 | $0 | $201,114 | $201,114 |
| 2018 | $42,725 | $145,000 | $0 | $187,725 | $187,725 |
| 2017 | $44,338 | $120,000 | $0 | $164,338 | $164,338 |
| 2016 | $45,950 | $90,000 | $0 | $135,950 | $135,950 |
| 2015 | $40,337 | $80,000 | $0 | $120,337 | $120,337 |
| 2014 | $41,495 | $80,000 | $0 | $121,495 | $121,495 |
| 2013 | $42,073 | $83,200 | $0 | $125,273 | $125,273 |
| 2012 | $43,231 | $83,200 | $0 | $126,431 | $126,431 |
| 2011 | $44,389 | $111,000 | $0 | $155,389 | $155,389 |
| 2010 | $49,829 | $111,000 | $0 | $160,829 | $160,829 |
| 2009 | $46,543 | $90,000 | $0 | $136,543 | $136,543 |
| 2008 | $47,470 | $150,000 | $0 | $197,470 | $197,470 |
| 2007 | $48,453 | $150,000 | $0 | $198,453 | $198,453 |
Deed and Sales History
| 1 | 04/15/2005 | WD | Warranty Deed | SCHEFFER, STEVEN D | CHAN, HENRY | | | $149,900.00 | 51666 | 4131771 |
| 2 | 11/29/2001 | ESTSEPPROP | Establish Separate Property | SCHEFFER, STEVEN D | SCHEFFER, STEVEN D | | | $0.00 | 14577 | 4004624 |
| 3 | 09/18/2000 | OTHER | Other - Misc. Documents | SCHEFFER, STEVEN D | SCHEFFER, STEVEN D | | | $22,247.00 | 3562 | 0 |
| 4 | 09/12/2000 | WD | Warranty Deed | SHAW, PATRICIA A | SCHEFFER, STEVEN D | | | $82,000.00 | 3566 | 20016414 |
| 5 | 01/01/1900 | OTHER | Other - Misc. Documents | CHRISTIANSEN, PATRICIA A | SHAW, PATRICIA A | | | $0.00 | 0 | 0 |
| 6 | 01/01/1900 | OTHER | Other - Misc. Documents | Unknown | CHRISTIANSEN, PATRICIA A | | | $0.00 | 58892 | 0 |
| 7 | 01/01/1900 | OTHER | Other - Misc. Documents | SHAW, PATRICIA A | SHAW, PATRICIA A | | | $0.00 | 0 | 0 |
Payout Agreement
| No payout information available.. |