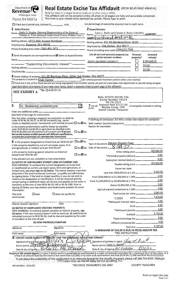
Property
Account |
| Property ID: | 246736 | Abbreviated Legal Description: | DRIFTWOOD HTS 4 LOT 18 FMLY TL 183 7-31-3E |
| Geographic ID: | S6505-04-00018-0 | Agent Code: | |
| Type: | Real | | |
| Tax Area: | 510 - APPRAISER-Stan/Cam Schl Dist, improved & 1 acre or less | Land Use Code | 11 |
| Open Space: | N | DFL | N |
| Historic Property: | N | Remodel Property: | N |
| Multi-Family Redevelopment: | N | | |
| Township: | | Section: | |
| Range: | |
Location |
| Address: | 667 VESPER WAY CAMANO ISLAND, WA 98282 | Mapsco: | |
| Neighborhood: | Cycle 5 | Map ID: | 922 |
| Neighborhood CD: | 5 |
Owner |
| Name: | VATTENKY TTEE, ELSIE | Owner ID: | 317171 |
| Mailing Address: | 24203 1ST AVE SE BOTHELL, WA 98021 | % Ownership: | 100.0000000000% |
| | | Exemptions: | |
Taxes and Assessment Details
Values
| (+) Improvement Homesite Value: | + | $0 | |
| (+) Improvement Non-Homesite Value: | + | $251,217 | |
| (+) Land Homesite Value: | + | $0 | |
| (+) Land Non-Homesite Value: | + | $280,000 | |
| (+) Curr Use (HS): | + | $0 | $0 |
| (+) Curr Use (NHS): | + | $0 | $0 |
| | | -------------------------- | |
| (=) Market Value: | = | $531,217 | |
| (–) Productivity Loss: | – | $0 | |
| | | -------------------------- | |
| (=) Subtotal: | = | $531,217 | |
| (+) Senior Appraised Value: | + | $0 | |
| (+) Non-Senior Appraised Value: | + | $531,217 | |
| | | -------------------------- | |
| (=) Total Appraised Value: | = | $531,217 | |
| (–) Senior Exemption Loss: | – | $0 | |
| (–) Exemption Loss: | – | $0 | |
| | | -------------------------- | |
| (=) Taxable Value: | = | $531,217 | |
Taxing Jurisdiction
| Owner: | VATTENKY TTEE, ELSIE | | |
| % Ownership: | 100.0000000000% | | |
| Total Value: | $531,217 | | |
| Tax Area: | 510 - APPRAISER-Stan/Cam Schl Dist, improved & 1 acre or less |
| CF | Conservation Futures | 0.0316035091 | $531,217 | $531,217 | $16.79 | | |
| EMS1 | Fire & Rescue Dist #1 Camano GEN (EMS) | 0.3677864386 | $531,217 | $531,217 | $195.37 | | |
| FIRE1 | Fire & Rescue Dist #1 Camano GEN | 1.2502910536 | $531,217 | $531,217 | $664.18 | | |
| FIRE1BOND | Fire & Rescue Dist #1 Camano BOND | 0.1570001679 | $531,217 | $531,217 | $83.40 | | |
| CE | County Current Expense | 0.3708482477 | $531,217 | $531,217 | $197.00 | | |
| CR | County Roads | 0.4584763726 | $531,217 | $531,217 | $243.55 | | |
| LCIB | Library Sno-Isle BOND (Camano Island) | 0.0396325772 | $531,217 | $531,217 | $21.05 | | |
| LIB | Library Sno-Isle GEN | 0.3153421757 | $531,217 | $531,217 | $167.52 | | |
| SCH205_401 | School 205-401 Enrichment | 1.2698420524 | $531,217 | $531,217 | $674.56 | | |
| SCH205BOND | School 205-401 BOND | 0.9396497583 | $531,217 | $531,217 | $499.16 | | |
| ST | State School | 1.3035497053 | $531,217 | $531,217 | $692.47 | | |
| ST2 | State School Part 2 | 0.8169543533 | $531,217 | $531,217 | $433.98 | | |
| | Total Tax Rate: | 7.3209764117 | | | | | |
| | | | | Taxes w/Current Exemptions: | $3,889.03 | | |
| | | | | Taxes w/o Exemptions: | $3,889.03 | | |
Improvement / Building
| Improvement #1: | RESIDENTIAL | State Code: | Y | 1058.1 sqft | Value: | $251,217 |
| Bathrooms: | 2 | Ceiling: | DRYWALL PAINTED | | Cooling: | (NONE) | Exterior Wall/Cover: | CEMENT FIBER | | Floor Covering: | CARPET/VINYL 60-40 | Floor Structure: | WOOD W/SUBFLOOR | | Foundation: | CONCRETE | Heating: | FHA ELECTRIC | | Interior Finish: | DRYWALL PAINT | Plumbing Fixture Cnt: | 9 | | Roof Slope: | 4" IN 12" | Roof Structure/Cover: | CJ ASPHALT |
|
| | Type | Description | Class CD | Sub Class CD | Year Built | Area |
| | BAS | BASE/MAIN FLOOR | 3 | 0 | 2013 | 1058.1 |
| | OP4 | OPEN PORCH W/CEILING-ROOF | 3 | 0 | 2013 | 80.0 |
| | OWP | OPEN WOOD PORCH W/STEPS | 3 | 0 | 2013 | 642.5 |
| | AGR | ATTACHED GARAGE | 3 | 0 | 2013 | 400.0 |
Sketch
Property Image
Land
| 1 | 15 | SQ (12001-21780) | 0.0000 | 0.00 | 0.00 | 0.00 | 1.00 | $280,000 | $0 |
Roll Value History
| 2026 | N/A | N/A | N/A | N/A | N/A |
| 2025 | $251,217 | $280,000 | $0 | $531,217 | $531,217 |
| 2024 | $253,155 | $250,000 | $0 | $503,155 | $503,155 |
| 2023 | $255,228 | $250,000 | $0 | $505,228 | $505,228 |
| 2022 | $232,993 | $220,000 | $0 | $452,993 | $452,993 |
| 2021 | $199,334 | $145,000 | $0 | $344,334 | $344,334 |
| 2020 | $192,904 | $125,000 | $0 | $317,904 | $317,904 |
| 2019 | $137,253 | $160,000 | $0 | $297,253 | $297,253 |
| 2018 | $137,618 | $145,000 | $0 | $282,618 | $282,618 |
| 2017 | $138,346 | $120,000 | $0 | $258,346 | $258,346 |
| 2016 | $139,802 | $90,000 | $0 | $229,802 | $229,802 |
| 2015 | $133,266 | $80,000 | $0 | $213,266 | $213,266 |
| 2014 | $134,640 | $80,000 | $0 | $214,640 | $214,640 |
| 2013 | $137,388 | $80,000 | $0 | $217,388 | $217,388 |
| 2012 | $19,618 | $83,200 | $0 | $102,818 | $102,818 |
| 2011 | $19,997 | $111,000 | $0 | $130,997 | $130,997 |
| 2010 | $23,869 | $111,000 | $0 | $134,869 | $134,869 |
| 2009 | $21,747 | $90,000 | $0 | $111,747 | $111,747 |
| 2008 | $21,747 | $175,000 | $0 | $196,747 | $196,747 |
| 2007 | $21,747 | $150,000 | $0 | $171,747 | $171,747 |
Deed and Sales History
| 1 | 11/22/2023 | QCD | Quit Claim Deed | VATTENKY, ELSIE | VATTENKY TTEE, ELSIE | | | $0.00 | 63983 | 4587583 |
| 2 | 11/13/2024 | QCD | Quit Claim Deed | VATTENKY, ELSIE | VATTENKY, ELSIE | | | $0.00 | 63981 | 4587576 |
| 3 | 10/26/2023 | LACPROBATE | Lack of Probate | VATTENKY, GEORGE | VATTENKY, ELSIE | | | $0.00 | 63970 | 4582936 |
| 4 | 08/13/2007 | WD | Warranty Deed | BRISENDINE, NAOMI | VATTENKY, GEORGE | | | $219,950.00 | 72798 | 4209744 |
| 5 | 05/12/2005 | WD | Warranty Deed | TRAMMELL, ROBERT | BRISENDINE, NAOMI | | | $118,478.00 | 52161 | 4134433 |
| 6 | 01/01/1900 | OTHER | Other - Misc. Documents | Unknown | TRAMMELL, ROBERT | | | $0.00 | 0 | 0 |
Payout Agreement
| No payout information available.. |