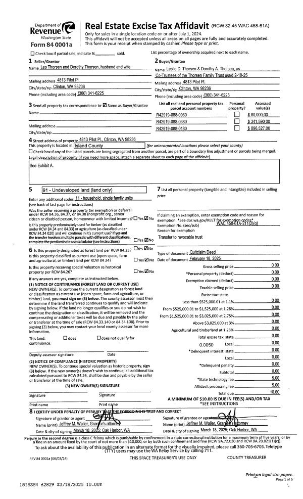
Property
Account |
| Property ID: | 24681 | Abbreviated Legal Description: | 55 - BG NWCR SEC 22 S1951 .07' E20' TPB E1602.71' N397.42' W1394' S208.71' W208.71' S188.71' TPB - 5 CONDRA DC EX PT TO IS CO AF# 4138176 |
| Geographic ID: | R13222-351-0830 | Agent Code: | |
| Type: | Real | | |
| Tax Area: | 112 - APPRAISER-OH Schl Dist, outside OH, improved, greater than 1 acre | Land Use Code | 83 |
| Open Space: | Y | DFL | N |
| Historic Property: | N | Remodel Property: | N |
| Multi-Family Redevelopment: | N | | |
| Township: | 32 | Section: | 22 |
| Range: | R1 |
Location |
| Address: | | Mapsco: | |
| Neighborhood: | Cycle 2 | Map ID: | 155 |
| Neighborhood CD: | 2 |
Owner |
| Name: | RECTOR, GEORGE A | Owner ID: | 6784 |
| Mailing Address: | AVIS E RECTOR TRUSTEES 1044 MONROE LANDING RD OAK HARBOR, WA 98277-8287 | % Ownership: | 100.0000000000% |
| | | Exemptions: | |
Taxes and Assessment Details
Values
| (+) Improvement Homesite Value: | + | $0 | |
| (+) Improvement Non-Homesite Value: | + | $17,106 | |
| (+) Land Homesite Value: | + | $0 | |
| (+) Land Non-Homesite Value: | + | $0 | |
| (+) Curr Use (HS): | + | $0 | $0 |
| (+) Curr Use (NHS): | + | $269,014 | $8,528 |
| | | -------------------------- | |
| (=) Market Value: | = | $286,120 | |
| (–) Productivity Loss: | – | $260,486 | |
| | | -------------------------- | |
| (=) Subtotal: | = | $25,634 | |
| (+) Senior Appraised Value: | + | $0 | |
| (+) Non-Senior Appraised Value: | + | $25,634 | |
| | | -------------------------- | |
| (=) Total Appraised Value: | = | $25,634 | |
| (–) Senior Exemption Loss: | – | $0 | |
| (–) Exemption Loss: | – | $0 | |
| | | -------------------------- | |
| (=) Taxable Value: | = | $25,634 | |
Taxing Jurisdiction
| Owner: | RECTOR, GEORGE A | | |
| % Ownership: | 100.0000000000% | | |
| Total Value: | $286,120 | | |
| Tax Area: | 112 - APPRAISER-OH Schl Dist, outside OH, improved, greater than 1 acre |
| CF | Conservation Futures | 0.0316035091 | $25,634 | $25,634 | $0.81 | | |
| CEM1 | Cemetery #1 | 0.0040320932 | $25,634 | $25,634 | $0.10 | | |
| FIRE2 | Fire & Rescue Dist #2 N Whidbey GEN | 0.5475949600 | $25,634 | $25,634 | $14.04 | | |
| HOBOND | Hospital BOND | 0.1910887512 | $25,634 | $25,634 | $4.90 | | |
| HOGEN | Hospital GEN | 0.3902502903 | $25,634 | $25,634 | $10.00 | | |
| CE | County Current Expense | 0.3708482477 | $25,634 | $25,634 | $9.51 | | |
| CR | County Roads | 0.4584763726 | $25,634 | $25,634 | $11.75 | | |
| ISLANDEMS | Hospital GEN (EMS) | 0.5000000000 | $25,634 | $25,634 | $12.82 | | |
| LIB | Library Sno-Isle GEN | 0.3153421757 | $25,634 | $25,634 | $8.08 | | |
| NWHIDPRMT | P & R N Whidbey GEN | 0.2004466701 | $25,634 | $25,634 | $5.14 | | |
| SCH201MO | School 201 Enrichment | 1.8559231640 | $25,634 | $25,634 | $47.57 | | |
| ST | State School | 1.3035497053 | $25,634 | $25,634 | $33.42 | | |
| ST2 | State School Part 2 | 0.8169543533 | $25,634 | $25,634 | $20.94 | | |
| | Total Tax Rate: | 6.9861102925 | | | | | |
| | | | | Taxes w/Current Exemptions: | $179.08 | | |
| | | | | Taxes w/o Exemptions: | $179.08 | | |
Improvement / Building
| Improvement #1: | RESIDENTIAL | State Code: | Y | 0.0 sqft | Value: | $17,106 |
| | Type | Description | Class CD | Sub Class CD | Year Built | Area |
| | oPOL | POLE BARN | 2 | 0 | 1900 | 1500.0 |
| | oSTA | STABLE | 2 | 0 | 1900 | 550.0 |
| | oEQU | EQUIP SHED | 2 | 0 | 1900 | 500.0 |
| | oEQU | EQUIP SHED | 2 | 0 | 1900 | 550.0 |
Sketch
| No sketches available for this property. |
Property Image
Land
| 1 | 83 | OPEN AGRICULTURE | 13.9600 | 608097.60 | 0.00 | 0.00 | 1.00 | $269,014 | $8,528 |
Roll Value History
| 2026 | N/A | N/A | N/A | N/A | N/A |
| 2025 | $17,106 | $269,014 | $8,528 | $25,634 | $25,634 |
| 2024 | $11,800 | $250,000 | $8,528 | $20,328 | $20,328 |
| 2023 | $11,800 | $240,000 | $8,528 | $20,328 | $20,328 |
| 2022 | $11,800 | $200,000 | $8,528 | $20,328 | $20,328 |
| 2021 | $11,800 | $170,000 | $8,528 | $20,328 | $20,328 |
| 2020 | $11,800 | $150,000 | $8,528 | $20,328 | $20,328 |
| 2019 | $11,800 | $150,000 | $8,528 | $20,328 | $20,328 |
| 2018 | $11,800 | $170,000 | $8,528 | $20,328 | $20,328 |
| 2017 | $11,800 | $170,000 | $8,528 | $20,328 | $20,328 |
| 2016 | $11,800 | $160,000 | $8,528 | $20,328 | $20,328 |
| 2015 | $11,800 | $160,000 | $8,528 | $20,328 | $20,328 |
| 2014 | $11,800 | $160,000 | $8,528 | $20,328 | $20,328 |
| 2013 | $11,800 | $177,990 | $8,528 | $20,328 | $20,328 |
| 2012 | $12,956 | $177,990 | $8,528 | $21,484 | $21,484 |
| 2011 | $12,956 | $209,400 | $8,528 | $21,484 | $21,484 |
| 2010 | $12,956 | $209,400 | $8,528 | $21,484 | $21,484 |
| 2009 | $12,956 | $209,400 | $8,528 | $21,484 | $21,484 |
| 2008 | $12,956 | $125,640 | $8,528 | $21,484 | $21,484 |
| 2007 | $12,956 | $125,640 | $8,528 | $21,484 | $21,484 |
Deed and Sales History
| 1 | 10/26/2005 | QCD | Quit Claim Deed | RECTOR, GEORGE A | RECTOR, GEORGE A | | | $700.00 | 70706 | 4138176 |
| 2 | 06/01/1993 | QCD | Quit Claim Deed | RECTOR, GEORGE | RECTOR, GEORGE A | | | $0.00 | 32845 | 93014627 |
| 3 | 07/01/1973 | EZ | Easement | FARRELL, PATRICK F | RECTOR, GEORGE | | | $0.00 | 48683 | 0 |
| 4 | 01/01/1900 | OTHER | Other - Misc. Documents | Unknown | FARRELL, PATRICK F | | | $0.00 | 0 | 0 |
Payout Agreement
| No payout information available.. |