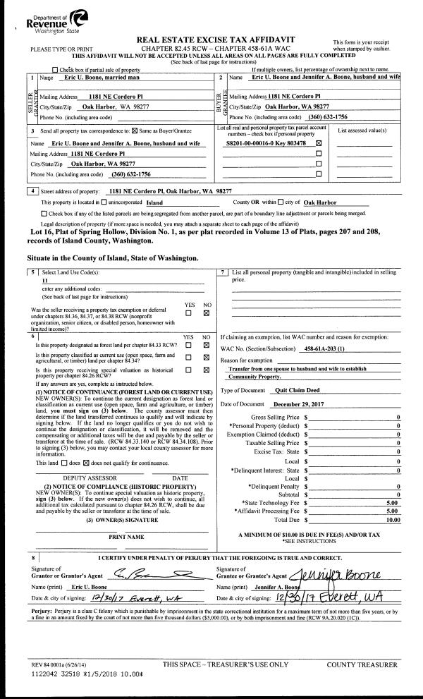
Property
Account |
| Property ID: | 246905 | Abbreviated Legal Description: | DRIFTWOOD SH LOT 12 FMLY PT TL 6 TGW & SUB EZ AF#87007588 |
| Geographic ID: | S6510-00-00012-0 | Agent Code: | |
| Type: | Real | | |
| Tax Area: | 510 - APPRAISER-Stan/Cam Schl Dist, improved & 1 acre or less | Land Use Code | 11 |
| Open Space: | N | DFL | N |
| Historic Property: | N | Remodel Property: | N |
| Multi-Family Redevelopment: | N | | |
| Township: | | Section: | |
| Range: | |
Location |
| Address: | 597 WATERLINE LOOP CAMANO ISLAND, WA 98282 | Mapsco: | |
| Neighborhood: | Cycle 5 | Map ID: | 922 |
| Neighborhood CD: | 5 |
Owner |
| Name: | VINCENT, CRAIG E | Owner ID: | 283330 |
| Mailing Address: | JUDY A VINCENT 597 WATERLINE LOOP RD CAMANO ISLAND, WA 98282 | % Ownership: | 100.0000000000% |
| | | Exemptions: | |
Taxes and Assessment Details
Values
| (+) Improvement Homesite Value: | + | $0 | |
| (+) Improvement Non-Homesite Value: | + | $165,930 | |
| (+) Land Homesite Value: | + | $0 | |
| (+) Land Non-Homesite Value: | + | $310,000 | |
| (+) Curr Use (HS): | + | $0 | $0 |
| (+) Curr Use (NHS): | + | $0 | $0 |
| | | -------------------------- | |
| (=) Market Value: | = | $475,930 | |
| (–) Productivity Loss: | – | $0 | |
| | | -------------------------- | |
| (=) Subtotal: | = | $475,930 | |
| (+) Senior Appraised Value: | + | $0 | |
| (+) Non-Senior Appraised Value: | + | $475,930 | |
| | | -------------------------- | |
| (=) Total Appraised Value: | = | $475,930 | |
| (–) Senior Exemption Loss: | – | $0 | |
| (–) Exemption Loss: | – | $0 | |
| | | -------------------------- | |
| (=) Taxable Value: | = | $475,930 | |
Taxing Jurisdiction
| Owner: | VINCENT, CRAIG E | | |
| % Ownership: | 100.0000000000% | | |
| Total Value: | $475,930 | | |
| Tax Area: | 510 - APPRAISER-Stan/Cam Schl Dist, improved & 1 acre or less |
| CF | Conservation Futures | 0.0316035091 | $475,930 | $475,930 | $15.04 | | |
| EMS1 | Fire & Rescue Dist #1 Camano GEN (EMS) | 0.3677864386 | $475,930 | $475,930 | $175.04 | | |
| FIRE1 | Fire & Rescue Dist #1 Camano GEN | 1.2502910536 | $475,930 | $475,930 | $595.05 | | |
| FIRE1BOND | Fire & Rescue Dist #1 Camano BOND | 0.1570001679 | $475,930 | $475,930 | $74.72 | | |
| CE | County Current Expense | 0.3708482477 | $475,930 | $475,930 | $176.50 | | |
| CR | County Roads | 0.4584763726 | $475,930 | $475,930 | $218.20 | | |
| LCIB | Library Sno-Isle BOND (Camano Island) | 0.0396325772 | $475,930 | $475,930 | $18.86 | | |
| LIB | Library Sno-Isle GEN | 0.3153421757 | $475,930 | $475,930 | $150.08 | | |
| SCH205_401 | School 205-401 Enrichment | 1.2698420524 | $475,930 | $475,930 | $604.36 | | |
| SCH205BOND | School 205-401 BOND | 0.9396497583 | $475,930 | $475,930 | $447.21 | | |
| ST | State School | 1.3035497053 | $475,930 | $475,930 | $620.40 | | |
| ST2 | State School Part 2 | 0.8169543533 | $475,930 | $475,930 | $388.81 | | |
| | Total Tax Rate: | 7.3209764117 | | | | | |
| | | | | Taxes w/Current Exemptions: | $3,484.27 | | |
| | | | | Taxes w/o Exemptions: | $3,484.27 | | |
Improvement / Building
| Improvement #1: | MANUFACTURED HOME | State Code: | Y | 1698.0 sqft | Value: | $165,930 |
| Bathrooms: | 0 | Bedrooms: | 0 | | Ceiling: | PLASTER PAINTED | Cooling: | EVAP NO DUCT | | Exterior Wall/Cover: | VINYL | Floor Covering: | CARPET 100% | | Floor Structure: | SLAB ON GRADE | Foundation: | SLAB | | Heating: | FHA ELECTRIC | Interior Finish: | PLASTER | | Plumbing Fixture Cnt: | 1 | Roof Slope: | FLAT | | Roof Structure/Cover: | CJ ALUMINIUM HEAVY |   |   |
|
| | Type | Description | Class CD | Sub Class CD | Year Built | Area |
| | BAS | BASE/MAIN FLOOR | 4 | 0 | 1988 | 1698.0 |
| | DGR | DETACHED GARAGE | 4 | 0 | 1988 | 1232.0 |
| | OWP | OPEN WOOD PORCH W/STEPS | 4 | 0 | 1988 | 576.0 |
| | OWP | OPEN WOOD PORCH W/STEPS | 4 | 0 | 1988 | 40.0 |
| | oCAR | CARPORT | 2 | 0 | 2024 | 585.0 |
Sketch
Property Image
Land
| 1 | 16 | AC (00.51-01.00) | 0.0000 | 0.00 | 0.00 | 0.00 | 1.00 | $310,000 | $0 |
Roll Value History
| 2026 | N/A | N/A | N/A | N/A | N/A |
| 2025 | $165,930 | $310,000 | $0 | $475,930 | $475,930 |
| 2024 | $162,487 | $300,000 | $0 | $462,487 | $462,487 |
| 2023 | $147,669 | $300,000 | $0 | $447,669 | $447,669 |
| 2022 | $138,887 | $260,000 | $0 | $398,887 | $398,887 |
| 2021 | $107,913 | $200,000 | $0 | $307,913 | $307,913 |
| 2020 | $107,866 | $160,000 | $0 | $267,866 | $267,866 |
| 2019 | $92,139 | $190,000 | $0 | $282,139 | $282,139 |
| 2018 | $93,072 | $170,000 | $0 | $263,072 | $263,072 |
| 2017 | $94,937 | $150,000 | $0 | $244,937 | $244,937 |
| 2016 | $96,801 | $100,000 | $0 | $196,801 | $196,801 |
| 2015 | $90,397 | $100,000 | $0 | $190,397 | $190,397 |
| 2014 | $92,081 | $100,000 | $0 | $192,081 | $192,081 |
| 2013 | $94,608 | $100,000 | $0 | $194,608 | $109,661 |
| 2012 | $96,292 | $100,000 | $0 | $196,292 | $67,484 |
| 2011 | $97,976 | $125,000 | $0 | $222,976 | $67,484 |
| 2010 | $103,441 | $125,000 | $0 | $228,441 | $67,484 |
| 2009 | $108,482 | $135,000 | $0 | $243,482 | $243,482 |
| 2008 | $112,816 | $136,000 | $0 | $248,816 | $248,816 |
| 2007 | $115,423 | $98,324 | $0 | $213,747 | $67,484 |
Deed and Sales History
| 1 | 12/15/2017 | WD | Warranty Deed | WEISINGER, RAY A. | VINCENT, CRAIG E | | | $282,000.00 | 32328 | 4436018 |
| 2 | 06/19/2014 | WD | Warranty Deed | JOHNSON, A WALLACE | WEISINGER, RAY A. | | | $218,000.00 | 15725 | 4361204 |
| 3 | 01/01/1988 | OTHER | Other - Misc. Documents | ORRICK, CHRISTINE M | JOHNSON, A W | | | $38,400.00 | 11111111 | 0 |
| 4 | 06/01/1987 | QCD | Quit Claim Deed | JOHNSON, A W | ORRICK, CHRISTINE M | | | $0.00 | 71613 | 87007587 |
| 5 | 05/01/1987 | WD | Warranty Deed | STEELE, NORTON A | JOHNSON, A W | | | $17,000.00 | 71614 | 87007589 |
| 6 | 01/01/1984 | QCD | Quit Claim Deed | ORRICK, CHRISTINE M | STEELE, NORTON A | | | $0.00 | 40152 | 420013 |
| 7 | 12/01/1983 | QCD | Quit Claim Deed | STEELE, NORTON A | ORRICK, CHRISTINE M | | | $0.00 | 40153 | 420014 |
| 8 | 01/01/1900 | OTHER | Other - Misc. Documents | Unknown | STEELE, NORTON A | | | $0.00 | 0 | 0 |
Payout Agreement
| No payout information available.. |