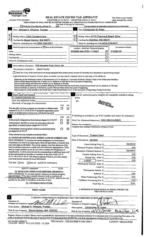
Property
Account |
| Property ID: | 246932 | Abbreviated Legal Description: | DRIFTWOOD SH LOT 15 FMLY TL 142 7-31-3E |
| Geographic ID: | S6510-00-00015-0 | Agent Code: | |
| Type: | Real | | |
| Tax Area: | 510 - APPRAISER-Stan/Cam Schl Dist, improved & 1 acre or less | Land Use Code | 11 |
| Open Space: | N | DFL | N |
| Historic Property: | N | Remodel Property: | N |
| Multi-Family Redevelopment: | N | | |
| Township: | | Section: | |
| Range: | |
Location |
| Address: | 592 WATERLINE LOOP CAMANO ISLAND, WA 98282 | Mapsco: | |
| Neighborhood: | Cycle 5 | Map ID: | 923 |
| Neighborhood CD: | 5 |
Owner |
| Name: | LENZ, JOHN | Owner ID: | 295265 |
| Mailing Address: | 592 WATERLINE LOOP CAMANO ISLAND, WA 98282 | % Ownership: | 100.0000000000% |
| | | Exemptions: | |
Taxes and Assessment Details
Values
| (+) Improvement Homesite Value: | + | $0 | |
| (+) Improvement Non-Homesite Value: | + | $273,549 | |
| (+) Land Homesite Value: | + | $0 | |
| (+) Land Non-Homesite Value: | + | $310,000 | |
| (+) Curr Use (HS): | + | $0 | $0 |
| (+) Curr Use (NHS): | + | $0 | $0 |
| | | -------------------------- | |
| (=) Market Value: | = | $583,549 | |
| (–) Productivity Loss: | – | $0 | |
| | | -------------------------- | |
| (=) Subtotal: | = | $583,549 | |
| (+) Senior Appraised Value: | + | $0 | |
| (+) Non-Senior Appraised Value: | + | $583,549 | |
| | | -------------------------- | |
| (=) Total Appraised Value: | = | $583,549 | |
| (–) Senior Exemption Loss: | – | $0 | |
| (–) Exemption Loss: | – | $0 | |
| | | -------------------------- | |
| (=) Taxable Value: | = | $583,549 | |
Taxing Jurisdiction
| Owner: | LENZ, JOHN | | |
| % Ownership: | 100.0000000000% | | |
| Total Value: | $583,549 | | |
| Tax Area: | 510 - APPRAISER-Stan/Cam Schl Dist, improved & 1 acre or less |
| CF | Conservation Futures | 0.0316035091 | $583,549 | $583,549 | $18.44 | | |
| EMS1 | Fire & Rescue Dist #1 Camano GEN (EMS) | 0.3677864386 | $583,549 | $583,549 | $214.62 | | |
| FIRE1 | Fire & Rescue Dist #1 Camano GEN | 1.2502910536 | $583,549 | $583,549 | $729.61 | | |
| FIRE1BOND | Fire & Rescue Dist #1 Camano BOND | 0.1570001679 | $583,549 | $583,549 | $91.62 | | |
| CE | County Current Expense | 0.3708482477 | $583,549 | $583,549 | $216.41 | | |
| CR | County Roads | 0.4584763726 | $583,549 | $583,549 | $267.54 | | |
| LCIB | Library Sno-Isle BOND (Camano Island) | 0.0396325772 | $583,549 | $583,549 | $23.13 | | |
| LIB | Library Sno-Isle GEN | 0.3153421757 | $583,549 | $583,549 | $184.02 | | |
| SCH205_401 | School 205-401 Enrichment | 1.2698420524 | $583,549 | $583,549 | $741.02 | | |
| SCH205BOND | School 205-401 BOND | 0.9396497583 | $583,549 | $583,549 | $548.33 | | |
| ST | State School | 1.3035497053 | $583,549 | $583,549 | $760.69 | | |
| ST2 | State School Part 2 | 0.8169543533 | $583,549 | $583,549 | $476.73 | | |
| | Total Tax Rate: | 7.3209764117 | | | | | |
| | | | | Taxes w/Current Exemptions: | $4,272.16 | | |
| | | | | Taxes w/o Exemptions: | $4,272.16 | | |
Improvement / Building
| Improvement #1: | RESIDENTIAL | State Code: | Y | 1861.0 sqft | Value: | $273,549 |
| Bathrooms: | 2.5 | Bedrooms: | 3 | | Ceiling: | TONGUE & GROOVE | Exterior Wall/Cover: | PLY/HARDBOARD T-111 | | Floor Covering: | CARPET/VINYL 20-80 | Floor Structure: | WOOD W/SUBFLOOR | | Foundation: | CONCRETE | Heating: | BASEBOARD ELECTRIC | | Interior Finish: | DRYWALL PAINT | Plumbing Fixture Cnt: | 11 | | Roof Slope: | 3" IN 12" | Roof Structure/Cover: | BEAM ROLL COMPOSITION |
|
| | Type | Description | Class CD | Sub Class CD | Year Built | Area |
| | BAS | BASE/MAIN FLOOR | 3 | 0 | 1968 | 1333.0 |
| | OP3 | OPEN PORCH W/ROOF | 3 | 0 | 1968 | 139.7 |
| | AGR | ATTACHED GARAGE | 3 | 0 | 1968 | 496.0 |
| | OWP | OPEN WOOD PORCH W/STEPS | 3 | 0 | 1968 | 387.0 |
| | CPD | OPEN CARPORT DIRT FLOOR | 3 | 0 | 1968 | 240.0 |
| | DWN | DOWNSTAIRS LIVING AREA | 3 | 0 | 1968 | 528.0 |
| | OWP | OPEN WOOD PORCH W/STEPS | 3 | 0 | 1968 | 96.0 |
Sketch
Property Image
Land
| 1 | 13 | SQ (06001-08000) | 0.0000 | 0.00 | 0.00 | 0.00 | 1.00 | $310,000 | $0 |
Roll Value History
| 2026 | N/A | N/A | N/A | N/A | N/A |
| 2025 | $273,549 | $310,000 | $0 | $583,549 | $583,549 |
| 2024 | $283,510 | $300,000 | $0 | $583,510 | $583,510 |
| 2023 | $287,134 | $300,000 | $0 | $587,134 | $587,134 |
| 2022 | $263,280 | $260,000 | $0 | $523,280 | $523,280 |
| 2021 | $233,167 | $200,000 | $0 | $433,167 | $433,167 |
| 2020 | $209,819 | $160,000 | $0 | $369,819 | $369,819 |
| 2019 | $155,819 | $190,000 | $0 | $345,819 | $345,819 |
| 2018 | $156,299 | $170,000 | $0 | $326,299 | $326,299 |
| 2017 | $157,257 | $150,000 | $0 | $307,257 | $307,257 |
| 2016 | $159,176 | $150,000 | $0 | $309,176 | $309,176 |
| 2015 | $99,612 | $150,000 | $0 | $249,612 | $249,612 |
| 2014 | $101,330 | $150,000 | $0 | $251,330 | $251,330 |
| 2013 | $106,999 | $150,000 | $0 | $256,999 | $256,999 |
| 2012 | $108,784 | $140,000 | $0 | $248,784 | $248,784 |
| 2011 | $110,566 | $175,000 | $0 | $285,566 | $59,507 |
| 2010 | $119,225 | $175,000 | $0 | $294,225 | $59,507 |
| 2009 | $124,766 | $245,000 | $0 | $369,766 | $59,507 |
| 2008 | $124,866 | $245,000 | $0 | $369,866 | $59,507 |
| 2007 | $126,756 | $160,000 | $0 | $286,756 | $59,507 |
Deed and Sales History
| 1 | 07/14/2020 | WD | Warranty Deed | MELINCIANU, CATALIN | LENZ, JOHN | | | $483,000.00 | 43871 | 4491665 |
| 2 | 10/28/2013 | WD | Warranty Deed | TAYLOR REVOCABLE TRUST, MADGE E | MELINCIANU, CATALIN | | | $170,000.00 | 13272 | 4350565 |
| 3 | 05/11/2011 | | | TAYLOR REVOCABLE TRUST, MADGE E | TAYLOR REVOCABLE TRUST, MADGE E | | | | 82068 | |
| 4 | 09/01/1994 | QCD | Quit Claim Deed | TAYLOR, MADGE | OMAN, GARY T | | | $0.00 | 44546 | 96015708 |
| 5 | 03/01/1985 | OTHER | Other - Misc. Documents | GARLICK, JACK E | TAYLOR, MADGE | | | $0.00 | 61077 | 0 |
| 6 | 06/01/1974 | EZ | Easement | SCHULTZ, DONALD F | GARLICK, JACK E | | | $0.00 | 53200 | 0 |
| 7 | 01/01/1900 | OTHER | Other - Misc. Documents | Unknown | SCHULTZ, DONALD F | | | $0.00 | 0 | 0 |
Payout Agreement
| No payout information available.. |