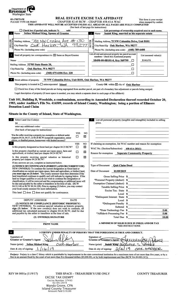
Property
Account |
| Property ID: | 24707 | Abbreviated Legal Description: | 54 - BG NWCR SEC 22 S1553 .65' E20' TPB E208.71' S208 .71' W208.71' N208.71' TPB - 22 CONDRA DC EX PT TO IS CO AF# 4138173 |
| Geographic ID: | R13222-361-0130 | Agent Code: | |
| Type: | Real | | |
| Tax Area: | 110 - APPRAISER-OH Schl Dist, outside OH, improved & 1 acre or less | Land Use Code | 11 |
| Open Space: | N | DFL | N |
| Historic Property: | N | Remodel Property: | N |
| Multi-Family Redevelopment: | N | | |
| Township: | 32 | Section: | 22 |
| Range: | R1 |
Location |
| Address: | 1074 MONROE LANDING RD OAK HARBOR, WA 98277 | Mapsco: | |
| Neighborhood: | Cycle 2 | Map ID: | 155 |
| Neighborhood CD: | 2 |
Owner |
| Name: | DAVIS, SEAN W | Owner ID: | 290048 |
| Mailing Address: | HEATHER B DAVIS 1074 MONROE LANDING RD OAK HARBOR, WA 98277 | % Ownership: | 100.0000000000% |
| | | Exemptions: | |
Taxes and Assessment Details
Values
| (+) Improvement Homesite Value: | + | $0 | |
| (+) Improvement Non-Homesite Value: | + | $185,166 | |
| (+) Land Homesite Value: | + | $0 | |
| (+) Land Non-Homesite Value: | + | $220,000 | |
| (+) Curr Use (HS): | + | $0 | $0 |
| (+) Curr Use (NHS): | + | $0 | $0 |
| | | -------------------------- | |
| (=) Market Value: | = | $405,166 | |
| (–) Productivity Loss: | – | $0 | |
| | | -------------------------- | |
| (=) Subtotal: | = | $405,166 | |
| (+) Senior Appraised Value: | + | $0 | |
| (+) Non-Senior Appraised Value: | + | $405,166 | |
| | | -------------------------- | |
| (=) Total Appraised Value: | = | $405,166 | |
| (–) Senior Exemption Loss: | – | $0 | |
| (–) Exemption Loss: | – | $0 | |
| | | -------------------------- | |
| (=) Taxable Value: | = | $405,166 | |
Taxing Jurisdiction
| Owner: | DAVIS, SEAN W | | |
| % Ownership: | 100.0000000000% | | |
| Total Value: | $405,166 | | |
| Tax Area: | 110 - APPRAISER-OH Schl Dist, outside OH, improved & 1 acre or less |
| CF | Conservation Futures | 0.0316035091 | $405,166 | $405,166 | $12.80 | | |
| CEM1 | Cemetery #1 | 0.0040320932 | $405,166 | $405,166 | $1.63 | | |
| FIRE2 | Fire & Rescue Dist #2 N Whidbey GEN | 0.5475949600 | $405,166 | $405,166 | $221.87 | | |
| HOBOND | Hospital BOND | 0.1910887512 | $405,166 | $405,166 | $77.42 | | |
| HOGEN | Hospital GEN | 0.3902502903 | $405,166 | $405,166 | $158.12 | | |
| CE | County Current Expense | 0.3708482477 | $405,166 | $405,166 | $150.26 | | |
| CR | County Roads | 0.4584763726 | $405,166 | $405,166 | $185.76 | | |
| ISLANDEMS | Hospital GEN (EMS) | 0.5000000000 | $405,166 | $405,166 | $202.58 | | |
| LIB | Library Sno-Isle GEN | 0.3153421757 | $405,166 | $405,166 | $127.77 | | |
| NWHIDPRMT | P & R N Whidbey GEN | 0.2004466701 | $405,166 | $405,166 | $81.21 | | |
| SCH201MO | School 201 Enrichment | 1.8559231640 | $405,166 | $405,166 | $751.96 | | |
| ST | State School | 1.3035497053 | $405,166 | $405,166 | $528.15 | | |
| ST2 | State School Part 2 | 0.8169543533 | $405,166 | $405,166 | $331.00 | | |
| | Total Tax Rate: | 6.9861102925 | | | | | |
| | | | | Taxes w/Current Exemptions: | $2,830.53 | | |
| | | | | Taxes w/o Exemptions: | $2,830.53 | | |
Improvement / Building
| Improvement #1: | RESIDENTIAL | State Code: | Y | 1568.0 sqft | Value: | $185,166 |
| Bathrooms: | 2 | Bedrooms: | 3 | | Ceiling: | DRYWALL PAINTED | Exterior Wall/Cover: | WOOD SIDING | | Floor Covering: | CARPET 100% | Floor Structure: | WOOD W/SUBFLOOR | | Foundation: | CONCRETE | Heating: | FHA GAS | | Interior Finish: | DRYWALL PAINT | Plumbing Fixture Cnt: | 9 | | Roof Slope: | 8" IN 12" | Roof Structure/Cover: | CJ ASPHALT |
|
| | Type | Description | Class CD | Sub Class CD | Year Built | Area |
| | BAS | BASE/MAIN FLOOR | 3 | 0 | 1951 | 1568.0 |
| | OWP | OPEN WOOD PORCH W/STEPS | 3 | 0 | 1951 | 128.0 |
| | OWR | OPEN WOOD PORCH W/STEPS/ROOF | 3 | 0 | 1951 | 120.0 |
| | DGR | DETACHED GARAGE | 3 | 0 | 1951 | 336.0 |
Sketch
Property Image
Land
| 1 | HS | HOMESITE | 0.9500 | 41382.00 | 0.00 | 0.00 | 1.00 | $220,000 | $0 |
Roll Value History
| 2026 | N/A | N/A | N/A | N/A | N/A |
| 2025 | $185,166 | $220,000 | $0 | $405,166 | $405,166 |
| 2024 | $188,291 | $210,000 | $0 | $398,291 | $398,291 |
| 2023 | $191,417 | $200,000 | $0 | $391,417 | $391,417 |
| 2022 | $176,166 | $200,000 | $0 | $376,166 | $376,166 |
| 2021 | $155,644 | $150,000 | $0 | $305,644 | $305,644 |
| 2020 | $152,286 | $120,000 | $0 | $272,286 | $272,286 |
| 2019 | $110,524 | $150,000 | $0 | $260,524 | $260,524 |
| 2018 | $67,453 | $140,000 | $0 | $207,453 | $207,453 |
| 2017 | $68,243 | $120,000 | $0 | $188,243 | $188,243 |
| 2016 | $69,830 | $90,000 | $0 | $159,830 | $159,830 |
| 2015 | $71,417 | $90,000 | $0 | $161,417 | $161,417 |
| 2014 | $73,005 | $90,000 | $0 | $163,005 | $163,005 |
| 2013 | $74,592 | $102,000 | $0 | $176,592 | $176,592 |
| 2012 | $76,770 | $102,000 | $0 | $178,770 | $178,770 |
| 2011 | $78,281 | $120,000 | $0 | $198,281 | $198,281 |
| 2010 | $90,140 | $120,000 | $0 | $210,140 | $210,140 |
| 2009 | $94,390 | $105,000 | $0 | $199,390 | $199,390 |
| 2008 | $96,039 | $90,000 | $0 | $186,039 | $186,039 |
| 2007 | $97,689 | $90,000 | $0 | $187,689 | $187,689 |
Deed and Sales History
| 1 | 05/30/2019 | WD | Warranty Deed | RECTOR, GEORGE A | DAVIS, SEAN W | | | $300,000.00 | 38793 | 4464589 |
| 2 | 10/26/2005 | QCD | Quit Claim Deed | RECTOR, GEORGE A | RECTOR, GEORGE A | | | $3,100.00 | 70705 | 4138173 |
| 3 | 06/01/1993 | QCD | Quit Claim Deed | RECTOR, GEORGE | RECTOR, GEORGE A | | | $0.00 | 32845 | 93014627 |
| 4 | 01/01/1900 | OTHER | Other - Misc. Documents | Unknown | RECTOR, GEORGE | | | $0.00 | 0 | 0 |
Payout Agreement
| No payout information available.. |