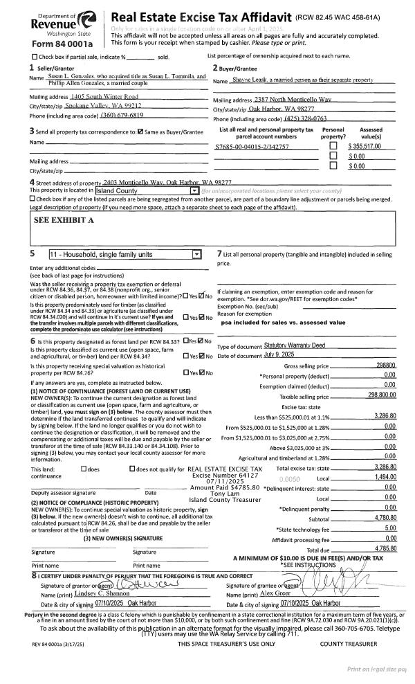
Property
Account |
| Property ID: | 247307 | Abbreviated Legal Description: | DRIFTWOOD SH LOT 48 FMLY TL 156-7-31-3 |
| Geographic ID: | S6510-00-00048-0 | Agent Code: | |
| Type: | Real | | |
| Tax Area: | 510 - APPRAISER-Stan/Cam Schl Dist, improved & 1 acre or less | Land Use Code | 11 |
| Open Space: | N | DFL | N |
| Historic Property: | N | Remodel Property: | N |
| Multi-Family Redevelopment: | N | | |
| Township: | | Section: | |
| Range: | |
Location |
| Address: | 116 DRIFTWOOD SHORES RD CAMANO ISLAND, WA 98282 | Mapsco: | |
| Neighborhood: | Cycle 5 | Map ID: | 923 |
| Neighborhood CD: | 5 |
Owner |
| Name: | MCMAHAN, CAROL M | Owner ID: | 315010 |
| Mailing Address: | 7924 - 178TH ST NW STANWOOD, WA 98292 | % Ownership: | 100.0000000000% |
| | | Exemptions: | |
Taxes and Assessment Details
Values
| (+) Improvement Homesite Value: | + | $0 | |
| (+) Improvement Non-Homesite Value: | + | $177,631 | |
| (+) Land Homesite Value: | + | $0 | |
| (+) Land Non-Homesite Value: | + | $700,000 | |
| (+) Curr Use (HS): | + | $0 | $0 |
| (+) Curr Use (NHS): | + | $0 | $0 |
| | | -------------------------- | |
| (=) Market Value: | = | $877,631 | |
| (–) Productivity Loss: | – | $0 | |
| | | -------------------------- | |
| (=) Subtotal: | = | $877,631 | |
| (+) Senior Appraised Value: | + | $0 | |
| (+) Non-Senior Appraised Value: | + | $877,631 | |
| | | -------------------------- | |
| (=) Total Appraised Value: | = | $877,631 | |
| (–) Senior Exemption Loss: | – | $0 | |
| (–) Exemption Loss: | – | $0 | |
| | | -------------------------- | |
| (=) Taxable Value: | = | $877,631 | |
Taxing Jurisdiction
| Owner: | MCMAHAN, CAROL M | | |
| % Ownership: | 100.0000000000% | | |
| Total Value: | $877,631 | | |
| Tax Area: | 510 - APPRAISER-Stan/Cam Schl Dist, improved & 1 acre or less |
| CF | Conservation Futures | 0.0316035091 | $877,631 | $877,631 | $27.74 | | |
| EMS1 | Fire & Rescue Dist #1 Camano GEN (EMS) | 0.3677864386 | $877,631 | $877,631 | $322.78 | | |
| FIRE1 | Fire & Rescue Dist #1 Camano GEN | 1.2502910536 | $877,631 | $877,631 | $1,097.29 | | |
| FIRE1BOND | Fire & Rescue Dist #1 Camano BOND | 0.1570001679 | $877,631 | $877,631 | $137.79 | | |
| CE | County Current Expense | 0.3708482477 | $877,631 | $877,631 | $325.47 | | |
| CR | County Roads | 0.4584763726 | $877,631 | $877,631 | $402.37 | | |
| LCIB | Library Sno-Isle BOND (Camano Island) | 0.0396325772 | $877,631 | $877,631 | $34.78 | | |
| LIB | Library Sno-Isle GEN | 0.3153421757 | $877,631 | $877,631 | $276.75 | | |
| SCH205_401 | School 205-401 Enrichment | 1.2698420524 | $877,631 | $877,631 | $1,114.45 | | |
| SCH205BOND | School 205-401 BOND | 0.9396497583 | $877,631 | $877,631 | $824.67 | | |
| ST | State School | 1.3035497053 | $877,631 | $877,631 | $1,144.04 | | |
| ST2 | State School Part 2 | 0.8169543533 | $877,631 | $877,631 | $716.98 | | |
| | Total Tax Rate: | 7.3209764117 | | | | | |
| | | | | Taxes w/Current Exemptions: | $6,425.11 | | |
| | | | | Taxes w/o Exemptions: | $6,425.11 | | |
Improvement / Building
| Improvement #1: | RESIDENTIAL | State Code: | Y | 1461.0 sqft | Value: | $177,631 |
| Bathrooms: | 2 | Bedrooms: | 2 | | Ceiling: | DRYWALL PAINTED | Exterior Wall/Cover: | PLY/HARDBOARD T-111 | | Floor Covering: | CARPET/VINYL 80-20 | Floor Structure: | WOOD W/SUBFLOOR | | Foundation: | CONCRETE | Heating: | FHA ELECTRIC | | Interior Finish: | DRYWALL PAINT | Plumbing Fixture Cnt: | 9 | | Roof Slope: | 3" IN 12" | Roof Structure/Cover: | CJ ASPHALT |
|
| | Type | Description | Class CD | Sub Class CD | Year Built | Area |
| | BAS | BASE/MAIN FLOOR | 3 | 0 | 1968 | 876.0 |
| | BGR | BASEMENT GARAGE | 3 | 0 | 1968 | 273.0 |
| | OWP | OPEN WOOD PORCH W/STEPS | 3 | 0 | 1968 | 293.5 |
| | OWP | OPEN WOOD PORCH W/STEPS | 3 | 0 | 1968 | 57.0 |
| | DWN | DOWNSTAIRS LIVING AREA | 3 | 0 | 1968 | 585.0 |
| | OWP | OPEN WOOD PORCH W/STEPS | 3 | 0 | 1968 | 104.0 |
Sketch
Property Image
Land
| 1 | LB | LOW BANK | 0.0000 | 0.00 | 40.00 | 0.00 | 1.00 | $700,000 | $0 |
Roll Value History
| 2026 | N/A | N/A | N/A | N/A | N/A |
| 2025 | $177,631 | $700,000 | $0 | $877,631 | $877,631 |
| 2024 | $180,438 | $700,000 | $0 | $880,438 | $880,438 |
| 2023 | $183,248 | $630,000 | $0 | $813,248 | $813,248 |
| 2022 | $168,478 | $580,000 | $0 | $748,478 | $748,478 |
| 2021 | $148,217 | $475,000 | $0 | $623,217 | $623,217 |
| 2020 | $144,933 | $400,000 | $0 | $544,933 | $544,933 |
| 2019 | $106,137 | $400,000 | $0 | $506,137 | $506,137 |
| 2018 | $106,538 | $350,000 | $0 | $456,538 | $456,538 |
| 2017 | $107,340 | $300,000 | $0 | $407,340 | $407,340 |
| 2016 | $108,942 | $300,000 | $0 | $408,942 | $408,942 |
| 2015 | $82,188 | $300,000 | $0 | $382,188 | $382,188 |
| 2014 | $83,657 | $300,000 | $0 | $383,657 | $383,657 |
| 2013 | $85,123 | $277,200 | $0 | $362,323 | $362,323 |
| 2012 | $86,591 | $277,200 | $0 | $363,791 | $363,791 |
| 2011 | $88,058 | $346,500 | $0 | $434,558 | $434,558 |
| 2010 | $96,838 | $346,500 | $0 | $443,338 | $443,338 |
| 2009 | $101,284 | $409,981 | $0 | $511,265 | $511,265 |
| 2008 | $102,779 | $436,432 | $0 | $539,211 | $539,211 |
| 2007 | $104,274 | $386,560 | $0 | $490,834 | $490,834 |
Deed and Sales History
| 1 | 03/17/2021 | TOD | Transfer On Death Deed | WITTIG, CLIFFORD W | MCMAHAN, CAROL M | | | $0.00 | 62213 | 4514164 |
| 2 | 04/18/2018 | QCD | Quit Claim Deed | WITTIG, CLIFFORD W | WITTIG, CLIFFORD W | | | $255,000.00 | 33848 | 4443347 |
| 3 | 03/01/1996 | QCD | Quit Claim Deed | WITTIG, W E | WITTIG, CLIFFORD W | | | $0.00 | 61015 | 96005198 |
| 4 | 01/01/1900 | OTHER | Other - Misc. Documents | Unknown | WITTIG, W E | | | $0.00 | 0 | 0 |
Payout Agreement
| No payout information available.. |