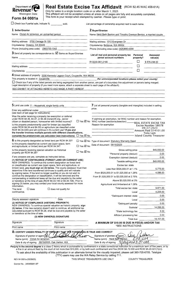
Property
Account |
| Property ID: | 247423 | Abbreviated Legal Description: | DUG BAY HTS 1 LOT 8 BLK 1 INCL ADJ TIDES |
| Geographic ID: | S6515-00-01008-0 | Agent Code: | |
| Type: | Real | | |
| Tax Area: | 110 - APPRAISER-OH Schl Dist, outside OH, improved & 1 acre or less | Land Use Code | 11 |
| Open Space: | N | DFL | N |
| Historic Property: | N | Remodel Property: | N |
| Multi-Family Redevelopment: | N | | |
| Township: | | Section: | |
| Range: | |
Location |
| Address: | 633 BEACON VIEW DR OAK HARBOR, WA 98277 | Mapsco: | |
| Neighborhood: | Cycle 6 | Map ID: | 603 |
| Neighborhood CD: | 6 |
Owner |
| Name: | OWSLEY, DWAIN L | Owner ID: | 155571 |
| Mailing Address: | KAY I OWSLEY TRUSTEES 633 BEACON VIEW DR OAK HARBOR, WA 98277-7704 | % Ownership: | 100.0000000000% |
| | | Exemptions: | |
Taxes and Assessment Details
Values
| (+) Improvement Homesite Value: | + | $0 | |
| (+) Improvement Non-Homesite Value: | + | $325,479 | |
| (+) Land Homesite Value: | + | $0 | |
| (+) Land Non-Homesite Value: | + | $601,000 | |
| (+) Curr Use (HS): | + | $0 | $0 |
| (+) Curr Use (NHS): | + | $0 | $0 |
| | | -------------------------- | |
| (=) Market Value: | = | $926,479 | |
| (–) Productivity Loss: | – | $0 | |
| | | -------------------------- | |
| (=) Subtotal: | = | $926,479 | |
| (+) Senior Appraised Value: | + | $0 | |
| (+) Non-Senior Appraised Value: | + | $926,479 | |
| | | -------------------------- | |
| (=) Total Appraised Value: | = | $926,479 | |
| (–) Senior Exemption Loss: | – | $0 | |
| (–) Exemption Loss: | – | $0 | |
| | | -------------------------- | |
| (=) Taxable Value: | = | $926,479 | |
Taxing Jurisdiction
| Owner: | OWSLEY, DWAIN L | | |
| % Ownership: | 100.0000000000% | | |
| Total Value: | $926,479 | | |
| Tax Area: | 110 - APPRAISER-OH Schl Dist, outside OH, improved & 1 acre or less |
| CF | Conservation Futures | 0.0316035091 | $926,479 | $926,479 | $29.28 | | |
| CEM1 | Cemetery #1 | 0.0040320932 | $926,479 | $926,479 | $3.74 | | |
| FIRE2 | Fire & Rescue Dist #2 N Whidbey GEN | 0.5475949600 | $926,479 | $926,479 | $507.34 | | |
| HOBOND | Hospital BOND | 0.1910887512 | $926,479 | $926,479 | $177.04 | | |
| HOGEN | Hospital GEN | 0.3902502903 | $926,479 | $926,479 | $361.56 | | |
| CE | County Current Expense | 0.3708482477 | $926,479 | $926,479 | $343.58 | | |
| CR | County Roads | 0.4584763726 | $926,479 | $926,479 | $424.77 | | |
| ISLANDEMS | Hospital GEN (EMS) | 0.5000000000 | $926,479 | $926,479 | $463.24 | | |
| LIB | Library Sno-Isle GEN | 0.3153421757 | $926,479 | $926,479 | $292.16 | | |
| NWHIDPRMT | P & R N Whidbey GEN | 0.2004466701 | $926,479 | $926,479 | $185.71 | | |
| SCH201MO | School 201 Enrichment | 1.8559231640 | $926,479 | $926,479 | $1,719.47 | | |
| ST | State School | 1.3035497053 | $926,479 | $926,479 | $1,207.71 | | |
| ST2 | State School Part 2 | 0.8169543533 | $926,479 | $926,479 | $756.89 | | |
| | Total Tax Rate: | 6.9861102925 | | | | | |
| | | | | Taxes w/Current Exemptions: | $6,472.49 | | |
| | | | | Taxes w/o Exemptions: | $6,472.49 | | |
Improvement / Building
| Improvement #1: | RESIDENTIAL | State Code: | Y | 1923.0 sqft | Value: | $325,479 |
| Bathrooms: | 2 | Bedrooms: | 3 | | Ceiling: | DRYWALL PAINTED | Exterior Wall/Cover: | WOOD SIDING | | Floor Covering: | HARDWOOD/CARP 80-20 | Floor Structure: | WOOD W/SUBFLOOR | | Foundation: | CONCRETE | Heating: | FHA GAS | | Interior Finish: | DRYWALL PAINT | Plumbing Fixture Cnt: | 9 | | Roof Slope: | 8" IN 12" | Roof Structure/Cover: | CJ ALUMINIUM HEAVY |
|
| | Type | Description | Class CD | Sub Class CD | Year Built | Area |
| | BAS | BASE/MAIN FLOOR | 3 | 0 | 1953 | 1307.0 |
| | BGR | BASEMENT GARAGE | 3 | 0 | 1953 | 672.0 |
| | OWP | OPEN WOOD PORCH W/STEPS | 3 | 0 | 1953 | 1098.4 |
| | DWN | DOWNSTAIRS LIVING AREA | 3 | 0 | 1953 | 616.0 |
Sketch
Property Image
Land
| 1 | LB | LOW BANK | 0.0000 | 0.00 | 100.00 | 0.00 | 1.00 | $600,000 | $0 |
| 2 | 55 | TIDES | 0.0000 | 0.00 | 100.00 | 0.00 | 1.00 | $1,000 | $0 |
Roll Value History
| 2026 | N/A | N/A | N/A | N/A | N/A |
| 2025 | $325,479 | $601,000 | $0 | $926,479 | $926,479 |
| 2024 | $329,804 | $501,000 | $0 | $830,804 | $830,804 |
| 2023 | $334,129 | $501,000 | $0 | $835,129 | $835,129 |
| 2022 | $298,638 | $481,000 | $0 | $779,638 | $779,638 |
| 2021 | $263,093 | $406,000 | $0 | $669,093 | $669,093 |
| 2020 | $257,183 | $406,000 | $0 | $663,183 | $663,183 |
| 2019 | $196,364 | $421,000 | $0 | $617,364 | $617,364 |
| 2018 | $196,984 | $331,000 | $0 | $527,984 | $527,984 |
| 2017 | $198,223 | $301,000 | $0 | $499,223 | $499,223 |
| 2016 | $137,612 | $301,000 | $0 | $438,612 | $438,612 |
| 2015 | $139,796 | $301,000 | $0 | $440,796 | $440,796 |
| 2014 | $141,980 | $301,000 | $0 | $442,980 | $442,980 |
| 2013 | $144,165 | $326,216 | $0 | $470,381 | $470,381 |
| 2012 | $146,349 | $326,216 | $0 | $472,565 | $472,565 |
| 2011 | $147,459 | $326,216 | $0 | $473,675 | $473,675 |
| 2010 | $172,829 | $326,216 | $0 | $499,045 | $499,045 |
| 2009 | $180,561 | $379,405 | $0 | $559,966 | $559,966 |
| 2008 | $183,519 | $379,405 | $0 | $562,924 | $562,924 |
| 2007 | $186,505 | $378,705 | $0 | $565,210 | $565,210 |
Deed and Sales History
| 1 | 07/23/2004 | WD | Warranty Deed | BAKER, CRAIG S | OWSLEY, DWAIN L | | | $0.00 | 53514 | 4546883 |
| 2 | 07/23/2004 | WD | Warranty Deed | BAKER, CRAIG S | OWSLEY, DWAIN L | | | $379,000.00 | 43355 | 4107772 |
| 3 | 03/01/1998 | WD | Warranty Deed | EDSON, ALAN J | BAKER, CRAIG S | | | $240,000.00 | 80850 | 98004772 |
| 4 | 05/01/1988 | WD | Warranty Deed | CALIENDO, PAT & | EDSON, ALAN J | | | $116,000.00 | 81843 | 88006844 |
| 5 | 12/01/1986 | WD | Warranty Deed | EICHENLAUB, LEON E | CALIENDO, PAT & | | | $103,000.00 | 63743 | 86016663 |
| 6 | 03/01/1986 | WD | Warranty Deed | FLAGG, LINDEL | EICHENLAUB, LEON E | | | $0.00 | 60900 | 86008938 |
| 7 | 08/01/1981 | WD | Warranty Deed | EICHENLAUB, LEON E | FLAGG, LINDEL | | | $125,000.00 | 12670 | 387274 |
| 8 | 01/01/1900 | OTHER | Other - Misc. Documents | Unknown | EICHENLAUB, LEON E | | | $0.00 | 0 | 0 |
Payout Agreement
| No payout information available.. |