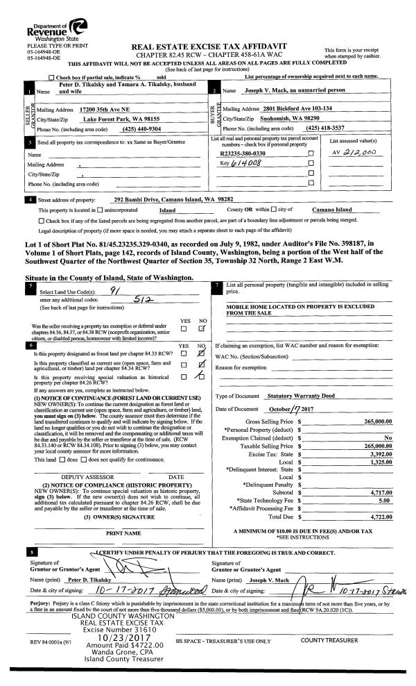
Property
Account |
| Property ID: | 247502 | Abbreviated Legal Description: | DUG BAY HTS 1 LOTS 7 & 8 BLK 2 |
| Geographic ID: | S6515-00-02007-0 | Agent Code: | |
| Type: | Real | | |
| Tax Area: | 110 - APPRAISER-OH Schl Dist, outside OH, improved & 1 acre or less | Land Use Code | 11 |
| Open Space: | N | DFL | N |
| Historic Property: | N | Remodel Property: | N |
| Multi-Family Redevelopment: | N | | |
| Township: | | Section: | |
| Range: | |
Location |
| Address: | 619 MAPLEWOOD LOOP OAK HARBOR, WA 98277 | Mapsco: | |
| Neighborhood: | Cycle 6 | Map ID: | 603 |
| Neighborhood CD: | 6 |
Owner |
| Name: | TANGUTURI, RAMANJANEYULU | Owner ID: | 282980 |
| Mailing Address: | DAWN C KNIGHT 619 MAPLEWOOD LOOP OAK HARBOR, WA 98277 | % Ownership: | 100.0000000000% |
| | | Exemptions: | |
Taxes and Assessment Details
Values
| (+) Improvement Homesite Value: | + | $0 | |
| (+) Improvement Non-Homesite Value: | + | $319,680 | |
| (+) Land Homesite Value: | + | $0 | |
| (+) Land Non-Homesite Value: | + | $260,000 | |
| (+) Curr Use (HS): | + | $0 | $0 |
| (+) Curr Use (NHS): | + | $0 | $0 |
| | | -------------------------- | |
| (=) Market Value: | = | $579,680 | |
| (–) Productivity Loss: | – | $0 | |
| | | -------------------------- | |
| (=) Subtotal: | = | $579,680 | |
| (+) Senior Appraised Value: | + | $0 | |
| (+) Non-Senior Appraised Value: | + | $579,680 | |
| | | -------------------------- | |
| (=) Total Appraised Value: | = | $579,680 | |
| (–) Senior Exemption Loss: | – | $0 | |
| (–) Exemption Loss: | – | $0 | |
| | | -------------------------- | |
| (=) Taxable Value: | = | $579,680 | |
Taxing Jurisdiction
| Owner: | TANGUTURI, RAMANJANEYULU | | |
| % Ownership: | 100.0000000000% | | |
| Total Value: | $579,680 | | |
| Tax Area: | 110 - APPRAISER-OH Schl Dist, outside OH, improved & 1 acre or less |
| CF | Conservation Futures | 0.0316035091 | $579,680 | $579,680 | $18.32 | | |
| CEM1 | Cemetery #1 | 0.0040320932 | $579,680 | $579,680 | $2.34 | | |
| FIRE2 | Fire & Rescue Dist #2 N Whidbey GEN | 0.5475949600 | $579,680 | $579,680 | $317.43 | | |
| HOBOND | Hospital BOND | 0.1910887512 | $579,680 | $579,680 | $110.77 | | |
| HOGEN | Hospital GEN | 0.3902502903 | $579,680 | $579,680 | $226.22 | | |
| CE | County Current Expense | 0.3708482477 | $579,680 | $579,680 | $214.97 | | |
| CR | County Roads | 0.4584763726 | $579,680 | $579,680 | $265.77 | | |
| ISLANDEMS | Hospital GEN (EMS) | 0.5000000000 | $579,680 | $579,680 | $289.84 | | |
| LIB | Library Sno-Isle GEN | 0.3153421757 | $579,680 | $579,680 | $182.80 | | |
| NWHIDPRMT | P & R N Whidbey GEN | 0.2004466701 | $579,680 | $579,680 | $116.19 | | |
| SCH201MO | School 201 Enrichment | 1.8559231640 | $579,680 | $579,680 | $1,075.84 | | |
| ST | State School | 1.3035497053 | $579,680 | $579,680 | $755.64 | | |
| ST2 | State School Part 2 | 0.8169543533 | $579,680 | $579,680 | $473.57 | | |
| | Total Tax Rate: | 6.9861102925 | | | | | |
| | | | | Taxes w/Current Exemptions: | $4,049.70 | | |
| | | | | Taxes w/o Exemptions: | $4,049.70 | | |
Improvement / Building
| Improvement #1: | RESIDENTIAL | State Code: | Y | 2230.0 sqft | Value: | $319,680 |
| Bathrooms: | 2.5 | Bedrooms: | 3 | | Ceiling: | DRYWALL PAINTED | Exterior Wall/Cover: | WOOD SIDING | | Floor Covering: | CARPET/VINYL 80-20 | Floor Structure: | WOOD W/SUBFLOOR | | Foundation: | CONCRETE | Heating: | BASEBOARD ELECTRIC | | Interior Finish: | DRYWALL PAINT | Plumbing Fixture Cnt: | 13 | | Roof Slope: | 4" IN 12" | Roof Structure/Cover: | CJ ALUMINIUM HEAVY |
|
| | Type | Description | Class CD | Sub Class CD | Year Built | Area |
| | BAS | BASE/MAIN FLOOR | 3 | 0 | 1968 | 1684.0 |
| | OP4 | OPEN PORCH W/CEILING-ROOF | 3 | 0 | 1968 | 63.0 |
| | BIG | BUILT IN GARAGE | 3 | 0 | 1968 | 483.0 |
| | UTY | STORAGE/UTILITY | 3 | 0 | 1968 | 192.0 |
| | UPS | UPPER STORY | 3 | 0 | 1968 | 546.0 |
| | OWP | OPEN WOOD PORCH W/STEPS | 3 | 0 | 1968 | 560.5 |
| | OWP | OPEN WOOD PORCH W/STEPS | 3 | 0 | 1968 | 600.4 |
| | OWC | OPEN WOOD PORCH W/STEPS/ROOF/C | 3 | 0 | 1968 | 104.0 |
| | OWC | OPEN WOOD PORCH W/STEPS/ROOF/C | 3 | 0 | 1968 | 78.0 |
| | OWC | OPEN WOOD PORCH W/STEPS/ROOF/C | 3 | 0 | 1968 | 69.0 |
Sketch
Property Image
Land
| 1 | 16 | AC (00.51-01.00) | 0.0000 | 0.00 | 0.00 | 0.00 | 1.00 | $260,000 | $0 |
Roll Value History
| 2026 | N/A | N/A | N/A | N/A | N/A |
| 2025 | $319,680 | $260,000 | $0 | $579,680 | $579,680 |
| 2024 | $330,785 | $220,000 | $0 | $550,785 | $550,785 |
| 2023 | $335,362 | $220,000 | $0 | $555,362 | $555,362 |
| 2022 | $307,826 | $220,000 | $0 | $527,826 | $527,826 |
| 2021 | $271,280 | $170,000 | $0 | $441,280 | $441,280 |
| 2020 | $264,803 | $150,000 | $0 | $414,803 | $414,803 |
| 2019 | $202,719 | $190,000 | $0 | $392,719 | $392,719 |
| 2018 | $203,374 | $180,000 | $0 | $383,374 | $383,374 |
| 2017 | $186,317 | $130,000 | $0 | $316,317 | $316,317 |
| 2016 | $162,921 | $120,000 | $0 | $282,921 | $282,921 |
| 2015 | $165,425 | $130,000 | $0 | $295,425 | $295,425 |
| 2014 | $167,932 | $100,000 | $0 | $267,932 | $267,932 |
| 2013 | $170,442 | $97,750 | $0 | $268,192 | $268,192 |
| 2012 | $172,946 | $97,750 | $0 | $270,696 | $270,696 |
| 2011 | $175,454 | $115,000 | $0 | $290,454 | $290,454 |
| 2010 | $190,374 | $115,000 | $0 | $305,374 | $305,374 |
| 2009 | $199,268 | $140,000 | $0 | $339,268 | $339,268 |
| 2008 | $202,655 | $155,000 | $0 | $357,655 | $357,655 |
| 2007 | $206,005 | $155,000 | $0 | $361,005 | $361,005 |
Deed and Sales History
| 1 | 10/18/2017 | WD | Warranty Deed | SORENSON, CLAIR M | TANGUTURI, RAMANJANEYULU | | | $372,000.00 | 31980 | 4434455 |
| 2 | 04/08/2009 | PRD | Personal Representatives Deed | SORENSON, DWIGHT C | SORENSON, CLAIR M | | | $0.00 | 90797 | 4248674 |
| 3 | 04/01/1993 | QCD | Quit Claim Deed | SORENSON, DWIGHT C | SORENSON, DWIGHT C | | | $0.00 | 31529 | 93007838 |
| 4 | 11/01/1989 | OTHER | Other - Misc. Documents | SORENSON, DWIGHT C | SORENSON, DWIGHT C | | | $0.00 | 63423 | 89017423 |
| 5 | 07/01/1985 | QCD | Quit Claim Deed | SORENSON, DWIGHT C | SORENSON, DWIGHT C | | | $0.00 | 51995 | 85007824 |
| 6 | 01/01/1900 | OTHER | Other - Misc. Documents | Unknown | SORENSON, DWIGHT C | | | $0.00 | 0 | 0 |
Payout Agreement
| No payout information available.. |