Property
Account |
| Property ID: | 24770 | Abbreviated Legal Description: | 9 - S18.66AC OF GL7 EX: BG S693.73' FR NWCR GL7 S236 .27' E665.05' N235.66' W666 .42' TPB TGW AGRICULTURAL EZ AF#4345173/4350570 |
| Geographic ID: | R13222-426-3310 | Agent Code: | |
| Type: | Real | | |
| Tax Area: | 119 - APPRAISER-OH Schl Dist, outside OH, vacant & 50 acres or less | Land Use Code | 83 |
| Open Space: | Y | DFL | N |
| Historic Property: | N | Remodel Property: | N |
| Multi-Family Redevelopment: | N | | |
| Township: | 32 | Section: | 22 |
| Range: | R1 |
Location |
| Address: | | Mapsco: | |
| Neighborhood: | Area 2 Central Commercial | Map ID: | 156 |
| Neighborhood CD: | 2CNT01C |
Owner |
| Name: | MUZZALL, RONALD E | Owner ID: | 196673 |
| Mailing Address: | SHELLY L MUZZALL 938 SCENIC HEIGHTS RD OAK HARBOR, WA 98277-7639 | % Ownership: | 100.0000000000% |
| | | Exemptions: | |
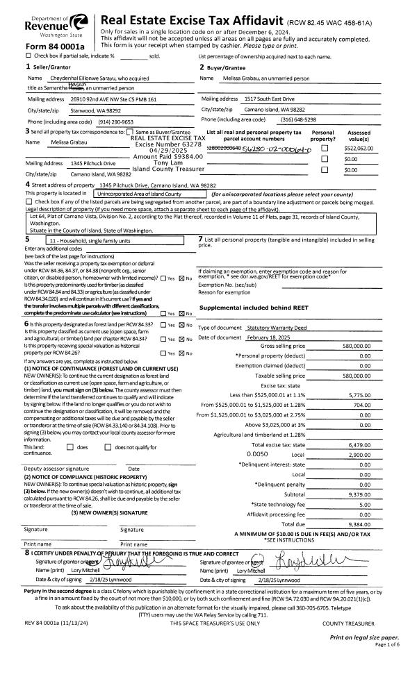
Taxes and Assessment Details
Values
| (+) Improvement Homesite Value: | + | $0 | |
| (+) Improvement Non-Homesite Value: | + | $0 | |
| (+) Land Homesite Value: | + | $0 | |
| (+) Land Non-Homesite Value: | + | $0 | |
| (+) Curr Use (HS): | + | $0 | $0 |
| (+) Curr Use (NHS): | + | $45,180 | $5,542 |
| | | -------------------------- | |
| (=) Market Value: | = | $45,180 | |
| (–) Productivity Loss: | – | $39,638 | |
| | | -------------------------- | |
| (=) Subtotal: | = | $5,542 | |
| (+) Senior Appraised Value: | + | $0 | |
| (+) Non-Senior Appraised Value: | + | $5,542 | |
| | | -------------------------- | |
| (=) Total Appraised Value: | = | $5,542 | |
| (–) Senior Exemption Loss: | – | $0 | |
| (–) Exemption Loss: | – | $0 | |
| | | -------------------------- | |
| (=) Taxable Value: | = | $5,542 | |
Taxing Jurisdiction
| Owner: | MUZZALL, RONALD E | | |
| % Ownership: | 100.0000000000% | | |
| Total Value: | $45,180 | | |
| Tax Area: | 119 - APPRAISER-OH Schl Dist, outside OH, vacant & 50 acres or less |
| CF | Conservation Futures | 0.0316035091 | $5,542 | $5,542 | $0.18 | | |
| CEM1 | Cemetery #1 | 0.0040320932 | $5,542 | $5,542 | $0.02 | | |
| HOBOND | Hospital BOND | 0.1910887512 | $5,542 | $5,542 | $1.06 | | |
| HOGEN | Hospital GEN | 0.3902502903 | $5,542 | $5,542 | $2.16 | | |
| CE | County Current Expense | 0.3708482477 | $5,542 | $5,542 | $2.06 | | |
| CR | County Roads | 0.4584763726 | $5,542 | $5,542 | $2.54 | | |
| ISLANDEMS | Hospital GEN (EMS) | 0.5000000000 | $5,542 | $5,542 | $2.77 | | |
| LIB | Library Sno-Isle GEN | 0.3153421757 | $5,542 | $5,542 | $1.75 | | |
| NWHIDPRMT | P & R N Whidbey GEN | 0.2004466701 | $5,542 | $5,542 | $1.11 | | |
| SCH201MO | School 201 Enrichment | 1.8559231640 | $5,542 | $5,542 | $10.29 | | |
| ST | State School | 1.3035497053 | $5,542 | $5,542 | $7.22 | | |
| ST2 | State School Part 2 | 0.8169543533 | $5,542 | $5,542 | $4.53 | | |
| | Total Tax Rate: | 6.4385153325 | | | | | |
| | | | | Taxes w/Current Exemptions: | $35.69 | | |
| | | | | Taxes w/o Exemptions: | $35.69 | | |
Improvement / Building
Sketch
| No sketches available for this property. |
Property Image
Land
| 1 | 35 | AC (10.00-30.99) | 15.0600 | 656013.60 | 0.00 | 0.00 | 1.00 | $45,180 | $5,542 |
Roll Value History
| 2026 | N/A | N/A | N/A | N/A | N/A |
| 2025 | $0 | $45,180 | $5,542 | $5,542 | $5,542 |
| 2024 | $0 | $45,180 | $5,542 | $5,542 | $5,542 |
| 2023 | $0 | $45,180 | $5,542 | $5,542 | $5,542 |
| 2022 | $0 | $45,180 | $5,542 | $5,542 | $5,542 |
| 2021 | $0 | $45,180 | $5,542 | $5,542 | $5,542 |
| 2020 | $0 | $45,180 | $5,542 | $5,542 | $5,542 |
| 2019 | $0 | $45,180 | $5,542 | $5,542 | $5,542 |
| 2018 | $0 | $45,180 | $5,542 | $5,542 | $5,542 |
| 2017 | $0 | $75,300 | $5,542 | $5,542 | $5,542 |
| 2016 | $0 | $75,300 | $5,542 | $5,542 | $5,542 |
| 2015 | $0 | $82,830 | $5,542 | $5,542 | $5,542 |
| 2014 | $0 | $82,830 | $5,542 | $5,542 | $5,542 |
| 2013 | $0 | $198,792 | $5,542 | $5,542 | $5,542 |
| 2012 | $0 | $198,792 | $5,542 | $5,542 | $5,542 |
| 2011 | $0 | $198,792 | $5,542 | $5,542 | $5,542 |
| 2010 | $0 | $198,792 | $5,542 | $5,542 | $5,542 |
| 2009 | $0 | $198,792 | $5,542 | $5,542 | $5,542 |
| 2008 | $0 | $198,792 | $5,542 | $5,542 | $5,542 |
| 2007 | $0 | $162,648 | $5,542 | $5,542 | $5,542 |
Deed and Sales History
| 1 | 07/05/2013 | EZ | Easement | MUZZALL, RONALD E | MUZZALL, RONALD E | | | $920,000.00 | 12190 | 4345173 |
|   | |
| 2 | 01/01/2006 | WD | Warranty Deed | MUZZALL, ROBERT H | MUZZALL, RONALD E | | | $0.00 | 61711 | 4168142 |
| 3 | 12/01/1997 | WD | Warranty Deed | MUZZALL, ROBERT H | MUZZALL, ROBERT H | | | $0.00 | 80167 | 98000768 |
| 4 | 12/01/1997 | WD | Warranty Deed | MUZZALL, ROBERT H | MUZZALL, ROBERT H | | | $0.00 | 80166 | 98000767 |
| 5 | 12/01/1997 | WD | Warranty Deed | MUZZALL, ROBERT H | MUZZALL, ROBERT H | | | $0.00 | 80165 | 98000766 |
| 6 | 12/01/1997 | WD | Warranty Deed | MUZZALL, ROBERT H | MUZZALL, ROBERT H | | | $0.00 | 80164 | 98000765 |
| 7 | 12/01/1996 | WD | Warranty Deed | MUZZALL, ROBERT H | MUZZALL, ROBERT H | | | $0.00 | 64546 | 96022033 |
| 8 | 12/01/1996 | WD | Warranty Deed | MUZZALL, ROBERT H | MUZZALL, ROBERT H | | | $0.00 | 64547 | 96022032 |
| 9 | 12/01/1996 | WD | Warranty Deed | MUZZALL, ROBERT H | MUZZALL, ROBERT H | | | $0.00 | 64548 | 96022031 |
| 10 | 12/01/1996 | WD | Warranty Deed | MUZZALL, ROBERT H | MUZZALL, ROBERT H | | | $0.00 | 64549 | 96022030 |
| 11 | 01/01/1996 | WD | Warranty Deed | MUZZALL, ROBERT H | MUZZALL, ROBERT H | | | $0.00 | 60016 | 96000077 |
| 12 | 01/01/1996 | WD | Warranty Deed | MUZZALL, ROBERT H | MUZZALL, ROBERT H | | | $0.00 | 60015 | 96000076 |
| 13 | 01/01/1996 | WD | Warranty Deed | MUZZALL, ROBERT H | MUZZALL, ROBERT H | | | $0.00 | 60014 | 96000075 |
| 14 | 12/01/1995 | WD | Warranty Deed | MUZZALL, ROBERT H | MUZZALL, ROBERT H | | | $0.00 | 60013 | 96000074 |
| 15 | 12/01/1994 | WD | Warranty Deed | MUZZALL, ROBERT H | MUZZALL, ROBERT H | | | $0.00 | 45164 | 94026230 |
| 16 | 12/01/1994 | WD | Warranty Deed | MUZZALL, ROBERT H | MUZZALL, ROBERT H | | | $0.00 | 45171 | 94026233 |
| 17 | 12/01/1994 | WD | Warranty Deed | MUZZALL, ROBERT H | MUZZALL, ROBERT H | | | $0.00 | 45170 | 94026232 |
| 18 | 12/01/1994 | WD | Warranty Deed | MUZZALL, ROBERT H | MUZZALL, ROBERT H | | | $0.00 | 45169 | 94026231 |
| 19 | 12/01/1993 | WD | Warranty Deed | MUZZALL, ROBERT H | MUZZALL, ROBERT H | | | $0.00 | 45163 | 94026229 |
| 20 | 12/01/1993 | WD | Warranty Deed | MUZZALL, ROBERT H | MUZZALL, ROBERT H | | | $0.00 | 45161 | 94026227 |
| 21 | 12/01/1993 | WD | Warranty Deed | MUZZALL, ROBERT H | MUZZALL, ROBERT H | | | $0.00 | 45162 | 94026228 |
| 22 | 12/01/1993 | WD | Warranty Deed | MUZZALL, ROBERT H | MUZZALL, ROBERT H | | | $0.00 | 45159 | 94026226 |
| 23 | 01/01/1993 | WD | Warranty Deed | MUZZALL, ROBERT H | MUZZALL, ROBERT H | | | $0.00 | 30192 | 93001335 |
| 24 | 01/01/1993 | WD | Warranty Deed | MUZZALL, ROBERT H | MUZZALL, ROBERT H | | | $0.00 | 30194 | 93001336 |
| 25 | 01/01/1993 | WD | Warranty Deed | MUZZALL, ROBERT H | MUZZALL, ROBERT H | | | $0.00 | 30195 | 93001337 |
| 26 | 01/01/1993 | WD | Warranty Deed | MUZZALL, ROBERT H | MUZZALL, ROBERT H | | | $0.00 | 30196 | 93001338 |
| 27 | 01/01/1992 | WD | Warranty Deed | MUZZALL, ROBERT H | MUZZALL, ROBERT H | | | $0.00 | 20051 | 92000156 |
| 28 | 12/01/1991 | WD | Warranty Deed | MUZZALL, ROBERT H | MUZZALL, ROBERT H | | | $0.00 | 20050 | 92000155 |
| 29 | 03/01/1991 | WD | Warranty Deed | MUZZALL, ROBERT H | MUZZALL, ROBERT H | | | $0.00 | 10783 | 91003492 |
| 30 | 03/01/1991 | WD | Warranty Deed | MUZZALL, ROBERT H | MUZZALL, ROBERT H | | | $0.00 | 10784 | 91003493 |
| 31 | 03/01/1991 | WD | Warranty Deed | MUZZALL, ROBERT H | MUZZALL, ROBERT H | | | $0.00 | 10785 | 91003494 |
| 32 | 03/01/1991 | WD | Warranty Deed | MUZZALL, ROBERT H | MUZZALL, ROBERT H | | | $0.00 | 10786 | 91003495 |
| 33 | 12/01/1989 | WD | Warranty Deed | MUZZALL, ROBERT H | MUZZALL, ROBERT H | | | $0.00 | 10779 | 91003488 |
| 34 | 12/01/1989 | WD | Warranty Deed | MUZZALL, ROBERT H | MUZZALL, ROBERT H | | | $0.00 | 10780 | 91003489 |
| 35 | 12/01/1989 | WD | Warranty Deed | MUZZALL, ROBERT H | MUZZALL, ROBERT H | | | $0.00 | 10781 | 91003490 |
| 36 | 12/01/1989 | WD | Warranty Deed | MUZZALL, ROBERT H | MUZZALL, ROBERT H | | | $0.00 | 10782 | 91003491 |
| 37 | 12/01/1988 | WD | Warranty Deed | MUZZALL, ROBERT H | MUZZALL, ROBERT H | | | $0.00 | 10775 | 91003484 |
| 38 | 12/01/1988 | WD | Warranty Deed | MUZZALL, ROBERT H | MUZZALL, ROBERT H | | | $0.00 | 10776 | 91003485 |
| 39 | 12/01/1988 | WD | Warranty Deed | MUZZALL, ROBERT H | MUZZALL, ROBERT H | | | $0.00 | 10777 | 91003486 |
| 40 | 12/01/1988 | WD | Warranty Deed | MUZZALL, ROBERT H | MUZZALL, ROBERT H | | | $0.00 | 10778 | 91003487 |
| 41 | 12/01/1987 | WD | Warranty Deed | MUZZALL, ROBERT H | MUZZALL, ROBERT H | | | $0.00 | 10771 | 91003480 |
| 42 | 12/01/1987 | WD | Warranty Deed | MUZZALL, ROBERT H | MUZZALL, ROBERT H | | | $0.00 | 10772 | 91003481 |
| 43 | 12/01/1987 | WD | Warranty Deed | MUZZALL, ROBERT H | MUZZALL, ROBERT H | | | $0.00 | 10773 | 91003482 |
| 44 | 12/01/1987 | WD | Warranty Deed | MUZZALL, ROBERT H | MUZZALL, ROBERT H | | | $0.00 | 10774 | 91003483 |
| 45 | 01/01/1900 | OTHER | Other - Misc. Documents | Unknown | MUZZALL, ROBERT H | | | $0.00 | 0 | 0 |
Payout Agreement
| No payout information available.. |