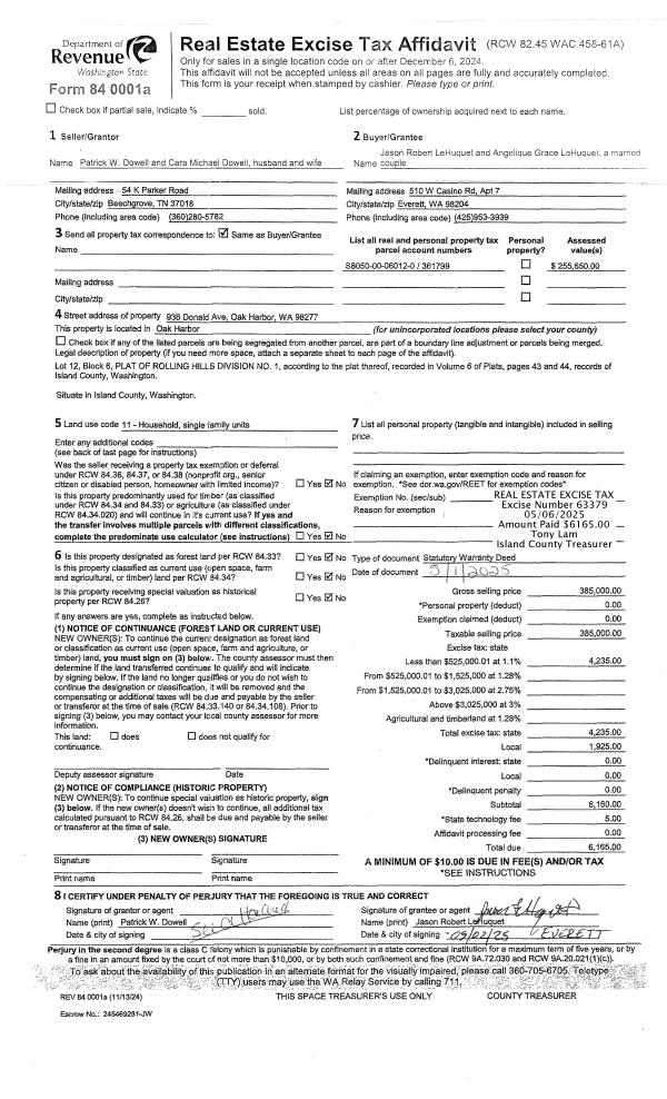
Property
Account |
| Property ID: | 24976 | Abbreviated Legal Description: | 6 - S125'OF N950'OF LOT 2 LESS RD EX W200' TGW EZ |
| Geographic ID: | R13223-307-0450 | Agent Code: | |
| Type: | Real | | |
| Tax Area: | 112 - APPRAISER-OH Schl Dist, outside OH, improved, greater than 1 acre | Land Use Code | 11 |
| Open Space: | N | DFL | N |
| Historic Property: | N | Remodel Property: | N |
| Multi-Family Redevelopment: | N | | |
| Township: | 32 | Section: | 23 |
| Range: | R1 |
Location |
| Address: | 1034 CLIFF VIEW LN OAK HARBOR, WA 98277 | Mapsco: | |
| Neighborhood: | Area 2 Waterfront Eastside Res | Map ID: | 157 |
| Neighborhood CD: | 2WFTE01R |
Owner |
| Name: | 1034 PROPERTY HOLDING, LLC | Owner ID: | 315578 |
| Mailing Address: | 287 HARRINGTON RD COUPEVILLE, WA 98239 | % Ownership: | 100.0000000000% |
| | | Exemptions: | |
Taxes and Assessment Details
Values
| (+) Improvement Homesite Value: | + | $0 | |
| (+) Improvement Non-Homesite Value: | + | $382,330 | |
| (+) Land Homesite Value: | + | $0 | |
| (+) Land Non-Homesite Value: | + | $550,000 | |
| (+) Curr Use (HS): | + | $0 | $0 |
| (+) Curr Use (NHS): | + | $0 | $0 |
| | | -------------------------- | |
| (=) Market Value: | = | $932,330 | |
| (–) Productivity Loss: | – | $0 | |
| | | -------------------------- | |
| (=) Subtotal: | = | $932,330 | |
| (+) Senior Appraised Value: | + | $0 | |
| (+) Non-Senior Appraised Value: | + | $932,330 | |
| | | -------------------------- | |
| (=) Total Appraised Value: | = | $932,330 | |
| (–) Senior Exemption Loss: | – | $0 | |
| (–) Exemption Loss: | – | $0 | |
| | | -------------------------- | |
| (=) Taxable Value: | = | $932,330 | |
Taxing Jurisdiction
| Owner: | 1034 PROPERTY HOLDING, LLC | | |
| % Ownership: | 100.0000000000% | | |
| Total Value: | $932,330 | | |
| Tax Area: | 112 - APPRAISER-OH Schl Dist, outside OH, improved, greater than 1 acre |
| CF | Conservation Futures | 0.0316035091 | $932,330 | $932,330 | $29.46 | | |
| CEM1 | Cemetery #1 | 0.0040320932 | $932,330 | $932,330 | $3.76 | | |
| FIRE2 | Fire & Rescue Dist #2 N Whidbey GEN | 0.5475949600 | $932,330 | $932,330 | $510.54 | | |
| HOBOND | Hospital BOND | 0.1910887512 | $932,330 | $932,330 | $178.16 | | |
| HOGEN | Hospital GEN | 0.3902502903 | $932,330 | $932,330 | $363.84 | | |
| CE | County Current Expense | 0.3708482477 | $932,330 | $932,330 | $345.75 | | |
| CR | County Roads | 0.4584763726 | $932,330 | $932,330 | $427.45 | | |
| ISLANDEMS | Hospital GEN (EMS) | 0.5000000000 | $932,330 | $932,330 | $466.17 | | |
| LIB | Library Sno-Isle GEN | 0.3153421757 | $932,330 | $932,330 | $294.00 | | |
| NWHIDPRMT | P & R N Whidbey GEN | 0.2004466701 | $932,330 | $932,330 | $186.88 | | |
| SCH201MO | School 201 Enrichment | 1.8559231640 | $932,330 | $932,330 | $1,730.33 | | |
| ST | State School | 1.3035497053 | $932,330 | $932,330 | $1,215.34 | | |
| ST2 | State School Part 2 | 0.8169543533 | $932,330 | $932,330 | $761.67 | | |
| | Total Tax Rate: | 6.9861102925 | | | | | |
| | | | | Taxes w/Current Exemptions: | $6,513.35 | | |
| | | | | Taxes w/o Exemptions: | $6,513.35 | | |
Improvement / Building
| Improvement #1: | RESIDENTIAL | State Code: | Y | 1909.0 sqft | Value: | $382,330 |
| Bathrooms: | 2 | Bedrooms: | 2 | | Ceiling: | TONGUE & GROOVE | Cooling: | HEAT PUMP/CONV/V | | Exterior Wall/Cover: | VINYL | Floor Covering: | CERAMIC TILE/CPT 40-60 | | Floor Structure: | WOOD W/SUBFLOOR | Foundation: | CONCRETE | | Interior Finish: | DRYWALL PAINT | Plumbing Fixture Cnt: | 9 | | Roof Slope: | FLAT | Roof Structure/Cover: | BEAM BUILT-UP ROCK |
|
| | Type | Description | Class CD | Sub Class CD | Year Built | Area |
| | BAS | BASE/MAIN FLOOR | 3 | 0 | 1962 | 1909.0 |
| | OP1 | OPEN PORCH SLAB | 3 | 0 | 1962 | 1721.0 |
| | UTY | STORAGE/UTILITY | 3 | 0 | 1962 | 108.0 |
| | UTY | STORAGE/UTILITY | 3 | 0 | 1962 | 120.0 |
| | DGR | DETACHED GARAGE | 3 | 0 | 1962 | 1800.0 |
| | OCP | OPEN CARPORT | 3 | 0 | 1962 | 530.0 |
Sketch
Property Image
Land
| 1 | HB | HIGH BLUFF | 0.0000 | 0.00 | 125.00 | 0.00 | 1.00 | $550,000 | $0 |
Roll Value History
| 2026 | N/A | N/A | N/A | N/A | N/A |
| 2025 | $382,330 | $550,000 | $0 | $932,330 | $932,330 |
| 2024 | $356,927 | $525,000 | $0 | $881,927 | $881,927 |
| 2023 | $362,007 | $525,000 | $0 | $887,007 | $887,007 |
| 2022 | $332,406 | $500,000 | $0 | $832,406 | $832,406 |
| 2021 | $293,045 | $300,000 | $0 | $593,045 | $593,045 |
| 2020 | $286,606 | $300,000 | $0 | $586,606 | $586,606 |
| 2019 | $218,268 | $250,000 | $0 | $468,268 | $468,268 |
| 2018 | $143,265 | $250,000 | $0 | $393,265 | $393,265 |
| 2017 | $144,421 | $250,000 | $0 | $394,421 | $394,421 |
| 2016 | $146,728 | $250,000 | $0 | $396,728 | $396,728 |
| 2015 | $149,037 | $250,000 | $0 | $399,037 | $399,037 |
| 2014 | $151,344 | $250,000 | $0 | $401,344 | $401,344 |
| 2013 | $153,652 | $266,141 | $0 | $419,793 | $419,793 |
| 2012 | $155,418 | $266,141 | $0 | $421,559 | $421,559 |
| 2011 | $157,808 | $266,141 | $0 | $423,949 | $423,949 |
| 2010 | $170,993 | $266,141 | $0 | $437,134 | $437,134 |
| 2009 | $179,648 | $332,677 | $0 | $512,325 | $512,325 |
| 2008 | $183,874 | $325,116 | $0 | $508,990 | $508,990 |
| 2007 | $188,104 | $332,677 | $0 | $520,781 | $520,781 |
Deed and Sales History
| 1 | 02/11/2025 | QCD | Quit Claim Deed | WALLGREN, EDWARD J | 1034 PROPERTY HOLDING, LLC | | | $0.00 | 62658 | 4582635 |
| 2 | 01/01/1900 | OTHER | Other - Misc. Documents | Unknown | WALLGREN, EDWARD J | | | $0.00 | 0 | 0 |
Payout Agreement
| No payout information available.. |