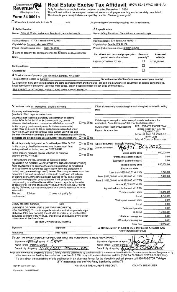
Property
Account |
| Property ID: | 25001 | Abbreviated Legal Description: | 8 - IN GL2: BG NWCR GL2 S500' TPB E474.91' S72.42' S11*W158.19' S97.61' W443 .15' N325' TPB EX RD 29MD574 A39191 TGW EZ (TR D SURVEY AF#150360) |
| Geographic ID: | R13223-330-0270 | Agent Code: | |
| Type: | Real | | |
| Tax Area: | 112 - APPRAISER-OH Schl Dist, outside OH, improved, greater than 1 acre | Land Use Code | 11 |
| Open Space: | N | DFL | N |
| Historic Property: | N | Remodel Property: | N |
| Multi-Family Redevelopment: | N | | |
| Township: | 32 | Section: | 23 |
| Range: | R1 |
Location |
| Address: | | Mapsco: | |
| Neighborhood: | Cycle 2 | Map ID: | 157 |
| Neighborhood CD: | 2 |
Owner |
| Name: | WILSON, FREDERIC B | Owner ID: | 274217 |
| Mailing Address: | MARILYN J WILSON 1050 CLIFF VIEW LN OAK HARBOR, WA 98277 | % Ownership: | 100.0000000000% |
| | | Exemptions: | |
Taxes and Assessment Details
Values
| (+) Improvement Homesite Value: | + | $0 | |
| (+) Improvement Non-Homesite Value: | + | $4,148 | |
| (+) Land Homesite Value: | + | $0 | |
| (+) Land Non-Homesite Value: | + | $135,013 | |
| (+) Curr Use (HS): | + | $0 | $0 |
| (+) Curr Use (NHS): | + | $0 | $0 |
| | | -------------------------- | |
| (=) Market Value: | = | $139,161 | |
| (–) Productivity Loss: | – | $0 | |
| | | -------------------------- | |
| (=) Subtotal: | = | $139,161 | |
| (+) Senior Appraised Value: | + | $0 | |
| (+) Non-Senior Appraised Value: | + | $139,161 | |
| | | -------------------------- | |
| (=) Total Appraised Value: | = | $139,161 | |
| (–) Senior Exemption Loss: | – | $0 | |
| (–) Exemption Loss: | – | $0 | |
| | | -------------------------- | |
| (=) Taxable Value: | = | $139,161 | |
Taxing Jurisdiction
| Owner: | WILSON, FREDERIC B | | |
| % Ownership: | 100.0000000000% | | |
| Total Value: | $139,161 | | |
| Tax Area: | 112 - APPRAISER-OH Schl Dist, outside OH, improved, greater than 1 acre |
| CF | Conservation Futures | 0.0316035091 | $139,161 | $139,161 | $4.40 | | |
| CEM1 | Cemetery #1 | 0.0040320932 | $139,161 | $139,161 | $0.56 | | |
| FIRE2 | Fire & Rescue Dist #2 N Whidbey GEN | 0.5475949600 | $139,161 | $139,161 | $76.20 | | |
| HOBOND | Hospital BOND | 0.1910887512 | $139,161 | $139,161 | $26.59 | | |
| HOGEN | Hospital GEN | 0.3902502903 | $139,161 | $139,161 | $54.31 | | |
| CE | County Current Expense | 0.3708482477 | $139,161 | $139,161 | $51.61 | | |
| CR | County Roads | 0.4584763726 | $139,161 | $139,161 | $63.80 | | |
| ISLANDEMS | Hospital GEN (EMS) | 0.5000000000 | $139,161 | $139,161 | $69.58 | | |
| LIB | Library Sno-Isle GEN | 0.3153421757 | $139,161 | $139,161 | $43.88 | | |
| NWHIDPRMT | P & R N Whidbey GEN | 0.2004466701 | $139,161 | $139,161 | $27.89 | | |
| SCH201MO | School 201 Enrichment | 1.8559231640 | $139,161 | $139,161 | $258.27 | | |
| ST | State School | 1.3035497053 | $139,161 | $139,161 | $181.40 | | |
| ST2 | State School Part 2 | 0.8169543533 | $139,161 | $139,161 | $113.69 | | |
| | Total Tax Rate: | 6.9861102925 | | | | | |
| | | | | Taxes w/Current Exemptions: | $972.18 | | |
| | | | | Taxes w/o Exemptions: | $972.18 | | |
Improvement / Building
| Improvement #1: | RESIDENTIAL | State Code: | Y | 0.0 sqft | Value: | $4,148 |
| | Type | Description | Class CD | Sub Class CD | Year Built | Area |
| | oSIT | Site Improvements | 1 | 0 | 1900 | 0.0 |
| | oPUM | PUMP HOUSE | 1 | 0 | 1900 | 0.0 |
Sketch
| No sketches available for this property. |
Property Image
Land
| 1 | 91 | UNDEVELOPED LAND-METES AND BOUNDS | 3.3200 | 144619.20 | 0.00 | 0.00 | 1.00 | $135,013 | $0 |
Roll Value History
| 2026 | N/A | N/A | N/A | N/A | N/A |
| 2025 | $4,148 | $135,013 | $0 | $139,161 | $139,161 |
| 2024 | $4,148 | $150,000 | $0 | $154,148 | $154,148 |
| 2023 | $4,148 | $140,000 | $0 | $144,148 | $144,148 |
| 2022 | $4,148 | $135,000 | $0 | $139,148 | $139,148 |
| 2021 | $4,148 | $130,000 | $0 | $134,148 | $134,148 |
| 2020 | $4,148 | $120,000 | $0 | $124,148 | $124,148 |
| 2019 | $4,148 | $150,000 | $0 | $154,148 | $154,148 |
| 2018 | $4,148 | $150,000 | $0 | $154,148 | $154,148 |
| 2017 | $4,148 | $170,000 | $0 | $174,148 | $174,148 |
| 2016 | $4,148 | $100,000 | $0 | $104,148 | $104,148 |
| 2015 | $4,148 | $100,000 | $0 | $104,148 | $104,148 |
| 2014 | $4,148 | $100,000 | $0 | $104,148 | $104,148 |
| 2013 | $4,148 | $80,676 | $0 | $84,824 | $84,824 |
| 2012 | $4,148 | $80,676 | $0 | $84,824 | $84,824 |
| 2011 | $4,148 | $89,640 | $0 | $93,788 | $93,788 |
| 2010 | $4,148 | $89,640 | $0 | $93,788 | $93,788 |
| 2009 | $4,148 | $106,240 | $0 | $110,388 | $110,388 |
| 2008 | $4,148 | $137,389 | $0 | $141,537 | $141,537 |
| 2007 | $4,148 | $113,544 | $0 | $117,692 | $117,692 |
Deed and Sales History
| 1 | 03/25/2016 | WD | Warranty Deed | COFFIN, BARBARA A | WILSON, FREDERIC B | | | $75,000.00 | 23694 | 4396611 |
| 2 | 10/01/1988 | DECREE | Divorce Decree/Legal Separation | COFFIN, JOHN C | COFFIN, BARBARA A | | | $0.00 | 83472 | 88012974 |
| 3 | 08/01/1975 | TRUSTEED | Trustee's Deed | ROBERTSON, JOHN J | COFFIN, JOHN C | | | $0.00 | 55955 | 0 |
| 4 | 01/01/1900 | OTHER | Other - Misc. Documents | Unknown | ROBERTSON, JOHN J | | | $0.00 | 0 | 0 |
Payout Agreement
| No payout information available.. |