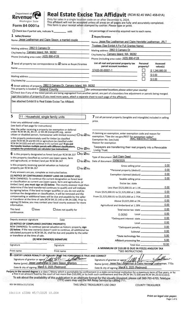
Property
Account |
| Property ID: | 25065 | Abbreviated Legal Description: | 10 - S300' OF N737' OF GL1 |
| Geographic ID: | R13223-470-0630 | Agent Code: | |
| Type: | Real | | |
| Tax Area: | 112 - APPRAISER-OH Schl Dist, outside OH, improved, greater than 1 acre | Land Use Code | 11 |
| Open Space: | N | DFL | N |
| Historic Property: | N | Remodel Property: | N |
| Multi-Family Redevelopment: | N | | |
| Township: | 32 | Section: | 23 |
| Range: | R1 |
Location |
| Address: | 1156 SCENIC HEIGHTS RD OAK HARBOR, WA 98277 | Mapsco: | |
| Neighborhood: | Area 2 Waterfront Eastside Res | Map ID: | 157 |
| Neighborhood CD: | 2WFTE01R |
Owner |
| Name: | CHESTNUT PRESERVE LLC | Owner ID: | 307831 |
| Mailing Address: | 1156 SCENIC HEIGHTS RD OAK HARBOR, WA 98277 | % Ownership: | 100.0000000000% |
| | | Exemptions: | |
Taxes and Assessment Details
Values
| (+) Improvement Homesite Value: | + | $0 | |
| (+) Improvement Non-Homesite Value: | + | $277,500 | |
| (+) Land Homesite Value: | + | $0 | |
| (+) Land Non-Homesite Value: | + | $630,000 | |
| (+) Curr Use (HS): | + | $0 | $0 |
| (+) Curr Use (NHS): | + | $0 | $0 |
| | | -------------------------- | |
| (=) Market Value: | = | $907,500 | |
| (–) Productivity Loss: | – | $0 | |
| | | -------------------------- | |
| (=) Subtotal: | = | $907,500 | |
| (+) Senior Appraised Value: | + | $0 | |
| (+) Non-Senior Appraised Value: | + | $907,500 | |
| | | -------------------------- | |
| (=) Total Appraised Value: | = | $907,500 | |
| (–) Senior Exemption Loss: | – | $0 | |
| (–) Exemption Loss: | – | $0 | |
| | | -------------------------- | |
| (=) Taxable Value: | = | $907,500 | |
Taxing Jurisdiction
| Owner: | CHESTNUT PRESERVE LLC | | |
| % Ownership: | 100.0000000000% | | |
| Total Value: | $907,500 | | |
| Tax Area: | 112 - APPRAISER-OH Schl Dist, outside OH, improved, greater than 1 acre |
| CF | Conservation Futures | 0.0316035091 | $907,500 | $907,500 | $28.68 | | |
| CEM1 | Cemetery #1 | 0.0040320932 | $907,500 | $907,500 | $3.66 | | |
| FIRE2 | Fire & Rescue Dist #2 N Whidbey GEN | 0.5475949600 | $907,500 | $907,500 | $496.94 | | |
| HOBOND | Hospital BOND | 0.1910887512 | $907,500 | $907,500 | $173.41 | | |
| HOGEN | Hospital GEN | 0.3902502903 | $907,500 | $907,500 | $354.15 | | |
| CE | County Current Expense | 0.3708482477 | $907,500 | $907,500 | $336.54 | | |
| CR | County Roads | 0.4584763726 | $907,500 | $907,500 | $416.07 | | |
| ISLANDEMS | Hospital GEN (EMS) | 0.5000000000 | $907,500 | $907,500 | $453.75 | | |
| LIB | Library Sno-Isle GEN | 0.3153421757 | $907,500 | $907,500 | $286.17 | | |
| NWHIDPRMT | P & R N Whidbey GEN | 0.2004466701 | $907,500 | $907,500 | $181.91 | | |
| SCH201MO | School 201 Enrichment | 1.8559231640 | $907,500 | $907,500 | $1,684.25 | | |
| ST | State School | 1.3035497053 | $907,500 | $907,500 | $1,182.97 | | |
| ST2 | State School Part 2 | 0.8169543533 | $907,500 | $907,500 | $741.39 | | |
| | Total Tax Rate: | 6.9861102925 | | | | | |
| | | | | Taxes w/Current Exemptions: | $6,339.89 | | |
| | | | | Taxes w/o Exemptions: | $6,339.89 | | |
Improvement / Building
| Improvement #1: | RESIDENTIAL | State Code: | Y | 2100.0 sqft | Value: | $277,500 |
| Bathrooms: | 1 | Bedrooms: | 2 | | Ceiling: | DRYWALL PAINTED | Exterior Wall/Cover: | WOOD SIDING | | Floor Covering: | CARPET/VINYL 60-40 | Floor Structure: | WOOD W/SUBFLOOR | | Foundation: | CONCRETE | Heating: | FHA GAS | | Interior Finish: | DRYWALL PAINT | Plumbing Fixture Cnt: | 6 | | Roof Slope: | 5" IN 12" | Roof Structure/Cover: | CJ ASPHALT |
|
| | Type | Description | Class CD | Sub Class CD | Year Built | Area |
| | BAS | BASE/MAIN FLOOR | 3 | 0 | 1955 | 2100.0 |
| | UTY | STORAGE/UTILITY | 3 | 0 | 1955 | 864.0 |
| | CPD | OPEN CARPORT DIRT FLOOR | 3 | 0 | 1955 | 672.0 |
Sketch
Property Image
Land
| 1 | HB | HIGH BLUFF | 8.8000 | 383328.00 | 300.00 | 0.00 | 1.00 | $630,000 | $0 |
Roll Value History
| 2026 | N/A | N/A | N/A | N/A | N/A |
| 2025 | $277,500 | $630,000 | $0 | $907,500 | $907,500 |
| 2024 | $281,189 | $600,000 | $0 | $881,189 | $881,189 |
| 2023 | $284,876 | $700,000 | $0 | $984,876 | $984,876 |
| 2022 | $261,283 | $715,000 | $0 | $976,283 | $976,283 |
| 2021 | $210,253 | $550,000 | $0 | $760,253 | $760,253 |
| 2020 | $206,534 | $550,000 | $0 | $756,534 | $756,534 |
| 2019 | $59,242 | $600,000 | $0 | $659,242 | $659,242 |
| 2018 | $99,654 | $600,000 | $0 | $699,654 | $699,654 |
| 2017 | $100,594 | $600,000 | $0 | $700,594 | $700,594 |
| 2016 | $102,476 | $600,000 | $0 | $702,476 | $632,476 |
| 2015 | $104,359 | $600,000 | $0 | $704,359 | $634,359 |
| 2014 | $106,244 | $600,000 | $0 | $706,244 | $706,244 |
| 2013 | $108,125 | $546,123 | $0 | $654,248 | $654,248 |
| 2012 | $113,246 | $546,123 | $0 | $659,369 | $659,369 |
| 2011 | $115,180 | $546,123 | $0 | $661,303 | $661,303 |
| 2010 | $132,527 | $546,123 | $0 | $678,650 | $678,650 |
| 2009 | $137,007 | $682,655 | $0 | $819,662 | $819,662 |
| 2008 | $139,937 | $741,299 | $0 | $881,236 | $881,236 |
| 2007 | $142,948 | $710,733 | $0 | $853,681 | $853,681 |
Deed and Sales History
| 1 | 03/02/2023 | QCD | Quit Claim Deed | ASHER TTEE, ELIZABETH A | CHESTNUT PRESERVE LLC | | | $0.00 | 56006 | 4557310 |
| 2 | 10/13/2020 | WD | Warranty Deed | EASTWICK, JOYCE M | ASHER TTEE, ELIZABETH A | | | $860,000.00 | 45231 | 4499438 |
| 3 | 04/09/2018 | WD | Warranty Deed | MARTIN, M E | EASTWICK, JOYCE M | | | $658,000.00 | 33632 | 4442408 |
| 4 | 07/01/1991 | QCD | Quit Claim Deed | MARTIN, MARGE E | MARTIN, MARGARET E | | | $0.00 | 12525 | 91010746 |
| 5 | 01/01/1900 | OTHER | Other - Misc. Documents | MARTIN, MARGARET E | MARTIN, M E | | | $0.00 | 0 | 0 |
| 6 | 01/01/1900 | OTHER | Other - Misc. Documents | Unknown | MARTIN, MARGE E | | | $0.00 | 0 | 0 |
Payout Agreement
| No payout information available.. |