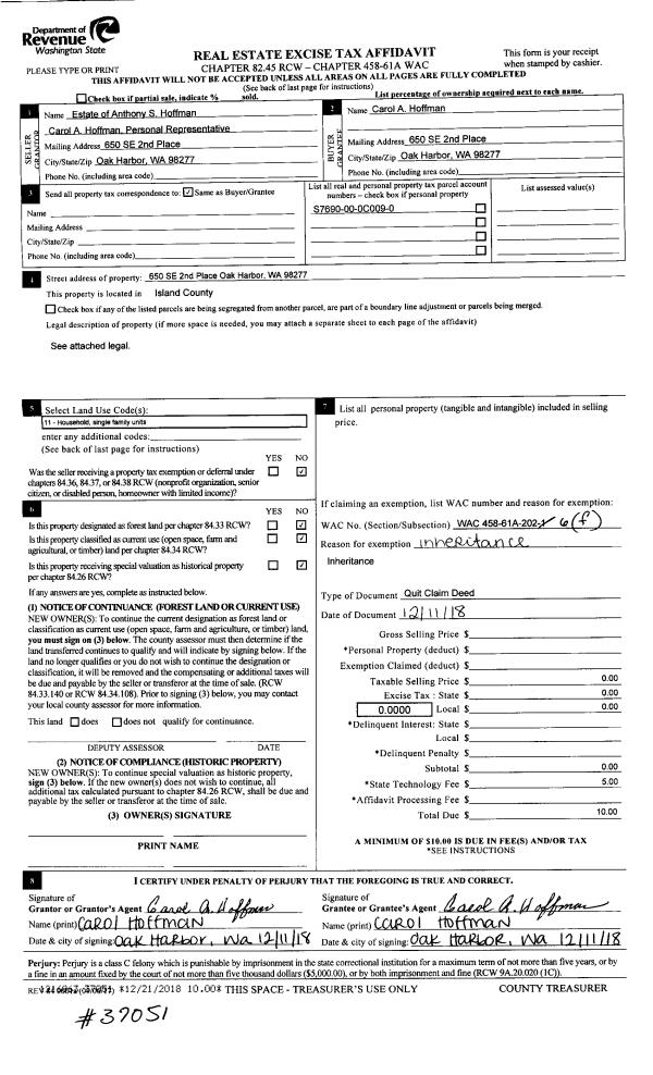
Property
Account |
| Property ID: | 250695 | Abbreviated Legal Description: | EAST HILL LOT 1 |
| Geographic ID: | S6535-00-00001-0 | Agent Code: | |
| Type: | Real | | |
| Tax Area: | 100 - APPRAISER-OH Schl Dist, in OH | Land Use Code | 11 |
| Open Space: | N | DFL | N |
| Historic Property: | N | Remodel Property: | N |
| Multi-Family Redevelopment: | N | | |
| Township: | | Section: | |
| Range: | |
Location |
| Address: | 1980 NE 8TH AVE OAK HARBOR, WA 98277 | Mapsco: | |
| Neighborhood: | Cycle 1 | Map ID: | 262 |
| Neighborhood CD: | 1 |
Owner |
| Name: | SILLAVAN, STEVEN | Owner ID: | 288855 |
| Mailing Address: | PATRISHA SILLAVAN 4491 VANDERWELL RD OAK HARBOR, WA 98277 | % Ownership: | 100.0000000000% |
| | | Exemptions: | |
Taxes and Assessment Details
Values
| (+) Improvement Homesite Value: | + | $0 | |
| (+) Improvement Non-Homesite Value: | + | $205,961 | |
| (+) Land Homesite Value: | + | $0 | |
| (+) Land Non-Homesite Value: | + | $180,000 | |
| (+) Curr Use (HS): | + | $0 | $0 |
| (+) Curr Use (NHS): | + | $0 | $0 |
| | | -------------------------- | |
| (=) Market Value: | = | $385,961 | |
| (–) Productivity Loss: | – | $0 | |
| | | -------------------------- | |
| (=) Subtotal: | = | $385,961 | |
| (+) Senior Appraised Value: | + | $0 | |
| (+) Non-Senior Appraised Value: | + | $385,961 | |
| | | -------------------------- | |
| (=) Total Appraised Value: | = | $385,961 | |
| (–) Senior Exemption Loss: | – | $0 | |
| (–) Exemption Loss: | – | $0 | |
| | | -------------------------- | |
| (=) Taxable Value: | = | $385,961 | |
Taxing Jurisdiction
| Owner: | SILLAVAN, STEVEN | | |
| % Ownership: | 100.0000000000% | | |
| Total Value: | $385,961 | | |
| Tax Area: | 100 - APPRAISER-OH Schl Dist, in OH |
| CF | Conservation Futures | 0.0316035091 | $385,961 | $385,961 | $12.20 | | |
| CEM1 | Cemetery #1 | 0.0040320932 | $385,961 | $385,961 | $1.56 | | |
| COH | City of Oak Harbor | 2.3001546061 | $385,961 | $385,961 | $887.77 | | |
| OAKBOND | City of Oak Harbor BOND | 0.1926904192 | $385,961 | $385,961 | $74.37 | | |
| HOBOND | Hospital BOND | 0.1910887512 | $385,961 | $385,961 | $73.75 | | |
| HOGEN | Hospital GEN | 0.3902502903 | $385,961 | $385,961 | $150.62 | | |
| CE | County Current Expense | 0.3708482477 | $385,961 | $385,961 | $143.13 | | |
| ISLANDEMS | Hospital GEN (EMS) | 0.5000000000 | $385,961 | $385,961 | $192.98 | | |
| LIB | Library Sno-Isle GEN | 0.3153421757 | $385,961 | $385,961 | $121.71 | | |
| NWHIDPRMT | P & R N Whidbey GEN | 0.2004466701 | $385,961 | $385,961 | $77.36 | | |
| SCH201MO | School 201 Enrichment | 1.8559231640 | $385,961 | $385,961 | $716.31 | | |
| ST | State School | 1.3035497053 | $385,961 | $385,961 | $503.12 | | |
| ST2 | State School Part 2 | 0.8169543533 | $385,961 | $385,961 | $315.31 | | |
| | Total Tax Rate: | 8.4728839852 | | | | | |
| | | | | Taxes w/Current Exemptions: | $3,270.19 | | |
| | | | | Taxes w/o Exemptions: | $3,270.19 | | |
Improvement / Building
| Improvement #1: | RESIDENTIAL | State Code: | Y | 1508.0 sqft | Value: | $205,961 |
| Bathrooms: | 1.5 | Bedrooms: | 2 | | Ceiling: | DRYWALL PAINTED | Exterior Wall/Cover: | WOOD SIDING | | Floor Covering: | CARPET/VINYL 80-20 | Floor Structure: | WOOD W/SUBFLOOR | | Foundation: | CONCRETE | Heating: | FHA GAS | | Interior Finish: | DRYWALL PAINT | Plumbing Fixture Cnt: | 8 | | Roof Slope: | 4" IN 12" | Roof Structure/Cover: | CJ ASPHALT |
|
| | Type | Description | Class CD | Sub Class CD | Year Built | Area |
| | BAS | BASE/MAIN FLOOR | 3 | 0 | 1960 | 1508.0 |
| | OP1 | OPEN PORCH SLAB | 3 | 0 | 1960 | 280.0 |
| | OP3 | OPEN PORCH W/ROOF | 3 | 0 | 1960 | 20.0 |
Sketch
Property Image
Land
| 1 | 14 | SQ (08001-12000) | 0.0000 | 0.00 | 0.00 | 0.00 | 1.00 | $180,000 | $0 |
Roll Value History
| 2026 | N/A | N/A | N/A | N/A | N/A |
| 2025 | $205,961 | $180,000 | $0 | $385,961 | $385,961 |
| 2024 | $208,892 | $170,000 | $0 | $378,892 | $378,892 |
| 2023 | $193,419 | $170,000 | $0 | $363,419 | $363,419 |
| 2022 | $177,670 | $160,000 | $0 | $337,670 | $337,670 |
| 2021 | $156,700 | $125,000 | $0 | $281,700 | $281,700 |
| 2020 | $153,115 | $100,000 | $0 | $253,115 | $253,115 |
| 2019 | $111,014 | $140,000 | $0 | $251,014 | $251,014 |
| 2018 | $109,748 | $125,000 | $0 | $234,748 | $234,748 |
| 2017 | $75,034 | $110,000 | $0 | $185,034 | $185,034 |
| 2016 | $76,571 | $90,000 | $0 | $166,571 | $166,571 |
| 2015 | $78,109 | $80,000 | $0 | $158,109 | $158,109 |
| 2014 | $79,644 | $80,000 | $0 | $159,644 | $159,644 |
| 2013 | $81,181 | $80,000 | $0 | $161,181 | $161,181 |
| 2012 | $82,717 | $70,000 | $0 | $152,717 | $152,717 |
| 2011 | $79,597 | $80,000 | $0 | $159,597 | $159,597 |
| 2010 | $91,322 | $80,000 | $0 | $171,322 | $171,322 |
| 2009 | $95,565 | $80,000 | $0 | $175,565 | $175,565 |
| 2008 | $97,149 | $97,000 | $0 | $194,149 | $194,149 |
| 2007 | $98,733 | $97,000 | $0 | $195,733 | $195,733 |
Deed and Sales History
| 1 | 02/19/2019 | WD | Warranty Deed | SECRETARY OF VETERANS AFFAIRS | SILLAVAN, STEVEN | | | $220,000.00 | 37649 | 4459516 |
| 2 | 06/11/2018 | WD | Warranty Deed | CITIMORTGAGE, INC | SECRETARY OF VETERANS AFFAIRS | | | $0.00 | 34615 | 4446540 |
| 3 | 04/11/2018 | SHERIFFD | Sheriff Deed | CARTER, DONNA L | CITIMORTGAGE, INC | | | $0.00 | 34053 | 4444214 |
| 4 | 01/18/2012 | | | CANTER, NELSON G | CARTER, DONNA L | | | | 82275 | 4308047 |
| 5 | 01/09/2009 | TRUSTEED | Trustee's Deed | GERMAN, BERNARD S | CANTER, NELSON G | | | $204,500.00 | 90129 | 4243153 |
| 6 | 01/01/1900 | OTHER | Other - Misc. Documents | Unknown | GERMAN, BERNARD S | | | $0.00 | 0 | 0 |
Payout Agreement
| No payout information available.. |