Property
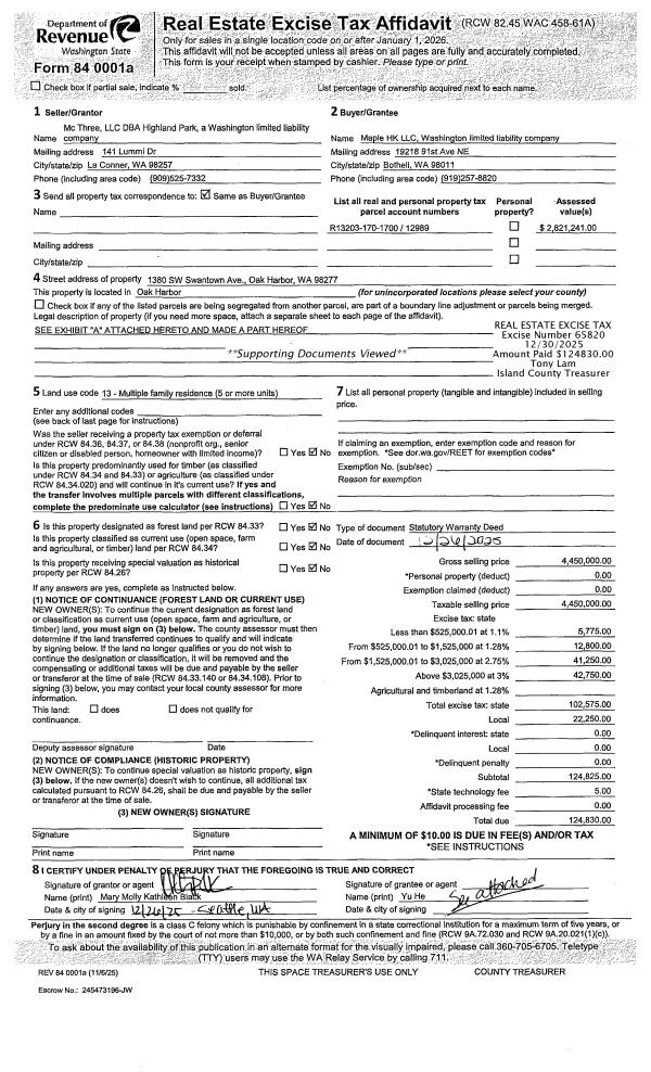
Account |
| Property ID: | 25127 | Abbreviated Legal Description: | 11 - IN GL1 SEC 26 & GL4 SEC 35: BG CM INTER E/W SEC LN BETW SECS 26 & 35 & WLN KINETH DLC W100' S100' W623 TPB W75' N230' M/L TO ML NELY ALG ML TP N OF TPB S290' M/L TPB EX BG NWCR GL4 SEC 35 S89*E ALG NLN SD GL4 209.73' S60.00' TPB S28.00' W17.96' N28 |
| Geographic ID: | R13226-003-1600 | Agent Code: | |
| Type: | Real | | |
| Tax Area: | 310 - APPRAISER-Cpvl Schl Dist, outside Cpvl, improved & 1 acre or less | Land Use Code | 11 |
| Open Space: | N | DFL | N |
| Historic Property: | N | Remodel Property: | N |
| Multi-Family Redevelopment: | N | | |
| Township: | 32 | Section: | 26 |
| Range: | R1 |
Location |
| Address: | 659 INDIAN HILL RD COUPEVILLE, WA 98239 | Mapsco: | |
| Neighborhood: | Area 2 Waterfront Eastside Res | Map ID: | 158 |
| Neighborhood CD: | 2WFTE01R |
Owner |
| Name: | MERKEL, CHADWICK T | Owner ID: | 304862 |
| Mailing Address: | 14744 SOUTHEAST 83RD PLACE NEWCASTLE, WA 98059 | % Ownership: | 100.0000000000% |
| | | Exemptions: | |
Taxes and Assessment Details
Values
| (+) Improvement Homesite Value: | + | $0 | |
| (+) Improvement Non-Homesite Value: | + | $455,668 | |
| (+) Land Homesite Value: | + | $0 | |
| (+) Land Non-Homesite Value: | + | $575,000 | |
| (+) Curr Use (HS): | + | $0 | $0 |
| (+) Curr Use (NHS): | + | $0 | $0 |
| | | -------------------------- | |
| (=) Market Value: | = | $1,030,668 | |
| (–) Productivity Loss: | – | $0 | |
| | | -------------------------- | |
| (=) Subtotal: | = | $1,030,668 | |
| (+) Senior Appraised Value: | + | $0 | |
| (+) Non-Senior Appraised Value: | + | $1,030,668 | |
| | | -------------------------- | |
| (=) Total Appraised Value: | = | $1,030,668 | |
| (–) Senior Exemption Loss: | – | $0 | |
| (–) Exemption Loss: | – | $0 | |
| | | -------------------------- | |
| (=) Taxable Value: | = | $1,030,668 | |
Taxing Jurisdiction
| Owner: | MERKEL, CHADWICK T | | |
| % Ownership: | 100.0000000000% | | |
| Total Value: | $1,030,668 | | |
| Tax Area: | 310 - APPRAISER-Cpvl Schl Dist, outside Cpvl, improved & 1 acre or less |
| CF | Conservation Futures | 0.0316035091 | $1,030,668 | $1,030,668 | $32.57 | | |
| CEM2 | Cemetery #2 | 0.0095056933 | $1,030,668 | $1,030,668 | $9.80 | | |
| FIRE5 | Fire & Rescue Dist #5 C Whidbey GEN | 1.2008080668 | $1,030,668 | $1,030,668 | $1,237.63 | | |
| FIRE5BOND | Fire & Rescue Dist #5 C Whidbey BOND | 0.1400090713 | $1,030,668 | $1,030,668 | $144.30 | | |
| HOBOND | Hospital BOND | 0.1910887512 | $1,030,668 | $1,030,668 | $196.95 | | |
| HOGEN | Hospital GEN | 0.3902502903 | $1,030,668 | $1,030,668 | $402.22 | | |
| CE | County Current Expense | 0.3708482477 | $1,030,668 | $1,030,668 | $382.22 | | |
| CR | County Roads | 0.4584763726 | $1,030,668 | $1,030,668 | $472.54 | | |
| ISLANDEMS | Hospital GEN (EMS) | 0.5000000000 | $1,030,668 | $1,030,668 | $515.33 | | |
| LIB | Library Sno-Isle GEN | 0.3153421757 | $1,030,668 | $1,030,668 | $325.01 | | |
| LIBCAP | Library Sno-Isle BOND (Cap Fac Imp Area) | 0.0543427938 | $1,030,668 | $1,030,668 | $56.01 | | |
| POCOUP | Port of Coupeville GEN | 0.1093371703 | $1,030,668 | $1,030,668 | $112.69 | | |
| POCOUPIDD | Port of Coupeville IDD | 0.3409740022 | $1,030,668 | $1,030,668 | $351.43 | | |
| COUPSDTECH | School 204 CP (TECH) | 0.7545480007 | $1,030,668 | $1,030,668 | $777.69 | | |
| SCH204MO | School 204 Enrichment | 0.6716186034 | $1,030,668 | $1,030,668 | $692.22 | | |
| ST | State School | 1.3035497053 | $1,030,668 | $1,030,668 | $1,343.53 | | |
| ST2 | State School Part 2 | 0.8169543533 | $1,030,668 | $1,030,668 | $842.01 | | |
| | Total Tax Rate: | 7.6592568070 | | | | | |
| | | | | Taxes w/Current Exemptions: | $7,894.15 | | |
| | | | | Taxes w/o Exemptions: | $7,894.15 | | |
Improvement / Building
| Improvement #1: | RESIDENTIAL | State Code: | Y | 2730.0 sqft | Value: | $455,668 |
| Bathrooms: | 2.5 | Bedrooms: | 3 | | Ceiling: | DRYWALL PAINTED | Cooling: | HEAT PUMP/CONV/V | | Exterior Wall/Cover: | WOOD SIDING | Floor Covering: | CARPET/VINYL 80-20 | | Floor Structure: | WOOD W/SUBFLOOR | Foundation: | CONCRETE | | Interior Finish: | DRYWALL PAINT | Plumbing Fixture Cnt: | 14 | | Roof Slope: | 4" IN 12" | Roof Structure/Cover: | CJ ASPHALT |
|
| | Type | Description | Class CD | Sub Class CD | Year Built | Area |
| | BAS | BASE/MAIN FLOOR | 4 | 0 | 1982 | 1365.0 |
| | OP1 | OPEN PORCH SLAB | 4 | 0 | 1982 | 140.0 |
| | OP1 | OPEN PORCH SLAB | 4 | 0 | 1982 | 140.0 |
| | OWP | OPEN WOOD PORCH W/STEPS | 4 | 0 | 1982 | 536.0 |
| | DWN | DOWNSTAIRS LIVING AREA | 4 | 0 | 1982 | 1365.0 |
| | DGR | DETACHED GARAGE | 4 | 0 | 1982 | 398.0 |
| | OP4 | OPEN PORCH W/CEILING-ROOF | 4 | 0 | 1982 | 45.0 |
Sketch
Property Image
Land
| 1 | MB | MEDIUM BANK | 0.0000 | 0.00 | 75.00 | 0.00 | 1.00 | $575,000 | $0 |
Roll Value History
| 2026 | N/A | N/A | N/A | N/A | N/A |
| 2025 | $455,668 | $575,000 | $0 | $1,030,668 | $1,030,668 |
| 2024 | $439,250 | $550,000 | $0 | $989,250 | $989,250 |
| 2023 | $444,723 | $550,000 | $0 | $994,723 | $994,723 |
| 2022 | $319,257 | $515,000 | $0 | $834,257 | $834,257 |
| 2021 | $281,402 | $450,000 | $0 | $731,402 | $731,402 |
| 2020 | $274,883 | $425,000 | $0 | $699,883 | $699,883 |
| 2019 | $215,688 | $475,000 | $0 | $690,688 | $690,688 |
| 2018 | $209,828 | $475,000 | $0 | $684,828 | $684,828 |
| 2017 | $211,256 | $450,000 | $0 | $661,256 | $661,256 |
| 2016 | $214,113 | $450,000 | $0 | $664,113 | $664,113 |
| 2015 | $216,966 | $450,000 | $0 | $666,966 | $666,966 |
| 2014 | $219,820 | $450,000 | $0 | $669,820 | $669,820 |
| 2013 | $222,677 | $451,843 | $0 | $674,520 | $674,520 |
| 2012 | $206,291 | $451,843 | $0 | $658,134 | $658,134 |
| 2011 | $209,005 | $451,843 | $0 | $660,848 | $660,848 |
| 2010 | $220,881 | $451,843 | $0 | $672,724 | $672,724 |
| 2009 | $233,018 | $543,708 | $0 | $776,725 | $776,725 |
| 2008 | $239,713 | $546,258 | $0 | $785,971 | $785,971 |
| 2007 | $240,050 | $546,258 | $0 | $786,308 | $786,308 |
Deed and Sales History
| 1 | 06/16/2022 | WD | Warranty Deed | DAIGNEAULT, DONALD ALBERT | MERKEL, CHADWICK T | | | $1,400,000.00 | 53571 | 4547104 |
| 2 | 01/22/2020 | WD | Warranty Deed | WILSON, CHARLES E | DAIGNEAULT, DONALD ALBERT | | | $719,000.00 | 41925 | 4480241 |
| 3 | 05/19/2008 | BLA | DNU - Boundary Line Adjustment | WILSON, CHARLES E | WILSON, CHARLES E | | | $0.00 | 80751 | 4177722 |
| 4 | 08/18/2006 | QCD | Quit Claim Deed | WILSON, CHARLES E | WILSON, CHARLES E | | | $3,350.00 | 63590 | 4179441 |
| 5 | 12/31/1998 | WD | Warranty Deed | WILSON, CHARLES E | WILSON, CHARLES E | | | $0.00 | 91780 | 99013001 |
| 6 | 12/15/1998 | QCD | Quit Claim Deed | WILSON, CHARLES E | WILSON, CHARLES E | | | $0.00 | 90082 | 99000520 |
| 7 | 03/01/1993 | WD | Warranty Deed | WILSON, CHARLES E | WILSON, CHARLES E | | | $0.00 | 30682 | 93003548 |
| 8 | 09/01/1990 | WD | Warranty Deed | DAVIS, ROBERT | WILSON, CHARLES E | | | $269,500.00 | 5374 | 90017925 |
| 9 | 01/01/1900 | OTHER | Other - Misc. Documents | Unknown | DAVIS, ROBERT | | | $0.00 | 0 | 0 |
Payout Agreement
| No payout information available.. |