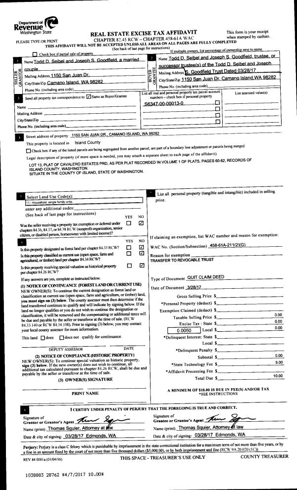
Property
Account |
| Property ID: | 25403 | Abbreviated Legal Description: | 31 LANSDALE DC - BG N89*E16 .43' & N574.95' FR NWCR BARSTOW DLC S198.27' S89*E 186.04' TPB S89*E180' N8*W 243.19' N87*W99.54' S10*W 248.46' TPB |
| Geographic ID: | R13230-061-2190 | Agent Code: | |
| Type: | Real | | |
| Tax Area: | 330 - APPRAISER-Cpvl Schl Dist, Special Dist, improved & less than 1 acre | Land Use Code | 11 |
| Open Space: | N | DFL | N |
| Historic Property: | N | Remodel Property: | N |
| Multi-Family Redevelopment: | N | | |
| Township: | 32 | Section: | 30 |
| Range: | R1 |
Location |
| Address: | 2230 KENNEDY LAGOON CT COUPEVILLE, WA 98239 | Mapsco: | |
| Neighborhood: | Cycle 2 | Map ID: | 162 |
| Neighborhood CD: | 2 |
Owner |
| Name: | BENTON TTEE, HEIDI B | Owner ID: | 316801 |
| Mailing Address: | TIMOTHY O BENTON TTEE 2230 KENNEDY LAGOON CT #1 COUPEVILLE, WA 98239 | % Ownership: | 100.0000000000% |
| | | Exemptions: | |
Taxes and Assessment Details
Values
| (+) Improvement Homesite Value: | + | $0 | |
| (+) Improvement Non-Homesite Value: | + | $252,777 | |
| (+) Land Homesite Value: | + | $507,000 | |
| (+) Land Non-Homesite Value: | + | $0 | |
| (+) Curr Use (HS): | + | $0 | $0 |
| (+) Curr Use (NHS): | + | $0 | $0 |
| | | -------------------------- | |
| (=) Market Value: | = | $759,777 | |
| (–) Productivity Loss: | – | $0 | |
| | | -------------------------- | |
| (=) Subtotal: | = | $759,777 | |
| (+) Senior Appraised Value: | + | $0 | |
| (+) Non-Senior Appraised Value: | + | $759,777 | |
| | | -------------------------- | |
| (=) Total Appraised Value: | = | $759,777 | |
| (–) Senior Exemption Loss: | – | $0 | |
| (–) Exemption Loss: | – | $0 | |
| | | -------------------------- | |
| (=) Taxable Value: | = | $759,777 | |
Taxing Jurisdiction
| Owner: | BENTON TTEE, HEIDI B | | |
| % Ownership: | 100.0000000000% | | |
| Total Value: | $759,777 | | |
| Tax Area: | 330 - APPRAISER-Cpvl Schl Dist, Special Dist, improved & less than 1 acre |
| CF | Conservation Futures | 0.0316035091 | $759,777 | $759,777 | $24.01 | | |
| CEM2 | Cemetery #2 | 0.0095056933 | $759,777 | $759,777 | $7.22 | | |
| FIRE2 | Fire & Rescue Dist #2 N Whidbey GEN | 0.5475949600 | $759,777 | $759,777 | $416.05 | | |
| HOBOND | Hospital BOND | 0.1910887512 | $759,777 | $759,777 | $145.18 | | |
| HOGEN | Hospital GEN | 0.3902502903 | $759,777 | $759,777 | $296.50 | | |
| CE | County Current Expense | 0.3708482477 | $759,777 | $759,777 | $281.76 | | |
| CR | County Roads | 0.4584763726 | $759,777 | $759,777 | $348.34 | | |
| ISLANDEMS | Hospital GEN (EMS) | 0.5000000000 | $759,777 | $759,777 | $379.89 | | |
| LIB | Library Sno-Isle GEN | 0.3153421757 | $759,777 | $759,777 | $239.59 | | |
| LIBCAP | Library Sno-Isle BOND (Cap Fac Imp Area) | 0.0543427938 | $759,777 | $759,777 | $41.29 | | |
| POCOUP | Port of Coupeville GEN | 0.1093371703 | $759,777 | $759,777 | $83.07 | | |
| POCOUPIDD | Port of Coupeville IDD | 0.3409740022 | $759,777 | $759,777 | $259.06 | | |
| COUPSDTECH | School 204 CP (TECH) | 0.7545480007 | $759,777 | $759,777 | $573.29 | | |
| SCH204MO | School 204 Enrichment | 0.6716186034 | $759,777 | $759,777 | $510.28 | | |
| ST | State School | 1.3035497053 | $759,777 | $759,777 | $990.41 | | |
| ST2 | State School Part 2 | 0.8169543533 | $759,777 | $759,777 | $620.70 | | |
| | Total Tax Rate: | 6.8660346289 | | | | | |
| | | | | Taxes w/Current Exemptions: | $5,216.64 | | |
| | | | | Taxes w/o Exemptions: | $5,216.64 | | |
Improvement / Building
| Improvement #1: | RESIDENTIAL | State Code: | Y | 1792.0 sqft | Value: | $252,777 |
| Bathrooms: | 2.5 | Bedrooms: | 4 | | Ceiling: | TONGUE & GROOVE | Exterior Wall/Cover: | WOOD SIDING | | Floor Covering: | VINYL 100% | Floor Structure: | WOOD W/SUBFLOOR | | Foundation: | CONCRETE | Heating: | BASEBOARD ELECTRIC | | Interior Finish: | DRYWALL PAINT | Plumbing Fixture Cnt: | 11 | | Roof Slope: | 4" IN 12" | Roof Structure/Cover: | BEAM ALUMINUM HEAVY |
|
| | Type | Description | Class CD | Sub Class CD | Year Built | Area |
| | BAS | BASE/MAIN FLOOR | 3 | 0 | 1975 | 896.0 |
| | OP3 | OPEN PORCH W/ROOF | 3 | 0 | 1975 | 105.0 |
| | OWP | OPEN WOOD PORCH W/STEPS | 3 | 0 | 1975 | 210.0 |
| | DWN | DOWNSTAIRS LIVING AREA | 3 | 0 | 1975 | 896.0 |
| | OWP | OPEN WOOD PORCH W/STEPS | 3 | 0 | 1975 | 98.0 |
Sketch
Property Image
Land
| 1 | LB | LOW BANK | 0.8000 | 34848.00 | 100.00 | 0.00 | 1.00 | $507,000 | $0 |
Roll Value History
| 2026 | N/A | N/A | N/A | N/A | N/A |
| 2025 | $252,777 | $507,000 | $0 | $759,777 | $759,777 |
| 2024 | $254,383 | $507,000 | $0 | $761,383 | $761,383 |
| 2023 | $93,238 | $483,000 | $0 | $576,238 | $576,238 |
| 2022 | $85,650 | $460,000 | $0 | $545,650 | $189,250 |
| 2021 | $75,531 | $400,000 | $0 | $475,531 | $189,250 |
| 2020 | $73,124 | $400,000 | $0 | $473,124 | $189,250 |
| 2019 | $48,922 | $450,000 | $0 | $498,922 | $498,922 |
| 2018 | $49,090 | $350,000 | $0 | $399,090 | $399,090 |
| 2017 | $49,424 | $300,000 | $0 | $349,424 | $349,424 |
| 2016 | $100,312 | $300,000 | $0 | $400,312 | $400,312 |
| 2015 | $101,985 | $300,000 | $0 | $401,985 | $401,985 |
| 2014 | $103,656 | $300,000 | $0 | $403,656 | $403,656 |
| 2013 | $105,329 | $297,312 | $0 | $402,641 | $402,641 |
| 2012 | $104,060 | $297,312 | $0 | $401,372 | $401,372 |
| 2011 | $105,738 | $297,312 | $0 | $403,050 | $403,050 |
| 2010 | $120,007 | $297,312 | $0 | $417,319 | $417,319 |
| 2009 | $119,929 | $371,639 | $0 | $491,568 | $491,568 |
| 2008 | $121,774 | $371,639 | $0 | $493,413 | $493,413 |
| 2007 | $98,624 | $371,013 | $0 | $469,637 | $469,637 |
Deed and Sales History
| 1 | 01/09/2025 | QCD | Quit Claim Deed | BENTON, HEIDI B | BENTON TTEE, HEIDI B | | | $0.00 | 63668 | 4586552 |
| 2 | 09/15/2023 | WD | Warranty Deed | LEVERNON, CHRISTI AN | BENTON, HEIDI B | | | $845,000.00 | 58078 | 4565074 |
| 3 | 04/06/2017 | WD | Warranty Deed | LANG, PATRICK J | LEVERNON, CHRISTI AN | | | $390,000.00 | 28755 | 4420239 |
| 4 | 04/01/1994 | WD | Warranty Deed | VERNON, FLORENCE E | LANG, PATRICK J | | | $205,000.00 | 41595 | 94009686 |
| 5 | 09/01/1991 | QCD | Quit Claim Deed | VERNON, FLORENCE E | VERNON, FLORENCE E | | | $0.00 | 24100 | 92019854 |
| 6 | 01/01/1990 | WD | Warranty Deed | PATERSON, JOHN C | VERNON, FLORENCE E | | | $95,500.00 | 771 | 90002498 |
| 7 | 04/01/1985 | OTHER | Other - Misc. Documents | PATERSON, JOHN C | PATERSON, JOHN C | | | $0.00 | 61109 | 0 |
| 8 | 01/01/1900 | OTHER | Other - Misc. Documents | Unknown | PATERSON, JOHN C | | | $0.00 | 0 | 0 |
Payout Agreement
| No payout information available.. |