Property
Account |
| Property ID: | 25467 | Abbreviated Legal Description: | 1 LANSDALE DC - BG PT ON S LN SD DC 1033'E OF SWCR N575' N70*E230.7'TPB N70*E 469.3' N52*E TO WLY CR AYLWARD TR AF#167265 S34*E 101.03'TO SLY CR FISHER TR AF#167263 N75*E TO WLN OLD ST HWY 525 SELY TO JOHNSON TR AF#150262 S82*W TO SECR SHELTON TR AF#70864 |
| Geographic ID: | R13230-075-2870 | Agent Code: | |
| Type: | Real | | |
| Tax Area: | 339 - APPRAISER-Cpvl Schl Dist, Special Dist, vacant & 50 acres or less | Land Use Code | 93 |
| Open Space: | N | DFL | N |
| Historic Property: | N | Remodel Property: | N |
| Multi-Family Redevelopment: | N | | |
| Township: | 32 | Section: | 30 |
| Range: | R1 |
Location |
| Address: | | Mapsco: | |
| Neighborhood: | Area 2 Waterfront Eastside Res | Map ID: | 163 |
| Neighborhood CD: | 2WFTE01R |
Owner |
| Name: | GILMER, MARGARET P | Owner ID: | 300435 |
| Mailing Address: | KATRINA C PFLAUMER 2166 MADRONA WAY COUPEVILLE, WA 98239 | % Ownership: | 100.0000000000% |
| | | Exemptions: | |
Taxes and Assessment Details
Values
| (+) Improvement Homesite Value: | + | $0 | |
| (+) Improvement Non-Homesite Value: | + | $0 | |
| (+) Land Homesite Value: | + | $0 | |
| (+) Land Non-Homesite Value: | + | $868 | |
| (+) Curr Use (HS): | + | $0 | $0 |
| (+) Curr Use (NHS): | + | $0 | $0 |
| | | -------------------------- | |
| (=) Market Value: | = | $868 | |
| (–) Productivity Loss: | – | $0 | |
| | | -------------------------- | |
| (=) Subtotal: | = | $868 | |
| (+) Senior Appraised Value: | + | $0 | |
| (+) Non-Senior Appraised Value: | + | $868 | |
| | | -------------------------- | |
| (=) Total Appraised Value: | = | $868 | |
| (–) Senior Exemption Loss: | – | $0 | |
| (–) Exemption Loss: | – | $0 | |
| | | -------------------------- | |
| (=) Taxable Value: | = | $868 | |
Taxing Jurisdiction
| Owner: | GILMER, MARGARET P | | |
| % Ownership: | 100.0000000000% | | |
| Total Value: | $868 | | |
| Tax Area: | 339 - APPRAISER-Cpvl Schl Dist, Special Dist, vacant & 50 acres or less |
| CF | Conservation Futures | 0.0316035091 | $868 | $868 | $0.03 | | |
| CEM2 | Cemetery #2 | 0.0095056933 | $868 | $868 | $0.01 | | |
| HOBOND | Hospital BOND | 0.1910887512 | $868 | $868 | $0.17 | | |
| HOGEN | Hospital GEN | 0.3902502903 | $868 | $868 | $0.34 | | |
| CE | County Current Expense | 0.3708482477 | $868 | $868 | $0.32 | | |
| CR | County Roads | 0.4584763726 | $868 | $868 | $0.40 | | |
| ISLANDEMS | Hospital GEN (EMS) | 0.5000000000 | $868 | $868 | $0.43 | | |
| LIB | Library Sno-Isle GEN | 0.3153421757 | $868 | $868 | $0.27 | | |
| LIBCAP | Library Sno-Isle BOND (Cap Fac Imp Area) | 0.0543427938 | $868 | $868 | $0.05 | | |
| POCOUP | Port of Coupeville GEN | 0.1093371703 | $868 | $868 | $0.09 | | |
| POCOUPIDD | Port of Coupeville IDD | 0.3409740022 | $868 | $868 | $0.30 | | |
| COUPSDTECH | School 204 CP (TECH) | 0.7545480007 | $868 | $868 | $0.65 | | |
| SCH204MO | School 204 Enrichment | 0.6716186034 | $868 | $868 | $0.58 | | |
| ST | State School | 1.3035497053 | $868 | $868 | $1.13 | | |
| ST2 | State School Part 2 | 0.8169543533 | $868 | $868 | $0.71 | | |
| | Total Tax Rate: | 6.3184396689 | | | | | |
| | | | | Taxes w/Current Exemptions: | $5.48 | | |
| | | | | Taxes w/o Exemptions: | $5.48 | | |
Improvement / Building
Sketch
| No sketches available for this property. |
Property Image
Land
| 1 | 53 | CRITICAL AREAS | 8.6800 | 378100.80 | 0.00 | 0.00 | 1.00 | $868 | $0 |
Roll Value History
| 2026 | N/A | N/A | N/A | N/A | N/A |
| 2025 | $0 | $868 | $0 | $868 | $868 |
| 2024 | $0 | $868 | $0 | $868 | $868 |
| 2023 | $0 | $868 | $0 | $868 | $868 |
| 2022 | $0 | $868 | $0 | $868 | $868 |
| 2021 | $0 | $868 | $0 | $868 | $868 |
| 2020 | $0 | $868 | $0 | $868 | $868 |
| 2019 | $0 | $868 | $0 | $868 | $868 |
| 2018 | $0 | $868 | $0 | $868 | $868 |
| 2017 | $0 | $2,951 | $0 | $2,951 | $2,951 |
| 2016 | $0 | $2,951 | $0 | $2,951 | $2,951 |
| 2015 | $0 | $2,951 | $0 | $2,951 | $2,951 |
| 2014 | $0 | $2,951 | $0 | $2,951 | $2,951 |
| 2013 | $0 | $2,951 | $0 | $2,951 | $2,951 |
| 2012 | $0 | $2,951 | $0 | $2,951 | $2,951 |
| 2011 | $0 | $3,472 | $0 | $3,472 | $3,472 |
| 2010 | $0 | $3,472 | $0 | $3,472 | $3,472 |
| 2009 | $0 | $3,472 | $0 | $3,472 | $3,472 |
| 2008 | $0 | $3,472 | $0 | $3,472 | $3,472 |
| 2007 | $0 | $3,472 | $0 | $3,472 | $3,472 |
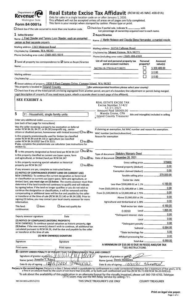
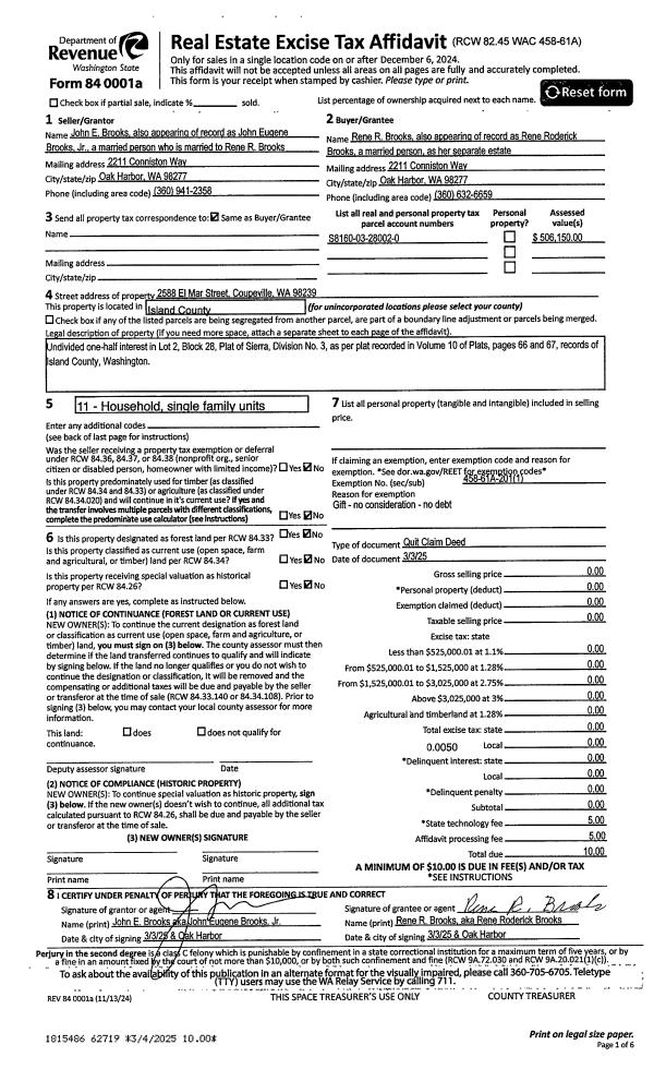
Deed and Sales History
| 1 | 07/13/2021 | WD | Warranty Deed | WALKER, AKEMI | GILMER, MARGARET P | | | $627,000.00 | 49421 | 4525805 |
|   | |
| 2 | 04/23/2021 | CPADC | Comm Prop Agmnt & Death Cert | WALKER, LEWIS J | WALKER, AKEMI | | | | 88097 | |
| 3 | 10/24/2012 | QCD | Quit Claim Deed | WALKER, LEWIS J & | WALKER, LEWIS J | | | $1,476.00 | 9315 | 4326237 |
| 4 | 11/01/1984 | WD | Warranty Deed | STROUB, RACHEL E | WALKER, LEWIS J | | | $3,200.00 | 43286 | 84005467 |
| 5 | 01/01/1900 | OTHER | Other - Misc. Documents | STROUB, MRS. D | STROUB, RACHEL E | | | $0.00 | 58882 | 0 |
| 6 | 01/01/1900 | OTHER | Other - Misc. Documents | Unknown | STROUB, MRS. D | | | $0.00 | 0 | 0 |
Payout Agreement
| No payout information available.. |