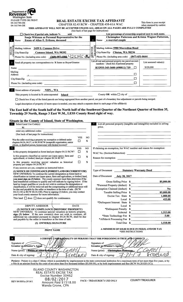
Property
Account |
| Property ID: | 25564 | Abbreviated Legal Description: | 35 LANDSDALE DC - TR D SP 71-125:BG SE CR LOTS 1 & 2 BLK 1 UNREC PLAT OF COVELAND W125' N100' E125' S100' TPB TGW EZ |
| Geographic ID: | R13230-142-2680 | Agent Code: | |
| Type: | Real | | |
| Tax Area: | 339 - APPRAISER-Cpvl Schl Dist, Special Dist, vacant & 50 acres or less | Land Use Code | 91 |
| Open Space: | N | DFL | N |
| Historic Property: | N | Remodel Property: | N |
| Multi-Family Redevelopment: | N | | |
| Township: | 32 | Section: | 30 |
| Range: | R1 |
Location |
| Address: | | Mapsco: | |
| Neighborhood: | Cycle 2 | Map ID: | 163 |
| Neighborhood CD: | 2 |
Owner |
| Name: | R & M REVOCABLE TRUST, | Owner ID: | 281529 |
| Mailing Address: | 3620 DUNDEE WAY OAK HARBOR, WA 98277 | % Ownership: | 100.0000000000% |
| | | Exemptions: | |
Taxes and Assessment Details
Values
| (+) Improvement Homesite Value: | + | $0 | |
| (+) Improvement Non-Homesite Value: | + | $0 | |
| (+) Land Homesite Value: | + | $0 | |
| (+) Land Non-Homesite Value: | + | $150,000 | |
| (+) Curr Use (HS): | + | $0 | $0 |
| (+) Curr Use (NHS): | + | $0 | $0 |
| | | -------------------------- | |
| (=) Market Value: | = | $150,000 | |
| (–) Productivity Loss: | – | $0 | |
| | | -------------------------- | |
| (=) Subtotal: | = | $150,000 | |
| (+) Senior Appraised Value: | + | $0 | |
| (+) Non-Senior Appraised Value: | + | $150,000 | |
| | | -------------------------- | |
| (=) Total Appraised Value: | = | $150,000 | |
| (–) Senior Exemption Loss: | – | $0 | |
| (–) Exemption Loss: | – | $0 | |
| | | -------------------------- | |
| (=) Taxable Value: | = | $150,000 | |
Taxing Jurisdiction
| Owner: | R & M REVOCABLE TRUST, | | |
| % Ownership: | 100.0000000000% | | |
| Total Value: | $150,000 | | |
| Tax Area: | 339 - APPRAISER-Cpvl Schl Dist, Special Dist, vacant & 50 acres or less |
| CF | Conservation Futures | 0.0316035091 | $150,000 | $150,000 | $4.74 | | |
| CEM2 | Cemetery #2 | 0.0095056933 | $150,000 | $150,000 | $1.43 | | |
| HOBOND | Hospital BOND | 0.1910887512 | $150,000 | $150,000 | $28.66 | | |
| HOGEN | Hospital GEN | 0.3902502903 | $150,000 | $150,000 | $58.54 | | |
| CE | County Current Expense | 0.3708482477 | $150,000 | $150,000 | $55.63 | | |
| CR | County Roads | 0.4584763726 | $150,000 | $150,000 | $68.77 | | |
| ISLANDEMS | Hospital GEN (EMS) | 0.5000000000 | $150,000 | $150,000 | $75.00 | | |
| LIB | Library Sno-Isle GEN | 0.3153421757 | $150,000 | $150,000 | $47.30 | | |
| LIBCAP | Library Sno-Isle BOND (Cap Fac Imp Area) | 0.0543427938 | $150,000 | $150,000 | $8.15 | | |
| POCOUP | Port of Coupeville GEN | 0.1093371703 | $150,000 | $150,000 | $16.40 | | |
| POCOUPIDD | Port of Coupeville IDD | 0.3409740022 | $150,000 | $150,000 | $51.15 | | |
| COUPSDTECH | School 204 CP (TECH) | 0.7545480007 | $150,000 | $150,000 | $113.18 | | |
| SCH204MO | School 204 Enrichment | 0.6716186034 | $150,000 | $150,000 | $100.74 | | |
| ST | State School | 1.3035497053 | $150,000 | $150,000 | $195.53 | | |
| ST2 | State School Part 2 | 0.8169543533 | $150,000 | $150,000 | $122.54 | | |
| | Total Tax Rate: | 6.3184396689 | | | | | |
| | | | | Taxes w/Current Exemptions: | $947.76 | | |
| | | | | Taxes w/o Exemptions: | $947.76 | | |
Improvement / Building
Sketch
| No sketches available for this property. |
Property Image
Land
| 1 | 91 | UNDEVELOPED LAND-METES AND BOUNDS | 0.2800 | 12196.80 | 0.00 | 0.00 | 1.00 | $150,000 | $0 |
Roll Value History
| 2026 | N/A | N/A | N/A | N/A | N/A |
| 2025 | $0 | $150,000 | $0 | $150,000 | $150,000 |
| 2024 | $0 | $140,000 | $0 | $140,000 | $140,000 |
| 2023 | $0 | $140,000 | $0 | $140,000 | $140,000 |
| 2022 | $0 | $140,000 | $0 | $140,000 | $140,000 |
| 2021 | $0 | $60,000 | $0 | $60,000 | $60,000 |
| 2020 | $0 | $60,000 | $0 | $60,000 | $60,000 |
| 2019 | $0 | $40,000 | $0 | $40,000 | $40,000 |
| 2018 | $0 | $40,000 | $0 | $40,000 | $40,000 |
| 2017 | $0 | $30,000 | $0 | $30,000 | $30,000 |
| 2016 | $0 | $30,000 | $0 | $30,000 | $30,000 |
| 2015 | $0 | $30,000 | $0 | $30,000 | $30,000 |
| 2014 | $0 | $31,280 | $0 | $31,280 | $31,280 |
| 2013 | $0 | $31,280 | $0 | $31,280 | $31,280 |
| 2012 | $0 | $31,280 | $0 | $31,280 | $31,280 |
| 2011 | $0 | $31,280 | $0 | $31,280 | $31,280 |
| 2010 | $0 | $31,280 | $0 | $31,280 | $31,280 |
| 2009 | $0 | $32,300 | $0 | $32,300 | $32,300 |
| 2008 | $0 | $30,188 | $0 | $30,188 | $30,188 |
| 2007 | $0 | $25,000 | $0 | $25,000 | $25,000 |
Deed and Sales History
| 1 | 08/16/2017 | WD | Warranty Deed | HANLEY, MARY ANNE | R & M REVOCABLE TRUST, | | | $180,000.00 | 30728 | 4428523 |
|   | |
| 2 | 01/01/1997 | PRD | Personal Representatives Deed | HANLEY, JAMES M | HANLEY, MARY A | | | $0.00 | 70565 | 97002601 |
| 3 | 12/01/1991 | OTHER | Other - Misc. Documents | HANLEY, JAMES M | HANLEY, JAMES M | | | $0.00 | 64599 | 91018271 |
| 4 | 07/01/1985 | WD | Warranty Deed | IMLER, DONALD R | HANLEY, JAMES M | | | $17,250.00 | 51935 | 85007583 |
| 5 | 03/01/1979 | OTHER | Other - Misc. Documents | Unknown | IMLER, DONALD R | | | $29,000.00 | 91025 | 348676 |
Payout Agreement
| No payout information available.. |