Property
Account |
| Property ID: | 256154 | Abbreviated Legal Description: | FAKKEMAS 1ST ADD LOT 6 |
| Geographic ID: | S6615-00-00006-0 | Agent Code: | |
| Type: | Real | | |
| Tax Area: | 100 - APPRAISER-OH Schl Dist, in OH | Land Use Code | 11 |
| Open Space: | N | DFL | N |
| Historic Property: | N | Remodel Property: | N |
| Multi-Family Redevelopment: | N | | |
| Township: | | Section: | |
| Range: | |
Location |
| Address: | 150 NW JIB ST OAK HARBOR, WA 98277 | Mapsco: | |
| Neighborhood: | Cycle 1 | Map ID: | 253 |
| Neighborhood CD: | 1 |
Owner |
| Name: | ROCHEFORT, JAMES | Owner ID: | 288094 |
| Mailing Address: | 150 NW JIB ST OAK HARBOR, WA 98277 | % Ownership: | 100.0000000000% |
| | | Exemptions: | |
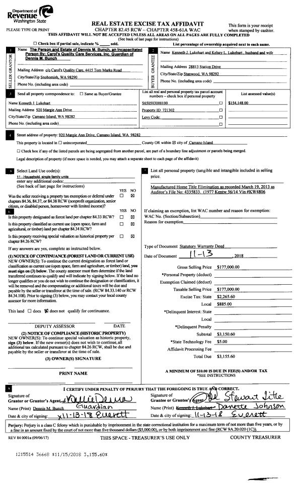
Taxes and Assessment Details
Values
| (+) Improvement Homesite Value: | + | $0 | |
| (+) Improvement Non-Homesite Value: | + | $217,417 | |
| (+) Land Homesite Value: | + | $0 | |
| (+) Land Non-Homesite Value: | + | $190,000 | |
| (+) Curr Use (HS): | + | $0 | $0 |
| (+) Curr Use (NHS): | + | $0 | $0 |
| | | -------------------------- | |
| (=) Market Value: | = | $407,417 | |
| (–) Productivity Loss: | – | $0 | |
| | | -------------------------- | |
| (=) Subtotal: | = | $407,417 | |
| (+) Senior Appraised Value: | + | $0 | |
| (+) Non-Senior Appraised Value: | + | $407,417 | |
| | | -------------------------- | |
| (=) Total Appraised Value: | = | $407,417 | |
| (–) Senior Exemption Loss: | – | $0 | |
| (–) Exemption Loss: | – | $0 | |
| | | -------------------------- | |
| (=) Taxable Value: | = | $407,417 | |
Taxing Jurisdiction
| Owner: | ROCHEFORT, JAMES | | |
| % Ownership: | 100.0000000000% | | |
| Total Value: | $407,417 | | |
| Tax Area: | 100 - APPRAISER-OH Schl Dist, in OH |
| CF | Conservation Futures | 0.0316035091 | $407,417 | $407,417 | $12.88 | | |
| CEM1 | Cemetery #1 | 0.0040320932 | $407,417 | $407,417 | $1.64 | | |
| COH | City of Oak Harbor | 2.3001546061 | $407,417 | $407,417 | $937.12 | | |
| OAKBOND | City of Oak Harbor BOND | 0.1926904192 | $407,417 | $407,417 | $78.51 | | |
| HOBOND | Hospital BOND | 0.1910887512 | $407,417 | $407,417 | $77.85 | | |
| HOGEN | Hospital GEN | 0.3902502903 | $407,417 | $407,417 | $158.99 | | |
| CE | County Current Expense | 0.3708482477 | $407,417 | $407,417 | $151.09 | | |
| ISLANDEMS | Hospital GEN (EMS) | 0.5000000000 | $407,417 | $407,417 | $203.71 | | |
| LIB | Library Sno-Isle GEN | 0.3153421757 | $407,417 | $407,417 | $128.48 | | |
| NWHIDPRMT | P & R N Whidbey GEN | 0.2004466701 | $407,417 | $407,417 | $81.67 | | |
| SCH201MO | School 201 Enrichment | 1.8559231640 | $407,417 | $407,417 | $756.13 | | |
| ST | State School | 1.3035497053 | $407,417 | $407,417 | $531.09 | | |
| ST2 | State School Part 2 | 0.8169543533 | $407,417 | $407,417 | $332.84 | | |
| | Total Tax Rate: | 8.4728839852 | | | | | |
| | | | | Taxes w/Current Exemptions: | $3,452.00 | | |
| | | | | Taxes w/o Exemptions: | $3,452.00 | | |
Improvement / Building
| Improvement #1: | RESIDENTIAL | State Code: | Y | 1540.0 sqft | Value: | $217,417 |
| Bathrooms: | 2 | Bedrooms: | 3 | | Ceiling: | DRY WALL SPRAYED | Exterior Wall/Cover: | PLY/HARDBOARD T-111 | | Floor Covering: | CARPET/VINYL 80-20 | Floor Structure: | WOOD W/SUBFLOOR | | Foundation: | CONCRETE | Heating: | BASEBOARD ELECTRIC | | Interior Finish: | DRYWALL PAINT | Plumbing Fixture Cnt: | 9 | | Roof Slope: | 4" IN 12" | Roof Structure/Cover: | CJ ASPHALT |
|
| | Type | Description | Class CD | Sub Class CD | Year Built | Area |
| | BAS | BASE/MAIN FLOOR | 3 | 0 | 1973 | 1540.0 |
| | OP2 | OPEN PORCH W/STEPS | 3 | 0 | 1973 | 20.0 |
| | OP2 | OPEN PORCH W/STEPS | 3 | 0 | 1973 | 36.0 |
| | AGR | ATTACHED GARAGE | 3 | 0 | 1973 | 484.0 |
Sketch
Property Image
Land
| 1 | 15 | SQ (12001-21780) | 0.0000 | 0.00 | 0.00 | 0.00 | 1.00 | $190,000 | $0 |
Roll Value History
| 2026 | N/A | N/A | N/A | N/A | N/A |
| 2025 | $217,417 | $190,000 | $0 | $407,417 | $407,417 |
| 2024 | $225,170 | $180,000 | $0 | $405,170 | $405,170 |
| 2023 | $216,073 | $190,000 | $0 | $406,073 | $406,073 |
| 2022 | $198,398 | $180,000 | $0 | $378,398 | $378,398 |
| 2021 | $174,913 | $120,000 | $0 | $294,913 | $294,913 |
| 2020 | $170,686 | $100,000 | $0 | $270,686 | $270,686 |
| 2019 | $123,146 | $150,000 | $0 | $273,146 | $273,146 |
| 2018 | $123,556 | $130,000 | $0 | $253,556 | $253,556 |
| 2017 | $99,639 | $110,000 | $0 | $209,639 | $209,639 |
| 2016 | $101,330 | $90,000 | $0 | $191,330 | $191,330 |
| 2015 | $103,018 | $70,000 | $0 | $173,018 | $173,018 |
| 2014 | $104,706 | $55,000 | $0 | $159,706 | $159,706 |
| 2013 | $106,394 | $55,000 | $0 | $161,394 | $161,394 |
| 2012 | $108,084 | $65,000 | $0 | $173,084 | $173,084 |
| 2011 | $107,951 | $65,000 | $0 | $172,951 | $172,951 |
| 2010 | $119,930 | $65,000 | $0 | $184,930 | $184,930 |
| 2009 | $123,503 | $87,150 | $0 | $210,653 | $210,653 |
| 2008 | $125,301 | $105,000 | $0 | $230,301 | $230,301 |
| 2007 | $127,145 | $105,000 | $0 | $232,145 | $232,145 |
Deed and Sales History
| 1 | 11/27/2018 | PRD | Personal Representatives Deed | ROCHEFORT, JAMES A | ROCHEFORT, JAMES | | | $0.00 | 36845 | 4455868 |
| 2 | 10/01/1979 | WD | Warranty Deed | MICHELSEN, JOSEPH C | ROCHEFORT, JAMES A | | | $61,500.00 | 94910 | 359928 |
| 3 | 01/01/1900 | OTHER | Other - Misc. Documents | Unknown | MICHELSEN, JOSEPH C | | | $0.00 | 0 | 0 |
Payout Agreement
| No payout information available.. |