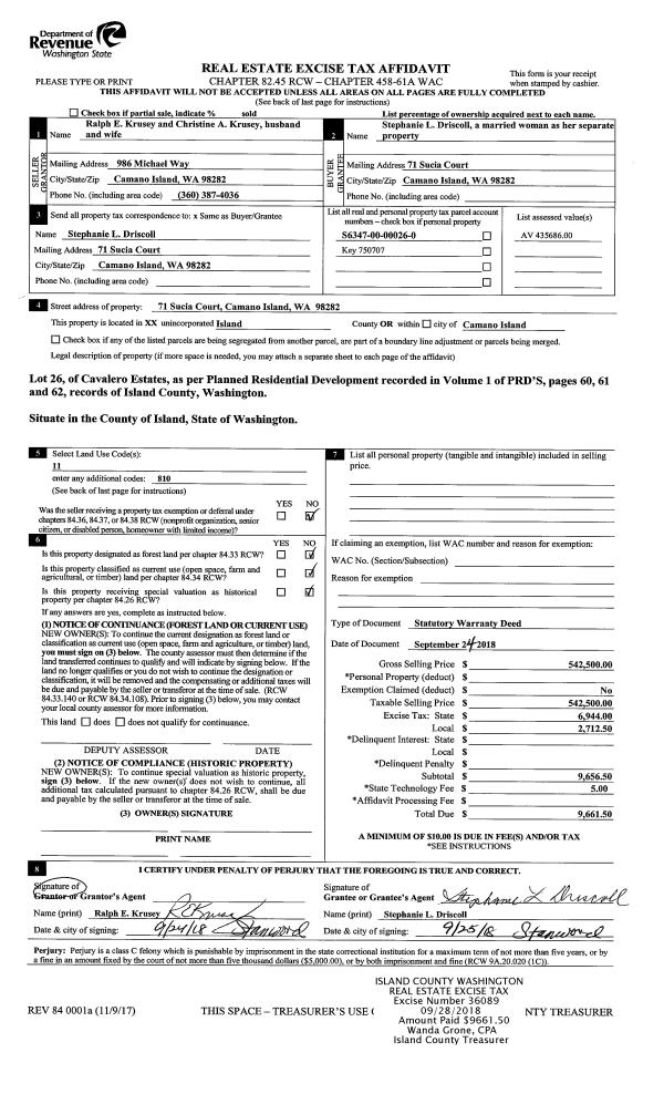
Property
Account |
| Property ID: | 256403 | Abbreviated Legal Description: | FIRDALE LOT 4 |
| Geographic ID: | S6630-00-00004-0 | Agent Code: | |
| Type: | Real | | |
| Tax Area: | 100 - APPRAISER-OH Schl Dist, in OH | Land Use Code | 11 |
| Open Space: | N | DFL | N |
| Historic Property: | N | Remodel Property: | N |
| Multi-Family Redevelopment: | N | | |
| Township: | | Section: | |
| Range: | |
Location |
| Address: | 286 NW 7TH CT OAK HARBOR, WA 98277 | Mapsco: | |
| Neighborhood: | Cycle 1 | Map ID: | 255 |
| Neighborhood CD: | 1 |
Owner |
| Name: | HUNZIKER, BRANDON MICHAEL | Owner ID: | 293544 |
| Mailing Address: | SHELBEY NICOLE CARLSON 286 NW 7TH CT OAK HARBOR, WA 98277 | % Ownership: | 100.0000000000% |
| | | Exemptions: | |
Taxes and Assessment Details
Values
| (+) Improvement Homesite Value: | + | $0 | |
| (+) Improvement Non-Homesite Value: | + | $236,549 | |
| (+) Land Homesite Value: | + | $0 | |
| (+) Land Non-Homesite Value: | + | $190,000 | |
| (+) Curr Use (HS): | + | $0 | $0 |
| (+) Curr Use (NHS): | + | $0 | $0 |
| | | -------------------------- | |
| (=) Market Value: | = | $426,549 | |
| (–) Productivity Loss: | – | $0 | |
| | | -------------------------- | |
| (=) Subtotal: | = | $426,549 | |
| (+) Senior Appraised Value: | + | $0 | |
| (+) Non-Senior Appraised Value: | + | $426,549 | |
| | | -------------------------- | |
| (=) Total Appraised Value: | = | $426,549 | |
| (–) Senior Exemption Loss: | – | $0 | |
| (–) Exemption Loss: | – | $0 | |
| | | -------------------------- | |
| (=) Taxable Value: | = | $426,549 | |
Taxing Jurisdiction
| Owner: | HUNZIKER, BRANDON MICHAEL | | |
| % Ownership: | 100.0000000000% | | |
| Total Value: | $426,549 | | |
| Tax Area: | 100 - APPRAISER-OH Schl Dist, in OH |
| CF | Conservation Futures | 0.0316035091 | $426,549 | $426,549 | $13.48 | | |
| CEM1 | Cemetery #1 | 0.0040320932 | $426,549 | $426,549 | $1.72 | | |
| COH | City of Oak Harbor | 2.3001546061 | $426,549 | $426,549 | $981.13 | | |
| OAKBOND | City of Oak Harbor BOND | 0.1926904192 | $426,549 | $426,549 | $82.19 | | |
| HOBOND | Hospital BOND | 0.1910887512 | $426,549 | $426,549 | $81.51 | | |
| HOGEN | Hospital GEN | 0.3902502903 | $426,549 | $426,549 | $166.46 | | |
| CE | County Current Expense | 0.3708482477 | $426,549 | $426,549 | $158.18 | | |
| ISLANDEMS | Hospital GEN (EMS) | 0.5000000000 | $426,549 | $426,549 | $213.27 | | |
| LIB | Library Sno-Isle GEN | 0.3153421757 | $426,549 | $426,549 | $134.51 | | |
| NWHIDPRMT | P & R N Whidbey GEN | 0.2004466701 | $426,549 | $426,549 | $85.50 | | |
| SCH201MO | School 201 Enrichment | 1.8559231640 | $426,549 | $426,549 | $791.64 | | |
| ST | State School | 1.3035497053 | $426,549 | $426,549 | $556.03 | | |
| ST2 | State School Part 2 | 0.8169543533 | $426,549 | $426,549 | $348.47 | | |
| | Total Tax Rate: | 8.4728839852 | | | | | |
| | | | | Taxes w/Current Exemptions: | $3,614.09 | | |
| | | | | Taxes w/o Exemptions: | $3,614.09 | | |
Improvement / Building
| Improvement #1: | RESIDENTIAL | State Code: | Y | 1376.0 sqft | Value: | $236,549 |
| Bathrooms: | 2 | Bedrooms: | 3 | | Ceiling: | DRY WALL SPRAYED | Exterior Wall/Cover: | WOOD SIDING | | Floor Covering: | VINYL 100% | Floor Structure: | WOOD W/SUBFLOOR | | Foundation: | CONCRETE | Heating: | BASEBOARD ELECTRIC | | Interior Finish: | DRYWALL PAINT | Plumbing Fixture Cnt: | 8 | | Roof Slope: | 4" IN 12" | Roof Structure/Cover: | CJ ASPHALT |
|
| | Type | Description | Class CD | Sub Class CD | Year Built | Area |
| | BAS | BASE/MAIN FLOOR | 3 | 0 | 1978 | 1376.0 |
| | OP2 | OPEN PORCH W/STEPS | 3 | 0 | 1978 | 30.0 |
| | AGR | ATTACHED GARAGE | 3 | 0 | 1978 | 400.0 |
| | OWP | OPEN WOOD PORCH W/STEPS | 3 | 0 | 1978 | 162.0 |
Sketch
Property Image
Land
| 1 | 14 | SQ (08001-12000) | 0.0000 | 0.00 | 0.00 | 0.00 | 1.00 | $190,000 | $0 |
Roll Value History
| 2026 | N/A | N/A | N/A | N/A | N/A |
| 2025 | $236,549 | $190,000 | $0 | $426,549 | $426,549 |
| 2024 | $244,528 | $180,000 | $0 | $424,528 | $424,528 |
| 2023 | $229,293 | $190,000 | $0 | $419,293 | $419,293 |
| 2022 | $210,387 | $180,000 | $0 | $390,387 | $390,387 |
| 2021 | $185,342 | $130,000 | $0 | $315,342 | $315,342 |
| 2020 | $180,817 | $100,000 | $0 | $280,817 | $280,817 |
| 2019 | $131,309 | $150,000 | $0 | $281,309 | $281,309 |
| 2018 | $131,722 | $130,000 | $0 | $261,722 | $261,722 |
| 2017 | $130,103 | $110,000 | $0 | $240,103 | $240,103 |
| 2016 | $131,728 | $90,000 | $0 | $221,728 | $221,728 |
| 2015 | $105,369 | $70,000 | $0 | $175,369 | $175,369 |
| 2014 | $106,943 | $55,000 | $0 | $161,943 | $161,943 |
| 2013 | $108,514 | $55,000 | $0 | $163,514 | $163,514 |
| 2012 | $110,088 | $65,000 | $0 | $175,088 | $175,088 |
| 2011 | $107,713 | $65,000 | $0 | $172,713 | $172,713 |
| 2010 | $118,495 | $65,000 | $0 | $183,495 | $183,495 |
| 2009 | $123,896 | $90,000 | $0 | $213,896 | $213,896 |
| 2008 | $125,781 | $95,000 | $0 | $220,781 | $220,781 |
| 2007 | $127,667 | $95,000 | $0 | $222,667 | $222,667 |
Deed and Sales History
| 1 | 02/05/2020 | WD | Warranty Deed | HUBEN, BRYCE | HUNZIKER, BRANDON MICHAEL | | | $335,000.00 | 42186 | 4481710 |
| 2 | 10/12/2018 | WD | Warranty Deed | WILSON, JOSHUA | HUBEN, BRYCE | | | $255,000.00 | 36439 | 4454060 |
| 3 | 06/29/2015 | WD | Warranty Deed | WEIBLING II, DANNY L | WILSON, JOSHUA | | | $228,000.00 | 20239 | 4381156 |
| 4 | 09/14/2012 | CHGOFIDENT | DNU - Change In Identity | WEIBLING, DANNY L | WEIBLING II, DANNY L | | | $0.00 | 8989 | 4323972 |
| 5 | 11/16/2006 | WD | Warranty Deed | SHIPLEY, AARON A | WEIBLING, DANNY L | | | $230,200.00 | 64959 | 4187612 |
| 6 | 09/01/1995 | WD | Warranty Deed | KUNTZ, DONALD A | SHIPLEY, AARON A | | | $130,950.00 | 53308 | 95015232 |
| 7 | 02/01/1987 | QCD | Quit Claim Deed | KUNTZ, DONALD A | KUNTZ, DONALD A | | | $0.00 | 70378 | 87002424 |
| 8 | 02/01/1987 | QCD | Quit Claim Deed | KUNTZ, DONALD A | KUNTZ, DONALD A | | | $0.00 | 70379 | 87002425 |
| 9 | 09/01/1980 | WD | Warranty Deed | SHUGHART, ROBERT C | KUNTZ, DONALD A | | | $67,500.00 | 3197 | 374206 |
| 10 | 11/01/1978 | OTHER | Other - Misc. Documents | Unknown | SHUGHART, ROBERT C | | | $56,950.00 | 85861 | 343922 |
Payout Agreement
| No payout information available.. |