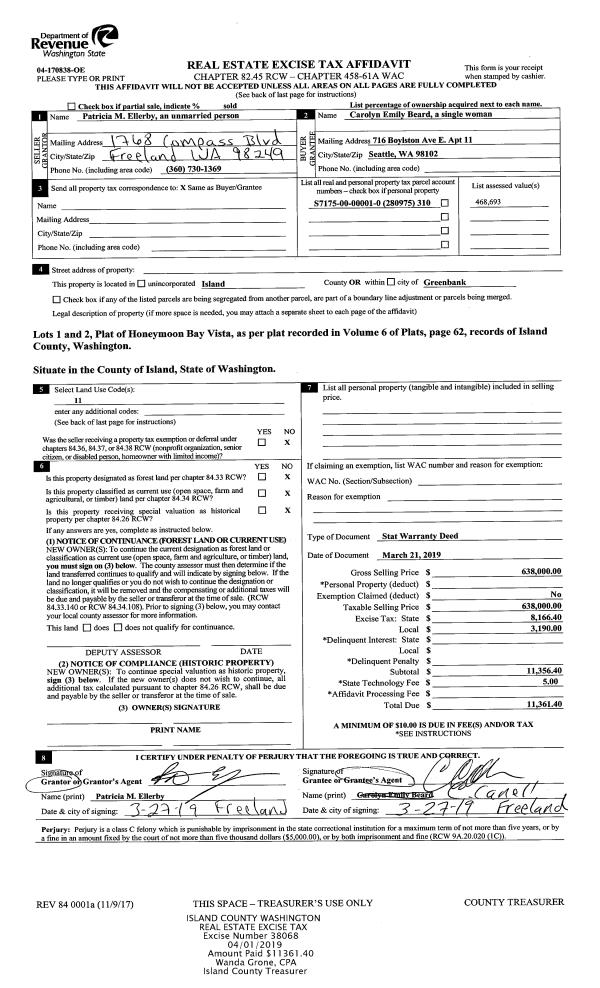
| 1 | 03/07/2023 | WD | Warranty Deed | SODERBERG, ROBERT JOSEPH | NJIE, ALIE | | | $410,125.00 | 56059 | 4557526 |
| 2 | 01/18/2019 | WD | Warranty Deed | STEWART, TOM T | SODERBERG, ROBERT JOSEPH | | | $305,000.00 | 37398 | 4458375 |
| 3 | 05/20/2013 | QCD | Quit Claim Deed | SECRETARY OF VETERAN AFFAIRS | STEWART, TOM T | | | $151,750.00 | 11418 | 4340586 |
| 4 | 02/12/2013 | WD | Warranty Deed | ALASKA USA FEDERAL CREDIT UNION | SECRETARY OF VETERAN AFFAIRS | | | $158,634.00 | 10834 | 4336567 |
| 5 | 01/30/2013 | TRUSTEED | Trustee's Deed | BENNETT, ELIZABETH LENORE | ALASKA USA FEDERAL CREDIT UNION | | | $158,634.00 | 10296 | 4332617 |
| 6 | 12/02/2011 | DECREE | Divorce Decree/Legal Separation | BENNETT, JOHN S | BENNETT, ELIZABETH LENORE | | | $0.00 | 6549 | 4307576 |
| 7 | 01/18/2008 | WD | Warranty Deed | LOVETT, THOMAS R | BENNETT, JOHN S | | | $228,000.00 | 80235 | 4220719 |
| 8 | 11/21/2002 | WD | Warranty Deed | NEILON, JAMES A | LOVETT, THOMAS R | | | $145,900.00 | 24686 | 4038290 |
| 9 | 12/01/1986 | WD | Warranty Deed | CITY, FEDERAL S | NEILON, JAMES A | | | $70,000.00 | 63544 | 86015986 |
| 10 | 08/01/1986 | TRUSTEED | Trustee's Deed | BRONS, JOHN O | CITY, FEDERAL S | | | $0.00 | 62347 | 86010700 |
| 11 | 05/01/1985 | QCD | Quit Claim Deed | BRONS, JOHN O | BRONS, JOHN O | | | $0.00 | 51731 | 85006870 |
| 12 | 07/01/1983 | WD | Warranty Deed | BESTWAY, CONSTRUCTION | BRONS, JOHN O | | | $76,550.00 | 31976 | 412258 |
| 13 | 03/01/1983 | QCD | Quit Claim Deed | WALDEN, STEPHEN M | BESTWAY, CONSTRUCTION | | | $0.00 | 30787 | 407682 |
| 14 | 09/01/1978 | OTHER | Other - Misc. Documents | Unknown | WALDEN, STEPHEN M | | | $133,556.00 | 84178 | 338851 |