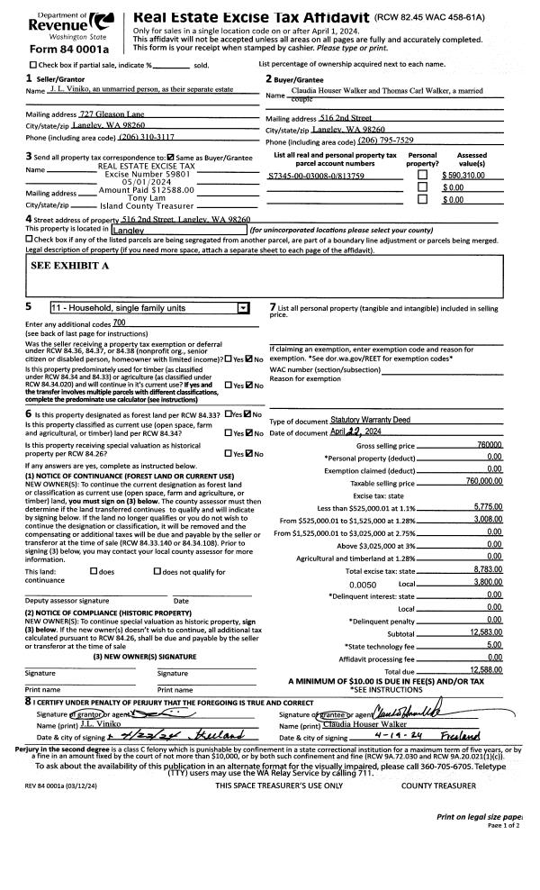
Property
Account |
| Property ID: | 256733 | Abbreviated Legal Description: | FIRDALE LOT 37 |
| Geographic ID: | S6630-00-00037-0 | Agent Code: | |
| Type: | Real | | |
| Tax Area: | 100 - APPRAISER-OH Schl Dist, in OH | Land Use Code | 11 |
| Open Space: | N | DFL | N |
| Historic Property: | N | Remodel Property: | N |
| Multi-Family Redevelopment: | N | | |
| Township: | | Section: | |
| Range: | |
Location |
| Address: | 264 NW CALISTA CT OAK HARBOR, WA 98277 | Mapsco: | |
| Neighborhood: | Cycle 1 | Map ID: | 253 |
| Neighborhood CD: | 1 |
Owner |
| Name: | SULLIVAN, BELMA R | Owner ID: | 301201 |
| Mailing Address: | 264 NW CALISTA CT OAK HARBOR, WA 98277 | % Ownership: | 100.0000000000% |
| | | Exemptions: | |
Taxes and Assessment Details
Values
| (+) Improvement Homesite Value: | + | $0 | |
| (+) Improvement Non-Homesite Value: | + | $248,117 | |
| (+) Land Homesite Value: | + | $0 | |
| (+) Land Non-Homesite Value: | + | $190,000 | |
| (+) Curr Use (HS): | + | $0 | $0 |
| (+) Curr Use (NHS): | + | $0 | $0 |
| | | -------------------------- | |
| (=) Market Value: | = | $438,117 | |
| (–) Productivity Loss: | – | $0 | |
| | | -------------------------- | |
| (=) Subtotal: | = | $438,117 | |
| (+) Senior Appraised Value: | + | $0 | |
| (+) Non-Senior Appraised Value: | + | $438,117 | |
| | | -------------------------- | |
| (=) Total Appraised Value: | = | $438,117 | |
| (–) Senior Exemption Loss: | – | $0 | |
| (–) Exemption Loss: | – | $0 | |
| | | -------------------------- | |
| (=) Taxable Value: | = | $438,117 | |
Taxing Jurisdiction
| Owner: | SULLIVAN, BELMA R | | |
| % Ownership: | 100.0000000000% | | |
| Total Value: | $438,117 | | |
| Tax Area: | 100 - APPRAISER-OH Schl Dist, in OH |
| CF | Conservation Futures | 0.0316035091 | $438,117 | $438,117 | $13.85 | | |
| CEM1 | Cemetery #1 | 0.0040320932 | $438,117 | $438,117 | $1.77 | | |
| COH | City of Oak Harbor | 2.3001546061 | $438,117 | $438,117 | $1,007.74 | | |
| OAKBOND | City of Oak Harbor BOND | 0.1926904192 | $438,117 | $438,117 | $84.42 | | |
| HOBOND | Hospital BOND | 0.1910887512 | $438,117 | $438,117 | $83.72 | | |
| HOGEN | Hospital GEN | 0.3902502903 | $438,117 | $438,117 | $170.98 | | |
| CE | County Current Expense | 0.3708482477 | $438,117 | $438,117 | $162.47 | | |
| ISLANDEMS | Hospital GEN (EMS) | 0.5000000000 | $438,117 | $438,117 | $219.06 | | |
| LIB | Library Sno-Isle GEN | 0.3153421757 | $438,117 | $438,117 | $138.16 | | |
| NWHIDPRMT | P & R N Whidbey GEN | 0.2004466701 | $438,117 | $438,117 | $87.82 | | |
| SCH201MO | School 201 Enrichment | 1.8559231640 | $438,117 | $438,117 | $813.11 | | |
| ST | State School | 1.3035497053 | $438,117 | $438,117 | $571.11 | | |
| ST2 | State School Part 2 | 0.8169543533 | $438,117 | $438,117 | $357.92 | | |
| | Total Tax Rate: | 8.4728839852 | | | | | |
| | | | | Taxes w/Current Exemptions: | $3,712.13 | | |
| | | | | Taxes w/o Exemptions: | $3,712.13 | | |
Improvement / Building
| Improvement #1: | RESIDENTIAL | State Code: | Y | 1363.0 sqft | Value: | $248,117 |
| Bathrooms: | 2 | Bedrooms: | 3 | | Ceiling: | DRY WALL SPRAYED | Exterior Wall/Cover: | WOOD SIDING | | Floor Covering: | CARPET/VINYL 60-40 | Floor Structure: | WOOD W/SUBFLOOR | | Foundation: | CONCRETE | Heating: | BASEBOARD ELECTRIC | | Interior Finish: | DRYWALL PAINT | Plumbing Fixture Cnt: | 9 | | Roof Slope: | 5" IN 12" | Roof Structure/Cover: | CJ ALUMINIUM HEAVY |
|
| | Type | Description | Class CD | Sub Class CD | Year Built | Area |
| | BAS | BASE/MAIN FLOOR | 3 | 0 | 1983 | 1363.0 |
| | AGR | ATTACHED GARAGE | 3 | 0 | 1983 | 648.0 |
| | OWP | OPEN WOOD PORCH W/STEPS | 3 | 0 | 1983 | 120.0 |
| | OWC | OPEN WOOD PORCH W/STEPS/ROOF/C | 3 | 0 | 1983 | 20.0 |
Sketch
Property Image
Land
| 1 | 14 | SQ (08001-12000) | 0.0000 | 0.00 | 0.00 | 0.00 | 1.00 | $190,000 | $0 |
Roll Value History
| 2026 | N/A | N/A | N/A | N/A | N/A |
| 2025 | $248,117 | $190,000 | $0 | $438,117 | $438,117 |
| 2024 | $256,425 | $180,000 | $0 | $436,425 | $436,425 |
| 2023 | $253,062 | $190,000 | $0 | $443,062 | $443,062 |
| 2022 | $232,196 | $180,000 | $0 | $412,196 | $412,196 |
| 2021 | $204,557 | $130,000 | $0 | $334,557 | $334,557 |
| 2020 | $199,420 | $100,000 | $0 | $299,420 | $299,420 |
| 2019 | $144,039 | $150,000 | $0 | $294,039 | $294,039 |
| 2018 | $144,494 | $130,000 | $0 | $274,494 | $274,494 |
| 2017 | $128,699 | $110,000 | $0 | $238,699 | $238,699 |
| 2016 | $130,510 | $90,000 | $0 | $220,510 | $220,510 |
| 2015 | $132,324 | $70,000 | $0 | $202,324 | $202,324 |
| 2014 | $134,136 | $55,000 | $0 | $189,136 | $189,136 |
| 2013 | $135,950 | $55,000 | $0 | $190,950 | $190,950 |
| 2012 | $137,761 | $65,000 | $0 | $202,761 | $202,761 |
| 2011 | $138,673 | $65,000 | $0 | $203,673 | $203,673 |
| 2010 | $148,483 | $65,000 | $0 | $213,483 | $213,483 |
| 2009 | $153,156 | $90,000 | $0 | $243,156 | $243,156 |
| 2008 | $155,317 | $95,000 | $0 | $250,317 | $250,317 |
| 2007 | $157,534 | $95,000 | $0 | $252,534 | $252,534 |
Deed and Sales History
| 1 | 09/15/2021 | PRD | Personal Representatives Deed | SULLIVAN, CHESTER A | SULLIVAN, BELMA R | | | $0.00 | 50061 | 4529359 |
| 2 | 03/01/1988 | WD | Warranty Deed | SEARS, MORTGAGE C | SULLIVAN, CHESTER A | | | $74,475.00 | 80835 | 88003293 |
| 3 | 09/01/1987 | TRUSTEED | Trustee's Deed | VETERANS, ADMINISTRATION | SEARS, MORTGAGE C | | | $0.00 | 72969 | 87013236 |
| 4 | 09/01/1987 | WD | Warranty Deed | TOEVES, JOHN & | VETERANS, ADMINISTRATION | | | $0.00 | 73138 | 87013909 |
| 5 | 01/01/1985 | WD | Warranty Deed | KLATT, RONALD E | TOEVES, JOHN & | | | $0.00 | 50059 | 85000227 |
| 6 | 07/01/1984 | WD | Warranty Deed | SCHLAEPFER, WALTER P | KLATT, RONALD E | | | $0.00 | 42219 | 84001341 |
| 7 | 05/01/1983 | WD | Warranty Deed | BESTWAY, CONSTRUCTION C | SCHLAEPFER, WALTER P | | | $78,500.00 | 31183 | 409151 |
| 8 | 11/01/1982 | QCD | Quit Claim Deed | WALDEN, STEPHEN M | BESTWAY, CONSTRUCTION C | | | $0.00 | 23060 | 403976 |
| 9 | 09/01/1978 | OTHER | Other - Misc. Documents | Unknown | WALDEN, STEPHEN M | | | $133,556.00 | 84178 | 338851 |
Payout Agreement
| No payout information available.. |