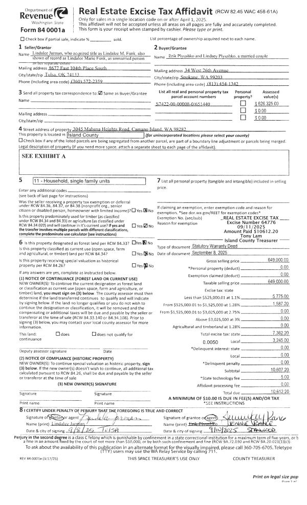
Property
Account |
| Property ID: | 25886 | Abbreviated Legal Description: | 40 - W/2 SE SE SW TGW & SUBJ TO EZ |
| Geographic ID: | R13231-033-2150 | Agent Code: | |
| Type: | Real | | |
| Tax Area: | 312 - APPRAISER-Cpvl Schl Dist, outside Cpvl, improved, greater than 1 acre | Land Use Code | 11 |
| Open Space: | N | DFL | N |
| Historic Property: | N | Remodel Property: | N |
| Multi-Family Redevelopment: | N | | |
| Township: | 32 | Section: | 31 |
| Range: | R1 |
Location |
| Address: | 2245 WINTERHAWK LN COUPEVILLE, WA 98239 | Mapsco: | |
| Neighborhood: | Cycle 2 | Map ID: | 166 |
| Neighborhood CD: | 2 |
Owner |
| Name: | SCHULZ, RUSSELL R | Owner ID: | 277373 |
| Mailing Address: | DENISE C SCHULZ 2245 WINTERHAWK LN COUPEVILLE, WA 98239 | % Ownership: | 100.0000000000% |
| | | Exemptions: | |
Taxes and Assessment Details
Values
| (+) Improvement Homesite Value: | + | $0 | |
| (+) Improvement Non-Homesite Value: | + | $431,570 | |
| (+) Land Homesite Value: | + | $0 | |
| (+) Land Non-Homesite Value: | + | $339,275 | |
| (+) Curr Use (HS): | + | $0 | $0 |
| (+) Curr Use (NHS): | + | $0 | $0 |
| | | -------------------------- | |
| (=) Market Value: | = | $770,845 | |
| (–) Productivity Loss: | – | $0 | |
| | | -------------------------- | |
| (=) Subtotal: | = | $770,845 | |
| (+) Senior Appraised Value: | + | $0 | |
| (+) Non-Senior Appraised Value: | + | $770,845 | |
| | | -------------------------- | |
| (=) Total Appraised Value: | = | $770,845 | |
| (–) Senior Exemption Loss: | – | $0 | |
| (–) Exemption Loss: | – | $0 | |
| | | -------------------------- | |
| (=) Taxable Value: | = | $770,845 | |
Taxing Jurisdiction
| Owner: | SCHULZ, RUSSELL R | | |
| % Ownership: | 100.0000000000% | | |
| Total Value: | $770,845 | | |
| Tax Area: | 312 - APPRAISER-Cpvl Schl Dist, outside Cpvl, improved, greater than 1 acre |
| CF | Conservation Futures | 0.0316035091 | $770,845 | $770,845 | $24.36 | | |
| CEM2 | Cemetery #2 | 0.0095056933 | $770,845 | $770,845 | $7.33 | | |
| FIRE5 | Fire & Rescue Dist #5 C Whidbey GEN | 1.2008080668 | $770,845 | $770,845 | $925.64 | | |
| FIRE5BOND | Fire & Rescue Dist #5 C Whidbey BOND | 0.1400090713 | $770,845 | $770,845 | $107.93 | | |
| HOBOND | Hospital BOND | 0.1910887512 | $770,845 | $770,845 | $147.30 | | |
| HOGEN | Hospital GEN | 0.3902502903 | $770,845 | $770,845 | $300.82 | | |
| CE | County Current Expense | 0.3708482477 | $770,845 | $770,845 | $285.87 | | |
| CR | County Roads | 0.4584763726 | $770,845 | $770,845 | $353.41 | | |
| ISLANDEMS | Hospital GEN (EMS) | 0.5000000000 | $770,845 | $770,845 | $385.42 | | |
| LIB | Library Sno-Isle GEN | 0.3153421757 | $770,845 | $770,845 | $243.08 | | |
| LIBCAP | Library Sno-Isle BOND (Cap Fac Imp Area) | 0.0543427938 | $770,845 | $770,845 | $41.89 | | |
| POCOUP | Port of Coupeville GEN | 0.1093371703 | $770,845 | $770,845 | $84.28 | | |
| POCOUPIDD | Port of Coupeville IDD | 0.3409740022 | $770,845 | $770,845 | $262.84 | | |
| COUPSDTECH | School 204 CP (TECH) | 0.7545480007 | $770,845 | $770,845 | $581.64 | | |
| SCH204MO | School 204 Enrichment | 0.6716186034 | $770,845 | $770,845 | $517.71 | | |
| ST | State School | 1.3035497053 | $770,845 | $770,845 | $1,004.83 | | |
| ST2 | State School Part 2 | 0.8169543533 | $770,845 | $770,845 | $629.75 | | |
| | Total Tax Rate: | 7.6592568070 | | | | | |
| | | | | Taxes w/Current Exemptions: | $5,904.10 | | |
| | | | | Taxes w/o Exemptions: | $5,904.10 | | |
Improvement / Building
| Improvement #1: | RESIDENTIAL | State Code: | Y | 1530.0 sqft | Value: | $431,570 |
| Bathrooms: | 2.5 | Bedrooms: | 2 | | Ceiling: | TONGUE & GROOVE | Exterior Wall/Cover: | SHINGLE | | Floor Covering: | COLORED CONCRETE | Floor Structure: | SLAB ON GRADE | | Foundation: | SLAB | Heating: | RADIANT FLOOR | | Interior Finish: | DRYWALL PAINT | Plumbing Fixture Cnt: | 12 | | Roof Slope: | 4" IN 12" | Roof Structure/Cover: | BEAM ALUMINUM HEAVY |
|
| | Type | Description | Class CD | Sub Class CD | Year Built | Area |
| | BAS | BASE/MAIN FLOOR | 5 | 0 | 2009 | 1530.0 |
| | OP4 | OPEN PORCH W/CEILING-ROOF | 5 | 0 | 2009 | 164.0 |
| | UTY | STORAGE/UTILITY | 5 | 0 | 2009 | 52.5 |
| | DGR | DETACHED GARAGE | 5 | 0 | 2009 | 588.0 |
Sketch
Property Image
Land
| 1 | HS | HOMESITE | 1.0000 | 43560.00 | 0.00 | 0.00 | 1.00 | $220,000 | $0 |
| 2 | 91 | UNDEVELOPED LAND-METES AND BOUNDS | 3.9000 | 169884.00 | 0.00 | 0.00 | 1.00 | $119,275 | $0 |
Roll Value History
| 2026 | N/A | N/A | N/A | N/A | N/A |
| 2025 | $431,570 | $339,275 | $0 | $770,845 | $770,845 |
| 2024 | $423,178 | $300,000 | $0 | $723,178 | $723,178 |
| 2023 | $427,974 | $280,000 | $0 | $707,974 | $707,974 |
| 2022 | $390,789 | $260,000 | $0 | $650,789 | $650,789 |
| 2021 | $342,834 | $170,000 | $0 | $512,834 | $512,834 |
| 2020 | $330,946 | $160,000 | $0 | $490,946 | $490,946 |
| 2019 | $247,710 | $210,000 | $0 | $457,710 | $457,710 |
| 2018 | $248,373 | $180,000 | $0 | $428,373 | $428,373 |
| 2017 | $249,702 | $160,000 | $0 | $409,702 | $409,702 |
| 2016 | $203,391 | $160,000 | $0 | $363,391 | $363,391 |
| 2015 | $205,601 | $130,000 | $0 | $335,601 | $335,601 |
| 2014 | $207,811 | $119,070 | $0 | $326,881 | $326,881 |
| 2013 | $210,024 | $119,070 | $0 | $329,094 | $329,094 |
| 2012 | $212,062 | $119,070 | $0 | $331,132 | $331,132 |
| 2011 | $184,717 | $132,300 | $0 | $317,017 | $317,017 |
| 2010 | $101,355 | $132,300 | $0 | $233,655 | $233,655 |
| 2009 | $58,079 | $120,074 | $0 | $178,153 | $178,153 |
| 2008 | $4,000 | $133,600 | $0 | $137,600 | $137,600 |
| 2007 | $4,000 | $127,400 | $0 | $131,400 | $131,400 |
Deed and Sales History
| 1 | 10/26/2016 | WD | Warranty Deed | ROGERS, ERIC J | SCHULZ, RUSSELL R | | | $430,000.00 | 26746 | 4410516 |
| 2 | 06/10/2008 | WD | Warranty Deed | CHRISTENSEN, CHRIS | ROGERS, ERIC J | | | $125,000.00 | 81514 | 4230624 |
| 3 | 06/01/2008 | WD | Warranty Deed | CHRISTENSEN, CHRIS | CHRISTENSEN, CHRIS | | | $0.00 | 81429 | 4230052 |
| 4 | 02/19/2006 | REC | Real Estate Contract | HENDRICKSON, MARY L | CHRISTENSEN, CHRIS | | | $125,000.00 | 60743 | 4162762 |
| 5 | 07/28/1998 | WD | Warranty Deed | WHIDBEY, ISLAND B | HENDRICKSON, MARY L | | | $35,000.00 | 83076 | 98016045 |
| 6 | 08/01/1997 | TRUSTEED | Trustee's Deed | PALBICKE, STANLEY M | WHIDBEY, ISLAND B | | | $0.00 | 72872 | 97013625 |
| 7 | 10/01/1992 | WD | Warranty Deed | PRICHARD, DOUGLAS J | PALBICKE, STANLEY M | | | $69,000.00 | 24060 | 92019816 |
| 8 | 05/01/1990 | WD | Warranty Deed | DAIGRE, LANCE A | PRICHARD, DOUGLAS J | | | $18,000.00 | 2888 | 90009371 |
| 9 | 07/01/1978 | OTHER | Other - Misc. Documents | HENDRICKSON, MARY L | DAIGRE, LANCE A | | | $11,500.00 | 83059 | 335341 |
Payout Agreement
| No payout information available.. |