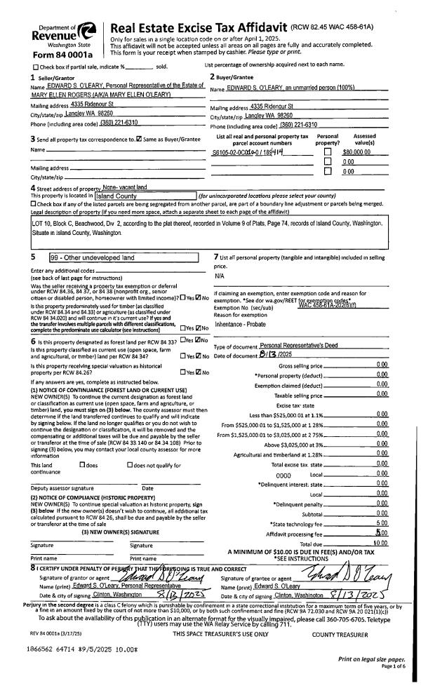
Property
Account |
| Property ID: | 25984 | Abbreviated Legal Description: | 19 - W/2 SW SW TGW EZ TGW & SUB EZ AF#96011640 |
| Geographic ID: | R13231-066-0331 | Agent Code: | |
| Type: | Real | | |
| Tax Area: | 312 - APPRAISER-Cpvl Schl Dist, outside Cpvl, improved, greater than 1 acre | Land Use Code | 88 |
| Open Space: | N | DFL | Y |
| Historic Property: | N | Remodel Property: | N |
| Multi-Family Redevelopment: | N | | |
| Township: | 32 | Section: | 31 |
| Range: | R1 |
Location |
| Address: | 24047 SR20 COUPEVILLE, WA 98239 | Mapsco: | |
| Neighborhood: | Area 2 Waterfront Westside Res | Map ID: | 166 |
| Neighborhood CD: | 2WFTW01R |
Owner |
| Name: | KETTLES TRAIL, LLC | Owner ID: | 200432 |
| Mailing Address: | 641 HEMLOCK WAY EDMONDS, WA 98020-4025 | % Ownership: | 100.0000000000% |
| | | Exemptions: | |
Taxes and Assessment Details
Values
| (+) Improvement Homesite Value: | + | $0 | |
| (+) Improvement Non-Homesite Value: | + | $63,226 | |
| (+) Land Homesite Value: | + | $0 | |
| (+) Land Non-Homesite Value: | + | $859,976 | |
| (+) Curr Use (HS): | + | $0 | $0 |
| (+) Curr Use (NHS): | + | $67,244 | $1,807 |
| | | -------------------------- | |
| (=) Market Value: | = | $990,446 | |
| (–) Productivity Loss: | – | $65,437 | |
| | | -------------------------- | |
| (=) Subtotal: | = | $925,009 | |
| (+) Senior Appraised Value: | + | $0 | |
| (+) Non-Senior Appraised Value: | + | $925,009 | |
| | | -------------------------- | |
| (=) Total Appraised Value: | = | $925,009 | |
| (–) Senior Exemption Loss: | – | $0 | |
| (–) Exemption Loss: | – | $0 | |
| | | -------------------------- | |
| (=) Taxable Value: | = | $925,009 | |
Taxing Jurisdiction
| Owner: | KETTLES TRAIL, LLC | | |
| % Ownership: | 100.0000000000% | | |
| Total Value: | $990,446 | | |
| Tax Area: | 312 - APPRAISER-Cpvl Schl Dist, outside Cpvl, improved, greater than 1 acre |
| CF | Conservation Futures | 0.0316035091 | $925,009 | $925,009 | $29.23 | | |
| CEM2 | Cemetery #2 | 0.0095056933 | $925,009 | $925,009 | $8.79 | | |
| FIRE5 | Fire & Rescue Dist #5 C Whidbey GEN | 1.2008080668 | $925,009 | $925,009 | $1,110.76 | | |
| FIRE5BOND | Fire & Rescue Dist #5 C Whidbey BOND | 0.1400090713 | $925,009 | $925,009 | $129.51 | | |
| HOBOND | Hospital BOND | 0.1910887512 | $925,009 | $925,009 | $176.76 | | |
| HOGEN | Hospital GEN | 0.3902502903 | $925,009 | $925,009 | $360.99 | | |
| CE | County Current Expense | 0.3708482477 | $925,009 | $925,009 | $343.04 | | |
| CR | County Roads | 0.4584763726 | $925,009 | $925,009 | $424.09 | | |
| ISLANDEMS | Hospital GEN (EMS) | 0.5000000000 | $925,009 | $925,009 | $462.50 | | |
| LIB | Library Sno-Isle GEN | 0.3153421757 | $925,009 | $925,009 | $291.69 | | |
| LIBCAP | Library Sno-Isle BOND (Cap Fac Imp Area) | 0.0543427938 | $925,009 | $925,009 | $50.27 | | |
| POCOUP | Port of Coupeville GEN | 0.1093371703 | $925,009 | $925,009 | $101.14 | | |
| POCOUPIDD | Port of Coupeville IDD | 0.3409740022 | $925,009 | $925,009 | $315.40 | | |
| COUPSDTECH | School 204 CP (TECH) | 0.7545480007 | $925,009 | $925,009 | $697.96 | | |
| SCH204MO | School 204 Enrichment | 0.6716186034 | $925,009 | $925,009 | $621.25 | | |
| ST | State School | 1.3035497053 | $925,009 | $925,009 | $1,205.80 | | |
| ST2 | State School Part 2 | 0.8169543533 | $925,009 | $925,009 | $755.69 | | |
| | Total Tax Rate: | 7.6592568070 | | | | | |
| | | | | Taxes w/Current Exemptions: | $7,084.87 | | |
| | | | | Taxes w/o Exemptions: | $7,084.87 | | |
Improvement / Building
| Improvement #1: | RESIDENTIAL | State Code: | Y | 864.0 sqft | Value: | $63,226 |
| Bathrooms: | 1 | Bedrooms: | 1 | | Ceiling: | BEAM PAINTED | Exterior Wall/Cover: | LOG RUSTIC HAND HEWN/OVERSIZED | | Floor Covering: | (NONE) | Floor Structure: | SLAB ON GRADE | | Foundation: | CONCRETE | Heating: | WALL HEAT ELECTRIC | | Interior Finish: | DRYWALL PAINT | Plumbing Fixture Cnt: | 1 | | Roof Slope: | 4" IN 12" | Roof Structure/Cover: | BEAM ROLL COMPOSITION |
|
| | Type | Description | Class CD | Sub Class CD | Year Built | Area |
| | BAS | BASE/MAIN FLOOR | 3 | 0 | 1972 | 576.0 |
| | LOF | LOFT | 3 | 0 | 1972 | 288.0 |
| | CPD | OPEN CARPORT DIRT FLOOR | 3 | 0 | 1972 | 288.0 |
| | UTY | STORAGE/UTILITY | 3 | 0 | 1972 | 272.0 |
Sketch
Property Image
Land
| 1 | 88 | DESIGNATED FOREST | 7.6700 | 334105.20 | 0.00 | 0.00 | 1.00 | $33,104 | $1,143 |
| 2 | HS | HOMESITE | 1.0000 | 43560.00 | 660.00 | 0.00 | 1.00 | $340,000 | $0 |
| 3 | 88 | DESIGNATED FOREST | 7.9100 | 344559.60 | 0.00 | 0.00 | 1.00 | $34,140 | $664 |
| 4 | HB | HIGH BLUFF | 0.0000 | 0.00 | 750.00 | 0.00 | 1.00 | $507,762 | $0 |
| 5 | 91 | UNDEVELOPED LAND-METES AND BOUNDS | 2.8300 | 123274.80 | 660.00 | 0.00 | 1.00 | $12,214 | $0 |
Roll Value History
| 2026 | N/A | N/A | N/A | N/A | N/A |
| 2025 | $63,226 | $927,220 | $1,807 | $925,009 | $925,009 |
| 2024 | $69,858 | $1,000,000 | $1,815 | $878,385 | $878,385 |
| 2023 | $71,306 | $1,000,000 | $1,745 | $270,372 | $270,372 |
| 2022 | $65,877 | $1,000,000 | $1,745 | $264,943 | $264,943 |
| 2021 | $58,425 | $1,000,000 | $1,745 | $257,491 | $257,491 |
| 2020 | $57,727 | $1,000,000 | $1,745 | $256,793 | $256,793 |
| 2019 | $42,911 | $1,000,000 | $1,683 | $241,915 | $241,915 |
| 2018 | $21,294 | $1,000,000 | $1,660 | $220,275 | $220,275 |
| 2017 | $21,468 | $562,308 | $1,660 | $134,083 | $134,083 |
| 2016 | $21,816 | $562,308 | $1,527 | $134,298 | $134,298 |
| 2015 | $22,165 | $562,308 | $1,527 | $134,647 | $134,647 |
| 2014 | $22,512 | $562,308 | $1,527 | $134,994 | $134,994 |
| 2013 | $22,861 | $562,308 | $1,527 | $135,343 | $135,343 |
| 2012 | $16,093 | $562,320 | $0 | $578,413 | $578,413 |
| 2011 | $16,337 | $624,800 | $0 | $641,137 | $641,137 |
| 2010 | $21,085 | $624,800 | $0 | $645,885 | $645,885 |
| 2009 | $22,125 | $802,560 | $0 | $824,685 | $824,685 |
| 2008 | $22,592 | $739,960 | $0 | $762,552 | $762,552 |
Deed and Sales History
| 1 | 08/08/2008 | QCD | Quit Claim Deed | TOSH, RONALD B | KETTLES TRAIL, LLC, | | | $0.00 | 82255 | 4235734 |
| 2 | 04/12/2006 | WD | Warranty Deed | RINKER, RICHARD L | TOSH, RONALD B | | | $0.00 | 61800 | 4168643 |
| 3 | 02/21/2003 | QCD | Quit Claim Deed | BEPLER, SHERYL E | RINKER, RICHARD L | | | $0.00 | 30691 | 4048475 |
| 4 | 01/01/1988 | PRD | Personal Representatives Deed | BEPLER, GARELD C | BEPLER, SHERYL E | | | $0.00 | 80123 | 88000501 |
| 5 | 01/01/1900 | OTHER | Other - Misc. Documents | Unknown | BEPLER, GARELD C | | | $0.00 | 0 | 0 |
Payout Agreement
| No payout information available.. |