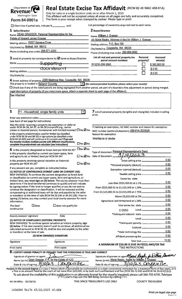
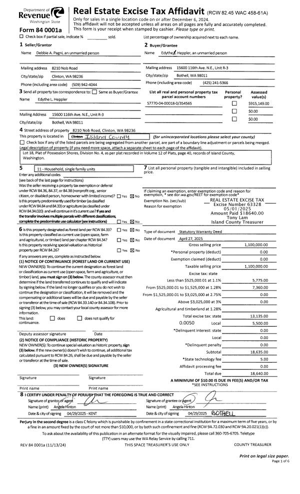
Property
Account |
| Property ID: | 260 | Abbreviated Legal Description: | 13 - IN GL3: LOT 4 BLK 1 OF UNREC PLAT OF OCEAN VIEW GARDENS: BG NECR GL3 S01*W 667.01' N88*W1182.92' TO CM ON WLN W BEACH RD N13*E511 .83' TPB N13*E15.26' NELY ALG CUR/R 67.15' N88*W283 .69' S23*E88.27' S88*E226 .66' TPB |
| Geographic ID: | R03213-251-4090 | Agent Code: | |
| Type: | Real | | |
| Tax Area: | 110 - APPRAISER-OH Schl Dist, outside OH, improved & 1 acre or less | Land Use Code | 11 |
| Open Space: | N | DFL | N |
| Historic Property: | N | Remodel Property: | N |
| Multi-Family Redevelopment: | N | | |
| Township: | 32 | Section: | 13 |
| Range: | R0 |
Location |
| Address: | 1395 WEST BEACH RD OAK HARBOR, WA 98277 | Mapsco: | |
| Neighborhood: | Area 2 Waterfront Westside Res | Map ID: | 1 |
| Neighborhood CD: | 2WFTW01R |
Owner |
| Name: | ASTON, DAVID M. | Owner ID: | 306985 |
| Mailing Address: | 518 FORREST PARK DR FIRCREST, WA 98466 | % Ownership: | 100.0000000000% |
| | | Exemptions: | |
Taxes and Assessment Details
Values
| (+) Improvement Homesite Value: | + | $0 | |
| (+) Improvement Non-Homesite Value: | + | $482,408 | |
| (+) Land Homesite Value: | + | $0 | |
| (+) Land Non-Homesite Value: | + | $501,363 | |
| (+) Curr Use (HS): | + | $0 | $0 |
| (+) Curr Use (NHS): | + | $0 | $0 |
| | | -------------------------- | |
| (=) Market Value: | = | $983,771 | |
| (–) Productivity Loss: | – | $0 | |
| | | -------------------------- | |
| (=) Subtotal: | = | $983,771 | |
| (+) Senior Appraised Value: | + | $0 | |
| (+) Non-Senior Appraised Value: | + | $983,771 | |
| | | -------------------------- | |
| (=) Total Appraised Value: | = | $983,771 | |
| (–) Senior Exemption Loss: | – | $0 | |
| (–) Exemption Loss: | – | $0 | |
| | | -------------------------- | |
| (=) Taxable Value: | = | $983,771 | |
Taxing Jurisdiction
| Owner: | ASTON, DAVID M. | | |
| % Ownership: | 100.0000000000% | | |
| Total Value: | $983,771 | | |
| Tax Area: | 110 - APPRAISER-OH Schl Dist, outside OH, improved & 1 acre or less |
| CF | Conservation Futures | 0.0316035091 | $983,771 | $983,771 | $31.09 | | |
| CEM1 | Cemetery #1 | 0.0040320932 | $983,771 | $983,771 | $3.97 | | |
| FIRE2 | Fire & Rescue Dist #2 N Whidbey GEN | 0.5475949600 | $983,771 | $983,771 | $538.71 | | |
| HOBOND | Hospital BOND | 0.1910887512 | $983,771 | $983,771 | $187.99 | | |
| HOGEN | Hospital GEN | 0.3902502903 | $983,771 | $983,771 | $383.92 | | |
| CE | County Current Expense | 0.3708482477 | $983,771 | $983,771 | $364.83 | | |
| CR | County Roads | 0.4584763726 | $983,771 | $983,771 | $451.04 | | |
| ISLANDEMS | Hospital GEN (EMS) | 0.5000000000 | $983,771 | $983,771 | $491.89 | | |
| LIB | Library Sno-Isle GEN | 0.3153421757 | $983,771 | $983,771 | $310.22 | | |
| NWHIDPRMT | P & R N Whidbey GEN | 0.2004466701 | $983,771 | $983,771 | $197.19 | | |
| SCH201MO | School 201 Enrichment | 1.8559231640 | $983,771 | $983,771 | $1,825.80 | | |
| ST | State School | 1.3035497053 | $983,771 | $983,771 | $1,282.39 | | |
| ST2 | State School Part 2 | 0.8169543533 | $983,771 | $983,771 | $803.70 | | |
| | Total Tax Rate: | 6.9861102925 | | | | | |
| | | | | Taxes w/Current Exemptions: | $6,872.74 | | |
| | | | | Taxes w/o Exemptions: | $6,872.74 | | |
Improvement / Building
| Improvement #1: | RESIDENTIAL | State Code: | Y | 2236.0 sqft | Value: | $482,408 |
| Bathrooms: | 3.5 | Bedrooms: | 3 | | Ceiling: | DRYWALL PAINTED | Cooling: | HEAT PUMP/CONV/V | | Exterior Wall/Cover: | SHINGLE | Floor Covering: | HARDWOOD/CARP 60-40 | | Floor Structure: | WOOD W/SUBFLOOR | Foundation: | CONCRETE | | Interior Finish: | DRYWALL PAINT | Plumbing Fixture Cnt: | 14 | | Roof Slope: | 12" IN 12" | Roof Structure/Cover: | BEAM ASPHALT |
|
| | Type | Description | Class CD | Sub Class CD | Year Built | Area |
| | BAS | BASE/MAIN FLOOR | 4 | 0 | 1985 | 1316.2 |
| | AGR | ATTACHED GARAGE | 4 | 0 | 1985 | 393.9 |
| | UPS | UPPER STORY | 4 | 0 | 1985 | 798.6 |
| | OWP | OPEN WOOD PORCH W/STEPS | 4 | 0 | 1985 | 472.2 |
| | UPH | HALF STORY | 4 | 0 | 1985 | 121.2 |
Sketch
Property Image
Land
| 1 | HS | HOMESITE | 0.4700 | 20473.20 | 80.00 | 0.00 | 1.00 | $338,636 | $0 |
| 2 | HB | HIGH BLUFF | 0.0000 | 0.00 | 80.00 | 0.00 | 1.00 | $162,727 | $0 |
Roll Value History
| 2026 | N/A | N/A | N/A | N/A | N/A |
| 2025 | $482,408 | $501,363 | $0 | $983,771 | $983,771 |
| 2024 | $454,762 | $500,000 | $0 | $954,762 | $954,762 |
| 2023 | $460,292 | $330,000 | $0 | $790,292 | $790,292 |
| 2022 | $421,811 | $330,000 | $0 | $751,811 | $751,811 |
| 2021 | $371,145 | $275,000 | $0 | $646,145 | $646,145 |
| 2020 | $361,551 | $240,000 | $0 | $601,551 | $601,551 |
| 2019 | $268,055 | $250,000 | $0 | $518,055 | $518,055 |
| 2018 | $243,108 | $200,000 | $0 | $443,108 | $443,108 |
| 2017 | $243,108 | $200,000 | $0 | $443,108 | $443,108 |
| 2016 | $246,145 | $200,000 | $0 | $446,145 | $446,145 |
| 2015 | $249,185 | $200,000 | $0 | $449,185 | $449,185 |
| 2014 | $252,223 | $200,000 | $0 | $452,223 | $452,223 |
| 2013 | $255,262 | $161,234 | $0 | $416,496 | $416,496 |
| 2012 | $249,614 | $161,234 | $0 | $410,848 | $410,848 |
| 2011 | $252,764 | $161,234 | $0 | $413,998 | $413,998 |
| 2010 | $261,091 | $161,234 | $0 | $422,325 | $422,325 |
| 2009 | $272,192 | $228,527 | $0 | $500,719 | $500,719 |
| 2008 | $275,348 | $228,527 | $0 | $503,875 | $503,875 |
| 2007 | $262,259 | $242,086 | $0 | $504,345 | $504,345 |
Deed and Sales History
| 1 | 10/24/2022 | QCD | Quit Claim Deed | ASTON, MURRAY E. | ASTON, DAVID M. | | | $0.00 | 55424 | 4554962 |
| 2 | 10/24/2022 | QCD | Quit Claim Deed | ASTON, MURRAY E | ASTON, DAVID M. | | | $0.00 | 55423 | 4554962 |
| 3 | 07/08/1999 | WD | Warranty Deed | MONTANA, BRIAN & | ASTON, MURRAY E | | | $365,000.00 | 92804 | 99016678 |
| 4 | 01/01/1993 | WD | Warranty Deed | GRANT, THOMAS R | MONTANA, BRIAN & | | | $231,000.00 | 30428 | 93002283 |
| 5 | 12/01/1987 | WD | Warranty Deed | GRANT, THOMAS R | GRANT, THOMAS R | | | $0.00 | 73826 | 87016627 |
| 6 | 10/01/1987 | WD | Warranty Deed | GRANT, THOMAS R | GRANT, THOMAS R | | | $128,000.00 | 73498 | 87015301 |
| 7 | 10/01/1987 | WD | Warranty Deed | CROSSLAND, MORTGAGE C | GRANT, THOMAS R | | | $0.00 | 73827 | 87016628 |
| 8 | 04/01/1987 | OTHER | Other - Misc. Documents | CROSSLAND, MORTGAGE C | CROSSLAND, MORTGAGE C | | | $0.00 | 62137 | 85013922 |
| 9 | 12/01/1986 | WD | Warranty Deed | AUTHENTIC, COLONIAL H | CROSSLAND, MORTGAGE C | | | $0.00 | 70021 | 87000246 |
| 10 | 10/01/1984 | WD | Warranty Deed | MASTON, MICHAEL J | AUTHENTIC, COLONIAL H | | | $40,000.00 | 43007 | 84004419 |
| 11 | 08/01/1980 | WD | Warranty Deed | SMITH, SHERMAN L | MASTON, MICHAEL J | | | $35,000.00 | 2857 | 372981 |
| 12 | 01/01/1900 | OTHER | Other - Misc. Documents | Unknown | SMITH, SHERMAN L | | | $0.00 | 0 | 0 |
Payout Agreement
| No payout information available.. |