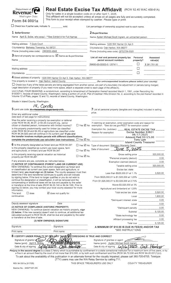
Property
Account |
| Property ID: | 2605 | Abbreviated Legal Description: | 6 - IN NE NW N OF CO RD EX: BG PT NLN SEC 2 1105'ELY FR NWCR NE NW S88*E175'M/L TP N88*W45.67'FR NECR NW S02*W 250' N88*W175'M/L TP WLN STATE OF WASH TR AF#100020 N02*E ALG WLN TPB |
| Geographic ID: | R13102-476-2550 | Agent Code: | |
| Type: | Real | | |
| Tax Area: | 312 - APPRAISER-Cpvl Schl Dist, outside Cpvl, improved, greater than 1 acre | Land Use Code | 67 |
| Open Space: | N | DFL | N |
| Historic Property: | N | Remodel Property: | N |
| Multi-Family Redevelopment: | N | | |
| Township: | 31 | Section: | 02 |
| Range: | R1 |
Location |
| Address: | 20018 SR20 COUPEVILLE, WA 98239 | Mapsco: | |
| Neighborhood: | Area 2 Coupeville Exempt Commercial | Map ID: | 23 |
| Neighborhood CD: | 2CpvExComm |
Owner |
| Name: | ISLAND COUNTY | Owner ID: | 307755 |
| Mailing Address: | PUBLIC WORKS - SOLID WASTE 1 NE 7TH ST COUPEVILLE, WA 98239 | % Ownership: | 100.0000000000% |
| | | Exemptions: | EX |
Taxes and Assessment Details
Values
| (+) Improvement Homesite Value: | + | $0 | |
| (+) Improvement Non-Homesite Value: | + | $80,204 | |
| (+) Land Homesite Value: | + | $0 | |
| (+) Land Non-Homesite Value: | + | $131,987 | |
| (+) Curr Use (HS): | + | $0 | $0 |
| (+) Curr Use (NHS): | + | $0 | $0 |
| | | -------------------------- | |
| (=) Market Value: | = | $212,191 | |
| (–) Productivity Loss: | – | $0 | |
| | | -------------------------- | |
| (=) Subtotal: | = | $212,191 | |
| (+) Senior Appraised Value: | + | $0 | |
| (+) Non-Senior Appraised Value: | + | $212,191 | |
| | | -------------------------- | |
| (=) Total Appraised Value: | = | $212,191 | |
| (–) Senior Exemption Loss: | – | $0 | |
| (–) Exemption Loss: | – | $212,191 | |
| | | -------------------------- | |
| (=) Taxable Value: | = | $0 | |
Taxing Jurisdiction
| Owner: | ISLAND COUNTY | | |
| % Ownership: | 100.0000000000% | | |
| Total Value: | $212,191 | | |
| Tax Area: | 312 - APPRAISER-Cpvl Schl Dist, outside Cpvl, improved, greater than 1 acre |
| CF | Conservation Futures | 0.0316035091 | $212,191 | $0 | $0.00 | | |
| CEM2 | Cemetery #2 | 0.0095056933 | $212,191 | $0 | $0.00 | | |
| FIRE5 | Fire & Rescue Dist #5 C Whidbey GEN | 1.2008080668 | $212,191 | $0 | $0.00 | | |
| FIRE5BOND | Fire & Rescue Dist #5 C Whidbey BOND | 0.1400090713 | $212,191 | $0 | $0.00 | | |
| HOBOND | Hospital BOND | 0.1910887512 | $212,191 | $0 | $0.00 | | |
| HOGEN | Hospital GEN | 0.3902502903 | $212,191 | $0 | $0.00 | | |
| CE | County Current Expense | 0.3708482477 | $212,191 | $0 | $0.00 | | |
| CR | County Roads | 0.4584763726 | $212,191 | $0 | $0.00 | | |
| ISLANDEMS | Hospital GEN (EMS) | 0.5000000000 | $212,191 | $0 | $0.00 | | |
| LIB | Library Sno-Isle GEN | 0.3153421757 | $212,191 | $0 | $0.00 | | |
| LIBCAP | Library Sno-Isle BOND (Cap Fac Imp Area) | 0.0543427938 | $212,191 | $0 | $0.00 | | |
| POCOUP | Port of Coupeville GEN | 0.1093371703 | $212,191 | $0 | $0.00 | | |
| POCOUPIDD | Port of Coupeville IDD | 0.3409740022 | $212,191 | $0 | $0.00 | | |
| COUPSDTECH | School 204 CP (TECH) | 0.7545480007 | $212,191 | $0 | $0.00 | | |
| SCH204MO | School 204 Enrichment | 0.6716186034 | $212,191 | $0 | $0.00 | | |
| ST | State School | 1.3035497053 | $212,191 | $0 | $0.00 | | |
| ST2 | State School Part 2 | 0.8169543533 | $212,191 | $0 | $0.00 | | |
| | Total Tax Rate: | 7.6592568070 | | | | | |
| | | | | Taxes w/Current Exemptions: | $0.00 | | |
| | | | | Taxes w/o Exemptions: | $1,625.23 | | |
Improvement / Building
| Improvement #1: | COMMERCIAL | State Code: | F1 | 1904.0 sqft | Value: | $80,204 |
| Bathrooms: | 0 | Bedrooms: | 0 | | Ceiling: | PAINT OPEN FLOOR BAS | Exterior Wall/Cover: | STL/ALUM/SINGWL ST F | | Floor Covering: | CONCRETE SEALER | Floor Structure: | SLAB ON GRADE | | Foundation: | CONCRETE | Heating: | SPACE HEATERS | | Interior Finish: | SERVICE GARAGE | Plumbing Fixture Cnt: | 1 | | Roof Structure/Cover: | METAL/STEEL JOIST |   |   |
|
| | Type | Description | Class CD | Sub Class CD | Year Built | Area |
| | BAS | BASE/MAIN FLOOR | 2 | 0 | 1982 | 1872.0 |
| | STG | STORAGE | 2 | 0 | 1982 | 32.0 |
| | OP3 | OPEN PORCH W/ROOF | 2 | 0 | 1982 | 20.0 |
| | OP3 | OPEN PORCH W/ROOF | 2 | 0 | 1982 | 20.0 |
| | UTY | STORAGE/UTILITY | 2 | 0 | 1982 | 224.0 |
| | OWP | OPEN WOOD PORCH W/STEPS | 2 | 0 | 1982 | 76.0 |
| | oPV2 | PV/ASPH 3" | 2 | 0 | 1982 | 22200.0 |
| | oFN8 | CHN LK 6' | 2 | 0 | 1982 | 760.0 |
Sketch
Property Image
Land
| 1 | 77 | COMMUNITY | 2.0200 | 87991.20 | 0.00 | 0.00 | 1.00 | $131,987 | $0 |
Roll Value History
| 2026 | N/A | N/A | N/A | N/A | N/A |
| 2025 | $80,204 | $131,987 | $0 | $212,191 | $0 |
| 2024 | $70,364 | $131,987 | $0 | $202,351 | $0 |
| 2023 | $72,243 | $131,987 | $0 | $204,230 | $0 |
| 2022 | $64,101 | $131,987 | $0 | $196,088 | $0 |
| 2021 | $62,995 | $131,987 | $0 | $194,982 | $0 |
| 2020 | $62,870 | $131,987 | $0 | $194,857 | $0 |
| 2019 | $62,477 | $131,987 | $0 | $194,464 | $0 |
| 2018 | $74,277 | $131,987 | $0 | $206,264 | $0 |
| 2017 | $74,277 | $140,000 | $0 | $214,277 | $0 |
| 2016 | $74,277 | $140,000 | $0 | $214,277 | $0 |
| 2015 | $77,593 | $94,961 | $0 | $172,554 | $0 |
| 2014 | $79,167 | $94,961 | $0 | $174,128 | $0 |
| 2013 | $79,600 | $94,961 | $0 | $174,561 | $0 |
| 2012 | $115,536 | $107,818 | $0 | $223,354 | $0 |
| 2011 | $114,206 | $107,818 | $0 | $222,024 | $0 |
| 2010 | $122,692 | $107,818 | $0 | $230,510 | $0 |
| 2009 | $124,298 | $118,252 | $0 | $242,550 | $0 |
| 2008 | $126,044 | $118,252 | $0 | $244,296 | $0 |
| 2007 | $128,774 | $118,800 | $0 | $247,574 | $0 |
Deed and Sales History
| 1 | 06/02/2015 | QCD | Quit Claim Deed | ISLAND COUNTY | ISLAND COUNTY | | | $0.00 | 20350 | 4381628 |
| 2 | 07/02/2002 | QCD | Quit Claim Deed | STATE OF WASHINGTON, | ISLAND COUNTY, | | | $0.00 | 24732 | 4038675 |
| 3 | 01/01/1900 | OTHER | Other - Misc. Documents | Unknown | STATE OF WASHINGTON, | | | $0.00 | 0 | 0 |
Payout Agreement
| No payout information available.. |