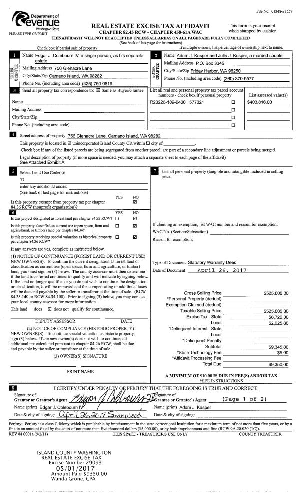
Property
Account |
| Property ID: | 262860 | Abbreviated Legal Description: | GREENBK BCH LOTS 28 & 29 INCL ADJ TIDES EX PT TO ST OF WASH AF#96010367 |
| Geographic ID: | S7040-00-00028-0 | Agent Code: | |
| Type: | Real | | |
| Tax Area: | 312 - APPRAISER-Cpvl Schl Dist, outside Cpvl, improved, greater than 1 acre | Land Use Code | 11 |
| Open Space: | N | DFL | N |
| Historic Property: | N | Remodel Property: | N |
| Multi-Family Redevelopment: | N | | |
| Township: | | Section: | |
| Range: | |
Location |
| Address: | 2989 NORTH BLUFF RD GREENBANK, WA 98253 | Mapsco: | |
| Neighborhood: | Cycle 3 | Map ID: | 366 |
| Neighborhood CD: | 3 |
Owner |
| Name: | GGB ENTERPRISES, LLC | Owner ID: | 303607 |
| Mailing Address: | 12914 NE 75TH ST KIRKLAND, WA 98033 | % Ownership: | 100.0000000000% |
| | | Exemptions: | |
Taxes and Assessment Details
Values
| (+) Improvement Homesite Value: | + | $0 | |
| (+) Improvement Non-Homesite Value: | + | $273,025 | |
| (+) Land Homesite Value: | + | $0 | |
| (+) Land Non-Homesite Value: | + | $776,010 | |
| (+) Curr Use (HS): | + | $0 | $0 |
| (+) Curr Use (NHS): | + | $0 | $0 |
| | | -------------------------- | |
| (=) Market Value: | = | $1,049,035 | |
| (–) Productivity Loss: | – | $0 | |
| | | -------------------------- | |
| (=) Subtotal: | = | $1,049,035 | |
| (+) Senior Appraised Value: | + | $0 | |
| (+) Non-Senior Appraised Value: | + | $1,049,035 | |
| | | -------------------------- | |
| (=) Total Appraised Value: | = | $1,049,035 | |
| (–) Senior Exemption Loss: | – | $0 | |
| (–) Exemption Loss: | – | $0 | |
| | | -------------------------- | |
| (=) Taxable Value: | = | $1,049,035 | |
Taxing Jurisdiction
| Owner: | GGB ENTERPRISES, LLC | | |
| % Ownership: | 100.0000000000% | | |
| Total Value: | $1,049,035 | | |
| Tax Area: | 312 - APPRAISER-Cpvl Schl Dist, outside Cpvl, improved, greater than 1 acre |
| CF | Conservation Futures | 0.0316035091 | $1,049,035 | $1,049,035 | $33.15 | | |
| CEM2 | Cemetery #2 | 0.0095056933 | $1,049,035 | $1,049,035 | $9.97 | | |
| FIRE5 | Fire & Rescue Dist #5 C Whidbey GEN | 1.2008080668 | $1,049,035 | $1,049,035 | $1,259.69 | | |
| FIRE5BOND | Fire & Rescue Dist #5 C Whidbey BOND | 0.1400090713 | $1,049,035 | $1,049,035 | $146.87 | | |
| HOBOND | Hospital BOND | 0.1910887512 | $1,049,035 | $1,049,035 | $200.46 | | |
| HOGEN | Hospital GEN | 0.3902502903 | $1,049,035 | $1,049,035 | $409.39 | | |
| CE | County Current Expense | 0.3708482477 | $1,049,035 | $1,049,035 | $389.03 | | |
| CR | County Roads | 0.4584763726 | $1,049,035 | $1,049,035 | $480.96 | | |
| ISLANDEMS | Hospital GEN (EMS) | 0.5000000000 | $1,049,035 | $1,049,035 | $524.52 | | |
| LIB | Library Sno-Isle GEN | 0.3153421757 | $1,049,035 | $1,049,035 | $330.80 | | |
| LIBCAP | Library Sno-Isle BOND (Cap Fac Imp Area) | 0.0543427938 | $1,049,035 | $1,049,035 | $57.01 | | |
| POCOUP | Port of Coupeville GEN | 0.1093371703 | $1,049,035 | $1,049,035 | $114.70 | | |
| POCOUPIDD | Port of Coupeville IDD | 0.3409740022 | $1,049,035 | $1,049,035 | $357.69 | | |
| COUPSDTECH | School 204 CP (TECH) | 0.7545480007 | $1,049,035 | $1,049,035 | $791.55 | | |
| SCH204MO | School 204 Enrichment | 0.6716186034 | $1,049,035 | $1,049,035 | $704.55 | | |
| ST | State School | 1.3035497053 | $1,049,035 | $1,049,035 | $1,367.47 | | |
| ST2 | State School Part 2 | 0.8169543533 | $1,049,035 | $1,049,035 | $857.01 | | |
| | Total Tax Rate: | 7.6592568070 | | | | | |
| | | | | Taxes w/Current Exemptions: | $8,034.82 | | |
| | | | | Taxes w/o Exemptions: | $8,034.82 | | |
Improvement / Building
| Improvement #1: | RESIDENTIAL | State Code: | Y | 1687.7 sqft | Value: | $273,025 |
| Bathrooms: | 1 | Bedrooms: | 2 | | Ceiling: | DRYWALL PAINTED | Exterior Wall/Cover: | VINYL | | Floor Covering: | VINYL TILE/CARP 20-80 | Floor Structure: | WOOD W/SUBFLOOR | | Foundation: | CONCRETE | Heating: | FHA GAS | | Interior Finish: | DRYWALL PAINT | Plumbing Fixture Cnt: | 6 | | Roof Slope: | 4" IN 12" | Roof Structure/Cover: | ALUM LIGHT |
|
| | Type | Description | Class CD | Sub Class CD | Year Built | Area |
| | BAS | BASE/MAIN FLOOR | 3 | 0 | 1951 | 1687.7 |
| | UB8 | BASEMENT UNFINISHED 8" | 3 | 0 | 1951 | 355.2 |
| | OP1 | OPEN PORCH SLAB | 3 | 0 | 1951 | 503.5 |
| | OP2 | OPEN PORCH W/STEPS | 3 | 0 | 1951 | 54.0 |
| | OCP | OPEN CARPORT | 3 | 0 | 1951 | 286.3 |
| | OWP | OPEN WOOD PORCH W/STEPS | 3 | 0 | 1951 | 989.5 |
| | UTY | STORAGE/UTILITY | 3 | 0 | 1951 | 768.0 |
Sketch
Property Image
Land
| 1 | HB | HIGH BLUFF | 3.1000 | 135036.00 | 202.00 | 0.00 | 1.00 | $775,000 | $0 |
| 2 | 55 | TIDES | 0.0000 | 0.00 | 101.00 | 0.00 | 1.00 | $1,010 | $0 |
Roll Value History
| 2026 | N/A | N/A | N/A | N/A | N/A |
| 2025 | $273,025 | $776,010 | $0 | $1,049,035 | $1,049,035 |
| 2024 | $277,086 | $776,010 | $0 | $1,053,096 | $1,053,096 |
| 2023 | $281,146 | $751,010 | $0 | $1,032,156 | $1,032,156 |
| 2022 | $258,260 | $626,010 | $0 | $884,270 | $884,270 |
| 2021 | $227,773 | $451,010 | $0 | $678,783 | $678,783 |
| 2020 | $223,053 | $401,010 | $0 | $624,063 | $624,063 |
| 2019 | $142,396 | $401,010 | $0 | $543,406 | $543,406 |
| 2018 | $142,868 | $375,000 | $0 | $517,868 | $517,868 |
| 2017 | $143,755 | $351,010 | $0 | $494,765 | $494,765 |
| 2016 | $145,644 | $351,010 | $0 | $496,654 | $496,654 |
| 2015 | $130,139 | $351,010 | $0 | $481,149 | $481,149 |
| 2014 | $132,141 | $351,010 | $0 | $483,151 | $483,151 |
| 2013 | $131,624 | $251,010 | $0 | $382,634 | $382,634 |
| 2012 | $133,685 | $297,019 | $0 | $430,704 | $430,704 |
| 2011 | $135,749 | $297,019 | $0 | $432,768 | $432,768 |
| 2010 | $148,339 | $297,019 | $0 | $445,358 | $445,358 |
| 2009 | $154,837 | $395,689 | $0 | $550,526 | $550,526 |
| 2008 | $156,928 | $395,689 | $0 | $552,617 | $552,617 |
| 2007 | $154,728 | $245,104 | $0 | $399,832 | $399,832 |
Deed and Sales History
| 1 | 03/23/2022 | WD | Warranty Deed | BOTCH, GREGORY G | GGB ENTERPRISES, LLC | | | $0.00 | 52496 | 4542383 |
| 2 | 04/25/2020 | WD | Warranty Deed | GGB ENTERPRISES, LLC | BOTCH, GREGORY G | | | $0.00 | 43068 | 4486898 |
| 3 | 08/14/2017 | WD | Warranty Deed | BOTCH, GREGORY G | GGB ENTERPRISES, LLC | | | $0.00 | 31080 | 4430199 |
| 4 | 01/28/2016 | WD | Warranty Deed | BOTCH, GREGORY G | BOTCH, GREGORY G | | | $340,000.00 | 22973 | 4393280 |
| 5 | 11/04/2015 | QCD | Quit Claim Deed | BOTCH HOLDINGS LLC | BOTCH, GREGORY G | | | $0.00 | 22163 | 4389595 |
| 6 | 12/30/2002 | QCD | Quit Claim Deed | BOTCH, ELIZABETH | BOTCH HOLDINGS LLC, | | | $0.00 | 30065 | 4043329 |
| 7 | 12/30/2002 | QCD | Quit Claim Deed | BOTCH, ELIZABETH T | BOTCH, ELIZABETH | | | $0.00 | 30064 | 4043328 |
| 8 | 08/01/1997 | BLA | DNU - Boundary Line Adjustment | BOTCH, ELIZABETH T | BOTCH, ELIZABETH T | | | $0.00 | 67539 | 97011993 |
| 9 | 05/01/1996 | WD | Warranty Deed | BOTCH, ELIZABETH T | BOTCH, ELIZABETH T | | | $1,570.00 | 62076 | 96010367 |
| 10 | 08/01/1992 | QCD | Quit Claim Deed | BOTCH, ELIZABETH | BOTCH, ELIZABETH T | | | $0.00 | 24490 | 92021969 |
| 11 | 12/01/1988 | QCD | Quit Claim Deed | BOTCH, PHILP M | BOTCH, ELIZABETH | | | $0.00 | 90072 | 89000237 |
| 12 | 01/01/1900 | OTHER | Other - Misc. Documents | Unknown | BOTCH, PHILP M | | | $0.00 | 0 | 0 |
Payout Agreement
| No payout information available.. |