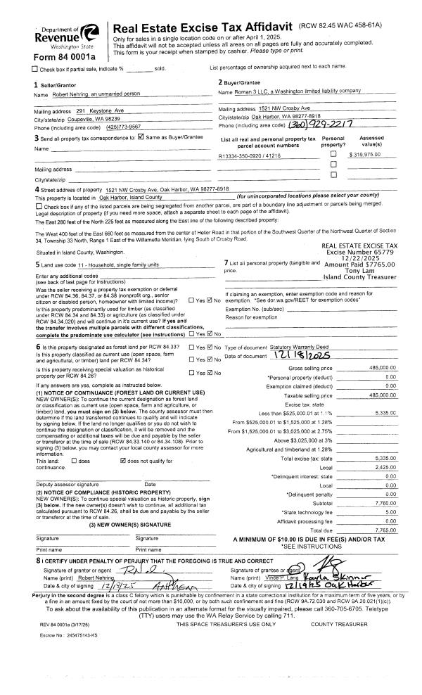
Property
Account |
| Property ID: | 262931 | Abbreviated Legal Description: | GREENBK EST 1 LOT 5 BLK 1 |
| Geographic ID: | S7045-00-01005-0 | Agent Code: | |
| Type: | Real | | |
| Tax Area: | 310 - APPRAISER-Cpvl Schl Dist, outside Cpvl, improved & 1 acre or less | Land Use Code | 11 |
| Open Space: | N | DFL | N |
| Historic Property: | N | Remodel Property: | N |
| Multi-Family Redevelopment: | N | | |
| Township: | | Section: | |
| Range: | |
Location |
| Address: | 921 MOHAWK DR GREENBANK, WA 98253 | Mapsco: | |
| Neighborhood: | Cycle 3 | Map ID: | 383 |
| Neighborhood CD: | 3 |
Owner |
| Name: | PLOOF, CHARLES T | Owner ID: | 54063 |
| Mailing Address: | 921 MOHAWK DR GREENBANK, WA 98253 | % Ownership: | 100.0000000000% |
| | | Exemptions: | SNR/DSBL |
Taxes and Assessment Details
Values
| (+) Improvement Homesite Value: | + | $48,135 | |
| (+) Improvement Non-Homesite Value: | + | $0 | |
| (+) Land Homesite Value: | + | $250,000 | |
| (+) Land Non-Homesite Value: | + | $0 | |
| (+) Curr Use (HS): | + | $0 | $0 |
| (+) Curr Use (NHS): | + | $0 | $0 |
| | | -------------------------- | |
| (=) Market Value: | = | $298,135 | |
| (–) Productivity Loss: | – | $0 | |
| | | -------------------------- | |
| (=) Subtotal: | = | $298,135 | |
| (+) Senior Appraised Value: | + | $155,840 | |
| (+) Non-Senior Appraised Value: | + | $0 | |
| | | -------------------------- | |
| (=) Total Appraised Value: | = | $155,840 | |
| (–) Senior Exemption Loss: | – | $93,504 | |
| (–) Exemption Loss: | – | $0 | |
| | | -------------------------- | |
| (=) Taxable Value: | = | $62,336 | |
Taxing Jurisdiction
| Owner: | PLOOF, CHARLES T | | |
| % Ownership: | 100.0000000000% | | |
| Total Value: | $298,135 | | |
| Tax Area: | 310 - APPRAISER-Cpvl Schl Dist, outside Cpvl, improved & 1 acre or less |
| CF | Conservation Futures | 0.0316035091 | $298,135 | $62,336 | $1.97 | | |
| CEM2 | Cemetery #2 | 0.0095056933 | $298,135 | $62,336 | $0.59 | | |
| FIRE5 | Fire & Rescue Dist #5 C Whidbey GEN | 1.2008080668 | $298,135 | $62,336 | $74.85 | | |
| FIRE5BOND | Fire & Rescue Dist #5 C Whidbey BOND | 0.0000000000 | $298,135 | $0 | $0.00 | | |
| HOBOND | Hospital BOND | 0.0000000000 | $298,135 | $0 | $0.00 | | |
| HOGEN | Hospital GEN | 0.3902502903 | $298,135 | $62,336 | $24.33 | | |
| CE | County Current Expense | 0.3708482477 | $298,135 | $62,336 | $23.12 | | |
| CR | County Roads | 0.4584763726 | $298,135 | $62,336 | $28.58 | | |
| ISLANDEMS | Hospital GEN (EMS) | 0.5000000000 | $298,135 | $62,336 | $31.17 | | |
| LIB | Library Sno-Isle GEN | 0.3153421757 | $298,135 | $62,336 | $19.66 | | |
| LIBCAP | Library Sno-Isle BOND (Cap Fac Imp Area) | 0.0000000000 | $298,135 | $0 | $0.00 | | |
| POCOUP | Port of Coupeville GEN | 0.1093371703 | $298,135 | $62,336 | $6.82 | | |
| POCOUPIDD | Port of Coupeville IDD | 0.3409740022 | $298,135 | $62,336 | $21.25 | | |
| COUPSDTECH | School 204 CP (TECH) | 0.0000000000 | $298,135 | $0 | $0.00 | | |
| SCH204MO | School 204 Enrichment | 0.0000000000 | $298,135 | $0 | $0.00 | | |
| ST | State School | 1.3035497053 | $298,135 | $62,336 | $81.26 | | |
| ST2 | State School Part 2 | 0.0000000000 | $298,135 | $0 | $0.00 | | |
| | Total Tax Rate: | 5.0306952333 | | | | | |
| | | | | Taxes w/Current Exemptions: | $313.60 | | |
| | | | | Taxes w/o Exemptions: | $2,283.48 | | |
Improvement / Building
| Improvement #1: | RESIDENTIAL | State Code: | Y | 598.0 sqft | Value: | $48,135 |
| Bathrooms: | 1 | Bedrooms: | 1 | | Ceiling: | DRYWALL PAINTED | Exterior Wall/Cover: | WOOD SIDING | | Floor Covering: | VINYL 100% | Floor Structure: | WOOD W/SUBFLOOR | | Foundation: | WOOD BLOCKS | Heating: | BASEBOARD ELECTRIC | | Interior Finish: | DRYWALL PAINT | Plumbing Fixture Cnt: | 6 | | Roof Slope: | 5" IN 12" | Roof Structure/Cover: | CJ WOOD SHAKES |
|
| | Type | Description | Class CD | Sub Class CD | Year Built | Area |
| | BAS | BASE/MAIN FLOOR | 2 | 0 | 1938 | 598.0 |
| | CPD | OPEN CARPORT DIRT FLOOR | 2 | 0 | 1938 | 166.0 |
| | UTY | STORAGE/UTILITY | 2 | 0 | 1938 | 280.0 |
| | UTY | STORAGE/UTILITY | 2 | 0 | 1938 | 315.0 |
| | OWP | OPEN WOOD PORCH W/STEPS | 2 | 0 | 1938 | 219.0 |
Sketch
Property Image
Land
| 1 | 16 | AC (00.51-01.00) | 0.6100 | 26571.60 | 0.00 | 0.00 | 1.00 | $250,000 | $0 |
Roll Value History
| 2026 | N/A | N/A | N/A | N/A | N/A |
| 2025 | $48,135 | $250,000 | $0 | $298,135 | $62,336 |
| 2024 | $49,190 | $240,000 | $0 | $289,190 | $62,336 |
| 2023 | $49,190 | $230,000 | $0 | $279,190 | $62,336 |
| 2022 | $44,544 | $220,000 | $0 | $264,544 | $62,336 |
| 2021 | $38,732 | $140,000 | $0 | $178,732 | $62,336 |
| 2020 | $37,155 | $100,000 | $0 | $137,155 | $54,862 |
| 2019 | $27,132 | $160,000 | $0 | $187,132 | $62,336 |
| 2018 | $27,132 | $155,000 | $0 | $182,132 | $62,336 |
| 2017 | $27,132 | $115,000 | $0 | $142,132 | $56,853 |
| 2016 | $25,900 | $85,000 | $0 | $110,900 | $44,360 |
| 2015 | $25,900 | $90,000 | $0 | $115,900 | $46,360 |
| 2014 | $25,900 | $55,000 | $0 | $80,900 | $20,900 |
| 2013 | $26,541 | $70,000 | $0 | $96,541 | $36,541 |
| 2012 | $27,182 | $85,000 | $0 | $112,182 | $44,873 |
| 2011 | $27,822 | $100,000 | $0 | $127,822 | $51,129 |
| 2010 | $34,927 | $100,000 | $0 | $134,927 | $53,971 |
| 2009 | $35,843 | $119,997 | $0 | $155,840 | $62,336 |
| 2008 | $36,705 | $120,000 | $0 | $156,705 | $156,705 |
| 2007 | $37,501 | $120,000 | $0 | $157,501 | $157,501 |
Deed and Sales History
| 1 | 08/07/2009 | QCD | Quit Claim Deed | PLOOF, FRANK G | PLOOF, CHARLES T | | | $0.00 | 91958 | 4258868 |
| 2 | 05/01/1993 | QCD | Quit Claim Deed | PLOOF, FRANK G | PLOOF, FRANK G | | | $0.00 | 31904 | 93009989 |
| 3 | 08/01/1988 | QCD | Quit Claim Deed | PLOOF, DOROTHY | PLOOF, FRANK G | | | $0.00 | 82533 | 88009558 |
| 4 | 01/01/1900 | OTHER | Other - Misc. Documents | Unknown | PLOOF, DOROTHY | | | $0.00 | 0 | 0 |
Payout Agreement
| No payout information available.. |