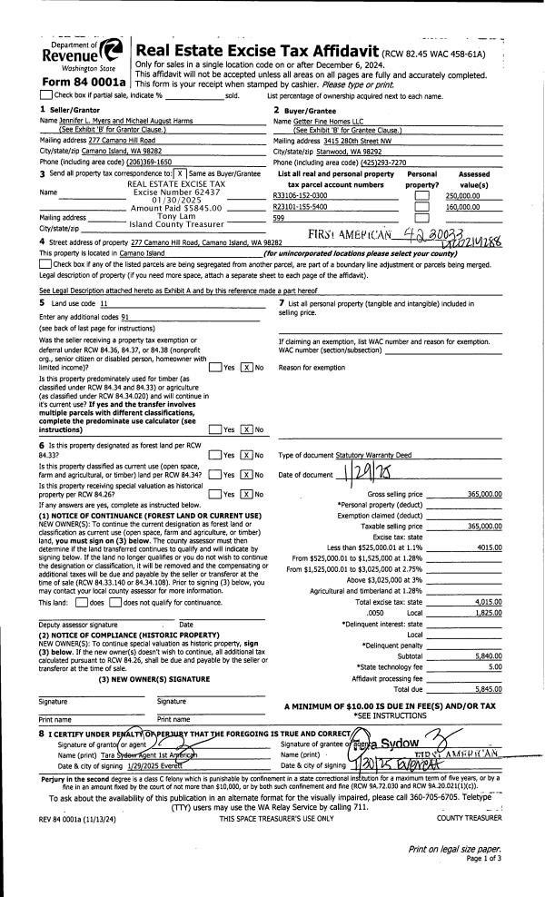
Property
Account |
| Property ID: | 26386 | Abbreviated Legal Description: | 9 J C DAVIS DC - BG NE CR SD DLC S631.84' W20' TPB W320' S78.98' E320' N78.98' TPB SUB EZ W20' FR RD |
| Geographic ID: | R13232-010-4990 | Agent Code: | |
| Type: | Real | | |
| Tax Area: | 319 - APPRAISER-Cpvl Schl Dist, outside Cpvl, vacant & 50 acres or less | Land Use Code | 91 |
| Open Space: | N | DFL | N |
| Historic Property: | N | Remodel Property: | N |
| Multi-Family Redevelopment: | N | | |
| Township: | 32 | Section: | 32 |
| Range: | R1 |
Location |
| Address: | | Mapsco: | |
| Neighborhood: | Cycle 2 | Map ID: | 171 |
| Neighborhood CD: | 2 |
Owner |
| Name: | GRASSER, DEAN | Owner ID: | 312429 |
| Mailing Address: | 19327 SPRAGUE DR BOTHELL, WA 98012 | % Ownership: | 100.0000000000% |
| | | Exemptions: | |
Taxes and Assessment Details
Values
| (+) Improvement Homesite Value: | + | $0 | |
| (+) Improvement Non-Homesite Value: | + | $0 | |
| (+) Land Homesite Value: | + | $0 | |
| (+) Land Non-Homesite Value: | + | $151,600 | |
| (+) Curr Use (HS): | + | $0 | $0 |
| (+) Curr Use (NHS): | + | $0 | $0 |
| | | -------------------------- | |
| (=) Market Value: | = | $151,600 | |
| (–) Productivity Loss: | – | $0 | |
| | | -------------------------- | |
| (=) Subtotal: | = | $151,600 | |
| (+) Senior Appraised Value: | + | $0 | |
| (+) Non-Senior Appraised Value: | + | $151,600 | |
| | | -------------------------- | |
| (=) Total Appraised Value: | = | $151,600 | |
| (–) Senior Exemption Loss: | – | $0 | |
| (–) Exemption Loss: | – | $0 | |
| | | -------------------------- | |
| (=) Taxable Value: | = | $151,600 | |
Taxing Jurisdiction
| Owner: | GRASSER, DEAN | | |
| % Ownership: | 100.0000000000% | | |
| Total Value: | $151,600 | | |
| Tax Area: | 319 - APPRAISER-Cpvl Schl Dist, outside Cpvl, vacant & 50 acres or less |
| CF | Conservation Futures | 0.0316035091 | $151,600 | $151,600 | $4.79 | | |
| CEM2 | Cemetery #2 | 0.0095056933 | $151,600 | $151,600 | $1.44 | | |
| HOBOND | Hospital BOND | 0.1910887512 | $151,600 | $151,600 | $28.97 | | |
| HOGEN | Hospital GEN | 0.3902502903 | $151,600 | $151,600 | $59.16 | | |
| CE | County Current Expense | 0.3708482477 | $151,600 | $151,600 | $56.22 | | |
| CR | County Roads | 0.4584763726 | $151,600 | $151,600 | $69.51 | | |
| ISLANDEMS | Hospital GEN (EMS) | 0.5000000000 | $151,600 | $151,600 | $75.80 | | |
| LIB | Library Sno-Isle GEN | 0.3153421757 | $151,600 | $151,600 | $47.81 | | |
| LIBCAP | Library Sno-Isle BOND (Cap Fac Imp Area) | 0.0543427938 | $151,600 | $151,600 | $8.24 | | |
| POCOUP | Port of Coupeville GEN | 0.1093371703 | $151,600 | $151,600 | $16.58 | | |
| POCOUPIDD | Port of Coupeville IDD | 0.3409740022 | $151,600 | $151,600 | $51.69 | | |
| COUPSDTECH | School 204 CP (TECH) | 0.7545480007 | $151,600 | $151,600 | $114.39 | | |
| SCH204MO | School 204 Enrichment | 0.6716186034 | $151,600 | $151,600 | $101.82 | | |
| ST | State School | 1.3035497053 | $151,600 | $151,600 | $197.62 | | |
| ST2 | State School Part 2 | 0.8169543533 | $151,600 | $151,600 | $123.85 | | |
| | Total Tax Rate: | 6.3184396689 | | | | | |
| | | | | Taxes w/Current Exemptions: | $957.89 | | |
| | | | | Taxes w/o Exemptions: | $957.89 | | |
Improvement / Building
Sketch
| No sketches available for this property. |
Property Image
Land
| 1 | 91 | UNDEVELOPED LAND-METES AND BOUNDS | 0.5800 | 25264.80 | 0.00 | 0.00 | 1.00 | $151,600 | $0 |
Roll Value History
| 2026 | N/A | N/A | N/A | N/A | N/A |
| 2025 | $0 | $151,600 | $0 | $151,600 | $151,600 |
| 2024 | $0 | $150,000 | $0 | $150,000 | $150,000 |
| 2023 | $0 | $150,000 | $0 | $150,000 | $150,000 |
| 2022 | $0 | $150,000 | $0 | $150,000 | $150,000 |
| 2021 | $0 | $140,000 | $0 | $140,000 | $140,000 |
| 2020 | $0 | $140,000 | $0 | $140,000 | $140,000 |
| 2019 | $0 | $120,000 | $0 | $120,000 | $120,000 |
| 2018 | $0 | $180,000 | $0 | $180,000 | $180,000 |
| 2017 | $0 | $180,000 | $0 | $180,000 | $180,000 |
| 2016 | $0 | $180,000 | $0 | $180,000 | $180,000 |
| 2015 | $0 | $110,000 | $0 | $110,000 | $110,000 |
| 2014 | $0 | $100,000 | $0 | $100,000 | $100,000 |
| 2013 | $0 | $75,000 | $0 | $75,000 | $75,000 |
| 2012 | $0 | $75,000 | $0 | $75,000 | $75,000 |
| 2011 | $0 | $75,000 | $0 | $75,000 | $75,000 |
| 2010 | $0 | $75,000 | $0 | $75,000 | $75,000 |
| 2009 | $0 | $85,000 | $0 | $85,000 | $85,000 |
| 2008 | $0 | $90,000 | $0 | $90,000 | $90,000 |
| 2007 | $0 | $90,000 | $0 | $90,000 | $90,000 |
Deed and Sales History
| 1 | 07/26/2024 | PRD | Personal Representatives Deed | ESTATE OF WILLIAM JOSEPH GRASSER | GRASSER, DEAN | | | $0.00 | 60793 | 4575258 |
| 2 | 01/01/1900 | OTHER | Other - Misc. Documents | Unknown | GRASSER, WILLIAM J | | | $0.00 | 0 | 0 |
Payout Agreement
| No payout information available.. |