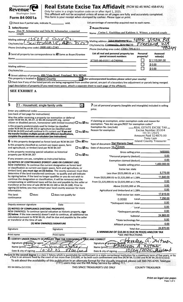
Property
Account |
| Property ID: | 26652 | Abbreviated Legal Description: | 32 - IN GL1:BG MC SEC 31 & 32 S35*E774.18' S49*E333.96 W87*E48.86' TPB S87*E100' S2*W TO RD W ALG RD TP S2*W FR TPB N2*E TPB TGW ADJ TIDES & SUB TO EZ TGW EZ AF#91016088 |
| Geographic ID: | R13232-118-0840 | Agent Code: | |
| Type: | Real | | |
| Tax Area: | 310 - APPRAISER-Cpvl Schl Dist, outside Cpvl, improved & 1 acre or less | Land Use Code | 11 |
| Open Space: | N | DFL | N |
| Historic Property: | N | Remodel Property: | N |
| Multi-Family Redevelopment: | N | | |
| Township: | 32 | Section: | 32 |
| Range: | R1 |
Location |
| Address: | 1940 GOOD BEACH LN COUPEVILLE, WA 98239 | Mapsco: | |
| Neighborhood: | Area 2 Waterfront Eastside Res | Map ID: | 170 |
| Neighborhood CD: | 2WFTE01R |
Owner |
| Name: | WILSON, JOAN | Owner ID: | 306329 |
| Mailing Address: | CRAIG WILSON 3707 87TH AVE SE SNOHOMISH, WA 98290 | % Ownership: | 100.0000000000% |
| | | Exemptions: | |
Taxes and Assessment Details
Values
| (+) Improvement Homesite Value: | + | $0 | |
| (+) Improvement Non-Homesite Value: | + | $143,856 | |
| (+) Land Homesite Value: | + | $0 | |
| (+) Land Non-Homesite Value: | + | $444,500 | |
| (+) Curr Use (HS): | + | $0 | $0 |
| (+) Curr Use (NHS): | + | $0 | $0 |
| | | -------------------------- | |
| (=) Market Value: | = | $588,356 | |
| (–) Productivity Loss: | – | $0 | |
| | | -------------------------- | |
| (=) Subtotal: | = | $588,356 | |
| (+) Senior Appraised Value: | + | $0 | |
| (+) Non-Senior Appraised Value: | + | $588,356 | |
| | | -------------------------- | |
| (=) Total Appraised Value: | = | $588,356 | |
| (–) Senior Exemption Loss: | – | $0 | |
| (–) Exemption Loss: | – | $0 | |
| | | -------------------------- | |
| (=) Taxable Value: | = | $588,356 | |
Taxing Jurisdiction
| Owner: | WILSON, JOAN | | |
| % Ownership: | 100.0000000000% | | |
| Total Value: | $588,356 | | |
| Tax Area: | 310 - APPRAISER-Cpvl Schl Dist, outside Cpvl, improved & 1 acre or less |
| CF | Conservation Futures | 0.0316035091 | $588,356 | $588,356 | $18.59 | | |
| CEM2 | Cemetery #2 | 0.0095056933 | $588,356 | $588,356 | $5.59 | | |
| FIRE5 | Fire & Rescue Dist #5 C Whidbey GEN | 1.2008080668 | $588,356 | $588,356 | $706.50 | | |
| FIRE5BOND | Fire & Rescue Dist #5 C Whidbey BOND | 0.1400090713 | $588,356 | $588,356 | $82.38 | | |
| HOBOND | Hospital BOND | 0.1910887512 | $588,356 | $588,356 | $112.43 | | |
| HOGEN | Hospital GEN | 0.3902502903 | $588,356 | $588,356 | $229.61 | | |
| CE | County Current Expense | 0.3708482477 | $588,356 | $588,356 | $218.19 | | |
| CR | County Roads | 0.4584763726 | $588,356 | $588,356 | $269.75 | | |
| ISLANDEMS | Hospital GEN (EMS) | 0.5000000000 | $588,356 | $588,356 | $294.18 | | |
| LIB | Library Sno-Isle GEN | 0.3153421757 | $588,356 | $588,356 | $185.53 | | |
| LIBCAP | Library Sno-Isle BOND (Cap Fac Imp Area) | 0.0543427938 | $588,356 | $588,356 | $31.97 | | |
| POCOUP | Port of Coupeville GEN | 0.1093371703 | $588,356 | $588,356 | $64.33 | | |
| POCOUPIDD | Port of Coupeville IDD | 0.3409740022 | $588,356 | $588,356 | $200.61 | | |
| COUPSDTECH | School 204 CP (TECH) | 0.7545480007 | $588,356 | $588,356 | $443.94 | | |
| SCH204MO | School 204 Enrichment | 0.6716186034 | $588,356 | $588,356 | $395.15 | | |
| ST | State School | 1.3035497053 | $588,356 | $588,356 | $766.95 | | |
| ST2 | State School Part 2 | 0.8169543533 | $588,356 | $588,356 | $480.66 | | |
| | Total Tax Rate: | 7.6592568070 | | | | | |
| | | | | Taxes w/Current Exemptions: | $4,506.36 | | |
| | | | | Taxes w/o Exemptions: | $4,506.36 | | |
Improvement / Building
| Improvement #1: | RESIDENTIAL | State Code: | Y | 850.0 sqft | Value: | $143,856 |
| Bathrooms: | 1 | Bedrooms: | 1 | | Ceiling: | PLYWOOD PAINTED | Exterior Wall/Cover: | WOOD SIDING | | Floor Covering: | CARPET/VINYL 80-20 | Floor Structure: | WOOD W/SUBFLOOR | | Foundation: | WOOD BLOCKS | Heating: | BASEBOARD ELECTRIC | | Interior Finish: | DRYWALL PAINT | Plumbing Fixture Cnt: | 6 | | Roof Slope: | 5" IN 12" | Roof Structure/Cover: | CJ ASPHALT |
|
| | Type | Description | Class CD | Sub Class CD | Year Built | Area |
| | BAS | BASE/MAIN FLOOR | 3 | 0 | 1941 | 850.0 |
| | AGR | ATTACHED GARAGE | 3 | 0 | 1941 | 637.5 |
| | OWR | OPEN WOOD PORCH W/STEPS/ROOF | 3 | 0 | 1941 | 96.0 |
| | OWR | OPEN WOOD PORCH W/STEPS/ROOF | 3 | 0 | 1941 | 48.0 |
Sketch
Property Image
Land
| 1 | LB | LOW BANK | 0.3000 | 13068.00 | 100.00 | 0.00 | 1.00 | $443,500 | $0 |
| 2 | 55 | TIDES | 0.0000 | 0.00 | 100.00 | 0.00 | 1.00 | $1,000 | $0 |
Roll Value History
| 2026 | N/A | N/A | N/A | N/A | N/A |
| 2025 | $143,856 | $444,500 | $0 | $588,356 | $588,356 |
| 2024 | $142,763 | $444,500 | $0 | $587,263 | $587,263 |
| 2023 | $144,886 | $423,625 | $0 | $568,511 | $568,511 |
| 2022 | $133,113 | $403,500 | $0 | $536,613 | $536,613 |
| 2021 | $117,425 | $351,000 | $0 | $468,425 | $468,425 |
| 2020 | $114,448 | $351,000 | $0 | $465,448 | $465,448 |
| 2019 | $80,107 | $401,000 | $0 | $481,107 | $481,107 |
| 2018 | $43,142 | $301,000 | $0 | $344,142 | $344,142 |
| 2017 | $43,661 | $301,000 | $0 | $344,661 | $344,661 |
| 2016 | $44,699 | $301,000 | $0 | $345,699 | $345,699 |
| 2015 | $45,738 | $301,000 | $0 | $346,738 | $346,738 |
| 2014 | $46,778 | $301,000 | $0 | $347,778 | $347,778 |
| 2013 | $47,818 | $421,734 | $0 | $469,552 | $469,552 |
| 2012 | $31,084 | $344,740 | $0 | $375,824 | $375,824 |
| 2011 | $31,924 | $344,740 | $0 | $376,664 | $376,664 |
| 2010 | $38,306 | $344,740 | $0 | $383,046 | $383,046 |
| 2009 | $40,345 | $430,675 | $0 | $471,020 | $471,020 |
| 2008 | $41,204 | $447,491 | $0 | $488,695 | $488,695 |
| 2007 | $39,870 | $458,510 | $0 | $498,380 | $498,380 |
Deed and Sales History
| 1 | 10/10/2022 | WD | Warranty Deed | WILSON, ELIZABETH | WILSON, JOAN | | | $995,000.00 | 54849 | 4552517 |
|   | |
| 2 | 04/01/2022 | QCD | Quit Claim Deed | SMITH, MARYON V | WILSON, ELIZABETH | | | $0.00 | 52573 | 4542681 |
| 3 | 09/05/2001 | WD | Warranty Deed | SMITH, MARYON V | SMITH, MARYON V | | | $0.00 | 13443 | 20042256 |
| 4 | 05/11/2001 | QCD | Quit Claim Deed | SMITH, MARYON V | SMITH, MARYON V | | | $0.00 | 12062 | 20034036 |
| 5 | 08/31/2000 | OTHER | Other - Misc. Documents | SMITH, HAROLD A | SMITH, MARYON V | | | $0.00 | 68773 | 245254 |
| 6 | 01/01/1900 | OTHER | Other - Misc. Documents | Unknown | SMITH, HAROLD A | | | $0.00 | 0 | 0 |
Payout Agreement
| No payout information available.. |