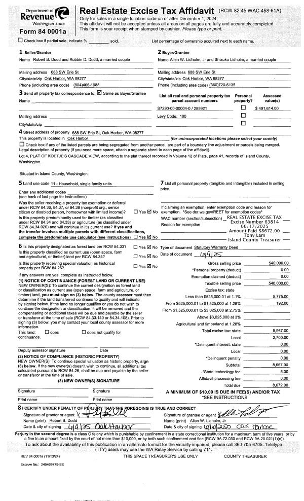
Property
Account |
| Property ID: | 2669 | Abbreviated Legal Description: | 5 KINETH DC - BG INTER WLN SD DLC & NLY LN OF ST HWY N898.92' E100' S TO ST HWY WLY 100' M/L TPB EX PT TO WA ST AF#4388009 |
| Geographic ID: | R13102-493-3650 | Agent Code: | |
| Type: | Real | | |
| Tax Area: | 319 - APPRAISER-Cpvl Schl Dist, outside Cpvl, vacant & 50 acres or less | Land Use Code | 91 |
| Open Space: | N | DFL | N |
| Historic Property: | N | Remodel Property: | N |
| Multi-Family Redevelopment: | N | | |
| Township: | 31 | Section: | 02 |
| Range: | R1 |
Location |
| Address: | | Mapsco: | |
| Neighborhood: | Area 2 Commercial South East | Map ID: | 24 |
| Neighborhood CD: | 21cCPeast |
Owner |
| Name: | HARVEY, ELLA L | Owner ID: | 5610 |
| Mailing Address: | PO BOX 1141 COUPEVILLE, WA 98239-1141 | % Ownership: | 100.0000000000% |
| | | Exemptions: | |
Taxes and Assessment Details
Values
| (+) Improvement Homesite Value: | + | $0 | |
| (+) Improvement Non-Homesite Value: | + | $0 | |
| (+) Land Homesite Value: | + | $0 | |
| (+) Land Non-Homesite Value: | + | $88,862 | |
| (+) Curr Use (HS): | + | $0 | $0 |
| (+) Curr Use (NHS): | + | $0 | $0 |
| | | -------------------------- | |
| (=) Market Value: | = | $88,862 | |
| (–) Productivity Loss: | – | $0 | |
| | | -------------------------- | |
| (=) Subtotal: | = | $88,862 | |
| (+) Senior Appraised Value: | + | $0 | |
| (+) Non-Senior Appraised Value: | + | $88,862 | |
| | | -------------------------- | |
| (=) Total Appraised Value: | = | $88,862 | |
| (–) Senior Exemption Loss: | – | $0 | |
| (–) Exemption Loss: | – | $0 | |
| | | -------------------------- | |
| (=) Taxable Value: | = | $88,862 | |
Taxing Jurisdiction
| Owner: | HARVEY, ELLA L | | |
| % Ownership: | 100.0000000000% | | |
| Total Value: | $88,862 | | |
| Tax Area: | 319 - APPRAISER-Cpvl Schl Dist, outside Cpvl, vacant & 50 acres or less |
| CF | Conservation Futures | 0.0316035091 | $88,862 | $88,862 | $2.81 | | |
| CEM2 | Cemetery #2 | 0.0095056933 | $88,862 | $88,862 | $0.84 | | |
| HOBOND | Hospital BOND | 0.1910887512 | $88,862 | $88,862 | $16.98 | | |
| HOGEN | Hospital GEN | 0.3902502903 | $88,862 | $88,862 | $34.68 | | |
| CE | County Current Expense | 0.3708482477 | $88,862 | $88,862 | $32.95 | | |
| CR | County Roads | 0.4584763726 | $88,862 | $88,862 | $40.74 | | |
| ISLANDEMS | Hospital GEN (EMS) | 0.5000000000 | $88,862 | $88,862 | $44.43 | | |
| LIB | Library Sno-Isle GEN | 0.3153421757 | $88,862 | $88,862 | $28.02 | | |
| LIBCAP | Library Sno-Isle BOND (Cap Fac Imp Area) | 0.0543427938 | $88,862 | $88,862 | $4.83 | | |
| POCOUP | Port of Coupeville GEN | 0.1093371703 | $88,862 | $88,862 | $9.72 | | |
| POCOUPIDD | Port of Coupeville IDD | 0.3409740022 | $88,862 | $88,862 | $30.30 | | |
| COUPSDTECH | School 204 CP (TECH) | 0.7545480007 | $88,862 | $88,862 | $67.05 | | |
| SCH204MO | School 204 Enrichment | 0.6716186034 | $88,862 | $88,862 | $59.68 | | |
| ST | State School | 1.3035497053 | $88,862 | $88,862 | $115.84 | | |
| ST2 | State School Part 2 | 0.8169543533 | $88,862 | $88,862 | $72.60 | | |
| | Total Tax Rate: | 6.3184396689 | | | | | |
| | | | | Taxes w/Current Exemptions: | $561.47 | | |
| | | | | Taxes w/o Exemptions: | $561.47 | | |
Improvement / Building
Sketch
| No sketches available for this property. |
Property Image
Land
| 1 | 71 | INDUSTRIAL MANUFACTURING | 2.0400 | 88862.40 | 0.00 | 0.00 | 1.00 | $88,862 | $0 |
Roll Value History
| 2026 | N/A | N/A | N/A | N/A | N/A |
| 2025 | $0 | $88,862 | $0 | $88,862 | $88,862 |
| 2024 | $0 | $88,862 | $0 | $88,862 | $88,862 |
| 2023 | $0 | $88,862 | $0 | $88,862 | $88,862 |
| 2022 | $0 | $88,862 | $0 | $88,862 | $88,862 |
| 2021 | $0 | $88,862 | $0 | $88,862 | $88,862 |
| 2020 | $0 | $88,862 | $0 | $88,862 | $88,862 |
| 2019 | $0 | $88,862 | $0 | $88,862 | $88,862 |
| 2018 | $0 | $88,862 | $0 | $88,862 | $88,862 |
| 2017 | $0 | $51,500 | $0 | $51,500 | $51,500 |
| 2016 | $0 | $51,500 | $0 | $51,500 | $51,500 |
| 2015 | $0 | $179,467 | $0 | $179,467 | $179,467 |
| 2014 | $0 | $179,467 | $0 | $179,467 | $179,467 |
| 2013 | $0 | $75,000 | $0 | $75,000 | $75,000 |
| 2012 | $0 | $47,035 | $0 | $47,035 | $47,035 |
| 2011 | $0 | $47,035 | $0 | $47,035 | $47,035 |
| 2010 | $0 | $47,035 | $0 | $47,035 | $47,035 |
| 2009 | $0 | $47,500 | $0 | $47,500 | $47,500 |
| 2008 | $0 | $43,500 | $0 | $43,500 | $43,500 |
| 2007 | $0 | $8,800 | $0 | $8,800 | $8,800 |
Deed and Sales History
| 1 | 06/29/2016 | EZ | Easement | HARVEY, ELLA L | HARVEY, ELLA L | | | $0.00 | 25302 | 4403488 |
| 2 | 10/13/2015 | WD | Warranty Deed | HARVEY, ELLA L | HARVEY, ELLA L | | | $0.00 | 21822 | 4388009 |
| 3 | 09/30/2015 | EZ | Easement | HARVEY, ELLA L | HARVEY, ELLA L | | | $2,000.00 | 21814 | 4388004 |
| 4 | 03/01/1992 | WD | Warranty Deed | HARVEY, ELLA L | HARVEY, ELLA L | | | $0.00 | 20843 | 92004256 |
| 5 | 09/01/1982 | REC | Real Estate Contract | HARVEY, LILLIAN R | HARVEY, ELLA L | | | $0.00 | 59641 | 4870 |
| 6 | 01/01/1900 | OTHER | Other - Misc. Documents | Unknown | HARVEY, LILLIAN R | | | $0.00 | 0 | 0 |
Payout Agreement
| No payout information available.. |