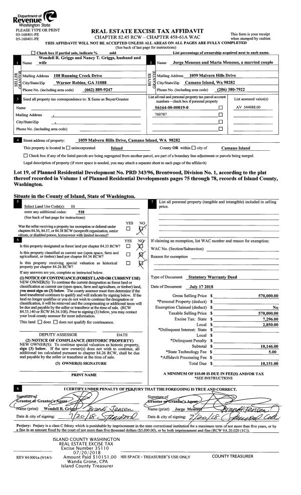
Property
Account |
| Property ID: | 268855 | Abbreviated Legal Description: | HERIT NO LOT 35 EX S3' |
| Geographic ID: | S7110-00-00035-0 | Agent Code: | |
| Type: | Real | | |
| Tax Area: | 100 - APPRAISER-OH Schl Dist, in OH | Land Use Code | 11 |
| Open Space: | N | DFL | N |
| Historic Property: | N | Remodel Property: | N |
| Multi-Family Redevelopment: | N | | |
| Township: | | Section: | |
| Range: | |
Location |
| Address: | 554 NW FAIRHAVEN DR OAK HARBOR, WA 98277 | Mapsco: | |
| Neighborhood: | Cycle 1 | Map ID: | 253 |
| Neighborhood CD: | 1 |
Owner |
| Name: | WELLS, BOYD | Owner ID: | 287658 |
| Mailing Address: | VICKI CRICHTON-WELLS 554 NE FAIRHAVEN DR OAK HARBOR, WA 98277 | % Ownership: | 100.0000000000% |
| | | Exemptions: | |
Taxes and Assessment Details
Values
| (+) Improvement Homesite Value: | + | $0 | |
| (+) Improvement Non-Homesite Value: | + | $286,973 | |
| (+) Land Homesite Value: | + | $0 | |
| (+) Land Non-Homesite Value: | + | $190,000 | |
| (+) Curr Use (HS): | + | $0 | $0 |
| (+) Curr Use (NHS): | + | $0 | $0 |
| | | -------------------------- | |
| (=) Market Value: | = | $476,973 | |
| (–) Productivity Loss: | – | $0 | |
| | | -------------------------- | |
| (=) Subtotal: | = | $476,973 | |
| (+) Senior Appraised Value: | + | $0 | |
| (+) Non-Senior Appraised Value: | + | $476,973 | |
| | | -------------------------- | |
| (=) Total Appraised Value: | = | $476,973 | |
| (–) Senior Exemption Loss: | – | $0 | |
| (–) Exemption Loss: | – | $0 | |
| | | -------------------------- | |
| (=) Taxable Value: | = | $476,973 | |
Taxing Jurisdiction
| Owner: | WELLS, BOYD | | |
| % Ownership: | 100.0000000000% | | |
| Total Value: | $476,973 | | |
| Tax Area: | 100 - APPRAISER-OH Schl Dist, in OH |
| CF | Conservation Futures | 0.0316035091 | $476,973 | $476,973 | $15.07 | | |
| CEM1 | Cemetery #1 | 0.0040320932 | $476,973 | $476,973 | $1.92 | | |
| COH | City of Oak Harbor | 2.3001546061 | $476,973 | $476,973 | $1,097.11 | | |
| OAKBOND | City of Oak Harbor BOND | 0.1926904192 | $476,973 | $476,973 | $91.91 | | |
| HOBOND | Hospital BOND | 0.1910887512 | $476,973 | $476,973 | $91.14 | | |
| HOGEN | Hospital GEN | 0.3902502903 | $476,973 | $476,973 | $186.14 | | |
| CE | County Current Expense | 0.3708482477 | $476,973 | $476,973 | $176.88 | | |
| ISLANDEMS | Hospital GEN (EMS) | 0.5000000000 | $476,973 | $476,973 | $238.49 | | |
| LIB | Library Sno-Isle GEN | 0.3153421757 | $476,973 | $476,973 | $150.41 | | |
| NWHIDPRMT | P & R N Whidbey GEN | 0.2004466701 | $476,973 | $476,973 | $95.61 | | |
| SCH201MO | School 201 Enrichment | 1.8559231640 | $476,973 | $476,973 | $885.23 | | |
| ST | State School | 1.3035497053 | $476,973 | $476,973 | $621.76 | | |
| ST2 | State School Part 2 | 0.8169543533 | $476,973 | $476,973 | $389.67 | | |
| | Total Tax Rate: | 8.4728839852 | | | | | |
| | | | | Taxes w/Current Exemptions: | $4,041.34 | | |
| | | | | Taxes w/o Exemptions: | $4,041.34 | | |
Improvement / Building
| Improvement #1: | RESIDENTIAL | State Code: | Y | 1488.0 sqft | Value: | $286,973 |
| Bathrooms: | 2.5 | Bedrooms: | 3 | | Ceiling: | DRY WALL SPRAYED | Exterior Wall/Cover: | VINYL | | Floor Covering: | HARDWOOD/CARP 20-80 | Floor Structure: | WOOD W/SUBFLOOR | | Foundation: | CONCRETE | Heating: | FHA ELECTRIC | | Interior Finish: | DRYWALL PAINT | Plumbing Fixture Cnt: | 11 | | Roof Slope: | 4" IN 12" | Roof Structure/Cover: | CJ ASPHALT |
|
| | Type | Description | Class CD | Sub Class CD | Year Built | Area |
| | BAS | BASE/MAIN FLOOR | 3 | 0 | 1978 | 872.0 |
| | OP3 | OPEN PORCH W/ROOF | 3 | 0 | 1978 | 24.0 |
| | AGR | ATTACHED GARAGE | 3 | 0 | 1978 | 484.0 |
| | UPS | UPPER STORY | 3 | 0 | 1978 | 616.0 |
| | OWP | OPEN WOOD PORCH W/STEPS | 3 | 0 | 1978 | 242.0 |
Sketch
Property Image
Land
| 1 | 13 | SQ (06001-08000) | 0.0000 | 0.00 | 0.00 | 0.00 | 1.00 | $190,000 | $0 |
Roll Value History
| 2026 | N/A | N/A | N/A | N/A | N/A |
| 2025 | $286,973 | $190,000 | $0 | $476,973 | $476,973 |
| 2024 | $290,299 | $180,000 | $0 | $470,299 | $470,299 |
| 2023 | $286,973 | $190,000 | $0 | $476,973 | $476,973 |
| 2022 | $262,869 | $180,000 | $0 | $442,869 | $442,869 |
| 2021 | $231,207 | $120,000 | $0 | $351,207 | $351,207 |
| 2020 | $224,787 | $100,000 | $0 | $324,787 | $324,787 |
| 2019 | $161,728 | $150,000 | $0 | $311,728 | $311,728 |
| 2018 | $119,897 | $130,000 | $0 | $249,897 | $249,897 |
| 2017 | $114,400 | $110,000 | $0 | $224,400 | $224,400 |
| 2016 | $116,133 | $90,000 | $0 | $206,133 | $206,133 |
| 2015 | $117,866 | $70,000 | $0 | $187,866 | $187,866 |
| 2014 | $119,600 | $55,000 | $0 | $174,600 | $174,600 |
| 2013 | $121,333 | $55,000 | $0 | $176,333 | $176,333 |
| 2012 | $123,066 | $65,000 | $0 | $188,066 | $188,066 |
| 2011 | $122,547 | $65,000 | $0 | $187,547 | $187,547 |
| 2010 | $137,087 | $65,000 | $0 | $202,087 | $202,087 |
| 2009 | $142,811 | $87,150 | $0 | $229,961 | $229,961 |
| 2008 | $142,811 | $105,000 | $0 | $247,811 | $247,811 |
| 2007 | $144,650 | $105,000 | $0 | $249,650 | $249,650 |
Deed and Sales History
| 1 | 10/17/2018 | WD | Warranty Deed | BRECKENRIDGE PROPERTY FUND 2016, LLC | WELLS, BOYD | | | $317,700.00 | 36422 | 4453990 |
| 2 | 06/21/2018 | TRUSTEED | Trustee's Deed | BERTULDO, HAROLD | BRECKENRIDGE PROPERTY FUND 2016, LLC | | | $0.00 | 34721 | 4446956 |
| 3 | 07/23/2007 | WD | Warranty Deed | JAIME, TOMAS | BERTULDO, HAROLD | | | $251,877.00 | 72511 | 4207991 |
| 4 | 10/25/2004 | WD | Warranty Deed | MAXWELL, JANETTA | JAIME, TOMAS | | | $192,176.00 | 45059 | 4116630 |
| 5 | 04/11/2002 | WD | Warranty Deed | MAXWELL, JANETTA | MAXWELL, JANETTA | | | $0.00 | 22328 | 4023272 |
| 6 | 04/11/2002 | WD | Warranty Deed | GILBERT, MICHAEL A | MAXWELL, JANETTA | | | $157,900.00 | 21348 | 4016619 |
| 7 | 06/01/1996 | WD | Warranty Deed | MCCLOSKEY, DAVID H | GILBERT, MICHAEL A | | | $131,500.00 | 62308 | 96011380 |
| 8 | 08/01/1992 | WD | Warranty Deed | ROBINSON, GAIUS V | MCCLOSKEY, DAVID H | | | $119,000.00 | 23375 | 92016444 |
| 9 | 09/01/1989 | WD | Warranty Deed | CAVE, RODNEY K | ROBINSON, GAIUS V | | | $81,500.00 | 93842 | 89012837 |
| 10 | 05/01/1988 | DECREE | Divorce Decree/Legal Separation | CAVE, RODNEY K | CAVE, RODNEY K | | | $0.00 | 81527 | 88005798 |
| 11 | 10/01/1985 | WD | Warranty Deed | COOK, DONALD H | CAVE, RODNEY K | | | $75,500.00 | 52914 | 85011530 |
| 12 | 07/01/1982 | WD | Warranty Deed | WAGNER, ROBERT L | COOK, DONALD H | | | $77,900.00 | 21554 | 397953 |
| 13 | 11/01/1980 | WD | Warranty Deed | ABARIENTOS, ROMERO C | WAGNER, ROBERT L | | | $73,500.00 | 3710 | 375997 |
| 14 | 12/01/1978 | OTHER | Other - Misc. Documents | Unknown | ABARIENTOS, ROMERO C | | | $62,500.00 | 86119 | 344724 |
Payout Agreement
| No payout information available.. |