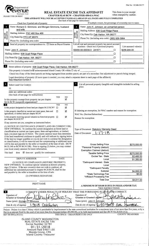
Property
Account |
| Property ID: | 269140 | Abbreviated Legal Description: | HERIT NO 2 - LOT 21 |
| Geographic ID: | S7110-02-00021-0 | Agent Code: | |
| Type: | Real | | |
| Tax Area: | 100 - APPRAISER-OH Schl Dist, in OH | Land Use Code | 11 |
| Open Space: | N | DFL | N |
| Historic Property: | N | Remodel Property: | N |
| Multi-Family Redevelopment: | N | | |
| Township: | | Section: | |
| Range: | |
Location |
| Address: | 483 NW 7TH AVE OAK HARBOR, WA 98277 | Mapsco: | |
| Neighborhood: | Cycle 1 | Map ID: | 253 |
| Neighborhood CD: | 1 |
Owner |
| Name: | CORLEY, JAMES S | Owner ID: | 279190 |
| Mailing Address: | EMILY K CORLEY 483 NW 7TH AVE OAK HARBOR, WA 98277 | % Ownership: | 100.0000000000% |
| | | Exemptions: | |
Taxes and Assessment Details
Values
| (+) Improvement Homesite Value: | + | $0 | |
| (+) Improvement Non-Homesite Value: | + | $276,298 | |
| (+) Land Homesite Value: | + | $0 | |
| (+) Land Non-Homesite Value: | + | $190,000 | |
| (+) Curr Use (HS): | + | $0 | $0 |
| (+) Curr Use (NHS): | + | $0 | $0 |
| | | -------------------------- | |
| (=) Market Value: | = | $466,298 | |
| (–) Productivity Loss: | – | $0 | |
| | | -------------------------- | |
| (=) Subtotal: | = | $466,298 | |
| (+) Senior Appraised Value: | + | $0 | |
| (+) Non-Senior Appraised Value: | + | $466,298 | |
| | | -------------------------- | |
| (=) Total Appraised Value: | = | $466,298 | |
| (–) Senior Exemption Loss: | – | $0 | |
| (–) Exemption Loss: | – | $0 | |
| | | -------------------------- | |
| (=) Taxable Value: | = | $466,298 | |
Taxing Jurisdiction
| Owner: | CORLEY, JAMES S | | |
| % Ownership: | 100.0000000000% | | |
| Total Value: | $466,298 | | |
| Tax Area: | 100 - APPRAISER-OH Schl Dist, in OH |
| CF | Conservation Futures | 0.0316035091 | $466,298 | $466,298 | $14.74 | | |
| CEM1 | Cemetery #1 | 0.0040320932 | $466,298 | $466,298 | $1.88 | | |
| COH | City of Oak Harbor | 2.3001546061 | $466,298 | $466,298 | $1,072.56 | | |
| OAKBOND | City of Oak Harbor BOND | 0.1926904192 | $466,298 | $466,298 | $89.85 | | |
| HOBOND | Hospital BOND | 0.1910887512 | $466,298 | $466,298 | $89.10 | | |
| HOGEN | Hospital GEN | 0.3902502903 | $466,298 | $466,298 | $181.97 | | |
| CE | County Current Expense | 0.3708482477 | $466,298 | $466,298 | $172.93 | | |
| ISLANDEMS | Hospital GEN (EMS) | 0.5000000000 | $466,298 | $466,298 | $233.15 | | |
| LIB | Library Sno-Isle GEN | 0.3153421757 | $466,298 | $466,298 | $147.04 | | |
| NWHIDPRMT | P & R N Whidbey GEN | 0.2004466701 | $466,298 | $466,298 | $93.47 | | |
| SCH201MO | School 201 Enrichment | 1.8559231640 | $466,298 | $466,298 | $865.41 | | |
| ST | State School | 1.3035497053 | $466,298 | $466,298 | $607.84 | | |
| ST2 | State School Part 2 | 0.8169543533 | $466,298 | $466,298 | $380.94 | | |
| | Total Tax Rate: | 8.4728839852 | | | | | |
| | | | | Taxes w/Current Exemptions: | $3,950.88 | | |
| | | | | Taxes w/o Exemptions: | $3,950.88 | | |
Improvement / Building
| Improvement #1: | RESIDENTIAL | State Code: | Y | 1719.0 sqft | Value: | $276,298 |
| Bathrooms: | 2 | Bedrooms: | 3 | | Ceiling: | DRYWALL PAINTED | Exterior Wall/Cover: | WOOD SIDING | | Floor Covering: | CARPET/VINYL 80-20 | Floor Structure: | WOOD W/SUBFLOOR | | Foundation: | CONCRETE | Heating: | FHA ELECTRIC | | Interior Finish: | DRYWALL PAINT | Plumbing Fixture Cnt: | 9 | | Roof Slope: | 4" IN 12" | Roof Structure/Cover: | CJ ALUMINIUM HEAVY |
|
| | Type | Description | Class CD | Sub Class CD | Year Built | Area |
| | BAS | BASE/MAIN FLOOR | 3 | 0 | 1986 | 1719.0 |
| | OP4 | OPEN PORCH W/CEILING-ROOF | 3 | 0 | 1986 | 12.0 |
| | AGR | ATTACHED GARAGE | 3 | 0 | 1986 | 480.0 |
| | CPD | OPEN CARPORT DIRT FLOOR | 3 | 0 | 1986 | 84.0 |
Sketch
Property Image
Land
| 1 | 13 | SQ (06001-08000) | 0.0000 | 0.00 | 0.00 | 0.00 | 1.00 | $190,000 | $0 |
Roll Value History
| 2026 | N/A | N/A | N/A | N/A | N/A |
| 2025 | $276,298 | $190,000 | $0 | $466,298 | $466,298 |
| 2024 | $279,970 | $180,000 | $0 | $459,970 | $459,970 |
| 2023 | $283,641 | $190,000 | $0 | $473,641 | $473,641 |
| 2022 | $260,170 | $180,000 | $0 | $440,170 | $440,170 |
| 2021 | $229,125 | $120,000 | $0 | $349,125 | $349,125 |
| 2020 | $223,662 | $100,000 | $0 | $323,662 | $323,662 |
| 2019 | $165,461 | $150,000 | $0 | $315,461 | $315,461 |
| 2018 | $165,970 | $130,000 | $0 | $295,970 | $295,970 |
| 2017 | $142,484 | $110,000 | $0 | $252,484 | $252,484 |
| 2016 | $144,463 | $90,000 | $0 | $234,463 | $234,463 |
| 2015 | $146,443 | $70,000 | $0 | $216,443 | $216,443 |
| 2014 | $148,422 | $55,000 | $0 | $203,422 | $203,422 |
| 2013 | $150,401 | $55,000 | $0 | $205,401 | $205,401 |
| 2012 | $152,379 | $65,000 | $0 | $217,379 | $217,379 |
| 2011 | $153,251 | $65,000 | $0 | $218,251 | $218,251 |
| 2010 | $158,654 | $65,000 | $0 | $223,654 | $223,654 |
| 2009 | $165,601 | $87,150 | $0 | $252,751 | $252,751 |
| 2008 | $167,809 | $105,000 | $0 | $272,809 | $272,809 |
| 2007 | $170,010 | $105,000 | $0 | $275,010 | $275,010 |
Deed and Sales History
| 1 | 03/29/2017 | WD | Warranty Deed | ANDREAS, CHRISTOPHER | CORLEY, JAMES S | | | $290,000.00 | 28660 | 4419864 |
| 2 | 04/20/2015 | WD | Warranty Deed | OKIALDA, JAIME O | ANDREAS, CHRISTOPHER | | | $227,000.00 | 19244 | 4376989 |
| 3 | 01/01/1986 | WD | Warranty Deed | B-W-B, CONSTRUCTION C | OKIALDA, JAIME O | | | $85,800.00 | 60042 | 86000170 |
| 4 | 09/01/1985 | WD | Warranty Deed | ISLAND, SAVINGS & | B-W-B, CONSTRUCTION C | | | $18,000.00 | 52690 | 85010643 |
| 5 | 03/01/1982 | TRUSTEED | Trustee's Deed | DANARD, CUSTOM H | ISLAND, SAVINGS & | | | $13,500.00 | 20586 | 394063 |
| 6 | 01/01/1900 | OTHER | Other - Misc. Documents | Unknown | DANARD, CUSTOM H | | | $0.00 | 0 | 0 |
Payout Agreement
| No payout information available.. |