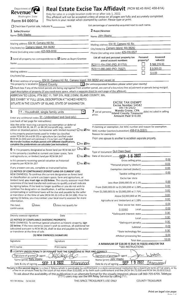
Property
Account |
| Property ID: | 269541 | Abbreviated Legal Description: | HIDDEN BCH LOTS G & H |
| Geographic ID: | S7115-00-0000G-0 | Agent Code: | |
| Type: | Real | | |
| Tax Area: | 310 - APPRAISER-Cpvl Schl Dist, outside Cpvl, improved & 1 acre or less | Land Use Code | 11 |
| Open Space: | N | DFL | N |
| Historic Property: | N | Remodel Property: | N |
| Multi-Family Redevelopment: | N | | |
| Township: | | Section: | |
| Range: | |
Location |
| Address: | 2373 HIDDEN BEACH DR GREENBANK, WA 98253 | Mapsco: | |
| Neighborhood: | Cycle 2 | Map ID: | 530 |
| Neighborhood CD: | 2 |
Owner |
| Name: | ONISHI TTEE, RYAN TETSUO | Owner ID: | 303336 |
| Mailing Address: | DENISE AKEMI ONISHI TTEE REID AND YVONNE SHIGENO TTEE 606 WHITING ST EL SEGUNDO, CA 90245 | % Ownership: | 100.0000000000% |
| | | Exemptions: | |
Taxes and Assessment Details
Values
| (+) Improvement Homesite Value: | + | $0 | |
| (+) Improvement Non-Homesite Value: | + | $397,768 | |
| (+) Land Homesite Value: | + | $0 | |
| (+) Land Non-Homesite Value: | + | $900,000 | |
| (+) Curr Use (HS): | + | $0 | $0 |
| (+) Curr Use (NHS): | + | $0 | $0 |
| | | -------------------------- | |
| (=) Market Value: | = | $1,297,768 | |
| (–) Productivity Loss: | – | $0 | |
| | | -------------------------- | |
| (=) Subtotal: | = | $1,297,768 | |
| (+) Senior Appraised Value: | + | $0 | |
| (+) Non-Senior Appraised Value: | + | $1,297,768 | |
| | | -------------------------- | |
| (=) Total Appraised Value: | = | $1,297,768 | |
| (–) Senior Exemption Loss: | – | $0 | |
| (–) Exemption Loss: | – | $0 | |
| | | -------------------------- | |
| (=) Taxable Value: | = | $1,297,768 | |
Taxing Jurisdiction
| Owner: | ONISHI TTEE, RYAN TETSUO | | |
| % Ownership: | 100.0000000000% | | |
| Total Value: | $1,297,768 | | |
| Tax Area: | 310 - APPRAISER-Cpvl Schl Dist, outside Cpvl, improved & 1 acre or less |
| CF | Conservation Futures | 0.0316035091 | $1,297,768 | $1,297,768 | $41.01 | | |
| CEM2 | Cemetery #2 | 0.0095056933 | $1,297,768 | $1,297,768 | $12.34 | | |
| FIRE5 | Fire & Rescue Dist #5 C Whidbey GEN | 1.2008080668 | $1,297,768 | $1,297,768 | $1,558.37 | | |
| FIRE5BOND | Fire & Rescue Dist #5 C Whidbey BOND | 0.1400090713 | $1,297,768 | $1,297,768 | $181.70 | | |
| HOBOND | Hospital BOND | 0.1910887512 | $1,297,768 | $1,297,768 | $247.99 | | |
| HOGEN | Hospital GEN | 0.3902502903 | $1,297,768 | $1,297,768 | $506.45 | | |
| CE | County Current Expense | 0.3708482477 | $1,297,768 | $1,297,768 | $481.27 | | |
| CR | County Roads | 0.4584763726 | $1,297,768 | $1,297,768 | $595.00 | | |
| ISLANDEMS | Hospital GEN (EMS) | 0.5000000000 | $1,297,768 | $1,297,768 | $648.88 | | |
| LIB | Library Sno-Isle GEN | 0.3153421757 | $1,297,768 | $1,297,768 | $409.24 | | |
| LIBCAP | Library Sno-Isle BOND (Cap Fac Imp Area) | 0.0543427938 | $1,297,768 | $1,297,768 | $70.52 | | |
| POCOUP | Port of Coupeville GEN | 0.1093371703 | $1,297,768 | $1,297,768 | $141.89 | | |
| POCOUPIDD | Port of Coupeville IDD | 0.3409740022 | $1,297,768 | $1,297,768 | $442.51 | | |
| COUPSDTECH | School 204 CP (TECH) | 0.7545480007 | $1,297,768 | $1,297,768 | $979.23 | | |
| SCH204MO | School 204 Enrichment | 0.6716186034 | $1,297,768 | $1,297,768 | $871.61 | | |
| ST | State School | 1.3035497053 | $1,297,768 | $1,297,768 | $1,691.71 | | |
| ST2 | State School Part 2 | 0.8169543533 | $1,297,768 | $1,297,768 | $1,060.22 | | |
| | Total Tax Rate: | 7.6592568070 | | | | | |
| | | | | Taxes w/Current Exemptions: | $9,939.94 | | |
| | | | | Taxes w/o Exemptions: | $9,939.94 | | |
Improvement / Building
| Improvement #1: | RESIDENTIAL | State Code: | Y | 1742.4 sqft | Value: | $397,768 |
| Bathrooms: | 2 | Bedrooms: | 2 | | Ceiling: | TONGUE & GROOVE | Exterior Wall/Cover: | SHINGLE | | Floor Covering: | HARDWOOD/CARP 60-40 | Floor Structure: | WOOD W/SUBFLOOR | | Foundation: | CONCRETE | Heating: | WALL HEAT ELECTRIC | | Interior Finish: | DRYWALL PAINT | Plumbing Fixture Cnt: | 9 | | Roof Slope: | 4" IN 12" | Roof Structure/Cover: | CJ ASPHALT |
|
| | Type | Description | Class CD | Sub Class CD | Year Built | Area |
| | BAS | BASE/MAIN FLOOR | 4 | 0 | 1978 | 872.0 |
| | OWP | OPEN WOOD PORCH W/STEPS | 4 | 0 | 1978 | 96.0 |
| | OWP | OPEN WOOD PORCH W/STEPS | 4 | 0 | 1978 | 478.9 |
| | OWP | OPEN WOOD PORCH W/STEPS | 4 | 0 | 1978 | 396.9 |
| | OWC | OPEN WOOD PORCH W/STEPS/ROOF/C | 4 | 0 | 1978 | 168.0 |
| | DWN | DOWNSTAIRS LIVING AREA | 4 | 0 | 1978 | 870.4 |
| | OP1 | OPEN PORCH SLAB | 4 | 0 | 1978 | 323.1 |
Sketch
| No sketches available for this property. |
Property Image
Land
| 1 | LB | LOW BANK | 0.5303 | 23099.87 | 139.00 | 0.00 | 1.00 | $900,000 | $0 |
Roll Value History
| 2026 | N/A | N/A | N/A | N/A | N/A |
| 2025 | $397,768 | $900,000 | $0 | $1,297,768 | $1,297,768 |
| 2024 | $372,438 | $875,000 | $0 | $1,247,438 | $1,247,438 |
| 2023 | $376,658 | $850,000 | $0 | $1,226,658 | $1,226,658 |
| 2022 | $326,945 | $725,000 | $0 | $1,051,945 | $1,051,945 |
| 2021 | $287,587 | $600,000 | $0 | $887,587 | $887,587 |
| 2020 | $280,289 | $550,000 | $0 | $830,289 | $830,289 |
| 2019 | $208,913 | $600,000 | $0 | $808,913 | $808,913 |
| 2018 | $192,176 | $600,000 | $0 | $792,176 | $792,176 |
| 2017 | $131,086 | $550,000 | $0 | $681,086 | $681,086 |
| 2016 | $132,958 | $550,000 | $0 | $682,958 | $682,958 |
| 2015 | $134,830 | $550,000 | $0 | $684,830 | $684,830 |
| 2014 | $136,703 | $550,000 | $0 | $686,703 | $686,703 |
| 2013 | $138,574 | $551,834 | $0 | $690,408 | $690,408 |
| 2012 | $137,954 | $551,834 | $0 | $689,788 | $689,788 |
| 2011 | $139,876 | $551,834 | $0 | $691,710 | $691,710 |
| 2010 | $150,301 | $551,834 | $0 | $702,135 | $702,135 |
| 2009 | $156,824 | $642,547 | $0 | $799,371 | $799,371 |
| 2008 | $156,889 | $642,547 | $0 | $799,436 | $799,436 |
| 2007 | $158,907 | $548,055 | $0 | $706,962 | $706,962 |
Deed and Sales History
| 1 | 02/14/2022 | WD | Warranty Deed | GASIEWICZ TRUSTEE, DANIEL DAVID | ONISHI TTEE, RYAN TETSUO | | | $1,310,500.00 | 52110 | 4540575 |
| 2 | 11/27/2017 | WD | Warranty Deed | HARDY, JEREMY | GASIEWICZ TRUSTEE, DANIEL DAVID | | | $759,000.00 | 32056 | 4434806 |
| 3 | 12/14/2015 | WD | Warranty Deed | GARAY, LORENZO L | HARDY, JEREMY | | | $685,000.00 | 22632 | 4391635 |
| 4 | 08/18/2009 | TRUSTEED | Trustee's Deed | BANK OF AMERICA, | GARAY, LORENZO L | | | $510,000.00 | 92010 | 4259166 |
| 5 | 05/20/2009 | TRUSTEED | Trustee's Deed | EAST, RONALD | BANK OF AMERICA, | | | $673,685.00 | 91108 | 4251891 |
| 6 | 03/23/2007 | WD | Warranty Deed | STAUFFER, JEANNE E | EAST, RONALD | | | $799,500.00 | 71238 | 4199643 |
| 7 | 03/15/2002 | BLA | DNU - Boundary Line Adjustment | STAUFFER, JEANNE E | STAUFFER, JEANNE E | | | $0.00 | 69343 | 20031891 |
| 8 | 06/04/1999 | WD | Warranty Deed | PERSSON, GERALD M | STAUFFER, JEANNE E | | | $299,500.00 | 92392 | 99014582 |
| 9 | 08/01/1996 | WD | Warranty Deed | PUGMIRE, ROBERT L | PERSSON, GERALD M | | | $245,000.00 | 62980 | 96014580 |
| 10 | 06/01/1986 | WD | Warranty Deed | MADSEN, DONALD L | PUGMIRE, ROBERT L | | | $125,000.00 | 61507 | 86007054 |
| 11 | 01/01/1900 | OTHER | Other - Misc. Documents | Unknown | MADSEN, DONALD L | | | $0.00 | 0 | 0 |
Payout Agreement
| No payout information available.. |