Property
Account |
| Property ID: | 269621 | Abbreviated Legal Description: | HIDDEN BCH LOT P |
| Geographic ID: | S7115-00-0000P-0 | Agent Code: | |
| Type: | Real | | |
| Tax Area: | 310 - APPRAISER-Cpvl Schl Dist, outside Cpvl, improved & 1 acre or less | Land Use Code | 11 |
| Open Space: | N | DFL | N |
| Historic Property: | N | Remodel Property: | N |
| Multi-Family Redevelopment: | N | | |
| Township: | | Section: | |
| Range: | |
Location |
| Address: | 2343 HIDDEN BEACH DR GREENBANK, WA 98253 | Mapsco: | |
| Neighborhood: | Cycle 2 | Map ID: | 530 |
| Neighborhood CD: | 2 |
Owner |
| Name: | QUINT TTEE, SARAH ANN | Owner ID: | 297092 |
| Mailing Address: | MEGAN PAULINE QUINT TTEE 12123 SE 20TH PL BELLEVUE, WA 98005 | % Ownership: | 100.0000000000% |
| | | Exemptions: | |
Taxes and Assessment Details
Values
| (+) Improvement Homesite Value: | + | $0 | |
| (+) Improvement Non-Homesite Value: | + | $287,347 | |
| (+) Land Homesite Value: | + | $0 | |
| (+) Land Non-Homesite Value: | + | $675,000 | |
| (+) Curr Use (HS): | + | $0 | $0 |
| (+) Curr Use (NHS): | + | $0 | $0 |
| | | -------------------------- | |
| (=) Market Value: | = | $962,347 | |
| (–) Productivity Loss: | – | $0 | |
| | | -------------------------- | |
| (=) Subtotal: | = | $962,347 | |
| (+) Senior Appraised Value: | + | $0 | |
| (+) Non-Senior Appraised Value: | + | $962,347 | |
| | | -------------------------- | |
| (=) Total Appraised Value: | = | $962,347 | |
| (–) Senior Exemption Loss: | – | $0 | |
| (–) Exemption Loss: | – | $0 | |
| | | -------------------------- | |
| (=) Taxable Value: | = | $962,347 | |
Taxing Jurisdiction
| Owner: | QUINT TTEE, SARAH ANN | | |
| % Ownership: | 100.0000000000% | | |
| Total Value: | $962,347 | | |
| Tax Area: | 310 - APPRAISER-Cpvl Schl Dist, outside Cpvl, improved & 1 acre or less |
| CF | Conservation Futures | 0.0316035091 | $962,347 | $962,347 | $30.41 | | |
| CEM2 | Cemetery #2 | 0.0095056933 | $962,347 | $962,347 | $9.15 | | |
| FIRE5 | Fire & Rescue Dist #5 C Whidbey GEN | 1.2008080668 | $962,347 | $962,347 | $1,155.59 | | |
| FIRE5BOND | Fire & Rescue Dist #5 C Whidbey BOND | 0.1400090713 | $962,347 | $962,347 | $134.74 | | |
| HOBOND | Hospital BOND | 0.1910887512 | $962,347 | $962,347 | $183.89 | | |
| HOGEN | Hospital GEN | 0.3902502903 | $962,347 | $962,347 | $375.56 | | |
| CE | County Current Expense | 0.3708482477 | $962,347 | $962,347 | $356.88 | | |
| CR | County Roads | 0.4584763726 | $962,347 | $962,347 | $441.21 | | |
| ISLANDEMS | Hospital GEN (EMS) | 0.5000000000 | $962,347 | $962,347 | $481.17 | | |
| LIB | Library Sno-Isle GEN | 0.3153421757 | $962,347 | $962,347 | $303.47 | | |
| LIBCAP | Library Sno-Isle BOND (Cap Fac Imp Area) | 0.0543427938 | $962,347 | $962,347 | $52.30 | | |
| POCOUP | Port of Coupeville GEN | 0.1093371703 | $962,347 | $962,347 | $105.22 | | |
| POCOUPIDD | Port of Coupeville IDD | 0.3409740022 | $962,347 | $962,347 | $328.14 | | |
| COUPSDTECH | School 204 CP (TECH) | 0.7545480007 | $962,347 | $962,347 | $726.14 | | |
| SCH204MO | School 204 Enrichment | 0.6716186034 | $962,347 | $962,347 | $646.33 | | |
| ST | State School | 1.3035497053 | $962,347 | $962,347 | $1,254.47 | | |
| ST2 | State School Part 2 | 0.8169543533 | $962,347 | $962,347 | $786.19 | | |
| | Total Tax Rate: | 7.6592568070 | | | | | |
| | | | | Taxes w/Current Exemptions: | $7,370.86 | | |
| | | | | Taxes w/o Exemptions: | $7,370.86 | | |
Improvement / Building
| Improvement #1: | RESIDENTIAL | State Code: | Y | 1420.1 sqft | Value: | $287,347 |
| Bathrooms: | 2 | Bedrooms: | 2 | | Ceiling: | DRYWALL PAINTED | Cooling: | HEAT PUMP/CONV/V | | Exterior Wall/Cover: | CEMENT FIBER | Floor Covering: | CARPET/VINYL 80-20 | | Floor Structure: | WOOD W/SUBFLOOR | Foundation: | CONCRETE | | Interior Finish: | DRYWALL PAINT | Plumbing Fixture Cnt: | 9 | | Roof Slope: | 4" IN 12" | Roof Structure/Cover: | CJ ASPHALT |
|
| | Type | Description | Class CD | Sub Class CD | Year Built | Area |
| | BAS | BASE/MAIN FLOOR | 3 | 0 | 1980 | 917.7 |
| | AGR | ATTACHED GARAGE | 3 | 0 | 1980 | 466.9 |
| | UPS | UPPER STORY | 3 | 0 | 1980 | 502.4 |
| | BAI | BALCONY IRON RAIL | 3 | 0 | 1980 | 5.3 |
| | OWP | OPEN WOOD PORCH W/STEPS | 3 | 0 | 1980 | 843.2 |
| | oCB1 | CABIN UNFI | 3 | 0 | 1980 | 121.0 |
Sketch
| No sketches available for this property. |
Property Image
Land
| 1 | LB | LOW BANK | 0.1807 | 7871.29 | 60.00 | 0.00 | 1.00 | $675,000 | $0 |
Roll Value History
| 2026 | N/A | N/A | N/A | N/A | N/A |
| 2025 | $287,347 | $675,000 | $0 | $962,347 | $962,347 |
| 2024 | $265,451 | $650,000 | $0 | $915,451 | $915,451 |
| 2023 | $268,758 | $625,000 | $0 | $893,758 | $893,758 |
| 2022 | $246,363 | $600,000 | $0 | $846,363 | $846,363 |
| 2021 | $213,076 | $425,000 | $0 | $638,076 | $638,076 |
| 2020 | $207,467 | $375,000 | $0 | $582,467 | $582,467 |
| 2019 | $149,858 | $400,000 | $0 | $549,858 | $549,858 |
| 2018 | $117,635 | $350,000 | $0 | $467,635 | $467,635 |
| 2017 | $118,413 | $300,000 | $0 | $418,413 | $418,413 |
| 2016 | $120,105 | $300,000 | $0 | $420,105 | $420,105 |
| 2015 | $121,795 | $300,000 | $0 | $421,795 | $421,795 |
| 2014 | $123,487 | $300,000 | $0 | $423,487 | $423,487 |
| 2013 | $125,180 | $270,684 | $0 | $395,864 | $395,864 |
| 2012 | $122,810 | $270,684 | $0 | $393,494 | $393,494 |
| 2011 | $124,507 | $270,684 | $0 | $395,191 | $395,191 |
| 2010 | $134,324 | $270,684 | $0 | $405,008 | $405,008 |
| 2009 | $138,633 | $315,180 | $0 | $453,813 | $453,813 |
| 2008 | $140,670 | $315,180 | $0 | $455,850 | $455,850 |
| 2007 | $142,705 | $268,830 | $0 | $411,535 | $411,535 |
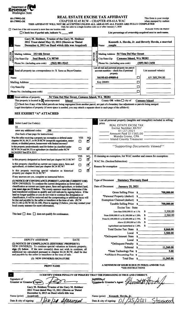
Deed and Sales History
| 1 | 11/24/2020 | QCD | Quit Claim Deed | QUINT, NANCY A | QUINT TTEE, SARAH ANN | | | $0.00 | 46051 | 4504736 |
| 2 | 11/24/2020 | QCD | Quit Claim Deed | QUINT, BRIAN H | QUINT, NANCY A | | | $0.00 | 46050 | 4504735 |
| 3 | 04/21/2020 | QCD | Quit Claim Deed | QUINT, BRIAN H (50%) | QUINT, BRIAN H | | | $0.00 | 42848 | 4485584 |
| 4 | 04/22/2020 | WD | Warranty Deed | QUINT, JANICE H | QUINT, BRIAN H (50%) | | | $335,000.00 | 42847 | 4485583 |
| 5 | 12/20/2008 | QCD | Quit Claim Deed | QUINT TRUSTEE, ESTHER G | QUINT, JANICE H | | | $0.00 | 90121 | 4243115 |
| 6 | 12/09/1998 | QCD | Quit Claim Deed | QUINT, ESTHER G | QUINT TRUSTEE, ESTHER G | | | $0.00 | 90177 | 99001069 |
| 7 | 06/11/1998 | WD | Warranty Deed | PERRY, RUSSEL A | QUINT, ESTHER G | | | $250,000.00 | 82333 | 98012097 |
| 8 | 01/01/1900 | OTHER | Other - Misc. Documents | Unknown | PERRY, RUSSEL A | | | $0.00 | 0 | 0 |
| 9 | 01/01/1900 | OTHER | Other - Misc. Documents | PERRY, RUSSEL A | QUINT, ESTHER G | | | $0.00 | 82333 | 98012097 |
| 10 | 01/01/1900 | OTHER | Other - Misc. Documents | QUINT, ESTHER G | PERRY, RUSSEL A | | | $0.00 | 0 | 0 |
Payout Agreement
| No payout information available.. |