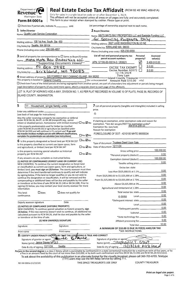
Property
Account |
| Property ID: | 269747 | Abbreviated Legal Description: | HGHLND MDWS LOT 1 |
| Geographic ID: | S7120-00-00001-0 | Agent Code: | |
| Type: | Real | | |
| Tax Area: | 712 - APPRAISER-S Whid Schl Dist, outside Langley, improved, greater than 1 acre | Land Use Code | 11 |
| Open Space: | N | DFL | N |
| Historic Property: | N | Remodel Property: | N |
| Multi-Family Redevelopment: | N | | |
| Township: | | Section: | |
| Range: | |
Location |
| Address: | 7266 HEGGENES RD CLINTON, WA 98236 | Mapsco: | |
| Neighborhood: | Cycle 4 | Map ID: | 846 |
| Neighborhood CD: | 4 |
Owner |
| Name: | WILMOTH, LAURA | Owner ID: | 307562 |
| Mailing Address: | PO BOX 561 CLINTON, WA 98236 | % Ownership: | 100.0000000000% |
| | | Exemptions: | |
Taxes and Assessment Details
Values
| (+) Improvement Homesite Value: | + | $0 | |
| (+) Improvement Non-Homesite Value: | + | $172,260 | |
| (+) Land Homesite Value: | + | $0 | |
| (+) Land Non-Homesite Value: | + | $280,000 | |
| (+) Curr Use (HS): | + | $0 | $0 |
| (+) Curr Use (NHS): | + | $0 | $0 |
| | | -------------------------- | |
| (=) Market Value: | = | $452,260 | |
| (–) Productivity Loss: | – | $0 | |
| | | -------------------------- | |
| (=) Subtotal: | = | $452,260 | |
| (+) Senior Appraised Value: | + | $0 | |
| (+) Non-Senior Appraised Value: | + | $452,260 | |
| | | -------------------------- | |
| (=) Total Appraised Value: | = | $452,260 | |
| (–) Senior Exemption Loss: | – | $0 | |
| (–) Exemption Loss: | – | $0 | |
| | | -------------------------- | |
| (=) Taxable Value: | = | $452,260 | |
Taxing Jurisdiction
| Owner: | WILMOTH, LAURA | | |
| % Ownership: | 100.0000000000% | | |
| Total Value: | $452,260 | | |
| Tax Area: | 712 - APPRAISER-S Whid Schl Dist, outside Langley, improved, greater than 1 acre |
| CF | Conservation Futures | 0.0316035091 | $452,260 | $452,260 | $14.29 | | |
| FIRE3 | Fire & Rescue Dist #3 S Whidbey GEN | 1.2004855531 | $452,260 | $452,260 | $542.93 | | |
| HOBOND | Hospital BOND | 0.1910887512 | $452,260 | $452,260 | $86.42 | | |
| HOGEN | Hospital GEN | 0.3902502903 | $452,260 | $452,260 | $176.49 | | |
| CE | County Current Expense | 0.3708482477 | $452,260 | $452,260 | $167.72 | | |
| CR | County Roads | 0.4584763726 | $452,260 | $452,260 | $207.35 | | |
| ISLANDEMS | Hospital GEN (EMS) | 0.5000000000 | $452,260 | $452,260 | $226.13 | | |
| LIB | Library Sno-Isle GEN | 0.3153421757 | $452,260 | $452,260 | $142.62 | | |
| PORTWHID | Port of S Whidbey GEN | 0.1094540357 | $452,260 | $452,260 | $49.50 | | |
| SCH206BOND | School 206 BOND | 0.3161759235 | $452,260 | $452,260 | $142.99 | | |
| SCH206MO | School 206 Enrichment | 0.4547169547 | $452,260 | $452,260 | $205.65 | | |
| ST | State School | 1.3035497053 | $452,260 | $452,260 | $589.54 | | |
| ST2 | State School Part 2 | 0.8169543533 | $452,260 | $452,260 | $369.48 | | |
| SWHIDPRBD | P & R S Whidbey BOND | 0.0152817568 | $452,260 | $452,260 | $6.91 | | |
| SWHIDPRBD2 | P & R S Whidbey BOND2 | 0.0138911264 | $452,260 | $452,260 | $6.28 | | |
| SWHIDPRMT | P & R S Whidbey GEN | 0.2053334452 | $452,260 | $452,260 | $92.86 | | |
| | Total Tax Rate: | 6.6934522006 | | | | | |
| | | | | Taxes w/Current Exemptions: | $3,027.16 | | |
| | | | | Taxes w/o Exemptions: | $3,027.16 | | |
Improvement / Building
| Improvement #1: | RESIDENTIAL | State Code: | Y | 879.0 sqft | Value: | $172,260 |
| Bathrooms: | 1 | Bedrooms: | 1 | | Ceiling: | DRYWALL PAINTED | Exterior Wall/Cover: | WOOD SIDING | | Floor Covering: | CARPET/VINYL 80-20 | Floor Structure: | WOOD W/SUBFLOOR | | Foundation: | CONCRETE | Heating: | FHA ELECTRIC | | Interior Finish: | DRYWALL PAINT | Plumbing Fixture Cnt: | 6 | | Roof Slope: | 4" IN 12" | Roof Structure/Cover: | CJ ASPHALT |
|
| | Type | Description | Class CD | Sub Class CD | Year Built | Area |
| | BAS | BASE/MAIN FLOOR | 3 | 0 | 1987 | 566.0 |
| | DWN | DOWNSTAIRS LIVING AREA | 3 | 0 | 1987 | 313.0 |
| | OWP | OPEN WOOD PORCH W/STEPS | 3 | 0 | 1987 | 56.0 |
| | BIG | BUILT IN GARAGE | 3 | 0 | 1987 | 276.0 |
| | OP4 | OPEN PORCH W/CEILING-ROOF | 3 | 0 | 1987 | 9.0 |
Sketch
| No sketches available for this property. |
Property Image
Land
| 1 | 17 | AC (01.01-02.00) | 1.7400 | 75794.40 | 0.00 | 0.00 | 1.00 | $280,000 | $0 |
Roll Value History
| 2026 | N/A | N/A | N/A | N/A | N/A |
| 2025 | $172,260 | $280,000 | $0 | $452,260 | $452,260 |
| 2024 | $174,283 | $270,000 | $0 | $444,283 | $444,283 |
| 2023 | $176,302 | $260,000 | $0 | $436,302 | $436,302 |
| 2022 | $160,329 | $250,000 | $0 | $410,329 | $410,329 |
| 2021 | $140,998 | $175,000 | $0 | $315,998 | $315,998 |
| 2020 | $76,622 | $165,000 | $0 | $241,622 | $241,622 |
| 2019 | $54,827 | $200,000 | $0 | $254,827 | $254,827 |
| 2018 | $55,029 | $170,000 | $0 | $225,029 | $225,029 |
| 2017 | $55,430 | $150,000 | $0 | $205,430 | $205,430 |
| 2016 | $56,234 | $130,000 | $0 | $186,234 | $186,234 |
| 2015 | $57,037 | $100,000 | $0 | $157,037 | $157,037 |
| 2014 | $66,300 | $100,000 | $0 | $166,300 | $166,300 |
| 2013 | $67,211 | $85,000 | $0 | $152,211 | $152,211 |
| 2012 | $68,121 | $69,700 | $0 | $137,821 | $137,821 |
| 2011 | $69,031 | $82,000 | $0 | $151,031 | $151,031 |
| 2010 | $67,981 | $82,000 | $0 | $149,981 | $149,981 |
| 2009 | $71,013 | $155,000 | $0 | $226,013 | $226,013 |
| 2008 | $71,969 | $110,000 | $0 | $181,969 | $181,969 |
| 2007 | $72,941 | $110,000 | $0 | $182,941 | $182,941 |
Deed and Sales History
| 1 | 06/14/2024 | QCD | Quit Claim Deed | WILMOTH, TREVOR R | WILMOTH, LAURA | | | $0.00 | 60345 | 453536 |
| 2 | 02/10/2023 | WD | Warranty Deed | DEAVER, ROY P | WILMOTH, LAURA | | | $330,000.00 | 55826 | 4556600 |
| 3 | 11/21/2016 | SPLTDWARDE | Special Limited Warranty Deed | BANK OF NEW YORK MELLON | DEAVER, ROY P | | | $203,900.00 | 28817 | 4420446 |
|   | |
| 4 | 09/14/2016 | TRUSTEED | Trustee's Deed | BELL, JEFFREY W & KAREN L | BANK OF NEW YORK MELLON | | | $0.00 | 26194 | 4407652 |
| 5 | 08/08/2001 | WD | Warranty Deed | HANAN, LARRY G | BELL, JEFFREY W | | | $112,537.00 | 13007 | 20039507 |
| 6 | 12/01/1990 | WD | Warranty Deed | Unknown | HANAN, LARRY G | | | $95,000.00 | 6743 | 90023541 |
Payout Agreement
| No payout information available.. |