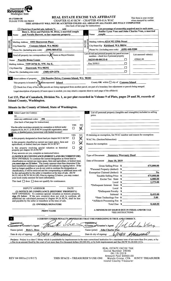
Property
Account |
| Property ID: | 269925 | Abbreviated Legal Description: | HGHLND MDWS LOT 19 |
| Geographic ID: | S7120-00-00019-0 | Agent Code: | |
| Type: | Real | | |
| Tax Area: | 712 - APPRAISER-S Whid Schl Dist, outside Langley, improved, greater than 1 acre | Land Use Code | 11 |
| Open Space: | N | DFL | N |
| Historic Property: | N | Remodel Property: | N |
| Multi-Family Redevelopment: | N | | |
| Township: | | Section: | |
| Range: | |
Location |
| Address: | 4435 ROLLINGHILL RD CLINTON, WA 98236 | Mapsco: | |
| Neighborhood: | Cycle 4 | Map ID: | 848 |
| Neighborhood CD: | 4 |
Owner |
| Name: | FIELD, MELISSA R | Owner ID: | 289494 |
| Mailing Address: | PAUL D FIELD PO BOX 1195 LANGLEY, WA 98260 | % Ownership: | 100.0000000000% |
| | | Exemptions: | |
Taxes and Assessment Details
Values
| (+) Improvement Homesite Value: | + | $0 | |
| (+) Improvement Non-Homesite Value: | + | $415,134 | |
| (+) Land Homesite Value: | + | $0 | |
| (+) Land Non-Homesite Value: | + | $280,000 | |
| (+) Curr Use (HS): | + | $0 | $0 |
| (+) Curr Use (NHS): | + | $0 | $0 |
| | | -------------------------- | |
| (=) Market Value: | = | $695,134 | |
| (–) Productivity Loss: | – | $0 | |
| | | -------------------------- | |
| (=) Subtotal: | = | $695,134 | |
| (+) Senior Appraised Value: | + | $0 | |
| (+) Non-Senior Appraised Value: | + | $695,134 | |
| | | -------------------------- | |
| (=) Total Appraised Value: | = | $695,134 | |
| (–) Senior Exemption Loss: | – | $0 | |
| (–) Exemption Loss: | – | $0 | |
| | | -------------------------- | |
| (=) Taxable Value: | = | $695,134 | |
Taxing Jurisdiction
| Owner: | FIELD, MELISSA R | | |
| % Ownership: | 100.0000000000% | | |
| Total Value: | $695,134 | | |
| Tax Area: | 712 - APPRAISER-S Whid Schl Dist, outside Langley, improved, greater than 1 acre |
| CF | Conservation Futures | 0.0316035091 | $695,134 | $695,134 | $21.97 | | |
| FIRE3 | Fire & Rescue Dist #3 S Whidbey GEN | 1.2004855531 | $695,134 | $695,134 | $834.50 | | |
| HOBOND | Hospital BOND | 0.1910887512 | $695,134 | $695,134 | $132.83 | | |
| HOGEN | Hospital GEN | 0.3902502903 | $695,134 | $695,134 | $271.28 | | |
| CE | County Current Expense | 0.3708482477 | $695,134 | $695,134 | $257.79 | | |
| CR | County Roads | 0.4584763726 | $695,134 | $695,134 | $318.70 | | |
| ISLANDEMS | Hospital GEN (EMS) | 0.5000000000 | $695,134 | $695,134 | $347.57 | | |
| LIB | Library Sno-Isle GEN | 0.3153421757 | $695,134 | $695,134 | $219.21 | | |
| PORTWHID | Port of S Whidbey GEN | 0.1094540357 | $695,134 | $695,134 | $76.09 | | |
| SCH206BOND | School 206 BOND | 0.3161759235 | $695,134 | $695,134 | $219.78 | | |
| SCH206MO | School 206 Enrichment | 0.4547169547 | $695,134 | $695,134 | $316.09 | | |
| ST | State School | 1.3035497053 | $695,134 | $695,134 | $906.14 | | |
| ST2 | State School Part 2 | 0.8169543533 | $695,134 | $695,134 | $567.89 | | |
| SWHIDPRBD | P & R S Whidbey BOND | 0.0152817568 | $695,134 | $695,134 | $10.62 | | |
| SWHIDPRBD2 | P & R S Whidbey BOND2 | 0.0138911264 | $695,134 | $695,134 | $9.66 | | |
| SWHIDPRMT | P & R S Whidbey GEN | 0.2053334452 | $695,134 | $695,134 | $142.73 | | |
| | Total Tax Rate: | 6.6934522006 | | | | | |
| | | | | Taxes w/Current Exemptions: | $4,652.85 | | |
| | | | | Taxes w/o Exemptions: | $4,652.85 | | |
Improvement / Building
| Improvement #1: | RESIDENTIAL | State Code: | Y | 2135.0 sqft | Value: | $415,134 |
| Bathrooms: | 2.5 | Bedrooms: | 3 | | Ceiling: | DRYWALL PAINTED | Exterior Wall/Cover: | COMMON BRICK VENEER | | Floor Covering: | CARPET/VINYL 20-80 | Floor Structure: | WOOD W/SUBFLOOR | | Foundation: | CONCRETE | Heating: | WALL HEAT ELECTRIC | | Interior Finish: | DRYWALL PAINT | Plumbing Fixture Cnt: | 13 | | Roof Slope: | 6" IN 12" | Roof Structure/Cover: | CJ ASPHALT |
|
| | Type | Description | Class CD | Sub Class CD | Year Built | Area |
| | BAS | BASE/MAIN FLOOR | 3 | 0 | 1995 | 2135.0 |
| | DGR | DETACHED GARAGE | 3 | 0 | 1995 | 832.0 |
| | AGR | ATTACHED GARAGE | 3 | 0 | 1995 | 504.0 |
| | OWC | OPEN WOOD PORCH W/STEPS/ROOF/C | 3 | 0 | 1995 | 50.0 |
| | OP1 | OPEN PORCH SLAB | 3 | 0 | 1995 | 160.0 |
| | OP1 | OPEN PORCH SLAB | 3 | 0 | 1995 | 180.0 |
| | OWC | OPEN WOOD PORCH W/STEPS/ROOF/C | 3 | 0 | 1995 | 72.0 |
| | UTY | STORAGE/UTILITY | 3 | 0 | 1995 | 64.0 |
| | CPD | OPEN CARPORT DIRT FLOOR | 3 | 0 | 1995 | 32.0 |
| | CPD | OPEN CARPORT DIRT FLOOR | 3 | 0 | 1995 | 32.0 |
Sketch
Property Image
Land
| 1 | 17 | AC (01.01-02.00) | 1.8900 | 82328.40 | 0.00 | 0.00 | 1.00 | $280,000 | $0 |
Roll Value History
| 2026 | N/A | N/A | N/A | N/A | N/A |
| 2025 | $415,134 | $280,000 | $0 | $695,134 | $695,134 |
| 2024 | $420,244 | $270,000 | $0 | $690,244 | $690,244 |
| 2023 | $425,354 | $260,000 | $0 | $685,354 | $685,354 |
| 2022 | $389,809 | $250,000 | $0 | $639,809 | $639,809 |
| 2021 | $342,968 | $175,000 | $0 | $517,968 | $517,968 |
| 2020 | $326,430 | $165,000 | $0 | $491,430 | $491,430 |
| 2019 | $186,273 | $200,000 | $0 | $386,273 | $386,273 |
| 2018 | $186,869 | $170,000 | $0 | $356,869 | $356,869 |
| 2017 | $188,058 | $150,000 | $0 | $338,058 | $338,058 |
| 2016 | $190,439 | $130,000 | $0 | $320,439 | $320,439 |
| 2015 | $192,819 | $100,000 | $0 | $292,819 | $292,819 |
| 2014 | $192,829 | $100,000 | $0 | $292,829 | $292,829 |
| 2013 | $195,234 | $85,000 | $0 | $280,234 | $280,234 |
| 2012 | $197,640 | $69,700 | $0 | $267,340 | $267,340 |
| 2011 | $200,044 | $82,000 | $0 | $282,044 | $282,044 |
| 2010 | $212,312 | $82,000 | $0 | $294,312 | $294,312 |
| 2009 | $221,561 | $155,000 | $0 | $376,561 | $376,561 |
| 2008 | $223,927 | $110,000 | $0 | $333,927 | $333,927 |
| 2007 | $226,740 | $110,000 | $0 | $336,740 | $336,740 |
Deed and Sales History
| 1 | 04/26/2019 | WD | Warranty Deed | GRAY, CHRISTOPHER | FIELD, MELISSA R | | | $550,000.00 | 38233 | 4462149 |
| 2 | 04/18/2008 | ESTSEPPROP | Establish Separate Property | GRAY, CHRISTOPHER J | GRAY, CHRISTOPHER | | | $0.00 | 81009 | 4227044 |
| 3 | 07/01/1995 | WD | Warranty Deed | VAN, DYKE, W | GRAY, CHRISTOPHER J | | | $185,000.00 | 52567 | 95011855 |
| 4 | 08/01/1994 | WD | Warranty Deed | FERENZ, PAUL J | VAN, DYKE, W | | | $35,500.00 | 43352 | 94017864 |
| 5 | 08/01/1979 | EXECUTORD | Executor Deed | WHELPLEY, ROBERT | FERENZ, PAUL J | | | $16,000.00 | 94096 | 357583 |
| 6 | 01/01/1900 | OTHER | Other - Misc. Documents | Unknown | WHELPLEY, ROBERT | | | $0.00 | 0 | 0 |
Payout Agreement
| No payout information available.. |