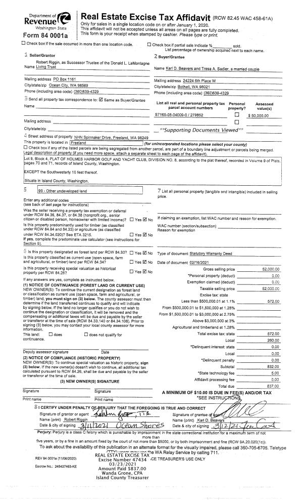
Property
Account |
| Property ID: | 270021 | Abbreviated Legal Description: | HGHLND MDWS LOT 29 |
| Geographic ID: | S7120-00-00029-0 | Agent Code: | |
| Type: | Real | | |
| Tax Area: | 712 - APPRAISER-S Whid Schl Dist, outside Langley, improved, greater than 1 acre | Land Use Code | 11 |
| Open Space: | N | DFL | N |
| Historic Property: | N | Remodel Property: | N |
| Multi-Family Redevelopment: | N | | |
| Township: | | Section: | |
| Range: | |
Location |
| Address: | 4497 ROLLINGHILL RD CLINTON, WA 98236 | Mapsco: | |
| Neighborhood: | Cycle 4 | Map ID: | 848 |
| Neighborhood CD: | 4 |
Owner |
| Name: | BAXTER, DIANE L | Owner ID: | 97613 |
| Mailing Address: | PO BOX 959 CLINTON, WA 98236 | % Ownership: | 100.0000000000% |
| | | Exemptions: | |
Taxes and Assessment Details
Values
| (+) Improvement Homesite Value: | + | $0 | |
| (+) Improvement Non-Homesite Value: | + | $340,117 | |
| (+) Land Homesite Value: | + | $0 | |
| (+) Land Non-Homesite Value: | + | $360,000 | |
| (+) Curr Use (HS): | + | $0 | $0 |
| (+) Curr Use (NHS): | + | $0 | $0 |
| | | -------------------------- | |
| (=) Market Value: | = | $700,117 | |
| (–) Productivity Loss: | – | $0 | |
| | | -------------------------- | |
| (=) Subtotal: | = | $700,117 | |
| (+) Senior Appraised Value: | + | $0 | |
| (+) Non-Senior Appraised Value: | + | $700,117 | |
| | | -------------------------- | |
| (=) Total Appraised Value: | = | $700,117 | |
| (–) Senior Exemption Loss: | – | $0 | |
| (–) Exemption Loss: | – | $0 | |
| | | -------------------------- | |
| (=) Taxable Value: | = | $700,117 | |
Taxing Jurisdiction
| Owner: | BAXTER, DIANE L | | |
| % Ownership: | 100.0000000000% | | |
| Total Value: | $700,117 | | |
| Tax Area: | 712 - APPRAISER-S Whid Schl Dist, outside Langley, improved, greater than 1 acre |
| CF | Conservation Futures | 0.0316035091 | $700,117 | $700,117 | $22.13 | | |
| FIRE3 | Fire & Rescue Dist #3 S Whidbey GEN | 1.2004855531 | $700,117 | $700,117 | $840.48 | | |
| HOBOND | Hospital BOND | 0.1910887512 | $700,117 | $700,117 | $133.78 | | |
| HOGEN | Hospital GEN | 0.3902502903 | $700,117 | $700,117 | $273.22 | | |
| CE | County Current Expense | 0.3708482477 | $700,117 | $700,117 | $259.64 | | |
| CR | County Roads | 0.4584763726 | $700,117 | $700,117 | $320.99 | | |
| ISLANDEMS | Hospital GEN (EMS) | 0.5000000000 | $700,117 | $700,117 | $350.06 | | |
| LIB | Library Sno-Isle GEN | 0.3153421757 | $700,117 | $700,117 | $220.78 | | |
| PORTWHID | Port of S Whidbey GEN | 0.1094540357 | $700,117 | $700,117 | $76.63 | | |
| SCH206BOND | School 206 BOND | 0.3161759235 | $700,117 | $700,117 | $221.36 | | |
| SCH206MO | School 206 Enrichment | 0.4547169547 | $700,117 | $700,117 | $318.36 | | |
| ST | State School | 1.3035497053 | $700,117 | $700,117 | $912.64 | | |
| ST2 | State School Part 2 | 0.8169543533 | $700,117 | $700,117 | $571.96 | | |
| SWHIDPRBD | P & R S Whidbey BOND | 0.0152817568 | $700,117 | $700,117 | $10.70 | | |
| SWHIDPRBD2 | P & R S Whidbey BOND2 | 0.0138911264 | $700,117 | $700,117 | $9.73 | | |
| SWHIDPRMT | P & R S Whidbey GEN | 0.2053334452 | $700,117 | $700,117 | $143.76 | | |
| | Total Tax Rate: | 6.6934522006 | | | | | |
| | | | | Taxes w/Current Exemptions: | $4,686.22 | | |
| | | | | Taxes w/o Exemptions: | $4,686.22 | | |
Improvement / Building
| Improvement #1: | RESIDENTIAL | State Code: | Y | 1770.0 sqft | Value: | $340,117 |
| Bathrooms: | 2 | Bedrooms: | 2 | | Ceiling: | TONGUE & GROOVE | Cooling: | HEAT PUMP/CONV/V | | Exterior Wall/Cover: | WOOD SIDING | Floor Covering: | SOFTWOOD/VINYL 80-20 | | Floor Structure: | WOOD W/SUBFLOOR | Foundation: | CONCRETE | | Interior Finish: | DRYWALL PAINT | Plumbing Fixture Cnt: | 9 | | Roof Slope: | 5" IN 12" | Roof Structure/Cover: | CJ ASPHALT |
|
| | Type | Description | Class CD | Sub Class CD | Year Built | Area |
| | BAS | BASE/MAIN FLOOR | 4 | 0 | 1976 | 1210.0 |
| | UPS | UPPER STORY | 4 | 0 | 1976 | 560.0 |
| | OWP | OPEN WOOD PORCH W/STEPS | 4 | 0 | 1976 | 195.0 |
| | OWC | OPEN WOOD PORCH W/STEPS/ROOF/C | 4 | 0 | 1976 | 215.0 |
| | UTY | STORAGE/UTILITY | 4 | 0 | 1976 | 720.0 |
| | ATF | ATTIC FINISHED | 4 | 0 | 1976 | 720.2 |
| | OP4 | OPEN PORCH W/CEILING-ROOF | 4 | 0 | 1976 | 512.0 |
Sketch
| No sketches available for this property. |
Property Image
Land
| 1 | 32 | AC (03.01-09.99) | 6.6200 | 288367.20 | 0.00 | 0.00 | 1.00 | $360,000 | $0 |
Roll Value History
| 2026 | N/A | N/A | N/A | N/A | N/A |
| 2025 | $340,117 | $360,000 | $0 | $700,117 | $700,117 |
| 2024 | $345,175 | $340,000 | $0 | $685,175 | $685,175 |
| 2023 | $350,232 | $330,000 | $0 | $680,232 | $680,232 |
| 2022 | $321,714 | $280,000 | $0 | $601,714 | $601,714 |
| 2021 | $283,742 | $230,000 | $0 | $513,742 | $513,742 |
| 2020 | $193,005 | $190,000 | $0 | $383,005 | $383,005 |
| 2019 | $146,481 | $250,000 | $0 | $396,481 | $396,481 |
| 2018 | $147,026 | $210,000 | $0 | $357,026 | $357,026 |
| 2017 | $148,061 | $165,000 | $0 | $313,061 | $313,061 |
| 2016 | $150,245 | $165,000 | $0 | $315,245 | $315,245 |
| 2015 | $152,430 | $150,000 | $0 | $302,430 | $302,430 |
| 2014 | $155,644 | $148,000 | $0 | $303,644 | $303,644 |
| 2013 | $157,631 | $226,100 | $0 | $383,731 | $383,731 |
| 2012 | $159,616 | $226,100 | $0 | $385,716 | $385,716 |
| 2011 | $161,601 | $226,100 | $0 | $387,701 | $387,701 |
| 2010 | $171,562 | $226,100 | $0 | $397,662 | $397,662 |
| 2009 | $178,840 | $292,600 | $0 | $471,440 | $471,440 |
| 2008 | $173,435 | $351,120 | $0 | $524,555 | $524,555 |
| 2007 | $176,090 | $351,120 | $0 | $527,210 | $527,210 |
Deed and Sales History
| 1 | 07/19/2005 | DECREE | Divorce Decree/Legal Separation | BAXTER, ANTHONY I | BAXTER, DIANE L | | | $0.00 | 54687 | 4147995 |
| 2 | 10/01/1986 | WD | Warranty Deed | BARTON, LARRY N | BAXTER, ANTHONY I | | | $87,000.00 | 62781 | 86012577 |
| 3 | 01/01/1900 | OTHER | Other - Misc. Documents | Unknown | BARTON, LARRY N | | | $0.00 | 0 | 0 |
Payout Agreement
| No payout information available.. |