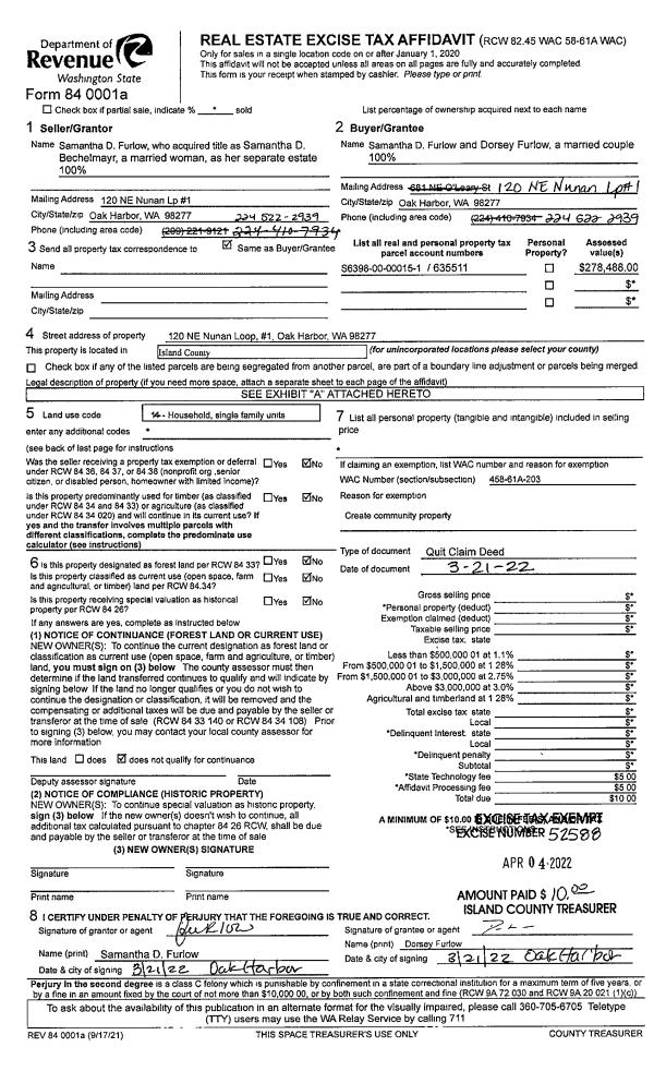
Property
Account |
| Property ID: | 270254 | Abbreviated Legal Description: | HILNDS CAM LOT 7 LESS: BG NW CR L7 S430'TPB E70' S TO SLN L7 WLY ALG SLY LN SD TR TO SW CR SD TR N TPB |
| Geographic ID: | S7125-00-00007-1 | Agent Code: | |
| Type: | Real | | |
| Tax Area: | 542 - APPRAISER-Stan/Cam Schl Dist, Special Dist, improved, greater than 1 acre | Land Use Code | 11 |
| Open Space: | N | DFL | N |
| Historic Property: | N | Remodel Property: | N |
| Multi-Family Redevelopment: | N | | |
| Township: | | Section: | |
| Range: | |
Location |
| Address: | 3692 SOUTH CAMANO DR CAMANO ISLAND, WA 98282 | Mapsco: | |
| Neighborhood: | 58RscamWF-South Cam | Map ID: | 875 |
| Neighborhood CD: | 58RscamWF |
Owner |
| Name: | PEARY TRUSTEE, JACK ALEXANDER | Owner ID: | 267074 |
| Mailing Address: | BETTY LOUISE PEARY TRUSTEE C/O JENNIFER PEARY 3692 S CAMANO DR CAMANO ISLAND, WA 98282 | % Ownership: | 100.0000000000% |
| | | Exemptions: | |
Taxes and Assessment Details
Values
| (+) Improvement Homesite Value: | + | $0 | |
| (+) Improvement Non-Homesite Value: | + | $362,950 | |
| (+) Land Homesite Value: | + | $0 | |
| (+) Land Non-Homesite Value: | + | $725,000 | |
| (+) Curr Use (HS): | + | $0 | $0 |
| (+) Curr Use (NHS): | + | $0 | $0 |
| | | -------------------------- | |
| (=) Market Value: | = | $1,087,950 | |
| (–) Productivity Loss: | – | $0 | |
| | | -------------------------- | |
| (=) Subtotal: | = | $1,087,950 | |
| (+) Senior Appraised Value: | + | $0 | |
| (+) Non-Senior Appraised Value: | + | $1,087,950 | |
| | | -------------------------- | |
| (=) Total Appraised Value: | = | $1,087,950 | |
| (–) Senior Exemption Loss: | – | $0 | |
| (–) Exemption Loss: | – | $0 | |
| | | -------------------------- | |
| (=) Taxable Value: | = | $1,087,950 | |
Taxing Jurisdiction
| Owner: | PEARY TRUSTEE, JACK ALEXANDER | | |
| % Ownership: | 100.0000000000% | | |
| Total Value: | $1,087,950 | | |
| Tax Area: | 542 - APPRAISER-Stan/Cam Schl Dist, Special Dist, improved, greater than 1 acre |
| CF | Conservation Futures | 0.0316035091 | $1,087,950 | $1,087,950 | $34.38 | | |
| EMS1 | Fire & Rescue Dist #1 Camano GEN (EMS) | 0.3677864386 | $1,087,950 | $1,087,950 | $400.13 | | |
| FIRE1 | Fire & Rescue Dist #1 Camano GEN | 1.2502910536 | $1,087,950 | $1,087,950 | $1,360.25 | | |
| FIRE1BOND | Fire & Rescue Dist #1 Camano BOND | 0.1570001679 | $1,087,950 | $1,087,950 | $170.81 | | |
| CE | County Current Expense | 0.3708482477 | $1,087,950 | $1,087,950 | $403.46 | | |
| CR | County Roads | 0.4584763726 | $1,087,950 | $1,087,950 | $498.80 | | |
| LCIB | Library Sno-Isle BOND (Camano Island) | 0.0396325772 | $1,087,950 | $1,087,950 | $43.12 | | |
| LIB | Library Sno-Isle GEN | 0.3153421757 | $1,087,950 | $1,087,950 | $343.08 | | |
| SCH205_401 | School 205-401 Enrichment | 1.2698420524 | $1,087,950 | $1,087,950 | $1,381.52 | | |
| SCH205BOND | School 205-401 BOND | 0.9396497583 | $1,087,950 | $1,087,950 | $1,022.29 | | |
| ST | State School | 1.3035497053 | $1,087,950 | $1,087,950 | $1,418.20 | | |
| ST2 | State School Part 2 | 0.8169543533 | $1,087,950 | $1,087,950 | $888.81 | | |
| | Total Tax Rate: | 7.3209764117 | | | | | |
| | | | | Taxes w/Current Exemptions: | $7,964.85 | | |
| | | | | Taxes w/o Exemptions: | $7,964.85 | | |
Improvement / Building
| Improvement #1: | RESIDENTIAL | State Code: | Y | 2762.0 sqft | Value: | $362,950 |
| Bathrooms: | 3 | Bedrooms: | 3 | | Ceiling: | DRYWALL PAINTED | Exterior Wall/Cover: | PLY/HARDBOARD T-111 | | Floor Covering: | CARPET/VINYL 80-20 | Floor Structure: | WOOD W/SUBFLOOR | | Foundation: | CONCRETE | Heating: | FHA GAS | | Interior Finish: | DRYWALL PAINT | Plumbing Fixture Cnt: | 11 | | Roof Slope: | 10" IN 12" | Roof Structure/Cover: | CJ ASPHALT |
|
| | Type | Description | Class CD | Sub Class CD | Year Built | Area |
| | BAS | BASE/MAIN FLOOR | 3 | 0 | 1979 | 1440.0 |
| | UB8 | BASEMENT UNFINISHED 8" | 3 | 0 | 1979 | 672.0 |
| | DWN | DOWNSTAIRS LIVING AREA | 3 | 0 | 1979 | 768.0 |
| | UTY | STORAGE/UTILITY | 3 | 0 | 1979 | 480.0 |
| | UPS | UPPER STORY | 3 | 0 | 1979 | 554.0 |
| | OWP | OPEN WOOD PORCH W/STEPS | 3 | 0 | 1979 | 1602.0 |
| | OWR | OPEN WOOD PORCH W/STEPS/ROOF | 3 | 0 | 1979 | 288.0 |
| | DGR | DETACHED GARAGE | 3 | 0 | 1979 | 480.0 |
Sketch
Property Image
Land
| 1 | HB | HIGH BLUFF | 3.9000 | 169884.00 | 140.00 | 0.00 | 1.00 | $725,000 | $0 |
Roll Value History
| 2026 | N/A | N/A | N/A | N/A | N/A |
| 2025 | $362,950 | $725,000 | $0 | $1,087,950 | $1,087,950 |
| 2024 | $368,191 | $700,000 | $0 | $1,068,191 | $1,068,191 |
| 2023 | $373,434 | $700,000 | $0 | $1,073,434 | $1,073,434 |
| 2022 | $342,903 | $600,000 | $0 | $942,903 | $942,903 |
| 2021 | $284,217 | $425,000 | $0 | $709,217 | $709,217 |
| 2020 | $277,650 | $350,000 | $0 | $627,650 | $627,650 |
| 2019 | $211,497 | $400,000 | $0 | $611,497 | $611,497 |
| 2018 | $212,219 | $300,000 | $0 | $512,219 | $512,219 |
| 2017 | $213,661 | $300,000 | $0 | $513,661 | $513,661 |
| 2016 | $216,549 | $300,000 | $0 | $516,549 | $516,549 |
| 2015 | $177,594 | $300,000 | $0 | $477,594 | $477,594 |
| 2014 | $180,209 | $300,000 | $0 | $480,209 | $480,209 |
| 2013 | $182,825 | $270,597 | $0 | $453,422 | $453,422 |
| 2012 | $185,438 | $318,349 | $0 | $503,787 | $503,787 |
| 2011 | $188,052 | $397,936 | $0 | $585,988 | $585,988 |
| 2010 | $199,182 | $442,151 | $0 | $641,333 | $641,333 |
| 2009 | $208,542 | $521,637 | $0 | $730,179 | $730,179 |
| 2008 | $211,956 | $521,637 | $0 | $733,593 | $733,593 |
| 2007 | $215,611 | $521,637 | $0 | $737,248 | $737,248 |
Deed and Sales History
| 1 | 08/01/2025 | WD | Warranty Deed | PEARY TRUSTEE, JACK ALEXANDER | ROE, JEFFREY THOMAS | | | $995,000.00 | 64414 | 4589324 |
| 2 | 06/26/2014 | TRUSTEED | Trustee's Deed | PEARY, JACK A | PEARY TRUSTEE, JACK ALEXANDER | | | $0.00 | 15957 | 4362096 |
Payout Agreement
| No payout information available.. |