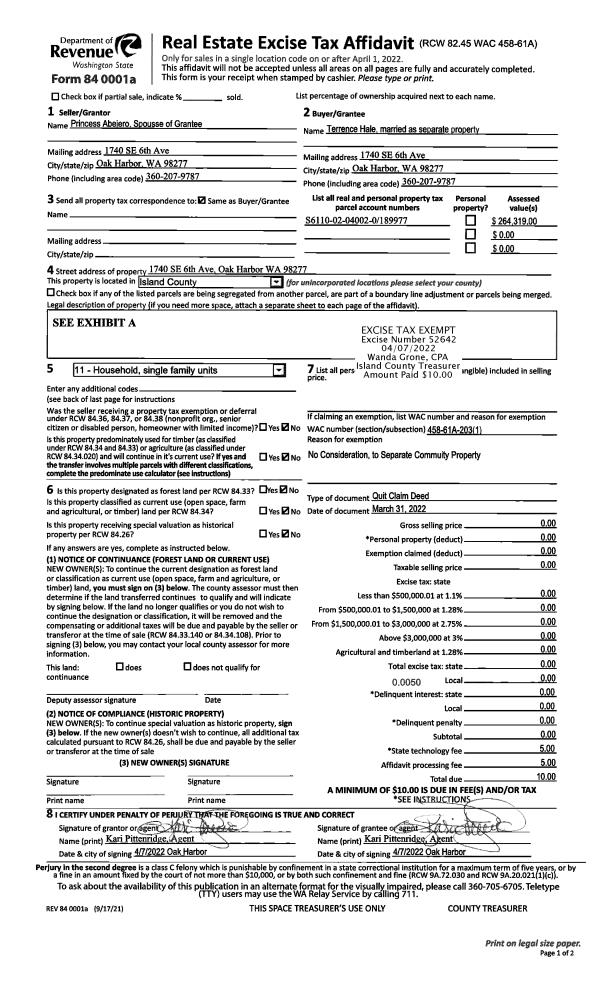
Property
Account |
| Property ID: | 270307 | Abbreviated Legal Description: | HILNDS CAM LOT 13 INCL ADJ TIDES |
| Geographic ID: | S7125-00-00013-0 | Agent Code: | |
| Type: | Real | | |
| Tax Area: | 542 - APPRAISER-Stan/Cam Schl Dist, Special Dist, improved, greater than 1 acre | Land Use Code | 11 |
| Open Space: | N | DFL | N |
| Historic Property: | N | Remodel Property: | N |
| Multi-Family Redevelopment: | N | | |
| Township: | | Section: | |
| Range: | |
Location |
| Address: | 3822 SOUTH CAMANO DR CAMANO ISLAND, WA 98282 | Mapsco: | |
| Neighborhood: | 58RscamWF-South Cam | Map ID: | 875 |
| Neighborhood CD: | 58RscamWF |
Owner |
| Name: | CAHILL, MARGARET B | Owner ID: | 64805 |
| Mailing Address: | 21036 NE 122ND ST REDMOND, WA 98053-5321 | % Ownership: | 100.0000000000% |
| | | Exemptions: | |
Taxes and Assessment Details
Values
| (+) Improvement Homesite Value: | + | $0 | |
| (+) Improvement Non-Homesite Value: | + | $162,210 | |
| (+) Land Homesite Value: | + | $0 | |
| (+) Land Non-Homesite Value: | + | $877,450 | |
| (+) Curr Use (HS): | + | $0 | $0 |
| (+) Curr Use (NHS): | + | $0 | $0 |
| | | -------------------------- | |
| (=) Market Value: | = | $1,039,660 | |
| (–) Productivity Loss: | – | $0 | |
| | | -------------------------- | |
| (=) Subtotal: | = | $1,039,660 | |
| (+) Senior Appraised Value: | + | $0 | |
| (+) Non-Senior Appraised Value: | + | $1,039,660 | |
| | | -------------------------- | |
| (=) Total Appraised Value: | = | $1,039,660 | |
| (–) Senior Exemption Loss: | – | $0 | |
| (–) Exemption Loss: | – | $0 | |
| | | -------------------------- | |
| (=) Taxable Value: | = | $1,039,660 | |
Taxing Jurisdiction
| Owner: | CAHILL, MARGARET B | | |
| % Ownership: | 100.0000000000% | | |
| Total Value: | $1,039,660 | | |
| Tax Area: | 542 - APPRAISER-Stan/Cam Schl Dist, Special Dist, improved, greater than 1 acre |
| CF | Conservation Futures | 0.0316035091 | $1,039,660 | $1,039,660 | $32.86 | | |
| EMS1 | Fire & Rescue Dist #1 Camano GEN (EMS) | 0.3677864386 | $1,039,660 | $1,039,660 | $382.37 | | |
| FIRE1 | Fire & Rescue Dist #1 Camano GEN | 1.2502910536 | $1,039,660 | $1,039,660 | $1,299.88 | | |
| FIRE1BOND | Fire & Rescue Dist #1 Camano BOND | 0.1570001679 | $1,039,660 | $1,039,660 | $163.23 | | |
| CE | County Current Expense | 0.3708482477 | $1,039,660 | $1,039,660 | $385.56 | | |
| CR | County Roads | 0.4584763726 | $1,039,660 | $1,039,660 | $476.66 | | |
| LCIB | Library Sno-Isle BOND (Camano Island) | 0.0396325772 | $1,039,660 | $1,039,660 | $41.20 | | |
| LIB | Library Sno-Isle GEN | 0.3153421757 | $1,039,660 | $1,039,660 | $327.85 | | |
| SCH205_401 | School 205-401 Enrichment | 1.2698420524 | $1,039,660 | $1,039,660 | $1,320.20 | | |
| SCH205BOND | School 205-401 BOND | 0.9396497583 | $1,039,660 | $1,039,660 | $976.92 | | |
| ST | State School | 1.3035497053 | $1,039,660 | $1,039,660 | $1,355.25 | | |
| ST2 | State School Part 2 | 0.8169543533 | $1,039,660 | $1,039,660 | $849.35 | | |
| | Total Tax Rate: | 7.3209764117 | | | | | |
| | | | | Taxes w/Current Exemptions: | $7,611.33 | | |
| | | | | Taxes w/o Exemptions: | $7,611.33 | | |
Improvement / Building
| Improvement #1: | RESIDENTIAL | State Code: | Y | 1279.0 sqft | Value: | $162,210 |
| Bathrooms: | 1 | Bedrooms: | 2 | | Ceiling: | TONGUE & GROOVE | Exterior Wall/Cover: | LOG TO 10" | | Floor Covering: | CARPET/VINYL 80-20 | Floor Structure: | WOOD W/SUBFLOOR | | Foundation: | CONCRETE | Heating: | BASEBOARD ELECTRIC | | Interior Finish: | DRYWALL PAINT | Plumbing Fixture Cnt: | 6 | | Roof Slope: | 8" IN 12" | Roof Structure/Cover: | CJ ASPHALT |
|
| | Type | Description | Class CD | Sub Class CD | Year Built | Area |
| | BAS | BASE/MAIN FLOOR | 3 | 0 | 1924 | 817.0 |
| | OWP | OPEN WOOD PORCH W/STEPS | 3 | 0 | 1924 | 370.5 |
| | LOF | LOFT | 3 | 0 | 1924 | 462.0 |
| | CPD | OPEN CARPORT DIRT FLOOR | 3 | 0 | 1924 | 560.0 |
Sketch
Property Image
Land
| 1 | HB | HIGH BLUFF | 4.9500 | 215622.00 | 245.00 | 0.00 | 1.00 | $875,000 | $0 |
| 2 | 55 | TIDES | 0.0000 | 0.00 | 245.00 | 0.00 | 1.00 | $2,450 | $0 |
Roll Value History
| 2026 | N/A | N/A | N/A | N/A | N/A |
| 2025 | $162,210 | $877,450 | $0 | $1,039,660 | $1,039,660 |
| 2024 | $168,681 | $852,450 | $0 | $1,021,131 | $1,021,131 |
| 2023 | $171,189 | $852,450 | $0 | $1,023,639 | $1,023,639 |
| 2022 | $157,284 | $752,450 | $0 | $909,734 | $909,734 |
| 2021 | $134,792 | $527,450 | $0 | $662,242 | $662,242 |
| 2020 | $131,988 | $452,450 | $0 | $584,438 | $584,438 |
| 2019 | $96,854 | $502,450 | $0 | $599,304 | $599,304 |
| 2018 | $97,198 | $352,450 | $0 | $449,648 | $449,648 |
| 2017 | $97,887 | $352,450 | $0 | $450,337 | $450,337 |
| 2016 | $99,267 | $352,450 | $0 | $451,717 | $451,717 |
| 2015 | $83,079 | $352,450 | $0 | $435,529 | $435,529 |
| 2014 | $84,496 | $352,450 | $0 | $436,946 | $436,946 |
| 2013 | $86,493 | $436,049 | $0 | $522,542 | $522,542 |
| 2012 | $87,910 | $510,116 | $0 | $598,026 | $598,026 |
| 2011 | $89,328 | $637,032 | $0 | $726,360 | $726,360 |
| 2010 | $98,338 | $707,541 | $0 | $805,879 | $805,879 |
| 2009 | $100,134 | $834,299 | $0 | $934,433 | $934,433 |
| 2008 | $101,774 | $834,299 | $0 | $936,073 | $936,073 |
| 2007 | $103,378 | $832,584 | $0 | $935,962 | $935,962 |
Deed and Sales History
| 1 | 11/01/1989 | WD | Warranty Deed | CAHILL, MARGARET B | CAHILL, MARGARET B | | | $295,000.00 | 95428 | 89017403 |
| 2 | 11/01/1989 | QCD | Quit Claim Deed | COMBS, DONALD R | CAHILL, MARGARET B | | | $0.00 | 95429 | 89017404 |
| 3 | 01/01/1900 | OTHER | Other - Misc. Documents | Unknown | COMBS, DONALD R | | | $0.00 | 0 | 0 |
Payout Agreement
| No payout information available.. |