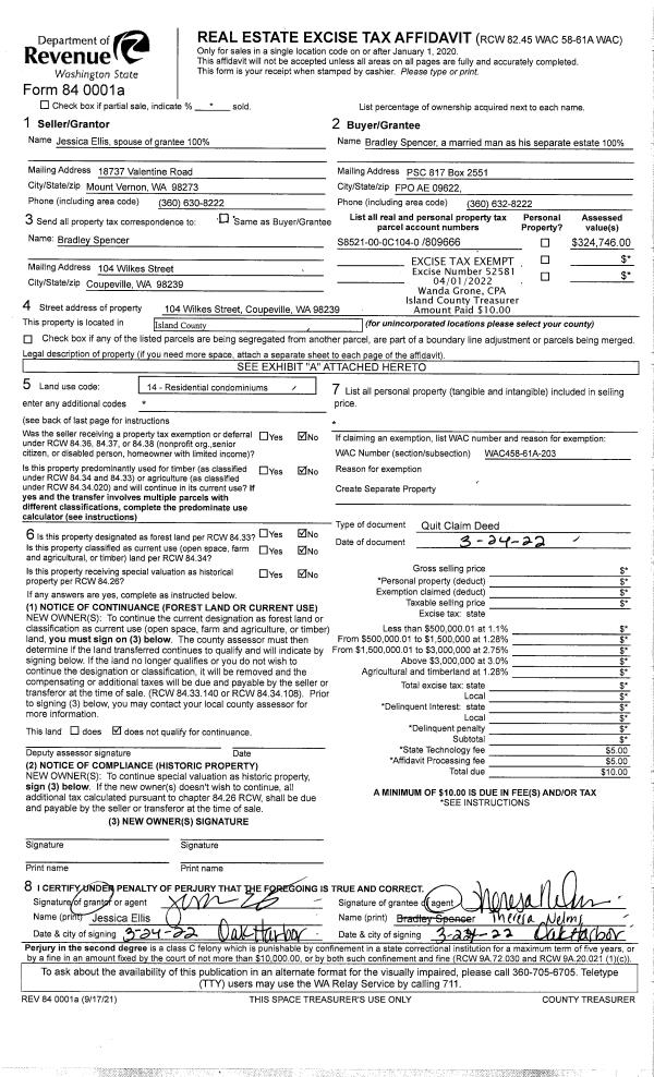
Property
Account |
| Property ID: | 270352 | Abbreviated Legal Description: | HILNDS CAM LOT 15 EX W7'OF N125' |
| Geographic ID: | S7125-00-00015-0 | Agent Code: | |
| Type: | Real | | |
| Tax Area: | 542 - APPRAISER-Stan/Cam Schl Dist, Special Dist, improved, greater than 1 acre | Land Use Code | 11 |
| Open Space: | N | DFL | N |
| Historic Property: | N | Remodel Property: | N |
| Multi-Family Redevelopment: | N | | |
| Township: | | Section: | |
| Range: | |
Location |
| Address: | 3886 SOUTH CAMANO DR CAMANO ISLAND, WA 98282 | Mapsco: | |
| Neighborhood: | 58RscamWF-South Cam | Map ID: | 875 |
| Neighborhood CD: | 58RscamWF |
Owner |
| Name: | ZANDER, JASON L | Owner ID: | 307792 |
| Mailing Address: | MARJORIE K ZANDER 9022 NE 40TH PL YARROW POINT, WA 98004 | % Ownership: | 100.0000000000% |
| | | Exemptions: | |
Taxes and Assessment Details
Values
| (+) Improvement Homesite Value: | + | $0 | |
| (+) Improvement Non-Homesite Value: | + | $663,906 | |
| (+) Land Homesite Value: | + | $0 | |
| (+) Land Non-Homesite Value: | + | $825,000 | |
| (+) Curr Use (HS): | + | $0 | $0 |
| (+) Curr Use (NHS): | + | $0 | $0 |
| | | -------------------------- | |
| (=) Market Value: | = | $1,488,906 | |
| (–) Productivity Loss: | – | $0 | |
| | | -------------------------- | |
| (=) Subtotal: | = | $1,488,906 | |
| (+) Senior Appraised Value: | + | $0 | |
| (+) Non-Senior Appraised Value: | + | $1,488,906 | |
| | | -------------------------- | |
| (=) Total Appraised Value: | = | $1,488,906 | |
| (–) Senior Exemption Loss: | – | $0 | |
| (–) Exemption Loss: | – | $0 | |
| | | -------------------------- | |
| (=) Taxable Value: | = | $1,488,906 | |
Taxing Jurisdiction
| Owner: | ZANDER, JASON L | | |
| % Ownership: | 100.0000000000% | | |
| Total Value: | $1,488,906 | | |
| Tax Area: | 542 - APPRAISER-Stan/Cam Schl Dist, Special Dist, improved, greater than 1 acre |
| CF | Conservation Futures | 0.0316035091 | $1,488,906 | $1,488,906 | $47.05 | | |
| EMS1 | Fire & Rescue Dist #1 Camano GEN (EMS) | 0.3677864386 | $1,488,906 | $1,488,906 | $547.60 | | |
| FIRE1 | Fire & Rescue Dist #1 Camano GEN | 1.2502910536 | $1,488,906 | $1,488,906 | $1,861.57 | | |
| FIRE1BOND | Fire & Rescue Dist #1 Camano BOND | 0.1570001679 | $1,488,906 | $1,488,906 | $233.76 | | |
| CE | County Current Expense | 0.3708482477 | $1,488,906 | $1,488,906 | $552.16 | | |
| CR | County Roads | 0.4584763726 | $1,488,906 | $1,488,906 | $682.63 | | |
| LCIB | Library Sno-Isle BOND (Camano Island) | 0.0396325772 | $1,488,906 | $1,488,906 | $59.01 | | |
| LIB | Library Sno-Isle GEN | 0.3153421757 | $1,488,906 | $1,488,906 | $469.51 | | |
| SCH205_401 | School 205-401 Enrichment | 1.2698420524 | $1,488,906 | $1,488,906 | $1,890.68 | | |
| SCH205BOND | School 205-401 BOND | 0.9396497583 | $1,488,906 | $1,488,906 | $1,399.05 | | |
| ST | State School | 1.3035497053 | $1,488,906 | $1,488,906 | $1,940.86 | | |
| ST2 | State School Part 2 | 0.8169543533 | $1,488,906 | $1,488,906 | $1,216.37 | | |
| | Total Tax Rate: | 7.3209764117 | | | | | |
| | | | | Taxes w/Current Exemptions: | $10,900.25 | | |
| | | | | Taxes w/o Exemptions: | $10,900.25 | | |
Improvement / Building
| Improvement #1: | RESIDENTIAL | State Code: | Y | 2031.0 sqft | Value: | $537,888 |
| Bathrooms: | 2 | Bedrooms: | 2 | | Ceiling: | TONGUE & GROOVE | Exterior Wall/Cover: | PLY/HARDBOARD T-111 | | Floor Covering: | HARDWOOD 100% | Floor Structure: | WOOD W/SUBFLOOR | | Foundation: | CONCRETE | Heating: | WALL HEAT ELECTRIC | | Interior Finish: | DRYWALL PAINT | Plumbing Fixture Cnt: | 10 | | Roof Slope: | 8" IN 12" | Roof Structure/Cover: | BEAM ALUMINUM HEAVY |
|
| | Type | Description | Class CD | Sub Class CD | Year Built | Area |
| | BAS | BASE/MAIN FLOOR | 3 | 0 | 1977 | 1711.0 |
| | CPD | OPEN CARPORT DIRT FLOOR | 3 | 0 | 1977 | 442.0 |
| | DGR | DETACHED GARAGE | 3 | 0 | 1977 | 960.0 |
| | OWP | OPEN WOOD PORCH W/STEPS | 3 | 0 | 1977 | 945.8 |
| | OWR | OPEN WOOD PORCH W/STEPS/ROOF | 3 | 0 | 1977 | 180.0 |
| | OWR | OPEN WOOD PORCH W/STEPS/ROOF | 3 | 0 | 1977 | 144.0 |
| | LOF | LOFT | 3 | 0 | 1977 | 320.0 |
| | DGR | DETACHED GARAGE | 3 | 0 | 1977 | 3400.0 |
| Improvement #2: | RESIDENTIAL | State Code: | Y | 731.2 sqft | Value: | $126,018 |
| Bathrooms: | 1 | Bedrooms: | 0 | | Ceiling: | DRYWALL PAINTED | Exterior Wall/Cover: | WOOD SIDING | | Floor Covering: | SOFTWOOD 100% | Floor Structure: | WOOD W/SUBFLOOR | | Foundation: | WOOD BLOCKS | Heating: | WALL HEAT ELECTRIC | | Interior Finish: | DRYWALL PAINT | Plumbing Fixture Cnt: | 5 | | Roof Slope: | 4" IN 12" | Roof Structure/Cover: | CJ ALUMINIUM HEAVY |
|
| | Type | Description | Class CD | Sub Class CD | Year Built | Area |
| | BAS | BASE/MAIN FLOOR | 3 | 0 | 1950 | 731.2 |
| | OWR | OPEN WOOD PORCH W/STEPS/ROOF | 3 | 0 | 1950 | 302.0 |
Sketch
Property Image
Land
| 1 | HB | HIGH BLUFF | 4.8700 | 212137.20 | 210.00 | 0.00 | 1.00 | $825,000 | $0 |
Roll Value History
| 2026 | N/A | N/A | N/A | N/A | N/A |
| 2025 | $663,906 | $825,000 | $0 | $1,488,906 | $1,488,906 |
| 2024 | $672,498 | $800,000 | $0 | $1,472,498 | $1,472,498 |
| 2023 | $681,094 | $800,000 | $0 | $1,481,094 | $1,481,094 |
| 2022 | $624,525 | $700,000 | $0 | $1,324,525 | $1,324,525 |
| 2021 | $512,374 | $525,000 | $0 | $1,037,374 | $1,037,374 |
| 2020 | $500,299 | $450,000 | $0 | $950,299 | $950,299 |
| 2019 | $378,320 | $500,000 | $0 | $878,320 | $878,320 |
| 2018 | $379,501 | $300,000 | $0 | $679,501 | $679,501 |
| 2017 | $378,777 | $300,000 | $0 | $678,777 | $678,777 |
| 2016 | $383,461 | $300,000 | $0 | $683,461 | $683,461 |
| 2015 | $359,825 | $300,000 | $0 | $659,825 | $659,825 |
| 2014 | $363,191 | $300,000 | $0 | $663,191 | $663,191 |
| 2013 | $366,559 | $363,708 | $0 | $730,267 | $730,267 |
| 2012 | $369,922 | $444,963 | $0 | $814,885 | $814,885 |
| 2011 | $372,445 | $556,204 | $0 | $928,649 | $928,649 |
| 2010 | $380,919 | $618,005 | $0 | $998,924 | $998,924 |
| 2009 | $314,639 | $729,107 | $0 | $1,043,746 | $1,043,746 |
| 2008 | $319,445 | $729,107 | $0 | $1,048,552 | $1,048,552 |
| 2007 | $324,253 | $729,107 | $0 | $1,053,360 | $1,053,360 |
Deed and Sales History
| 1 | 02/22/2023 | BARGSLD | Bargain And Sale Deed | OGLAND, ODDVAR | ZANDER, JASON L | | | $1,500,000.00 | 55975 | 4557222 |
| 2 | 02/14/2008 | PRD | Personal Representatives Deed | OGLAND, ODDVAR | OGLAND, ODDVAR | | | $0.00 | 80487 | 4222930 |
| 3 | 07/01/2001 | WD | Warranty Deed | OLSON, BYRON F | OGLAND, ODDVAR | | | $460,000.00 | 12795 | 20038166 |
| 4 | 01/01/1900 | OTHER | Other - Misc. Documents | Unknown | OLSON, BYRON F | | | $0.00 | 0 | 0 |
Payout Agreement
| No payout information available.. |