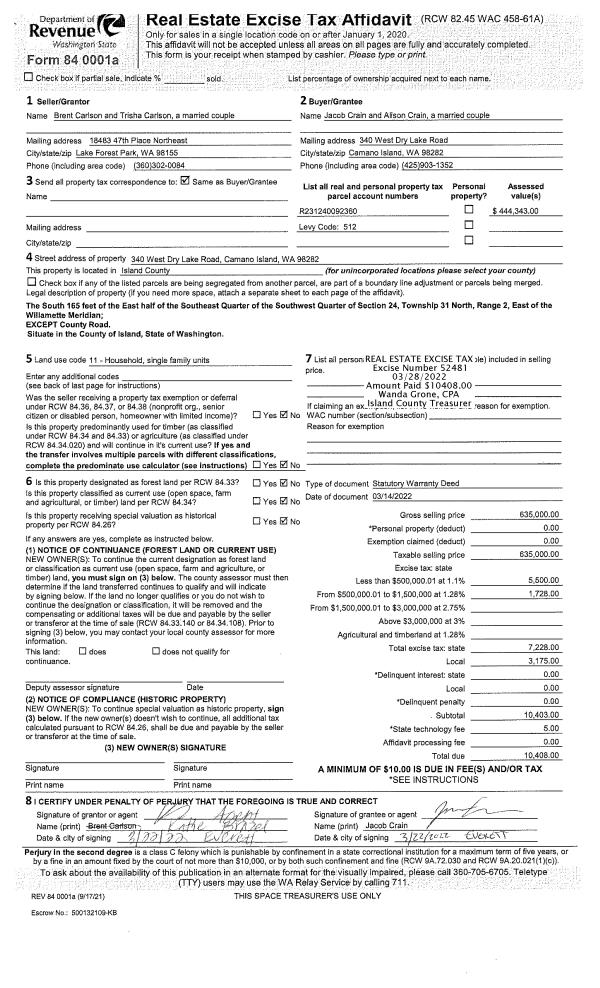
Property
Account |
| Property ID: | 270851 | Abbreviated Legal Description: | HIGHLANDS CAMANO N/2 S/2 OF LOT 40 INCL 15' VAC ST ADJ TO WLN |
| Geographic ID: | S7125-00-00040-3 | Agent Code: | |
| Type: | Real | | |
| Tax Area: | 542 - APPRAISER-Stan/Cam Schl Dist, Special Dist, improved, greater than 1 acre | Land Use Code | 11 |
| Open Space: | N | DFL | N |
| Historic Property: | N | Remodel Property: | N |
| Multi-Family Redevelopment: | N | | |
| Township: | | Section: | |
| Range: | |
Location |
| Address: | 4199 SOUTH CAMANO DR CAMANO ISLAND, WA 98282 | Mapsco: | |
| Neighborhood: | 58SofTamarackS | Map ID: | 884 |
| Neighborhood CD: | 58RstamS |
Owner |
| Name: | DAUGHERTY JR JTWROS, JAMES R | Owner ID: | 257715 |
| Mailing Address: | RUBY J COGGINS JTWROS 4199 S CAMANO DR CAMANO ISLAND, WA 98282 | % Ownership: | 100.0000000000% |
| | | Exemptions: | |
Taxes and Assessment Details
Values
| (+) Improvement Homesite Value: | + | $0 | |
| (+) Improvement Non-Homesite Value: | + | $333,694 | |
| (+) Land Homesite Value: | + | $0 | |
| (+) Land Non-Homesite Value: | + | $300,000 | |
| (+) Curr Use (HS): | + | $0 | $0 |
| (+) Curr Use (NHS): | + | $0 | $0 |
| | | -------------------------- | |
| (=) Market Value: | = | $633,694 | |
| (–) Productivity Loss: | – | $0 | |
| | | -------------------------- | |
| (=) Subtotal: | = | $633,694 | |
| (+) Senior Appraised Value: | + | $0 | |
| (+) Non-Senior Appraised Value: | + | $633,694 | |
| | | -------------------------- | |
| (=) Total Appraised Value: | = | $633,694 | |
| (–) Senior Exemption Loss: | – | $0 | |
| (–) Exemption Loss: | – | $0 | |
| | | -------------------------- | |
| (=) Taxable Value: | = | $633,694 | |
Taxing Jurisdiction
| Owner: | DAUGHERTY JR JTWROS, JAMES R | | |
| % Ownership: | 100.0000000000% | | |
| Total Value: | $633,694 | | |
| Tax Area: | 542 - APPRAISER-Stan/Cam Schl Dist, Special Dist, improved, greater than 1 acre |
| CF | Conservation Futures | 0.0316035091 | $633,694 | $633,694 | $20.03 | | |
| EMS1 | Fire & Rescue Dist #1 Camano GEN (EMS) | 0.3677864386 | $633,694 | $633,694 | $233.06 | | |
| FIRE1 | Fire & Rescue Dist #1 Camano GEN | 1.2502910536 | $633,694 | $633,694 | $792.30 | | |
| FIRE1BOND | Fire & Rescue Dist #1 Camano BOND | 0.1570001679 | $633,694 | $633,694 | $99.49 | | |
| CE | County Current Expense | 0.3708482477 | $633,694 | $633,694 | $235.00 | | |
| CR | County Roads | 0.4584763726 | $633,694 | $633,694 | $290.53 | | |
| LCIB | Library Sno-Isle BOND (Camano Island) | 0.0396325772 | $633,694 | $633,694 | $25.11 | | |
| LIB | Library Sno-Isle GEN | 0.3153421757 | $633,694 | $633,694 | $199.83 | | |
| SCH205_401 | School 205-401 Enrichment | 1.2698420524 | $633,694 | $633,694 | $804.69 | | |
| SCH205BOND | School 205-401 BOND | 0.9396497583 | $633,694 | $633,694 | $595.45 | | |
| ST | State School | 1.3035497053 | $633,694 | $633,694 | $826.05 | | |
| ST2 | State School Part 2 | 0.8169543533 | $633,694 | $633,694 | $517.70 | | |
| | Total Tax Rate: | 7.3209764117 | | | | | |
| | | | | Taxes w/Current Exemptions: | $4,639.24 | | |
| | | | | Taxes w/o Exemptions: | $4,639.24 | | |
Improvement / Building
| Improvement #1: | RESIDENTIAL | State Code: | Y | 2238.0 sqft | Value: | $333,694 |
| Bathrooms: | 3 | Bedrooms: | 3 | | Ceiling: | DRYWALL PAINTED | Cooling: | HEAT PUMP/CONV/V | | Exterior Wall/Cover: | WOOD SIDING | Floor Covering: | CARPET/VINYL 80-20 | | Floor Structure: | WOOD W/SUBFLOOR | Foundation: | CONCRETE | | Interior Finish: | DRYWALL PAINT | Plumbing Fixture Cnt: | 12 | | Roof Slope: | 5" IN 12" | Roof Structure/Cover: | CJ ASPHALT |
|
| | Type | Description | Class CD | Sub Class CD | Year Built | Area |
| | BAS | BASE/MAIN FLOOR | 3 | 0 | 1991 | 1134.0 |
| | AGR | ATTACHED GARAGE | 3 | 0 | 1991 | 616.0 |
| | OWP | OPEN WOOD PORCH W/STEPS | 3 | 0 | 1991 | 462.0 |
| | OWC | OPEN WOOD PORCH W/STEPS/ROOF/C | 3 | 0 | 1991 | 45.5 |
| | DWN | DOWNSTAIRS LIVING AREA | 3 | 0 | 1991 | 1104.0 |
| | DGR | DETACHED GARAGE | 3 | 0 | 1991 | 396.0 |
Sketch
Property Image
Land
| 1 | 18 | AC (02.01-03.00) | 2.3400 | 101930.40 | 0.00 | 0.00 | 1.00 | $300,000 | $0 |
Roll Value History
| 2026 | N/A | N/A | N/A | N/A | N/A |
| 2025 | $333,694 | $300,000 | $0 | $633,694 | $633,694 |
| 2024 | $338,071 | $280,000 | $0 | $618,071 | $618,071 |
| 2023 | $342,448 | $260,000 | $0 | $602,448 | $602,448 |
| 2022 | $314,048 | $220,000 | $0 | $534,048 | $534,048 |
| 2021 | $270,509 | $180,000 | $0 | $450,509 | $450,509 |
| 2020 | $264,032 | $150,000 | $0 | $414,032 | $414,032 |
| 2019 | $202,774 | $200,000 | $0 | $402,774 | $402,774 |
| 2018 | $203,413 | $175,000 | $0 | $378,413 | $378,413 |
| 2017 | $204,694 | $135,000 | $0 | $339,694 | $339,694 |
| 2016 | $207,251 | $100,000 | $0 | $307,251 | $307,251 |
| 2015 | $190,050 | $104,000 | $0 | $294,050 | $294,050 |
| 2014 | $192,378 | $104,000 | $0 | $296,378 | $296,378 |
| 2013 | $194,708 | $104,000 | $0 | $298,708 | $298,708 |
| 2012 | $197,035 | $104,000 | $0 | $301,035 | $301,035 |
| 2011 | $199,363 | $130,000 | $0 | $329,363 | $329,363 |
| 2010 | $207,608 | $130,000 | $0 | $337,608 | $337,608 |
| 2009 | $212,919 | $150,000 | $0 | $362,919 | $362,919 |
| 2008 | $213,960 | $155,000 | $0 | $368,960 | $368,960 |
| 2007 | $217,344 | $125,000 | $0 | $342,344 | $342,344 |
Deed and Sales History
| 1 | 05/17/2012 | ESTSEPPROP | Establish Separate Property | DAUGHERTY JR JTWROS, JAMES R | DAUGHERTY JR JTWROS, JAMES R | | | $0.00 | 7759 | 4315975 |
| 2 | 05/17/2012 | WD | Warranty Deed | MANGUM, CHARLES H & GWEN C | DAUGHERTY JR JTWROS, JAMES R | | | $318,000.00 | 7758 | 4315974 |
| 3 | 03/01/1991 | WD | Warranty Deed | BROWN, CARL F | MANGUM, CHARLES H | | | $45,000.00 | 11436 | 91006139 |
| 4 | 09/01/1978 | OTHER | Other - Misc. Documents | Unknown | BROWN, CARL F | | | $68,800.00 | 85159 | 341586 |
Payout Agreement
| No payout information available.. |