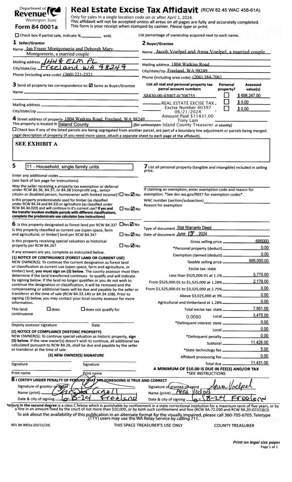
Property
Account |
| Property ID: | 270904 | Abbreviated Legal Description: | HIGHLD TR LOT 3 |
| Geographic ID: | S7130-00-00003-0 | Agent Code: | |
| Type: | Real | | |
| Tax Area: | 110 - APPRAISER-OH Schl Dist, outside OH, improved & 1 acre or less | Land Use Code | 11 |
| Open Space: | N | DFL | N |
| Historic Property: | N | Remodel Property: | N |
| Multi-Family Redevelopment: | N | | |
| Township: | | Section: | |
| Range: | |
Location |
| Address: | 977 CAPITAL ST OAK HARBOR, WA 98277 | Mapsco: | |
| Neighborhood: | Cycle 1 | Map ID: | 119 |
| Neighborhood CD: | 1 |
Owner |
| Name: | MONTANA, RICHARD T | Owner ID: | 77042 |
| Mailing Address: | 977 CAPITAL ST OAK HARBOR, WA 98277-8107 | % Ownership: | 100.0000000000% |
| | | Exemptions: | |
Taxes and Assessment Details
Values
| (+) Improvement Homesite Value: | + | $0 | |
| (+) Improvement Non-Homesite Value: | + | $332,946 | |
| (+) Land Homesite Value: | + | $0 | |
| (+) Land Non-Homesite Value: | + | $180,000 | |
| (+) Curr Use (HS): | + | $0 | $0 |
| (+) Curr Use (NHS): | + | $0 | $0 |
| | | -------------------------- | |
| (=) Market Value: | = | $512,946 | |
| (–) Productivity Loss: | – | $0 | |
| | | -------------------------- | |
| (=) Subtotal: | = | $512,946 | |
| (+) Senior Appraised Value: | + | $0 | |
| (+) Non-Senior Appraised Value: | + | $512,946 | |
| | | -------------------------- | |
| (=) Total Appraised Value: | = | $512,946 | |
| (–) Senior Exemption Loss: | – | $0 | |
| (–) Exemption Loss: | – | $0 | |
| | | -------------------------- | |
| (=) Taxable Value: | = | $512,946 | |
Taxing Jurisdiction
| Owner: | MONTANA, RICHARD T | | |
| % Ownership: | 100.0000000000% | | |
| Total Value: | $512,946 | | |
| Tax Area: | 110 - APPRAISER-OH Schl Dist, outside OH, improved & 1 acre or less |
| CF | Conservation Futures | 0.0316035091 | $512,946 | $512,946 | $16.21 | | |
| CEM1 | Cemetery #1 | 0.0040320932 | $512,946 | $512,946 | $2.07 | | |
| FIRE2 | Fire & Rescue Dist #2 N Whidbey GEN | 0.5475949600 | $512,946 | $512,946 | $280.89 | | |
| HOBOND | Hospital BOND | 0.1910887512 | $512,946 | $512,946 | $98.02 | | |
| HOGEN | Hospital GEN | 0.3902502903 | $512,946 | $512,946 | $200.18 | | |
| CE | County Current Expense | 0.3708482477 | $512,946 | $512,946 | $190.23 | | |
| CR | County Roads | 0.4584763726 | $512,946 | $512,946 | $235.17 | | |
| ISLANDEMS | Hospital GEN (EMS) | 0.5000000000 | $512,946 | $512,946 | $256.47 | | |
| LIB | Library Sno-Isle GEN | 0.3153421757 | $512,946 | $512,946 | $161.75 | | |
| NWHIDPRMT | P & R N Whidbey GEN | 0.2004466701 | $512,946 | $512,946 | $102.82 | | |
| SCH201MO | School 201 Enrichment | 1.8559231640 | $512,946 | $512,946 | $951.99 | | |
| ST | State School | 1.3035497053 | $512,946 | $512,946 | $668.65 | | |
| ST2 | State School Part 2 | 0.8169543533 | $512,946 | $512,946 | $419.05 | | |
| | Total Tax Rate: | 6.9861102925 | | | | | |
| | | | | Taxes w/Current Exemptions: | $3,583.50 | | |
| | | | | Taxes w/o Exemptions: | $3,583.50 | | |
Improvement / Building
| Improvement #1: | RESIDENTIAL | State Code: | Y | 2016.0 sqft | Value: | $332,946 |
| Bathrooms: | 2.5 | Bedrooms: | 3 | | Ceiling: | DRY WALL SPRAYED | Exterior Wall/Cover: | WOOD SIDING | | Floor Covering: | CARPET/VINYL 80-20 | Floor Structure: | WOOD W/SUBFLOOR | | Foundation: | CONCRETE | Heating: | BASEBOARD ELECTRIC | | Interior Finish: | DRYWALL PAINT | Plumbing Fixture Cnt: | 12 | | Roof Slope: | 4" IN 12" | Roof Structure/Cover: | STEEL TERNE |
|
| | Type | Description | Class CD | Sub Class CD | Year Built | Area |
| | BAS | BASE/MAIN FLOOR | 3 | 0 | 1977 | 1349.0 |
| | DWN | DOWNSTAIRS LIVING AREA | 3 | 0 | 1977 | 667.0 |
| | BIG | BUILT IN GARAGE | 3 | 0 | 1977 | 638.0 |
| | OWP | OPEN WOOD PORCH W/STEPS | 3 | 0 | 1977 | 168.0 |
| | UTY | STORAGE/UTILITY | 3 | 0 | 1977 | 864.0 |
Sketch
Property Image
Land
| 1 | 15 | SQ (12001-21780) | 0.0000 | 0.00 | 0.00 | 0.00 | 1.00 | $180,000 | $0 |
Roll Value History
| 2026 | N/A | N/A | N/A | N/A | N/A |
| 2025 | $332,946 | $180,000 | $0 | $512,946 | $512,946 |
| 2024 | $344,008 | $180,000 | $0 | $524,008 | $524,008 |
| 2023 | $303,801 | $180,000 | $0 | $483,801 | $483,801 |
| 2022 | $279,080 | $180,000 | $0 | $459,080 | $459,080 |
| 2021 | $265,189 | $120,000 | $0 | $385,189 | $385,189 |
| 2020 | $258,301 | $100,000 | $0 | $358,301 | $358,301 |
| 2019 | $184,159 | $140,000 | $0 | $324,159 | $324,159 |
| 2018 | $184,787 | $120,000 | $0 | $304,787 | $304,787 |
| 2017 | $165,370 | $120,000 | $0 | $285,370 | $285,370 |
| 2016 | $167,605 | $90,000 | $0 | $257,605 | $257,605 |
| 2015 | $169,841 | $70,000 | $0 | $239,841 | $239,841 |
| 2014 | $172,078 | $60,000 | $0 | $232,078 | $232,078 |
| 2013 | $174,312 | $55,000 | $0 | $229,312 | $229,312 |
| 2012 | $176,547 | $55,250 | $0 | $231,797 | $231,797 |
| 2011 | $180,939 | $65,000 | $0 | $245,939 | $245,939 |
| 2010 | $190,182 | $65,000 | $0 | $255,182 | $255,182 |
| 2009 | $197,873 | $75,000 | $0 | $272,873 | $272,873 |
| 2008 | $200,615 | $125,280 | $0 | $325,895 | $325,895 |
| 2007 | $203,344 | $109,480 | $0 | $312,824 | $312,824 |
Deed and Sales History
| 1 | 06/01/1984 | QCD | Quit Claim Deed | KOSTELL, PAUL | MONTANA, RICHARD T | | | $18,000.00 | 60666 | 426090 |
| 2 | 01/01/1900 | OTHER | Other - Misc. Documents | Unknown | KOSTELL, PAUL | | | $0.00 | 0 | 0 |
Payout Agreement
| No payout information available.. |