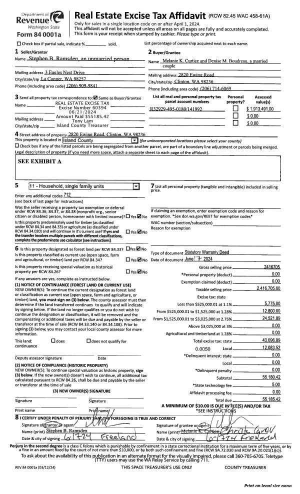
Property
Account |
| Property ID: | 271002 | Abbreviated Legal Description: | HIGHLD TR LOT 13 |
| Geographic ID: | S7130-00-00013-0 | Agent Code: | |
| Type: | Real | | |
| Tax Area: | 110 - APPRAISER-OH Schl Dist, outside OH, improved & 1 acre or less | Land Use Code | 11 |
| Open Space: | N | DFL | N |
| Historic Property: | N | Remodel Property: | N |
| Multi-Family Redevelopment: | N | | |
| Township: | | Section: | |
| Range: | |
Location |
| Address: | 960 CAPITAL ST OAK HARBOR, WA 98277 | Mapsco: | |
| Neighborhood: | Cycle 1 | Map ID: | 119 |
| Neighborhood CD: | 1 |
Owner |
| Name: | WILLIAMSON, MICHAEL S | Owner ID: | 257628 |
| Mailing Address: | KASEY J WILLIAMSON 960 CAPITAL ST OAK HARBOR, WA 98277-8107 | % Ownership: | 100.0000000000% |
| | | Exemptions: | |
Taxes and Assessment Details
Values
| (+) Improvement Homesite Value: | + | $0 | |
| (+) Improvement Non-Homesite Value: | + | $293,708 | |
| (+) Land Homesite Value: | + | $0 | |
| (+) Land Non-Homesite Value: | + | $180,000 | |
| (+) Curr Use (HS): | + | $0 | $0 |
| (+) Curr Use (NHS): | + | $0 | $0 |
| | | -------------------------- | |
| (=) Market Value: | = | $473,708 | |
| (–) Productivity Loss: | – | $0 | |
| | | -------------------------- | |
| (=) Subtotal: | = | $473,708 | |
| (+) Senior Appraised Value: | + | $0 | |
| (+) Non-Senior Appraised Value: | + | $473,708 | |
| | | -------------------------- | |
| (=) Total Appraised Value: | = | $473,708 | |
| (–) Senior Exemption Loss: | – | $0 | |
| (–) Exemption Loss: | – | $0 | |
| | | -------------------------- | |
| (=) Taxable Value: | = | $473,708 | |
Taxing Jurisdiction
| Owner: | WILLIAMSON, MICHAEL S | | |
| % Ownership: | 100.0000000000% | | |
| Total Value: | $473,708 | | |
| Tax Area: | 110 - APPRAISER-OH Schl Dist, outside OH, improved & 1 acre or less |
| CF | Conservation Futures | 0.0316035091 | $473,708 | $473,708 | $14.97 | | |
| CEM1 | Cemetery #1 | 0.0040320932 | $473,708 | $473,708 | $1.91 | | |
| FIRE2 | Fire & Rescue Dist #2 N Whidbey GEN | 0.5475949600 | $473,708 | $473,708 | $259.40 | | |
| HOBOND | Hospital BOND | 0.1910887512 | $473,708 | $473,708 | $90.52 | | |
| HOGEN | Hospital GEN | 0.3902502903 | $473,708 | $473,708 | $184.86 | | |
| CE | County Current Expense | 0.3708482477 | $473,708 | $473,708 | $175.67 | | |
| CR | County Roads | 0.4584763726 | $473,708 | $473,708 | $217.18 | | |
| ISLANDEMS | Hospital GEN (EMS) | 0.5000000000 | $473,708 | $473,708 | $236.85 | | |
| LIB | Library Sno-Isle GEN | 0.3153421757 | $473,708 | $473,708 | $149.38 | | |
| NWHIDPRMT | P & R N Whidbey GEN | 0.2004466701 | $473,708 | $473,708 | $94.95 | | |
| SCH201MO | School 201 Enrichment | 1.8559231640 | $473,708 | $473,708 | $879.17 | | |
| ST | State School | 1.3035497053 | $473,708 | $473,708 | $617.50 | | |
| ST2 | State School Part 2 | 0.8169543533 | $473,708 | $473,708 | $387.00 | | |
| | Total Tax Rate: | 6.9861102925 | | | | | |
| | | | | Taxes w/Current Exemptions: | $3,309.36 | | |
| | | | | Taxes w/o Exemptions: | $3,309.36 | | |
Improvement / Building
| Improvement #1: | RESIDENTIAL | State Code: | Y | 2338.0 sqft | Value: | $293,708 |
| Bathrooms: | 3 | Bedrooms: | 4 | | Ceiling: | DRY WALL SPRAYED | Exterior Wall/Cover: | WOOD SIDING | | Floor Covering: | CARPET/VINYL 80-20 | Floor Structure: | WOOD W/SUBFLOOR | | Foundation: | CONCRETE | Heating: | BASEBOARD ELECTRIC | | Interior Finish: | DRYWALL PAINT | Plumbing Fixture Cnt: | 11 | | Roof Slope: | 3" IN 12" | Roof Structure/Cover: | CJ ASPHALT |
|
| | Type | Description | Class CD | Sub Class CD | Year Built | Area |
| | BAS | BASE/MAIN FLOOR | 3 | 0 | 1976 | 1272.0 |
| | OP4 | OPEN PORCH W/CEILING-ROOF | 3 | 0 | 1976 | 96.0 |
| | AGR | ATTACHED GARAGE | 3 | 0 | 1976 | 441.0 |
| | UPS | UPPER STORY | 3 | 0 | 1976 | 1066.0 |
| | OWP | OPEN WOOD PORCH W/STEPS | 3 | 0 | 1976 | 104.0 |
| | OWC | OPEN WOOD PORCH W/STEPS/ROOF/C | 3 | 0 | 1976 | 66.0 |
Sketch
Property Image
Land
| 1 | 15 | SQ (12001-21780) | 0.0000 | 0.00 | 0.00 | 0.00 | 1.00 | $180,000 | $0 |
Roll Value History
| 2026 | N/A | N/A | N/A | N/A | N/A |
| 2025 | $293,708 | $180,000 | $0 | $473,708 | $473,708 |
| 2024 | $304,166 | $180,000 | $0 | $484,166 | $484,166 |
| 2023 | $268,266 | $180,000 | $0 | $448,266 | $448,266 |
| 2022 | $246,540 | $180,000 | $0 | $426,540 | $426,540 |
| 2021 | $217,520 | $120,000 | $0 | $337,520 | $337,520 |
| 2020 | $212,760 | $100,000 | $0 | $312,760 | $312,760 |
| 2019 | $164,663 | $140,000 | $0 | $304,663 | $304,663 |
| 2018 | $165,241 | $120,000 | $0 | $285,241 | $285,241 |
| 2017 | $165,442 | $120,000 | $0 | $285,442 | $285,442 |
| 2016 | $167,833 | $90,000 | $0 | $257,833 | $257,833 |
| 2015 | $170,222 | $70,000 | $0 | $240,222 | $240,222 |
| 2014 | $172,610 | $60,000 | $0 | $232,610 | $232,610 |
| 2013 | $174,999 | $55,000 | $0 | $229,999 | $229,999 |
| 2012 | $177,388 | $55,250 | $0 | $232,638 | $232,638 |
| 2011 | $194,357 | $65,000 | $0 | $259,357 | $259,357 |
| 2010 | $205,439 | $65,000 | $0 | $270,439 | $270,439 |
| 2009 | $214,237 | $75,000 | $0 | $289,237 | $289,237 |
| 2008 | $217,096 | $137,808 | $0 | $354,904 | $354,904 |
| 2007 | $219,933 | $137,808 | $0 | $357,741 | $357,741 |
Deed and Sales History
| 1 | 05/01/2012 | WD | Warranty Deed | DARCY, MICHAEL R | WILLIAMSON, MICHAEL S | | | $260,000.00 | 7643 | 4315239 |
| 2 | 05/27/2004 | WD | Warranty Deed | WILTON, DAVID S | DARCY, MICHAEL R | | | $217,900.00 | 42314 | 4102184 |
| 3 | 11/01/1995 | WD | Warranty Deed | GERAGOTELIS, JOHN M | WILTON, DAVID S | | | $167,000.00 | 53980 | 95018315 |
| 4 | 10/01/1990 | WD | Warranty Deed | Unknown | GERAGOTELIS, JOHN M | | | $145,000.00 | 5697 | 90019204 |
Payout Agreement
| No payout information available.. |