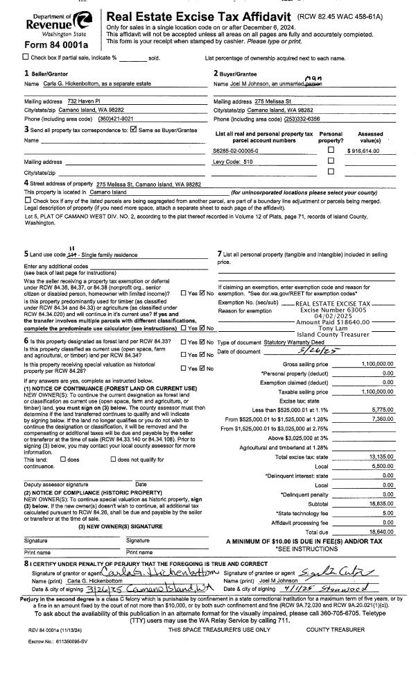
Property
Account |
| Property ID: | 271538 | Abbreviated Legal Description: | HILLCREST HSTD TR LOT 12 & ADJ 29.5'OF VAC OLYMPIC AVE TGW EZ AF#87008212-13 |
| Geographic ID: | S7135-00-00012-1 | Agent Code: | |
| Type: | Real | | |
| Tax Area: | 312 - APPRAISER-Cpvl Schl Dist, outside Cpvl, improved, greater than 1 acre | Land Use Code | 11 |
| Open Space: | N | DFL | N |
| Historic Property: | N | Remodel Property: | N |
| Multi-Family Redevelopment: | N | | |
| Township: | | Section: | |
| Range: | |
Location |
| Address: | 263 PARKER WOODS LN COUPEVILLE, WA 98239 | Mapsco: | |
| Neighborhood: | Cycle 2 | Map ID: | 183 |
| Neighborhood CD: | 2 |
Owner |
| Name: | HILKEY, EDWIN L | Owner ID: | 10213 |
| Mailing Address: | MEG E HILKEY PO BOX 1682 COUPEVILLE, WA 98239-1682 | % Ownership: | 100.0000000000% |
| | | Exemptions: | |
Taxes and Assessment Details
Values
| (+) Improvement Homesite Value: | + | $0 | |
| (+) Improvement Non-Homesite Value: | + | $426,468 | |
| (+) Land Homesite Value: | + | $0 | |
| (+) Land Non-Homesite Value: | + | $340,000 | |
| (+) Curr Use (HS): | + | $0 | $0 |
| (+) Curr Use (NHS): | + | $0 | $0 |
| | | -------------------------- | |
| (=) Market Value: | = | $766,468 | |
| (–) Productivity Loss: | – | $0 | |
| | | -------------------------- | |
| (=) Subtotal: | = | $766,468 | |
| (+) Senior Appraised Value: | + | $0 | |
| (+) Non-Senior Appraised Value: | + | $766,468 | |
| | | -------------------------- | |
| (=) Total Appraised Value: | = | $766,468 | |
| (–) Senior Exemption Loss: | – | $0 | |
| (–) Exemption Loss: | – | $0 | |
| | | -------------------------- | |
| (=) Taxable Value: | = | $766,468 | |
Taxing Jurisdiction
| Owner: | HILKEY, EDWIN L | | |
| % Ownership: | 100.0000000000% | | |
| Total Value: | $766,468 | | |
| Tax Area: | 312 - APPRAISER-Cpvl Schl Dist, outside Cpvl, improved, greater than 1 acre |
| CF | Conservation Futures | 0.0316035091 | $766,468 | $766,468 | $24.22 | | |
| CEM2 | Cemetery #2 | 0.0095056933 | $766,468 | $766,468 | $7.29 | | |
| FIRE5 | Fire & Rescue Dist #5 C Whidbey GEN | 1.2008080668 | $766,468 | $766,468 | $920.38 | | |
| FIRE5BOND | Fire & Rescue Dist #5 C Whidbey BOND | 0.1400090713 | $766,468 | $766,468 | $107.31 | | |
| HOBOND | Hospital BOND | 0.1910887512 | $766,468 | $766,468 | $146.46 | | |
| HOGEN | Hospital GEN | 0.3902502903 | $766,468 | $766,468 | $299.11 | | |
| CE | County Current Expense | 0.3708482477 | $766,468 | $766,468 | $284.24 | | |
| CR | County Roads | 0.4584763726 | $766,468 | $766,468 | $351.41 | | |
| ISLANDEMS | Hospital GEN (EMS) | 0.5000000000 | $766,468 | $766,468 | $383.23 | | |
| LIB | Library Sno-Isle GEN | 0.3153421757 | $766,468 | $766,468 | $241.70 | | |
| LIBCAP | Library Sno-Isle BOND (Cap Fac Imp Area) | 0.0543427938 | $766,468 | $766,468 | $41.65 | | |
| POCOUP | Port of Coupeville GEN | 0.1093371703 | $766,468 | $766,468 | $83.80 | | |
| POCOUPIDD | Port of Coupeville IDD | 0.3409740022 | $766,468 | $766,468 | $261.35 | | |
| COUPSDTECH | School 204 CP (TECH) | 0.7545480007 | $766,468 | $766,468 | $578.34 | | |
| SCH204MO | School 204 Enrichment | 0.6716186034 | $766,468 | $766,468 | $514.77 | | |
| ST | State School | 1.3035497053 | $766,468 | $766,468 | $999.13 | | |
| ST2 | State School Part 2 | 0.8169543533 | $766,468 | $766,468 | $626.17 | | |
| | Total Tax Rate: | 7.6592568070 | | | | | |
| | | | | Taxes w/Current Exemptions: | $5,870.56 | | |
| | | | | Taxes w/o Exemptions: | $5,870.56 | | |
Improvement / Building
| Improvement #1: | RESIDENTIAL | State Code: | Y | 3013.3 sqft | Value: | $426,468 |
| Bathrooms: | 2.5 | Bedrooms: | 5 | | Ceiling: | DRYWALL PAINTED | Exterior Wall/Cover: | WOOD SIDING | | Floor Covering: | CARPET/VINYL 80-20 | Floor Structure: | WOOD W/SUBFLOOR | | Foundation: | CONCRETE | Heating: | FHA GAS | | Interior Finish: | DRYWALL PAINT | Plumbing Fixture Cnt: | 11 | | Roof Slope: | 3" IN 12" | Roof Structure/Cover: | CJ ALUMINIUM HEAVY |
|
| | Type | Description | Class CD | Sub Class CD | Year Built | Area |
| | BAS | BASE/MAIN FLOOR | 3 | 0 | 2002 | 1574.7 |
| | UPS | UPPER STORY | 3 | 0 | 2002 | 1438.6 |
| | OWR | OPEN WOOD PORCH W/STEPS/ROOF | 3 | 0 | 2002 | 1183.3 |
| | OWC | OPEN WOOD PORCH W/STEPS/ROOF/C | 3 | 0 | 2002 | 48.0 |
| | oPOL | POLE BARN | 3 | 0 | 2002 | 1664.0 |
Sketch
| No sketches available for this property. |
Property Image
Land
| 1 | 32 | AC (03.01-09.99) | 3.7300 | 0.00 | 0.00 | 0.00 | 1.00 | $340,000 | $0 |
Roll Value History
| 2026 | N/A | N/A | N/A | N/A | N/A |
| 2025 | $426,468 | $340,000 | $0 | $766,468 | $766,468 |
| 2024 | $404,873 | $300,000 | $0 | $704,873 | $704,873 |
| 2023 | $409,485 | $280,000 | $0 | $689,485 | $689,485 |
| 2022 | $377,804 | $260,000 | $0 | $637,804 | $637,804 |
| 2021 | $336,073 | $180,000 | $0 | $516,073 | $516,073 |
| 2020 | $329,152 | $160,000 | $0 | $489,152 | $489,152 |
| 2019 | $268,718 | $210,000 | $0 | $478,718 | $478,718 |
| 2018 | $268,140 | $180,000 | $0 | $448,140 | $448,140 |
| 2017 | $269,506 | $130,000 | $0 | $399,506 | $399,506 |
| 2016 | $272,357 | $120,000 | $0 | $392,357 | $392,357 |
| 2015 | $275,207 | $100,710 | $0 | $375,917 | $375,917 |
| 2014 | $278,059 | $100,710 | $0 | $378,769 | $378,769 |
| 2013 | $280,910 | $100,710 | $0 | $381,620 | $381,620 |
| 2012 | $297,983 | $100,710 | $0 | $398,693 | $398,693 |
| 2011 | $300,919 | $111,900 | $0 | $412,819 | $412,819 |
| 2010 | $311,317 | $111,900 | $0 | $423,217 | $423,217 |
| 2009 | $320,811 | $111,900 | $0 | $432,711 | $432,711 |
| 2008 | $325,296 | $143,605 | $0 | $468,901 | $468,901 |
| 2007 | $332,404 | $110,035 | $0 | $442,439 | $442,439 |
Deed and Sales History
| 1 | 09/21/2001 | QCD | Quit Claim Deed | HILKEY, EDWIN L | HILKEY, EDWIN L | | | $0.00 | 13680 | 20043797 |
| 2 | 06/17/1998 | WD | Warranty Deed | HARRIS, THOMAS R | HILKEY, EDWIN L | | | $32,500.00 | 82549 | 98013284 |
| 3 | 01/01/1900 | OTHER | Other - Misc. Documents | Unknown | HILKEY, EDWIN L | | | $0.00 | 82549 | 98013284 |
| 4 | 01/01/1900 | OTHER | Other - Misc. Documents | HILKEY, EDWIN L | HARRIS, THOMAS R | | | $0.00 | 0 | 0 |
Payout Agreement
| No payout information available.. |