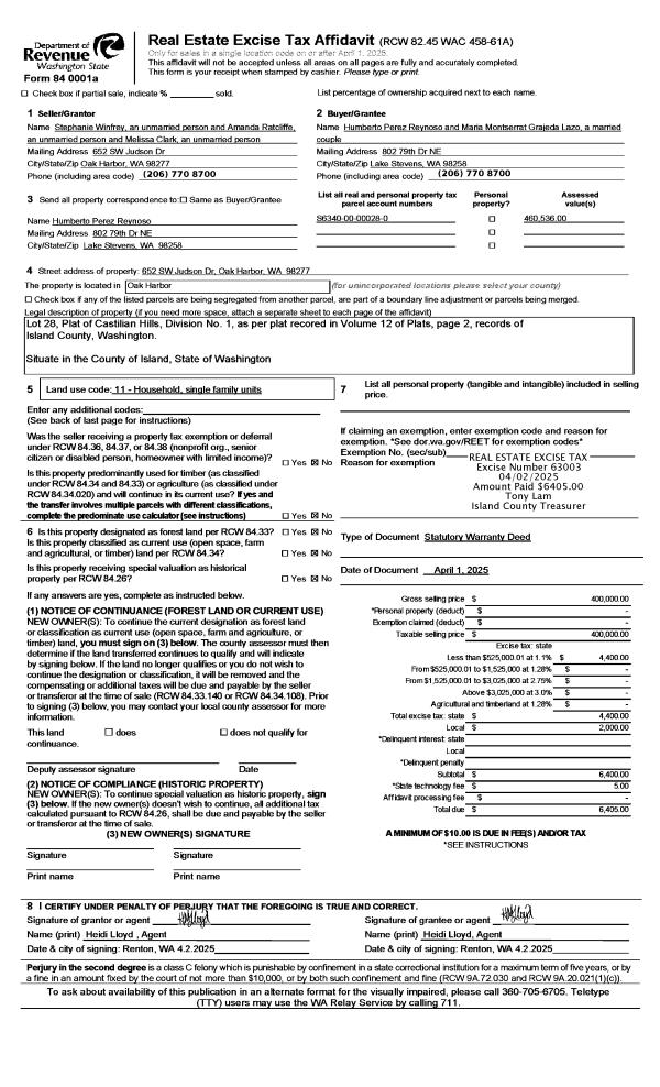
Property
Account |
| Property ID: | 271574 | Abbreviated Legal Description: | HILLCREST HSTD TR LOT 16 TGW W/2 VAC OLYMPIC AVE & N/2 VAC PATRICK ST TGW EZ AF#87008212-13 |
| Geographic ID: | S7135-00-00016-0 | Agent Code: | |
| Type: | Real | | |
| Tax Area: | 312 - APPRAISER-Cpvl Schl Dist, outside Cpvl, improved, greater than 1 acre | Land Use Code | 11 |
| Open Space: | N | DFL | N |
| Historic Property: | N | Remodel Property: | N |
| Multi-Family Redevelopment: | N | | |
| Township: | | Section: | |
| Range: | |
Location |
| Address: | 215 PARKER WOODS LN COUPEVILLE, WA 98239 | Mapsco: | |
| Neighborhood: | Cycle 2 | Map ID: | 183 |
| Neighborhood CD: | 2 |
Owner |
| Name: | MATROS JTWROS, MICHAEL J | Owner ID: | 283374 |
| Mailing Address: | VENESSA L MATROS JTWROS JOHN MATROS JTWROS PO BOX 658 COUPEVILLE, WA 98239 | % Ownership: | 100.0000000000% |
| | | Exemptions: | |
Taxes and Assessment Details
Values
| (+) Improvement Homesite Value: | + | $0 | |
| (+) Improvement Non-Homesite Value: | + | $512,992 | |
| (+) Land Homesite Value: | + | $0 | |
| (+) Land Non-Homesite Value: | + | $340,000 | |
| (+) Curr Use (HS): | + | $0 | $0 |
| (+) Curr Use (NHS): | + | $0 | $0 |
| | | -------------------------- | |
| (=) Market Value: | = | $852,992 | |
| (–) Productivity Loss: | – | $0 | |
| | | -------------------------- | |
| (=) Subtotal: | = | $852,992 | |
| (+) Senior Appraised Value: | + | $0 | |
| (+) Non-Senior Appraised Value: | + | $852,992 | |
| | | -------------------------- | |
| (=) Total Appraised Value: | = | $852,992 | |
| (–) Senior Exemption Loss: | – | $0 | |
| (–) Exemption Loss: | – | $0 | |
| | | -------------------------- | |
| (=) Taxable Value: | = | $852,992 | |
Taxing Jurisdiction
| Owner: | MATROS JTWROS, MICHAEL J | | |
| % Ownership: | 100.0000000000% | | |
| Total Value: | $852,992 | | |
| Tax Area: | 312 - APPRAISER-Cpvl Schl Dist, outside Cpvl, improved, greater than 1 acre |
| CF | Conservation Futures | 0.0316035091 | $852,992 | $852,992 | $26.96 | | |
| CEM2 | Cemetery #2 | 0.0095056933 | $852,992 | $852,992 | $8.11 | | |
| FIRE5 | Fire & Rescue Dist #5 C Whidbey GEN | 1.2008080668 | $852,992 | $852,992 | $1,024.28 | | |
| FIRE5BOND | Fire & Rescue Dist #5 C Whidbey BOND | 0.1400090713 | $852,992 | $852,992 | $119.43 | | |
| HOBOND | Hospital BOND | 0.1910887512 | $852,992 | $852,992 | $163.00 | | |
| HOGEN | Hospital GEN | 0.3902502903 | $852,992 | $852,992 | $332.88 | | |
| CE | County Current Expense | 0.3708482477 | $852,992 | $852,992 | $316.33 | | |
| CR | County Roads | 0.4584763726 | $852,992 | $852,992 | $391.08 | | |
| ISLANDEMS | Hospital GEN (EMS) | 0.5000000000 | $852,992 | $852,992 | $426.50 | | |
| LIB | Library Sno-Isle GEN | 0.3153421757 | $852,992 | $852,992 | $268.98 | | |
| LIBCAP | Library Sno-Isle BOND (Cap Fac Imp Area) | 0.0543427938 | $852,992 | $852,992 | $46.35 | | |
| POCOUP | Port of Coupeville GEN | 0.1093371703 | $852,992 | $852,992 | $93.26 | | |
| POCOUPIDD | Port of Coupeville IDD | 0.3409740022 | $852,992 | $852,992 | $290.85 | | |
| COUPSDTECH | School 204 CP (TECH) | 0.7545480007 | $852,992 | $852,992 | $643.62 | | |
| SCH204MO | School 204 Enrichment | 0.6716186034 | $852,992 | $852,992 | $572.89 | | |
| ST | State School | 1.3035497053 | $852,992 | $852,992 | $1,111.92 | | |
| ST2 | State School Part 2 | 0.8169543533 | $852,992 | $852,992 | $696.86 | | |
| | Total Tax Rate: | 7.6592568070 | | | | | |
| | | | | Taxes w/Current Exemptions: | $6,533.30 | | |
| | | | | Taxes w/o Exemptions: | $6,533.30 | | |
Improvement / Building
| Improvement #1: | RESIDENTIAL | State Code: | Y | 2592.0 sqft | Value: | $512,992 |
| Bathrooms: | 2.75 | Bedrooms: | 3 | | Ceiling: | DRYWALL PAINTED | Cooling: | HEAT PUMP/CONV/V | | Exterior Wall/Cover: | CEMENT FIBER | Floor Covering: | CARPET/VINYL 20-80 | | Floor Structure: | WOOD W/SUBFLOOR | Foundation: | CONCRETE | | Interior Finish: | DRYWALL PAINT | Plumbing Fixture Cnt: | 15 | | Roof Slope: | 6" IN 12" | Roof Structure/Cover: | CJ ASPHALT |
|
| | Type | Description | Class CD | Sub Class CD | Year Built | Area |
| | BAS | BASE/MAIN FLOOR | 4 | 0 | 2018 | 1344.0 |
| | UPS | UPPER STORY | 4 | 0 | 2018 | 1248.0 |
| | AGR | ATTACHED GARAGE | 4 | 0 | 2018 | 572.0 |
| | OWC | OPEN WOOD PORCH W/STEPS/ROOF/C | 4 | 0 | 2018 | 288.0 |
| | UTY | STORAGE/UTILITY | 4 | 0 | 2018 | 192.0 |
Sketch
| No sketches available for this property. |
Property Image
Land
| 1 | 32 | AC (03.01-09.99) | 3.9200 | 0.00 | 0.00 | 0.00 | 1.00 | $340,000 | $0 |
Roll Value History
| 2026 | N/A | N/A | N/A | N/A | N/A |
| 2025 | $512,992 | $340,000 | $0 | $852,992 | $852,992 |
| 2024 | $517,129 | $300,000 | $0 | $817,129 | $817,129 |
| 2023 | $521,266 | $280,000 | $0 | $801,266 | $801,266 |
| 2022 | $475,761 | $260,000 | $0 | $735,761 | $735,761 |
| 2021 | $418,044 | $180,000 | $0 | $598,044 | $598,044 |
| 2020 | $409,730 | $160,000 | $0 | $569,730 | $569,730 |
| 2019 | $307,919 | $210,000 | $0 | $517,919 | $517,919 |
| 2018 | $85,917 | $100,000 | $0 | $185,917 | $185,917 |
| 2017 | $0 | $85,000 | $0 | $85,000 | $85,000 |
| 2016 | $0 | $85,000 | $0 | $85,000 | $85,000 |
| 2015 | $0 | $80,000 | $0 | $80,000 | $80,000 |
| 2014 | $0 | $78,400 | $0 | $78,400 | $78,400 |
| 2013 | $0 | $94,080 | $0 | $94,080 | $94,080 |
| 2012 | $0 | $94,080 | $0 | $94,080 | $94,080 |
| 2011 | $0 | $94,080 | $0 | $94,080 | $94,080 |
| 2010 | $0 | $94,080 | $0 | $94,080 | $94,080 |
| 2009 | $0 | $96,040 | $0 | $96,040 | $96,040 |
| 2008 | $0 | $150,920 | $0 | $150,920 | $150,920 |
| 2007 | $0 | $66,640 | $0 | $66,640 | $66,640 |
Deed and Sales History
| 1 | 12/20/2017 | QCD | Quit Claim Deed | MATROS, MICHAEL | MATROS JTWROS, MICHAEL J | | | $0.00 | 32382 | 4436248 |
| 2 | 10/24/2016 | WD | Warranty Deed | MESSINA, CHRISTOPHER S | MATROS, MICHAEL | | | $90,000.00 | 26721 | 4410373 |
| 3 | 08/01/1987 | WD | Warranty Deed | LIND, CURTISS G | MESSINA, CHRISTOPHER S | | | $10,000.00 | 72702 | 87012207 |
Payout Agreement
| No payout information available.. |