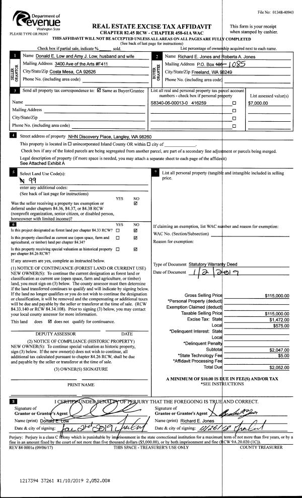
Property
Account |
| Property ID: | 2721 | Abbreviated Legal Description: | 27 KINETH DC BG INT WLN DC & SLN SEC 35-32-1E N660' E1095.94' TPB E330' S PAR/ WLN SD DC TO NLN HWY 525 W TP S FR TPB N TPB SUB EZ EX PT TO WA ST AF#4386459 9/22/2015 |
| Geographic ID: | R13102-520-3780 | Agent Code: | |
| Type: | Real | | |
| Tax Area: | 312 - APPRAISER-Cpvl Schl Dist, outside Cpvl, improved, greater than 1 acre | Land Use Code | 69 |
| Open Space: | N | DFL | N |
| Historic Property: | N | Remodel Property: | N |
| Multi-Family Redevelopment: | N | | |
| Township: | 31 | Section: | 02 |
| Range: | R1 |
Location |
| Address: | 19832 SR20 COUPEVILLE, WA 98239 | Mapsco: | |
| Neighborhood: | Area 2 Coupeville Exempt Commercial | Map ID: | 24 |
| Neighborhood CD: | 2CpvExComm |
Owner |
| Name: | ISLAND DISPOSAL INC | Owner ID: | 5704 |
| Mailing Address: | C/O HARDING & CARBONE INC 3 WATERWAY SQUARE PL STE 110 THE WOODLANDS, TX 77380 | % Ownership: | 100.0000000000% |
| | | Exemptions: | |
Taxes and Assessment Details
Values
| (+) Improvement Homesite Value: | + | $0 | |
| (+) Improvement Non-Homesite Value: | + | $486,300 | |
| (+) Land Homesite Value: | + | $0 | |
| (+) Land Non-Homesite Value: | + | $746,183 | |
| (+) Curr Use (HS): | + | $0 | $0 |
| (+) Curr Use (NHS): | + | $0 | $0 |
| | | -------------------------- | |
| (=) Market Value: | = | $1,232,483 | |
| (–) Productivity Loss: | – | $0 | |
| | | -------------------------- | |
| (=) Subtotal: | = | $1,232,483 | |
| (+) Senior Appraised Value: | + | $0 | |
| (+) Non-Senior Appraised Value: | + | $1,232,483 | |
| | | -------------------------- | |
| (=) Total Appraised Value: | = | $1,232,483 | |
| (–) Senior Exemption Loss: | – | $0 | |
| (–) Exemption Loss: | – | $0 | |
| | | -------------------------- | |
| (=) Taxable Value: | = | $1,232,483 | |
Taxing Jurisdiction
| Owner: | ISLAND DISPOSAL INC | | |
| % Ownership: | 100.0000000000% | | |
| Total Value: | $1,232,483 | | |
| Tax Area: | 312 - APPRAISER-Cpvl Schl Dist, outside Cpvl, improved, greater than 1 acre |
| CF | Conservation Futures | 0.0316035091 | $1,232,483 | $1,232,483 | $38.95 | | |
| CEM2 | Cemetery #2 | 0.0095056933 | $1,232,483 | $1,232,483 | $11.72 | | |
| FIRE5 | Fire & Rescue Dist #5 C Whidbey GEN | 1.2008080668 | $1,232,483 | $1,232,483 | $1,479.98 | | |
| FIRE5BOND | Fire & Rescue Dist #5 C Whidbey BOND | 0.1400090713 | $1,232,483 | $1,232,483 | $172.56 | | |
| HOBOND | Hospital BOND | 0.1910887512 | $1,232,483 | $1,232,483 | $235.51 | | |
| HOGEN | Hospital GEN | 0.3902502903 | $1,232,483 | $1,232,483 | $480.98 | | |
| CE | County Current Expense | 0.3708482477 | $1,232,483 | $1,232,483 | $457.06 | | |
| CR | County Roads | 0.4584763726 | $1,232,483 | $1,232,483 | $565.06 | | |
| ISLANDEMS | Hospital GEN (EMS) | 0.5000000000 | $1,232,483 | $1,232,483 | $616.24 | | |
| LIB | Library Sno-Isle GEN | 0.3153421757 | $1,232,483 | $1,232,483 | $388.65 | | |
| LIBCAP | Library Sno-Isle BOND (Cap Fac Imp Area) | 0.0543427938 | $1,232,483 | $1,232,483 | $66.98 | | |
| POCOUP | Port of Coupeville GEN | 0.1093371703 | $1,232,483 | $1,232,483 | $134.76 | | |
| POCOUPIDD | Port of Coupeville IDD | 0.3409740022 | $1,232,483 | $1,232,483 | $420.24 | | |
| COUPSDTECH | School 204 CP (TECH) | 0.7545480007 | $1,232,483 | $1,232,483 | $929.97 | | |
| SCH204MO | School 204 Enrichment | 0.6716186034 | $1,232,483 | $1,232,483 | $827.76 | | |
| ST | State School | 1.3035497053 | $1,232,483 | $1,232,483 | $1,606.60 | | |
| ST2 | State School Part 2 | 0.8169543533 | $1,232,483 | $1,232,483 | $1,006.88 | | |
| | Total Tax Rate: | 7.6592568070 | | | | | |
| | | | | Taxes w/Current Exemptions: | $9,439.90 | | |
| | | | | Taxes w/o Exemptions: | $9,439.90 | | |
Improvement / Building
| Improvement #1: | COMMERCIAL | State Code: | F1 | 6000.0 sqft | Value: | $180,046 |
| Bathrooms: | 0 | Bedrooms: | 0 | | Ceiling: | PAINT OPEN FLOOR BAS | Cooling: | PACKAGE HEAT & COOL | | Exterior Wall/Cover: | STL/ALUM/SINGWL WD F | Floor Covering: | CONCRETE SEALER | | Floor Structure: | CONCRETE ON GROUND | Foundation: | SLAB | | Heating: | SPACE HEATERS | Interior Finish: | SERVICE GARAGE | | Plumbing Fixture Cnt: | 1 | Roof Structure/Cover: | METAL/OPEN WOOD |
|
| | Type | Description | Class CD | Sub Class CD | Year Built | Area |
| | BAS | BASE/MAIN FLOOR | 2 | 0 | 1975 | 6000.0 |
| | oFN8 | CHN LK 6' | 2 | 0 | 1975 | 50900.0 |
| | oFN8 | CHN LK 6' | 2 | 0 | 1975 | 1832.0 |
| Improvement #2: | COMMERCIAL | State Code: | F1 | 960.0 sqft | Value: | $53,851 |
| Exterior Wall/Cover: | STL/ALUM/SINGWL WD F | Floor Covering: | CONCRETE SEALER | | Floor Structure: | CONCRETE ON GROUND | Foundation: | SLAB | | Plumbing Fixture Cnt: | 1 | Roof Structure/Cover: | METAL/OPEN WOOD |
|
| | Type | Description | Class CD | Sub Class CD | Year Built | Area |
| | BAS | BASE/MAIN FLOOR | 3 | 0 | 2014 | 960.0 |
| | OP1 | OPEN PORCH SLAB | 3 | 0 | 2014 | 220.0 |
| Improvement #3: | COMMERCIAL | State Code: | F1 | 9288.0 sqft | Value: | $252,403 |
| Bathrooms: | 0 | Bedrooms: | 0 | | Exterior Wall/Cover: | STL/ALUM/SINGWL WD F | Floor Covering: | CONCRETE SEALER | | Floor Structure: | CONCRETE ON GROUND | Foundation: | SLAB | | Interior Finish: | MANUFACTURING (LIGHT) | Plumbing Fixture Cnt: | 1 | | Roof Structure/Cover: | METAL/OPEN WOOD |   |   |
|
Sketch
Property Image
Land
| 1 | 71 | INDUSTRIAL MANUFACTURING | 11.4200 | 497455.20 | 0.00 | 0.00 | 1.00 | $746,183 | $0 |
Roll Value History
| 2026 | N/A | N/A | N/A | N/A | N/A |
| 2025 | $486,300 | $746,183 | $0 | $1,232,483 | $1,232,483 |
| 2024 | $344,733 | $746,183 | $0 | $1,090,916 | $1,090,916 |
| 2023 | $354,362 | $746,183 | $0 | $1,100,545 | $1,100,545 |
| 2022 | $308,306 | $248,728 | $0 | $557,034 | $557,034 |
| 2021 | $308,064 | $248,728 | $0 | $556,792 | $556,792 |
| 2020 | $308,027 | $248,728 | $0 | $556,755 | $556,755 |
| 2019 | $308,067 | $746,183 | $0 | $1,054,250 | $1,054,250 |
| 2018 | $363,448 | $746,183 | $0 | $1,109,631 | $1,109,631 |
| 2017 | $363,455 | $172,500 | $0 | $535,955 | $535,955 |
| 2016 | $363,469 | $172,500 | $0 | $535,969 | $535,969 |
| 2015 | $381,840 | $185,220 | $0 | $567,060 | $567,060 |
| 2014 | $378,536 | $185,220 | $0 | $563,756 | $563,756 |
| 2013 | $343,005 | $185,220 | $0 | $528,225 | $528,225 |
| 2012 | $397,495 | $185,220 | $0 | $582,715 | $582,715 |
| 2011 | $397,495 | $185,220 | $0 | $582,715 | $582,715 |
| 2010 | $356,172 | $185,220 | $0 | $541,392 | $541,392 |
| 2009 | $374,684 | $203,539 | $0 | $578,223 | $578,223 |
| 2008 | $384,329 | $203,539 | $0 | $587,868 | $587,868 |
| 2007 | $393,910 | $203,539 | $0 | $597,449 | $597,449 |
Deed and Sales History
| 1 | 09/15/2015 | WD | Warranty Deed | ISLAND DISPOSAL INC | ISLAND DISPOSAL INC | | | $0.00 | 21442 | 4386459 |
| 2 | 01/22/2002 | WD | Warranty Deed | WASTE CONNECTIONS OF WASHINGTO | ISLAND DISPOSAL INC, | | | $0.00 | 20252 | 4008885 |
| 3 | 12/21/2001 | WD | Warranty Deed | Unknown | WASTE CONNECTIONS OF WASHINGTO | | | $350,000.00 | 20009 | 4007180 |
Payout Agreement
| No payout information available.. |