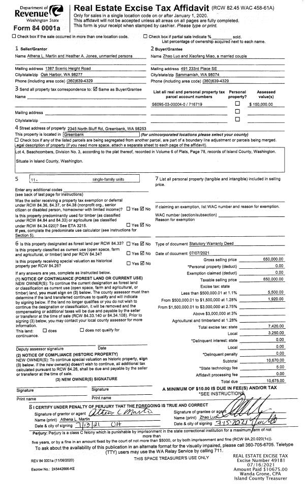
Property
Account |
| Property ID: | 276551 | Abbreviated Legal Description: | HHGY 2 LOT 4 |
| Geographic ID: | S7165-02-00004-0 | Agent Code: | |
| Type: | Real | | |
| Tax Area: | 770 - APPRAISER-S Whid Schl Dist, Special District, improved & less than 1 acre | Land Use Code | 11 |
| Open Space: | N | DFL | N |
| Historic Property: | N | Remodel Property: | N |
| Multi-Family Redevelopment: | N | | |
| Township: | | Section: | |
| Range: | |
Location |
| Address: | 1309 GREENWAY PL FREELAND, WA 98249 | Mapsco: | |
| Neighborhood: | Cycle 3 | Map ID: | 288 |
| Neighborhood CD: | 3 |
Owner |
| Name: | VAN WORMER, NANCY | Owner ID: | 297886 |
| Mailing Address: | 1309 GREENWAY PL FREELAND, WA 98249 | % Ownership: | 100.0000000000% |
| | | Exemptions: | |
Taxes and Assessment Details
Values
| (+) Improvement Homesite Value: | + | $0 | |
| (+) Improvement Non-Homesite Value: | + | $368,346 | |
| (+) Land Homesite Value: | + | $0 | |
| (+) Land Non-Homesite Value: | + | $330,000 | |
| (+) Curr Use (HS): | + | $0 | $0 |
| (+) Curr Use (NHS): | + | $0 | $0 |
| | | -------------------------- | |
| (=) Market Value: | = | $698,346 | |
| (–) Productivity Loss: | – | $0 | |
| | | -------------------------- | |
| (=) Subtotal: | = | $698,346 | |
| (+) Senior Appraised Value: | + | $0 | |
| (+) Non-Senior Appraised Value: | + | $698,346 | |
| | | -------------------------- | |
| (=) Total Appraised Value: | = | $698,346 | |
| (–) Senior Exemption Loss: | – | $0 | |
| (–) Exemption Loss: | – | $0 | |
| | | -------------------------- | |
| (=) Taxable Value: | = | $698,346 | |
Taxing Jurisdiction
| Owner: | VAN WORMER, NANCY | | |
| % Ownership: | 100.0000000000% | | |
| Total Value: | $698,346 | | |
| Tax Area: | 770 - APPRAISER-S Whid Schl Dist, Special District, improved & less than 1 acre |
| CF | Conservation Futures | 0.0316035091 | $698,346 | $698,346 | $22.07 | | |
| FIRE3 | Fire & Rescue Dist #3 S Whidbey GEN | 1.2004855531 | $698,346 | $698,346 | $838.35 | | |
| HOBOND | Hospital BOND | 0.1910887512 | $698,346 | $698,346 | $133.45 | | |
| HOGEN | Hospital GEN | 0.3902502903 | $698,346 | $698,346 | $272.53 | | |
| CE | County Current Expense | 0.3708482477 | $698,346 | $698,346 | $258.98 | | |
| CR | County Roads | 0.4584763726 | $698,346 | $698,346 | $320.18 | | |
| ISLANDEMS | Hospital GEN (EMS) | 0.5000000000 | $698,346 | $698,346 | $349.17 | | |
| LIB | Library Sno-Isle GEN | 0.3153421757 | $698,346 | $698,346 | $220.22 | | |
| PORTWHID | Port of S Whidbey GEN | 0.1094540357 | $698,346 | $698,346 | $76.44 | | |
| SCH206BOND | School 206 BOND | 0.3161759235 | $698,346 | $698,346 | $220.80 | | |
| SCH206MO | School 206 Enrichment | 0.4547169547 | $698,346 | $698,346 | $317.55 | | |
| ST | State School | 1.3035497053 | $698,346 | $698,346 | $910.33 | | |
| ST2 | State School Part 2 | 0.8169543533 | $698,346 | $698,346 | $570.52 | | |
| SWHIDPRBD | P & R S Whidbey BOND | 0.0152817568 | $698,346 | $698,346 | $10.67 | | |
| SWHIDPRBD2 | P & R S Whidbey BOND2 | 0.0138911264 | $698,346 | $698,346 | $9.70 | | |
| SWHIDPRMT | P & R S Whidbey GEN | 0.2053334452 | $698,346 | $698,346 | $143.39 | | |
| | Total Tax Rate: | 6.6934522006 | | | | | |
| | | | | Taxes w/Current Exemptions: | $4,674.35 | | |
| | | | | Taxes w/o Exemptions: | $4,674.35 | | |
Improvement / Building
| Improvement #1: | RESIDENTIAL | State Code: | Y | 1480.3 sqft | Value: | $368,346 |
| Bathrooms: | 2 | Bedrooms: | 3 | | Ceiling: | DRYWALL PAINTED | Cooling: | HEAT PUMP/CONV/V | | Exterior Wall/Cover: | SHINGLE | Floor Covering: | VINYL 100% | | Floor Structure: | WOOD W/SUBFLOOR | Foundation: | CONCRETE | | Interior Finish: | DRYWALL PAINT | Plumbing Fixture Cnt: | 10 | | Roof Slope: | 8" IN 12" | Roof Structure/Cover: | CJ ASPHALT |
|
| | Type | Description | Class CD | Sub Class CD | Year Built | Area |
| | BAS | BASE/MAIN FLOOR | 4 | 0 | 2021 | 1480.3 |
| | AGR | ATTACHED GARAGE | 4 | 0 | 2021 | 400.0 |
Sketch
Property Image
Land
| 1 | 13 | SQ (06001-08000) | 0.2100 | 9147.60 | 0.00 | 0.00 | 1.00 | $330,000 | $0 |
Roll Value History
| 2026 | N/A | N/A | N/A | N/A | N/A |
| 2025 | $368,346 | $330,000 | $0 | $698,346 | $698,346 |
| 2024 | $371,269 | $300,000 | $0 | $671,269 | $671,269 |
| 2023 | $375,167 | $250,000 | $0 | $625,167 | $625,167 |
| 2022 | $345,893 | $270,000 | $0 | $615,893 | $615,893 |
| 2021 | $288,007 | $190,000 | $0 | $478,007 | $478,007 |
| 2020 | $0 | $65,000 | $0 | $65,000 | $65,000 |
| 2019 | $0 | $65,000 | $0 | $65,000 | $65,000 |
| 2018 | $0 | $65,000 | $0 | $65,000 | $65,000 |
| 2017 | $0 | $65,000 | $0 | $65,000 | $65,000 |
| 2016 | $0 | $35,000 | $0 | $35,000 | $35,000 |
| 2015 | $0 | $60,000 | $0 | $60,000 | $60,000 |
| 2014 | $0 | $55,000 | $0 | $55,000 | $55,000 |
| 2013 | $0 | $30,000 | $0 | $30,000 | $30,000 |
| 2012 | $0 | $45,900 | $0 | $45,900 | $45,900 |
| 2011 | $0 | $54,000 | $0 | $54,000 | $54,000 |
| 2010 | $0 | $65,000 | $0 | $65,000 | $65,000 |
| 2009 | $0 | $82,000 | $0 | $82,000 | $82,000 |
| 2008 | $0 | $100,000 | $0 | $100,000 | $100,000 |
| 2007 | $0 | $100,000 | $0 | $100,000 | $100,000 |
Deed and Sales History
| 1 | 01/25/2021 | WD | Warranty Deed | EAGLE DEVELOPMENT GROUP, LLC | VAN WORMER, NANCY | | | $625,000.00 | 46733 | 4509379 |
| 2 | 07/16/2020 | WD | Warranty Deed | WATERSHIP PROPERTIES LLC | EAGLE DEVELOPMENT GROUP, LLC | | | $84,000.00 | 43895 | 4491826 |
| 3 | 10/15/2003 | 5 | DNU - Marriage License/Name Change | COMEGYS, RIPLEY S | WATERSHIP PROPERTIES LLC, | | | $0.00 | 34822 | 4080484 |
| 4 | 04/04/2003 | WD | Warranty Deed | RONNESTAD, RICHARD A | COMEGYS, RIPLEY S | | | $25,000.00 | 31473 | 4054479 |
| 5 | 03/01/1994 | WD | Warranty Deed | HEIGHTON, ROBERT S | RONNESTAD, RICHARD A | | | $0.00 | 41242 | 94007819 |
| 6 | 03/01/1994 | WD | Warranty Deed | RONNESTAD, RICHARD A | HEIGHTON, ROBERT S | | | $32,500.00 | 41243 | 94007820 |
| 7 | 08/01/1992 | QCD | Quit Claim Deed | RONNESTAD, HAROLD | RONNESTAD, RICHARD A | | | $8,500.00 | 23065 | 92014905 |
| 8 | 10/01/1978 | OTHER | Other - Misc. Documents | Unknown | RONNESTAD, HAROLD | | | $6,700.00 | 84884 | 340715 |
Payout Agreement
| 450 | Active | Annual Payments | | 10/29/2012 6:53:22 AM | Annually | 2 | $0 |