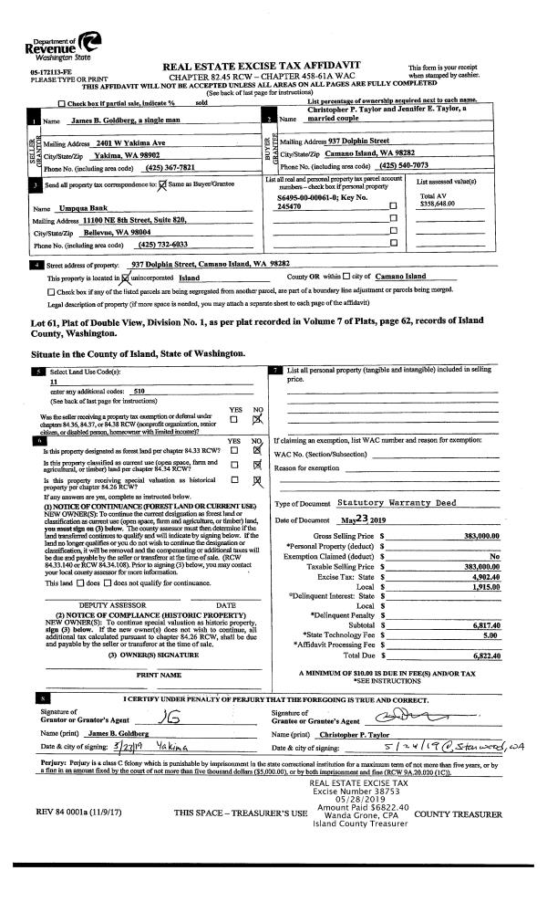
Property
Account |
| Property ID: | 276640 | Abbreviated Legal Description: | HHGY 2 LOT 13 |
| Geographic ID: | S7165-02-00013-0 | Agent Code: | |
| Type: | Real | | |
| Tax Area: | 770 - APPRAISER-S Whid Schl Dist, Special District, improved & less than 1 acre | Land Use Code | 11 |
| Open Space: | N | DFL | N |
| Historic Property: | N | Remodel Property: | N |
| Multi-Family Redevelopment: | N | | |
| Township: | | Section: | |
| Range: | |
Location |
| Address: | 1304 HICKORY WAY FREELAND, WA 98249 | Mapsco: | |
| Neighborhood: | Cycle 3 | Map ID: | 290 |
| Neighborhood CD: | 3 |
Owner |
| Name: | SALENSKI, ERIC R | Owner ID: | 279664 |
| Mailing Address: | JODI L SALENSKI 7021 11TH AVE NW SEATTLE, WA 98117 | % Ownership: | 100.0000000000% |
| | | Exemptions: | |
Taxes and Assessment Details
Values
| (+) Improvement Homesite Value: | + | $0 | |
| (+) Improvement Non-Homesite Value: | + | $272,639 | |
| (+) Land Homesite Value: | + | $0 | |
| (+) Land Non-Homesite Value: | + | $260,000 | |
| (+) Curr Use (HS): | + | $0 | $0 |
| (+) Curr Use (NHS): | + | $0 | $0 |
| | | -------------------------- | |
| (=) Market Value: | = | $532,639 | |
| (–) Productivity Loss: | – | $0 | |
| | | -------------------------- | |
| (=) Subtotal: | = | $532,639 | |
| (+) Senior Appraised Value: | + | $0 | |
| (+) Non-Senior Appraised Value: | + | $532,639 | |
| | | -------------------------- | |
| (=) Total Appraised Value: | = | $532,639 | |
| (–) Senior Exemption Loss: | – | $0 | |
| (–) Exemption Loss: | – | $0 | |
| | | -------------------------- | |
| (=) Taxable Value: | = | $532,639 | |
Taxing Jurisdiction
| Owner: | SALENSKI, ERIC R | | |
| % Ownership: | 100.0000000000% | | |
| Total Value: | $532,639 | | |
| Tax Area: | 770 - APPRAISER-S Whid Schl Dist, Special District, improved & less than 1 acre |
| CF | Conservation Futures | 0.0316035091 | $532,639 | $532,639 | $16.83 | | |
| FIRE3 | Fire & Rescue Dist #3 S Whidbey GEN | 1.2004855531 | $532,639 | $532,639 | $639.43 | | |
| HOBOND | Hospital BOND | 0.1910887512 | $532,639 | $532,639 | $101.78 | | |
| HOGEN | Hospital GEN | 0.3902502903 | $532,639 | $532,639 | $207.86 | | |
| CE | County Current Expense | 0.3708482477 | $532,639 | $532,639 | $197.53 | | |
| CR | County Roads | 0.4584763726 | $532,639 | $532,639 | $244.20 | | |
| ISLANDEMS | Hospital GEN (EMS) | 0.5000000000 | $532,639 | $532,639 | $266.32 | | |
| LIB | Library Sno-Isle GEN | 0.3153421757 | $532,639 | $532,639 | $167.96 | | |
| PORTWHID | Port of S Whidbey GEN | 0.1094540357 | $532,639 | $532,639 | $58.30 | | |
| SCH206BOND | School 206 BOND | 0.3161759235 | $532,639 | $532,639 | $168.41 | | |
| SCH206MO | School 206 Enrichment | 0.4547169547 | $532,639 | $532,639 | $242.20 | | |
| ST | State School | 1.3035497053 | $532,639 | $532,639 | $694.32 | | |
| ST2 | State School Part 2 | 0.8169543533 | $532,639 | $532,639 | $435.14 | | |
| SWHIDPRBD | P & R S Whidbey BOND | 0.0152817568 | $532,639 | $532,639 | $8.14 | | |
| SWHIDPRBD2 | P & R S Whidbey BOND2 | 0.0138911264 | $532,639 | $532,639 | $7.40 | | |
| SWHIDPRMT | P & R S Whidbey GEN | 0.2053334452 | $532,639 | $532,639 | $109.37 | | |
| | Total Tax Rate: | 6.6934522006 | | | | | |
| | | | | Taxes w/Current Exemptions: | $3,565.19 | | |
| | | | | Taxes w/o Exemptions: | $3,565.19 | | |
Improvement / Building
| Improvement #1: | RESIDENTIAL | State Code: | Y | 1714.0 sqft | Value: | $272,639 |
| Bathrooms: | 2.5 | Bedrooms: | 3 | | Ceiling: | DRYWALL PAINTED | Exterior Wall/Cover: | CEMENT FIBER | | Floor Covering: | CARPET/VINYL 80-20 | Floor Structure: | WOOD W/SUBFLOOR | | Foundation: | CONCRETE | Heating: | WALL HEAT ELECTRIC | | Interior Finish: | DRYWALL PAINT | Plumbing Fixture Cnt: | 12 | | Roof Slope: | 4" IN 12" | Roof Structure/Cover: | CJ ASPHALT |
|
| | Type | Description | Class CD | Sub Class CD | Year Built | Area |
| | BAS | BASE/MAIN FLOOR | 3 | 0 | 1997 | 839.0 |
| | AGR | ATTACHED GARAGE | 3 | 0 | 1997 | 231.0 |
| | UPS | UPPER STORY | 3 | 0 | 1997 | 875.0 |
| | OWP | OPEN WOOD PORCH W/STEPS | 3 | 0 | 1997 | 128.0 |
| | OWP | OPEN WOOD PORCH W/STEPS | 3 | 0 | 1997 | 58.0 |
Sketch
Property Image
Land
| 1 | 13 | SQ (06001-08000) | 0.1700 | 7405.20 | 0.00 | 0.00 | 1.00 | $260,000 | $0 |
Roll Value History
| 2026 | N/A | N/A | N/A | N/A | N/A |
| 2025 | $272,639 | $260,000 | $0 | $532,639 | $532,639 |
| 2024 | $275,876 | $260,000 | $0 | $535,876 | $535,876 |
| 2023 | $279,112 | $230,000 | $0 | $509,112 | $509,112 |
| 2022 | $255,671 | $200,000 | $0 | $455,671 | $455,671 |
| 2021 | $224,872 | $115,000 | $0 | $339,872 | $339,872 |
| 2020 | $218,594 | $100,000 | $0 | $318,594 | $318,594 |
| 2019 | $162,713 | $170,000 | $0 | $332,713 | $332,713 |
| 2018 | $146,938 | $140,000 | $0 | $286,938 | $286,938 |
| 2017 | $147,840 | $120,000 | $0 | $267,840 | $267,840 |
| 2016 | $149,643 | $75,000 | $0 | $224,643 | $224,643 |
| 2015 | $151,445 | $85,000 | $0 | $236,445 | $236,445 |
| 2014 | $153,249 | $65,000 | $0 | $218,249 | $218,249 |
| 2013 | $165,432 | $45,000 | $0 | $210,432 | $210,432 |
| 2012 | $167,355 | $45,900 | $0 | $213,255 | $213,255 |
| 2011 | $169,277 | $54,000 | $0 | $223,277 | $223,277 |
| 2010 | $177,061 | $65,000 | $0 | $242,061 | $242,061 |
| 2009 | $184,593 | $82,000 | $0 | $266,593 | $266,593 |
| 2008 | $186,721 | $100,000 | $0 | $286,721 | $286,721 |
| 2007 | $179,539 | $100,000 | $0 | $279,539 | $279,539 |
Deed and Sales History
| 1 | 04/22/2019 | WD | Warranty Deed | SECURED HOLDINGS, LLC | SALENSKI, ERIC R | | | $335,000.00 | 38085 | 4461444 |
| 2 | 01/12/2018 | WD | Warranty Deed | BANDY, MAURICE L | SECURED HOLDINGS, LLC | | | $230,000.00 | 32606 | 4437529 |
| 3 | 11/24/2003 | ESTSEPPROP | Establish Separate Property | BANDY, MAURICE L | BANDY, MAURICE L | | | $0.00 | 35383 | 4084528 |
| 4 | 11/19/2003 | WD | Warranty Deed | BLANCHETTE, DANIEL E | BANDY, MAURICE L | | | $184,500.00 | 35382 | 4084527 |
| 5 | 07/08/1999 | WD | Warranty Deed | HAMILTON, TIMOTHY E | BLANCHETTE, DANIEL E | | | $149,100.00 | 92775 | 99016538 |
| 6 | 02/01/1997 | WD | Warranty Deed | CHIKUSA, EVA Y | HAMILTON, TIMOTHY E | | | $25,000.00 | 70423 | 97001921 |
| 7 | 03/01/1992 | QCD | Quit Claim Deed | CHIKUSA, SADANOBU B | CHIKUSA, EVA Y | | | $0.00 | 22296 | 92011129 |
| 8 | 01/01/1900 | OTHER | Other - Misc. Documents | Unknown | CHIKUSA, SADANOBU B | | | $0.00 | 0 | 0 |
Payout Agreement
| No payout information available.. |