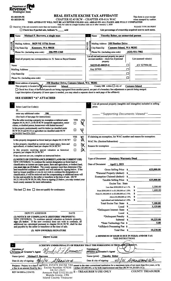
Property
Account |
| Property ID: | 277104 | Abbreviated Legal Description: | HHGY 4 LOT 16 TGW & SUB EZ AF#94022293 |
| Geographic ID: | S7165-04-00016-0 | Agent Code: | |
| Type: | Real | | |
| Tax Area: | 770 - APPRAISER-S Whid Schl Dist, Special District, improved & less than 1 acre | Land Use Code | 11 |
| Open Space: | N | DFL | N |
| Historic Property: | N | Remodel Property: | N |
| Multi-Family Redevelopment: | N | | |
| Township: | | Section: | |
| Range: | |
Location |
| Address: | 4954 HARBOR HILLS DR FREELAND, WA 98249 | Mapsco: | |
| Neighborhood: | Cycle 3 | Map ID: | 290 |
| Neighborhood CD: | 3 |
Owner |
| Name: | COLEMAN TTEE, MARIE THERESE | Owner ID: | 297115 |
| Mailing Address: | 4954 HARBOR HILLS DR FREELAND, WA 98249 | % Ownership: | 100.0000000000% |
| | | Exemptions: | |
Taxes and Assessment Details
Values
| (+) Improvement Homesite Value: | + | $0 | |
| (+) Improvement Non-Homesite Value: | + | $419,462 | |
| (+) Land Homesite Value: | + | $0 | |
| (+) Land Non-Homesite Value: | + | $285,000 | |
| (+) Curr Use (HS): | + | $0 | $0 |
| (+) Curr Use (NHS): | + | $0 | $0 |
| | | -------------------------- | |
| (=) Market Value: | = | $704,462 | |
| (–) Productivity Loss: | – | $0 | |
| | | -------------------------- | |
| (=) Subtotal: | = | $704,462 | |
| (+) Senior Appraised Value: | + | $0 | |
| (+) Non-Senior Appraised Value: | + | $704,462 | |
| | | -------------------------- | |
| (=) Total Appraised Value: | = | $704,462 | |
| (–) Senior Exemption Loss: | – | $0 | |
| (–) Exemption Loss: | – | $0 | |
| | | -------------------------- | |
| (=) Taxable Value: | = | $704,462 | |
Taxing Jurisdiction
| Owner: | COLEMAN TTEE, MARIE THERESE | | |
| % Ownership: | 100.0000000000% | | |
| Total Value: | $704,462 | | |
| Tax Area: | 770 - APPRAISER-S Whid Schl Dist, Special District, improved & less than 1 acre |
| CF | Conservation Futures | 0.0316035091 | $704,462 | $704,462 | $22.26 | | |
| FIRE3 | Fire & Rescue Dist #3 S Whidbey GEN | 1.2004855531 | $704,462 | $704,462 | $845.70 | | |
| HOBOND | Hospital BOND | 0.1910887512 | $704,462 | $704,462 | $134.61 | | |
| HOGEN | Hospital GEN | 0.3902502903 | $704,462 | $704,462 | $274.92 | | |
| CE | County Current Expense | 0.3708482477 | $704,462 | $704,462 | $261.25 | | |
| CR | County Roads | 0.4584763726 | $704,462 | $704,462 | $322.98 | | |
| ISLANDEMS | Hospital GEN (EMS) | 0.5000000000 | $704,462 | $704,462 | $352.23 | | |
| LIB | Library Sno-Isle GEN | 0.3153421757 | $704,462 | $704,462 | $222.15 | | |
| PORTWHID | Port of S Whidbey GEN | 0.1094540357 | $704,462 | $704,462 | $77.11 | | |
| SCH206BOND | School 206 BOND | 0.3161759235 | $704,462 | $704,462 | $222.73 | | |
| SCH206MO | School 206 Enrichment | 0.4547169547 | $704,462 | $704,462 | $320.33 | | |
| ST | State School | 1.3035497053 | $704,462 | $704,462 | $918.30 | | |
| ST2 | State School Part 2 | 0.8169543533 | $704,462 | $704,462 | $575.51 | | |
| SWHIDPRBD | P & R S Whidbey BOND | 0.0152817568 | $704,462 | $704,462 | $10.77 | | |
| SWHIDPRBD2 | P & R S Whidbey BOND2 | 0.0138911264 | $704,462 | $704,462 | $9.79 | | |
| SWHIDPRMT | P & R S Whidbey GEN | 0.2053334452 | $704,462 | $704,462 | $144.65 | | |
| | Total Tax Rate: | 6.6934522006 | | | | | |
| | | | | Taxes w/Current Exemptions: | $4,715.29 | | |
| | | | | Taxes w/o Exemptions: | $4,715.29 | | |
Improvement / Building
| Improvement #1: | RESIDENTIAL | State Code: | Y | 1776.0 sqft | Value: | $419,462 |
| Bathrooms: | 2.5 | Bedrooms: | 3 | | Ceiling: | DRYWALL PAINTED | Exterior Wall/Cover: | WOOD SIDING | | Floor Covering: | HARDWOOD/CARP 60-40 | Floor Structure: | WOOD W/SUBFLOOR | | Foundation: | CONCRETE | Heating: | FHA GAS | | Interior Finish: | DRYWALL PAINT | Plumbing Fixture Cnt: | 14 | | Roof Slope: | 5" IN 12" | Roof Structure/Cover: | CJ ASPHALT |
|
| | Type | Description | Class CD | Sub Class CD | Year Built | Area |
| | BAS | BASE/MAIN FLOOR | 4 | 0 | 2007 | 786.0 |
| | OP1 | OPEN PORCH SLAB | 4 | 0 | 2007 | 459.0 |
| | OP2 | OPEN PORCH W/STEPS | 4 | 0 | 2007 | 15.0 |
| | OP4 | OPEN PORCH W/CEILING-ROOF | 4 | 0 | 2007 | 30.0 |
| | AGR | ATTACHED GARAGE | 4 | 0 | 2007 | 300.0 |
| | UPS | UPPER STORY | 4 | 0 | 2007 | 990.0 |
| | OWP | OPEN WOOD PORCH W/STEPS | 4 | 0 | 2007 | 140.0 |
| | OWP | OPEN WOOD PORCH W/STEPS | 4 | 0 | 2007 | 32.0 |
| | ENP | ENCLOSED PORCH | 4 | 0 | 2007 | 144.0 |
Sketch
Property Image
Land
| 1 | 13 | SQ (06001-08000) | 0.1700 | 7405.20 | 0.00 | 0.00 | 1.00 | $285,000 | $0 |
Roll Value History
| 2026 | N/A | N/A | N/A | N/A | N/A |
| 2025 | $419,462 | $285,000 | $0 | $704,462 | $704,462 |
| 2024 | $424,380 | $260,000 | $0 | $684,380 | $684,380 |
| 2023 | $429,300 | $240,000 | $0 | $669,300 | $669,300 |
| 2022 | $393,189 | $200,000 | $0 | $593,189 | $593,189 |
| 2021 | $345,784 | $115,000 | $0 | $460,784 | $460,784 |
| 2020 | $334,885 | $100,000 | $0 | $434,885 | $434,885 |
| 2019 | $237,085 | $170,000 | $0 | $407,085 | $407,085 |
| 2018 | $237,756 | $140,000 | $0 | $377,756 | $377,756 |
| 2017 | $239,099 | $120,000 | $0 | $359,099 | $359,099 |
| 2016 | $241,787 | $100,000 | $0 | $341,787 | $341,787 |
| 2015 | $244,470 | $85,000 | $0 | $329,470 | $329,470 |
| 2014 | $247,159 | $65,000 | $0 | $312,159 | $312,159 |
| 2013 | $250,065 | $65,000 | $0 | $315,065 | $315,065 |
| 2012 | $252,746 | $65,000 | $0 | $317,746 | $317,746 |
| 2011 | $255,423 | $100,000 | $0 | $355,423 | $355,423 |
| 2010 | $263,518 | $100,000 | $0 | $363,518 | $363,518 |
| 2009 | $274,425 | $100,000 | $0 | $374,425 | $374,425 |
| 2008 | $274,629 | $125,000 | $0 | $399,629 | $399,629 |
| 2007 | $0 | $402,541 | $0 | $402,541 | $402,541 |
Deed and Sales History
| 1 | 08/20/2020 | QCD | Quit Claim Deed | COLEMAN, MARIE T | COLEMAN TTEE, MARIE THERESE | | | $0.00 | 45455 | 4500922 |
| 2 | 05/09/2019 | WD | Warranty Deed | REAGAN TRUSTEE, MARSHA JANE | COLEMAN, MARIE T | | | $457,000.00 | 38621 | 4463854 |
| 3 | 07/02/2017 | WD | Warranty Deed | REAGAN, MARSHA | REAGAN TRUSTEE, MARSHA JANE | | | $359,099.00 | 30457 | 4427389 |
| 4 | 11/10/2003 | WD | Warranty Deed | VAN, MUYDEN, A | REAGAN, MARSHA | | | $30,000.00 | 35125 | 4082634 |
| 5 | 10/01/1994 | WD | Warranty Deed | HOLMES, HARBOR A | VAN, MUYDEN, A | | | $38,000.00 | 44328 | 94022294 |
| 6 | 10/01/1992 | WD | Warranty Deed | DAVIDSON, HUBERT L | HOLMES, HARBOR A | | | $35,000.00 | 24098 | 92019850 |
| 7 | 07/01/1978 | OTHER | Other - Misc. Documents | Unknown | DAVIDSON, HUBERT L | | | $8,000.00 | 83533 | 336878 |
Payout Agreement
| No payout information available.. |